Ländlich zentral wohnen in TOP Lage mit guter Verkehrsanbindung!
489.000 €
Kaufpreis
154,54 m²
Wohnfläche
4
Zimmer
immobilien.de Nr.: 9414773
Objektnummer: BVIHPW536199001
Kaufpreis
| Kaufpreis | 489.000 € |
| Maklerprovision | keine |
Wohnfläche, Grundstück & Bausubstanz
| Wohnfläche | 154,54 m² |
| Grundstücksfläche | 571 m² |
| Zimmer | 4 |
| Baujahr | 2026 |
| Verfügbar ab | 2026 |
| Zustand | Projektiert |
Energie
| Energietyp | KfW-55 |
| Heizungsart | Zentralheizung |
| Energieträger/Befeuerung | Luft-Wärme-Pumpe |
Beschreibung der Immobilie
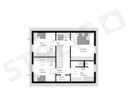
Willkommen in Ihrem neuen Traumhaus in Rotenburg an der Fulda! Dieses individuell geplante Einfamilienhaus bietet Ihnen mit 154,54 m² Wohnfläche und 4.0 Zimmern ausreichend Platz für die ganze Familie. Mit 3 Schlafzimmern und 2 luxuriösen Badezimmern, die sowohl mit einer Dusche als auch mit einer Wanne ausgestattet sind, sowie einem zusätzlichen Gäste-WC, ist dieses Zuhause perfekt auf Ihre Bedürfnisse abgestimmt. Die durchdachte Raumaufteilung und die Möglichkeit, bei der Gestaltung aktiv mitzuwirken, machen dieses Projekt zu etwas ganz Besonderem. Das STREIF-Baukonzept ermöglicht es Ihnen, gemeinsam mit unseren Experten Ihr Traumhaus zu entwerfen und innerhalb weniger Monate Realität werden zu lassen.
Dieses Objekt wird in der Ausbaustufe "FastFertigPlus" erstellt. Hier profitieren Sie von einer hochwertigen Sanitär-Grundausstattung und können dennoch aktiv an der Gestaltung Ihres Hauses mitwirken. Die haustechnischen Gewerke wie Heizung, Lüftung, Sanitär und Estrich werden von Fachbetrieben übernommen, sodass Sie sich entspannt zurücklehnen können, während wir Ihr Zuhause zum Leben erwecken.
Dieses Objekt wird in der Ausbaustufe "FastFertigPlus" erstellt. Hier profitieren Sie von einer hochwertigen Sanitär-Grundausstattung und können dennoch aktiv an der Gestaltung Ihres Hauses mitwirken. Die haustechnischen Gewerke wie Heizung, Lüftung, Sanitär und Estrich werden von Fachbetrieben übernommen, sodass Sie sich entspannt zurücklehnen können, während wir Ihr Zuhause zum Leben erwecken.
Ausstattungsmerkmale
| Anzahl der Etagen im Haus | 2 |
| Küche | Offene Küche |
| Bad | 2 |
| Bad | Dusche, Wanne |
| Boden | Fliesen, Parkett, Laminat, Kunststoff |
Die gehobene Ausstattung dieses Einfamilienhauses umfasst eine Vielzahl von hochwertigen Bodenbelägen, darunter Fliesen, Laminat, Parkett und PVC, die nach Ihren Wünschen ausgewählt werden können. Diese Materialien sind nicht nur optisch ansprechend, sondern auch pflegeleicht und langlebig. Die Befeuerungsart erfolgt über eine effiziente Wärmepumpe, die nicht nur umweltfreundlich ist, sondern auch Ihre Energiekosten reduziert. Der Energietyp entspricht dem KFW55 Standard (auf Wonsch auch KfW 40 oder 40+), was bedeutet, dass Ihr neues Zuhause besonders energieeffizient ist und Sie von staatlichen Förderungen profitieren können.
Sonstige Informationen
Bei STREIF haben Sie die Wahl zwischen vier verschiedenen Ausbaustufen, um Ihr Traumhaus nach Ihren Wünschen zu gestalten. Die Ausbaustufe 3 - FastFertigPlus - bietet Ihnen die Möglichkeit, Eigenleistungen in Form einer Muskelhypothek einzubringen, wodurch Sie Kosten sparen können. Unsere umfassende Beratung stellt sicher, dass Ihre Vorstellungen und Wünsche perfekt in die Planung Ihres neuen Zuhauses einfließen. Wir bieten Ihnen verschiedene Dachvarianten, Geschossoptionen und eine individuelle Planung, um Ihr Traumhaus Realität werden zu lassen.
Karte wird geladen...
Objektstandort
36199 Rotenburg am der Fulda
Kontaktanfrage senden
Über den Anbieter
STREIF Haus GmbH
Josef-Streif-Straße 1
54595 Weinsheim
Kontakt
| Mobil | +49 172 5852452 |
| Website | www.streif.de |
Ansprechpartner/in
Frau Isabell Herwig - STREIF Handelsvertreter
Weitere Angebote des Anbieters
20
Sehr schöne Stadtvilla in erstklassiger Lage von St. ...
Haus
66386 St. Ingbert
Viel Platz und von Licht erfüllte Räume bietet diese traumhafte Stadtvilla. Im Erdgeschoss bildet der offen gestaltete Wohn-, Ess- und Kochbereich mit 49 m² das Herzstück des Hauses. Der gesamte Wohnbereich wird von ...
608.000 €
Kaufpreis
186 m²
Wohnfläche
5
Zimmer
30
STREIF baut Euer perfektes Zuhause
Haus
76707 Hambrücken
Das zweieinhalbgeschossige Mehrfamilienhaus mit zwei Wohnungen überzeugt mit einer klassisch eleganten Architektur mit Satteldach und zwei behaglichen Terrassen. Der Hausentwurf kann mit Stahlbalkonen an der ...
1.293.936 €
Kaufpreis
358 m²
Wohnfläche
18
Zimmer
30
STREIF baut Euer perfektes Zuhause
Haus
76707 Hambrücken
Das zweigeschossige Mehrfamilienhaus mit zwei Wohnungen überzeugt mit einer klassisch eleganten Architektur mit Walmdach und zwei behaglichen Terrassen. Der Hausentwurf kann mit Stahlbalkonen an der Gartenseite ...
1.139.664 €
Kaufpreis
301 m²
Wohnfläche
18
Zimmer
30
STREIF baut Euer perfektes Zuhause
Haus
76707 Hambrücken
Das zweigeschossige Mehrfamilienhaus mit zwei Wohnungen überzeugt mit einer klassisch eleganten Architektur mit Walmdach und einer behaglichen Terrasse. Der Hausentwurf kann mit einem Carport und einer darüberliegenden ...
828.414 €
Kaufpreis
186 m²
Wohnfläche
10
Zimmer
17
STREIF baut Euer perfektes Zuhause
Haus
76707 Hambrücken
STREIF-Villa 4: Exklusives Wohnen mit Flachdach, zwei Erkern, Galerie und Dachterrasse Der Entwurf der exklusiven STREIF-Villa 4 bietet seinen Bewohnern zahlreiche luxuriöse Merkmale, darunter eine zweigeschossige ...
950.650 €
Kaufpreis
210 m²
Wohnfläche
8
Zimmer