Ansprechendes Luxus-Massivhaus (schlüsselfertig, inkl. Grundstück)
595.000 €
Kaufpreis
116 m²
Wohnfläche
4
Zimmer
immobilien.de Nr.: 9389441
Objektnummer: WI-3492-MW
Kaufpreis
| Kaufpreis | 595.000 € |
| Maklerprovision | keine |
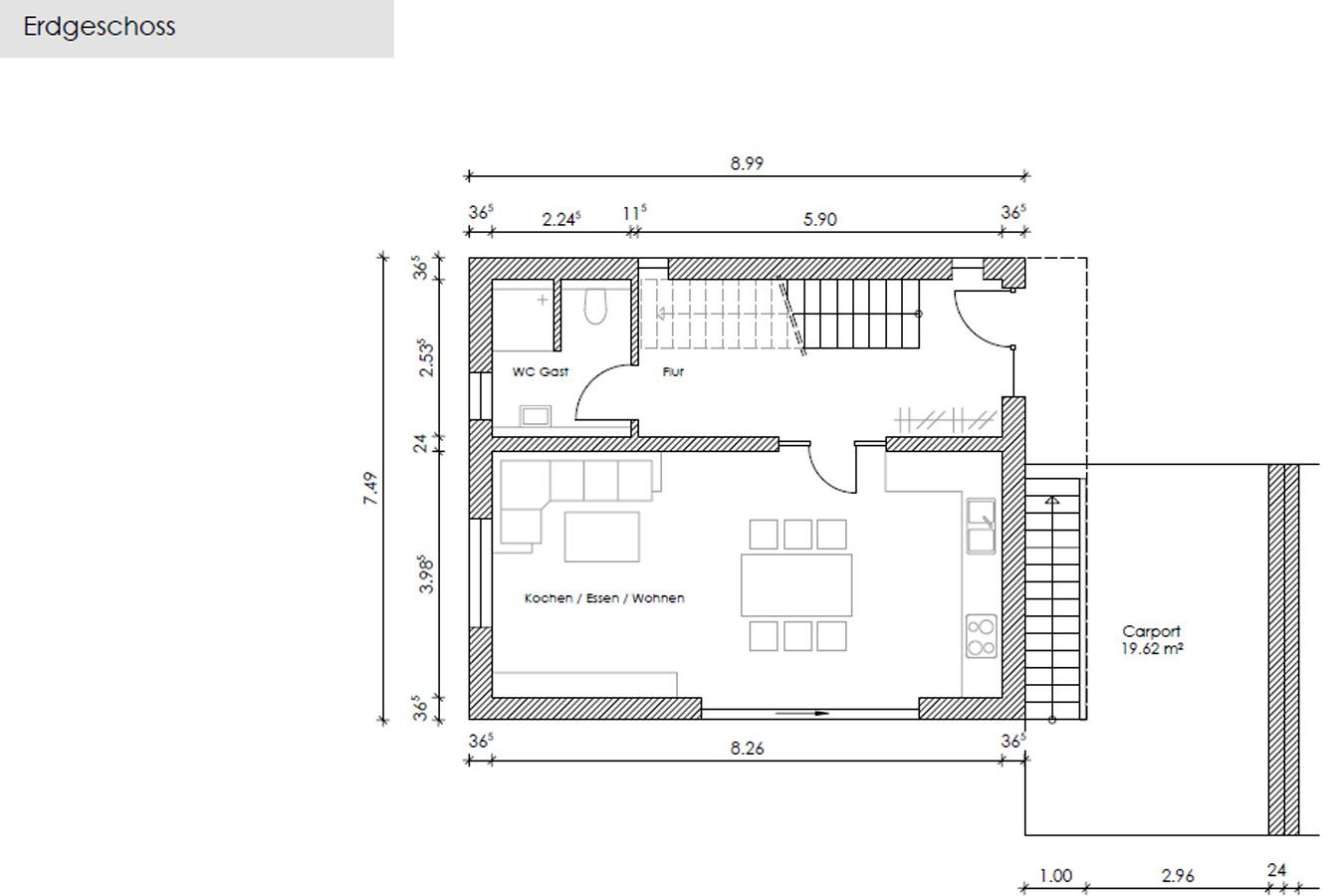
Wohnfläche, Grundstück & Bausubstanz
| Wohnfläche | 116 m² |
| Grundstücksfläche | 209 m² |
| Zimmer | 4 |
| Baujahr | 2026 |
| Verfügbar ab | ca.10 Mon. nach Kauf |
| Zustand | Erstbezug |
Energie
| Energieausweistyp | Bedarfsausweis |
| Gültig bis | 2034-11-25 |
| Baujahr (laut Energieausweis) | 2026 |
| Energieeffizienzklasse | A+ |
| Endenergiebedarf | 14.80 |
| Heizungsart | Zentralheizung, Fußbodenheizung |
| Wesentlicher Energieträger | Luftwp |
| Energieträger/Befeuerung | Luft-Wärme-Pumpe |
Beschreibung der Immobilie
Mit Qualität von regionalen Handwerkern gebaut - Großzügiges und modernes Einfamilienhaus in bester Bauqualität, mit vielen angenehmen Extras.
Die ökologischen Naturprodukte und die effiziente Bauweise sorgen für ein nachhaltiges neues Zuhause das in einer ruhigen Nebenstraße liegt und somit ideal zur jungen Familie passt. Die effiziente Wärmepumpe rundet das ökologisch-effiziente Paket ab!
Beim Bau des modernen Hauses wird besonderen Wert auf ökologische Baustoffe gelegt. Die verwendeten Naturprodukte wie z.B. reiner Kalkputz innen (Kalkputz Klima RK 38) in Verbindung mit hochwertigen, wohn-gesunden Farben bilden in Kombination mit der geschmackvollen, modernen und hochwertigen Ausstattung ein perfektes Wohngefühl. Edle Parkettböden, hochwertige Fliesen, ein modernes und sparsames Heizsystem, elektrische Rollläden, ansprechendes Design, Optik und vieles mehr heben sich deutlich von anderen Angeboten am Markt ab. Das hochwertige Haus wird ca. 10 Monate nach Kauf fertiggestellt auf einem bereits vom Bauträger erworbenen Grundstück.
Die ökologischen Naturprodukte und die effiziente Bauweise sorgen für ein nachhaltiges neues Zuhause das in einer ruhigen Nebenstraße liegt und somit ideal zur jungen Familie passt. Die effiziente Wärmepumpe rundet das ökologisch-effiziente Paket ab!
Beim Bau des modernen Hauses wird besonderen Wert auf ökologische Baustoffe gelegt. Die verwendeten Naturprodukte wie z.B. reiner Kalkputz innen (Kalkputz Klima RK 38) in Verbindung mit hochwertigen, wohn-gesunden Farben bilden in Kombination mit der geschmackvollen, modernen und hochwertigen Ausstattung ein perfektes Wohngefühl. Edle Parkettböden, hochwertige Fliesen, ein modernes und sparsames Heizsystem, elektrische Rollläden, ansprechendes Design, Optik und vieles mehr heben sich deutlich von anderen Angeboten am Markt ab. Das hochwertige Haus wird ca. 10 Monate nach Kauf fertiggestellt auf einem bereits vom Bauträger erworbenen Grundstück.
Ausstattungsmerkmale
| Anzahl der Etagen im Haus | 2 |
| Küche | Offene Küche |
| Bad | 2 |
| Boden | Fliesen, Parkett |
| Garten | |
| Terrassen | 1 |
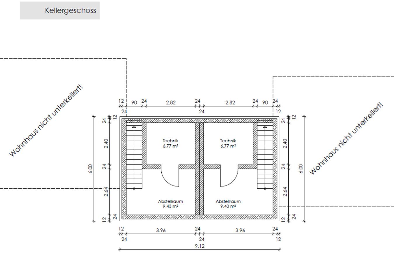
| Keller |
Ökologische Naturprodukte in Einklang mit exklusiver Ausstattung:
Baumaterial & Technik:
- Massivbauweise in wohngesundem Ziegel
- 2 Vollgeschosse
- Keimfarbe auf reiner Silikatbasis (innen)
- - - optional Lehmputz gegen Aufpreis möglich
- 2 Farbige Kunststofffenster weiß / anthrazit
- 3-fach Verglasung (U-Wert = 0,5 W/qm k)
- 2 hochwertige Tageslichtbäder
- Sonniger Wohnbereich mit ca. 33 m² als Herzstück
- Praktischer Hauswirtschaftsraum im OG
- Angenehme, einzeln regelbare Fußbodenheizung
- Anschluss für eine Wallbox
- Sparsame Luft-Wärmepumpe
- Einzäunung, Terrasse, Pflaster
Innenausstattung:
- Hochwertige Parkettböden oder Fliesen
- Luxus-Bad mit Walk-In-Dusche und Badewanne
- Elektrische Rollläden
OPTIONAL (nicht im Kaufpreis enthalten):
- PV-Anlage, Speicherakku
- Außenanlagen
*Abbildung mit Außenanlagen, Garage, Zaun, Mobiliar und Leuchtmittel dienen der Illustration und sind nicht im Kaufpreis enthalten (siehe Baubeschreibung)
Baumaterial & Technik:
- Massivbauweise in wohngesundem Ziegel
- 2 Vollgeschosse
- Keimfarbe auf reiner Silikatbasis (innen)
- - - optional Lehmputz gegen Aufpreis möglich
- 2 Farbige Kunststofffenster weiß / anthrazit
- 3-fach Verglasung (U-Wert = 0,5 W/qm k)
- 2 hochwertige Tageslichtbäder
- Sonniger Wohnbereich mit ca. 33 m² als Herzstück
- Praktischer Hauswirtschaftsraum im OG
- Angenehme, einzeln regelbare Fußbodenheizung
- Anschluss für eine Wallbox
- Sparsame Luft-Wärmepumpe
- Einzäunung, Terrasse, Pflaster
Innenausstattung:
- Hochwertige Parkettböden oder Fliesen
- Luxus-Bad mit Walk-In-Dusche und Badewanne
- Elektrische Rollläden
OPTIONAL (nicht im Kaufpreis enthalten):
- PV-Anlage, Speicherakku
- Außenanlagen
*Abbildung mit Außenanlagen, Garage, Zaun, Mobiliar und Leuchtmittel dienen der Illustration und sind nicht im Kaufpreis enthalten (siehe Baubeschreibung)
Sonstige Informationen
Bitte führen Sie Ihre Anfrage digital durch, somit erhalten Sie zeitnah einen ersten und schnelleren Überblick zu unserem Angebot.
Weitere Informationen finden Sie auch unter: www.das-maklerteam.de
Immobilienbewertung online: Sie fragen sich, was Ihre Immobilie heute wert ist?
Auf www.ImmobewertungOnline.de können Sie bei uns selbst eine kostenlose Wohnmarktanalyse erstellen. Geben Sie die Eckdaten der Immobilie ein und erhalten Sie umgehend die Bewertung per Mail zugesandt. -- SCHNELL - BEQUEM - ONLINE --
Die Wohnmarktanalyse enthält den unabhängigen und tagesaktuellen iib-Immobilien-Richtwert. Grundlage ist das gesetzlich normierte Verfahren zur Wertermittlung unter Berücksichtigung der spezifischen Lage der Immobilie, aktuellen Vergleichspreisen und Ihren Angaben.
Angebot im qualifizierten Makler-Alleinauftrag. Bei allen Angaben handelt es sich um Angaben des Eigentümers bzw. Dritter. Trotz regelmäßiger Prüfung von Daten, Bildern und Informationen übernehmen wir keine Haftung für die Richtigkeit der Angaben. Ebenso wenig für die Verfügbarkeit des Angebotes bei Vermietung oder Verkauf. Die Informationen in Exposés und auf unseren Webseiten ersetzen keine persönliche Beratung! Wir behalten uns das Recht vor, Änderungen oder Ergänzungen der bereitgestellten Informationen jederzeit vorzunehmen. Copyright © aller Texte und Bilder: Wüstenrot Immobilien Landsberg.
Für alle Angebote gelten unsere Allgemeinen Geschäftsbedingungen.
Weitere Informationen finden Sie auch unter: www.das-maklerteam.de
Immobilienbewertung online: Sie fragen sich, was Ihre Immobilie heute wert ist?
Auf www.ImmobewertungOnline.de können Sie bei uns selbst eine kostenlose Wohnmarktanalyse erstellen. Geben Sie die Eckdaten der Immobilie ein und erhalten Sie umgehend die Bewertung per Mail zugesandt. -- SCHNELL - BEQUEM - ONLINE --
Die Wohnmarktanalyse enthält den unabhängigen und tagesaktuellen iib-Immobilien-Richtwert. Grundlage ist das gesetzlich normierte Verfahren zur Wertermittlung unter Berücksichtigung der spezifischen Lage der Immobilie, aktuellen Vergleichspreisen und Ihren Angaben.
Angebot im qualifizierten Makler-Alleinauftrag. Bei allen Angaben handelt es sich um Angaben des Eigentümers bzw. Dritter. Trotz regelmäßiger Prüfung von Daten, Bildern und Informationen übernehmen wir keine Haftung für die Richtigkeit der Angaben. Ebenso wenig für die Verfügbarkeit des Angebotes bei Vermietung oder Verkauf. Die Informationen in Exposés und auf unseren Webseiten ersetzen keine persönliche Beratung! Wir behalten uns das Recht vor, Änderungen oder Ergänzungen der bereitgestellten Informationen jederzeit vorzunehmen. Copyright © aller Texte und Bilder: Wüstenrot Immobilien Landsberg.
Für alle Angebote gelten unsere Allgemeinen Geschäftsbedingungen.
Karte wird geladen...
Objektstandort
86807 Buchloe
Lage & Infrastruktur
Objektstandort
86807 Buchloe
Das exklusive Haus befindet sich in einem ruhigen und dennoch zentralen Wohngebiet in der Stadt Buchloe mit kurzem Fuß-Weg zum Bahnhof (demnächst noch schneller nach München mit der geplanten S-Bahn S-24X) bzw. Besorgungen des täglichen Bedarfs sowie Ärzte und Apotheken.
Eine absolut perfekte Lage in Buchloe:
Zu Fuß erreichen Sie den Kindergarten, Grund-, Haupt- und Realschule sowie das Gymnasium und ebenfalls alle Einkaufs-Möglichkeiten (Innenstadt) und Supermärkte in jeweils weniger als 5 Minuten.
Die Autobahn A 96 München - Lindau ist ebenfalls nur wenige Autominuten entfernt und perfekt erreichbar, jedoch nicht hörbar.
Eine absolut perfekte Lage in Buchloe:
Zu Fuß erreichen Sie den Kindergarten, Grund-, Haupt- und Realschule sowie das Gymnasium und ebenfalls alle Einkaufs-Möglichkeiten (Innenstadt) und Supermärkte in jeweils weniger als 5 Minuten.
Die Autobahn A 96 München - Lindau ist ebenfalls nur wenige Autominuten entfernt und perfekt erreichbar, jedoch nicht hörbar.
Kontaktanfrage senden
Über den Anbieter
Wüstenrot Immobilien
Schongauer Straße 20
86899 Landsberg
Kontakt
| Telefon | 00498191648300 |
| Fax | 004981916483098 |
| Website | www.Das-Maklerteam.de |
Ansprechpartner/in
Herr Günther Strehle