Exklusives Mehrfamilienhaus mit viel Ausbaupotenzial !!!
1.399.000 €
Kaufpreis
375 m²
Wohnfläche
10
Zimmer
immobilien.de Nr.: 9342902
Objektnummer: 221765
Preise & Kosten
| Kaufpreis | 1.399.000 € |
| Nebenkosten | keine Angabe |
| Maklerprovision | 4,76 % (inkl. MwSt.) |
Größe & Zustand
| Wohnfläche | 375 m² |
| Grundstücksfläche | 1.048 m² |
| Zimmer | 10 |
| Baujahr | 1900 |
| Verfügbar ab | nach Absprache |
| Zustand | Gepflegt |
Energie
| Energieausweistyp | Verbrauch |
| Ausstellungsdatum | 19. 11. 2025 |
| Baujahr (laut Energieausweis) | 1900 |
| Energieeffizienzklasse | B |
| Energieverbrauchkennwert | 70.7 kWh/(m²*a) |
| Heizungsart | Zentralheizung |
| Wesentlicher Energieträger | Holz-Schnitzel |
| Energieträger/Befeuerung | Holz |
Objektbeschreibung
Dieses außergewöhnliche Mehrfamilienhaus ca. aus dem Jahre 1900 (genaues Baujahr unbekannt) verbindet historischen Charme mit modernem Wohnkomfort.
Das Anwesen wurde 2012-2023 umfassend kernsaniert und bietet auf ca. 375 qm Wohnfläche derzeit drei Wohneinheiten.
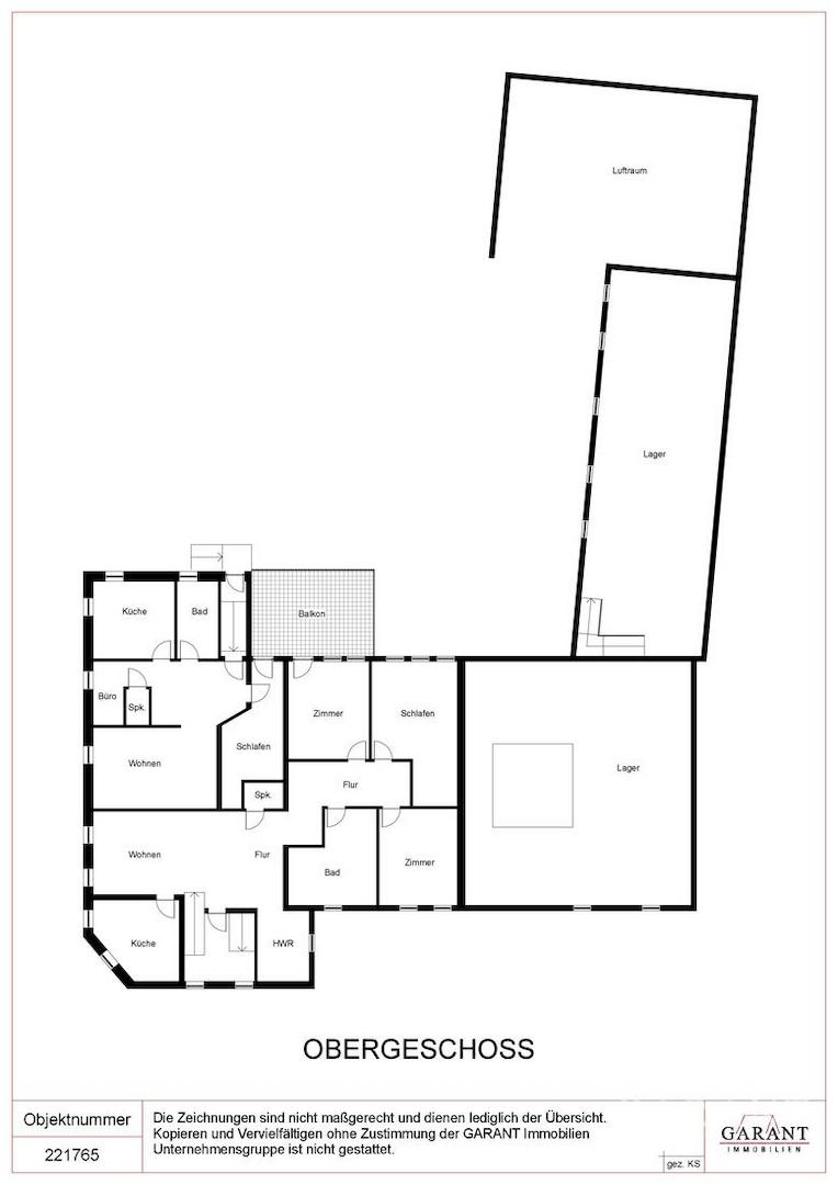
Das Dachgeschoss (Neubau) ist vollständig ausgebaut und hat ca. 440 qm - hier wartet nur noch die Fertigstellung auf Ihre persönliche Note. So entsteht Raum für zusätzliche Wohnungen, ein Atelier oder großzügige Arbeitsbereiche.
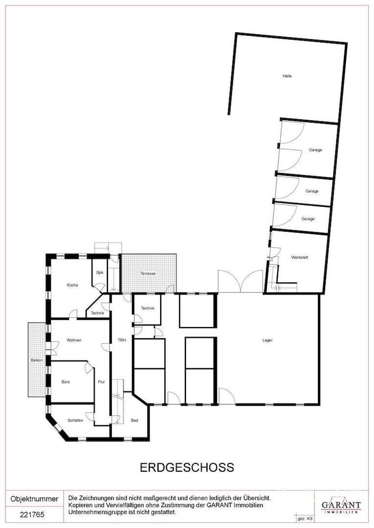
Auf dem ca. 1048 qm großen Grundstück befinden sich zudem zahlreiche Nutzflächen (ca. 878 qm) darunter Maschinen- und Lagerhalle, Werkstatt sowie 4 Garagen und ca. 7 Stellplätze.
Diese Anwesen eignet sich ideal für Mehrgenerationenwohnen, Wohnen und Arbeiten unter einem Dach oder als attraktive Kapitalanlage mit Erweiterungspotenzial.
Weitere Angebote unter www.GARANT-IMMO.de
Das Anwesen wurde 2012-2023 umfassend kernsaniert und bietet auf ca. 375 qm Wohnfläche derzeit drei Wohneinheiten.
Das Dachgeschoss (Neubau) ist vollständig ausgebaut und hat ca. 440 qm - hier wartet nur noch die Fertigstellung auf Ihre persönliche Note. So entsteht Raum für zusätzliche Wohnungen, ein Atelier oder großzügige Arbeitsbereiche.
Auf dem ca. 1048 qm großen Grundstück befinden sich zudem zahlreiche Nutzflächen (ca. 878 qm) darunter Maschinen- und Lagerhalle, Werkstatt sowie 4 Garagen und ca. 7 Stellplätze.
Diese Anwesen eignet sich ideal für Mehrgenerationenwohnen, Wohnen und Arbeiten unter einem Dach oder als attraktive Kapitalanlage mit Erweiterungspotenzial.
Weitere Angebote unter www.GARANT-IMMO.de
Ausstattung
| Anzahl der Etagen im Haus | 2 |
| Küche | Einbauküche |
| Bad | 3 |
| Boden | Fliesen, Laminat, Dielen |
| Balkone | 1 |
- EG: 3 Zimmer ca. 130 qm, OG: 4 Zimmer ca. 155 qm,
OG: 2,5 Zimmer ca. 86 qm
- Fliesen-, Laminat- und teilweise Holzdielen
- Weru-Fenster - dreifach verglast, isoliert und mit Schallschutz
- drei Tageslichtbäder mit zwei Wannen, drei Duschen,
drei Waschbecken und drei WC's
- drei Einbauküchen
- Fröhling-Hackschnitzel-Pelletsheizung (2012)
- Schwedenofen im OG (Anschlüsse in jeder Wohnung)
- drei Balkone
- Terrasse
- Kabel-TV/Sat
- Multimedia-Infrastuktur in allen Räumen
- zwei Doppelgaragen
- ca. 7 Stellplätze im Freien
- Treppenlift
- das ganze Anwesen ist videoüberwacht
OG: 2,5 Zimmer ca. 86 qm
- Fliesen-, Laminat- und teilweise Holzdielen
- Weru-Fenster - dreifach verglast, isoliert und mit Schallschutz
- drei Tageslichtbäder mit zwei Wannen, drei Duschen,
drei Waschbecken und drei WC's
- drei Einbauküchen
- Fröhling-Hackschnitzel-Pelletsheizung (2012)
- Schwedenofen im OG (Anschlüsse in jeder Wohnung)
- drei Balkone
- Terrasse
- Kabel-TV/Sat
- Multimedia-Infrastuktur in allen Räumen
- zwei Doppelgaragen
- ca. 7 Stellplätze im Freien
- Treppenlift
- das ganze Anwesen ist videoüberwacht
Sonstige Informationen
- 2012-2023 kernsaniert - neue Heizung Hackschnitzel/
Pelletsheizung, Elektrik, neues Dach mit DG Neubau,
Innendämmung
- Böden, Bäder, Wärmeaustausch-Filteranlage, Lichter mit Dimmer
und Bewegungsmelder
- 2023 neues Dach Scheune mit Photovoltaik 30 KW
Pelletsheizung, Elektrik, neues Dach mit DG Neubau,
Innendämmung
- Böden, Bäder, Wärmeaustausch-Filteranlage, Lichter mit Dimmer
und Bewegungsmelder
- 2023 neues Dach Scheune mit Photovoltaik 30 KW
Lage des Objektes
Das Objekt befindet sich zentral im Ortskern - Grundschulen, Kindergarten und öffentliche Verkehrsmittel sind in wenigen Minuten erreichbar.
Lokale Einkaufsmöglichkeiten sind vorhanden - natürlich fehlen Metzger und Bäcker dabei nicht.
Weiterführende Schulen befinden sich in Ellwangen, Abtsgmünd und Aalen.
Das Freizeitangebot ist ebenfalls vielfältig, ob Golfen, Reiten, Raddeln, Wandern oder Schwimmen in den wunderschönen Badeseen.
Lokale Einkaufsmöglichkeiten sind vorhanden - natürlich fehlen Metzger und Bäcker dabei nicht.
Weiterführende Schulen befinden sich in Ellwangen, Abtsgmünd und Aalen.
Das Freizeitangebot ist ebenfalls vielfältig, ob Golfen, Reiten, Raddeln, Wandern oder Schwimmen in den wunderschönen Badeseen.
Anbieter kontaktieren
Kontakt
| Telefon | 07171/60 453-0 |
| Fax | 07171/60 453-20 |
| Website | www.garant-immo.de |
