Renditestark & Zentral: Voll vermietetes Wohn- und Geschäftshaus in Bestlage von Neustadt b. Coburg!
279.000 €
Kaufpreis
110 m²
Wohnfläche
9
Zimmer
immobilien.de Nr.: 9341926
Objektnummer: 329007
Preise & Kosten
| Kaufpreis | 279.000 € |
| Nebenkosten | keine Angabe |
| Maklerprovision | 3,57 % (inkl. MwSt.) |
Größe & Zustand
| Wohnfläche | 110 m² |
| Grundstücksfläche | 320 m² |
| Zimmer | 9 |
| Baujahr | 1900 |
| Verfügbar ab | Vermietet |
| Zustand | Nach Vereinbarung |
Energie
| Energieausweistyp | Bedarfsausweis |
| Ausstellungsdatum | 01. 09. 2022 |
| Baujahr (laut Energieausweis) | 1900 |
| Energieeffizienzklasse | G |
| Endenergiebedarf | 211.5 |
| Heizungsart | Zentralheizung |
| Wesentlicher Energieträger | Öl |
| Energieträger/Befeuerung | Öl |
Objektbeschreibung
Dieses Zentral gelegene Renditeobjekt überzeugt durch seine erstklassige Lage direkt am Marktplatz der Kreisstadt Neustadt b. Coburg sowie durch seine vielfältigen Nutzungsoptionen.
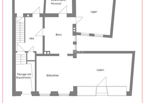
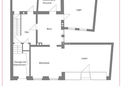
Im Erdgeschoss befindet sich eine großzügige Ladeneinheit mit ca. 130 qm Fläche und einer ca. 7 m breiten Schaufensterfront, ideal für Einzelhandel, Dienstleister, Friseur oder Barbershop sowie Museum und Ausstellungen.
Das Obergeschoss bietet weitere ca. 100 qm Fläche, die sich hervorragend als Büro, Kanzlei oder Praxis nutzen lassen. Beide Einheiten verfügen über separate Zugänge und sind flexibel teilbar.
Der rückwärtige Wohnanbau ist solide langzeitvermietet und zeugt von einer gefestigten Mieterstruktur. Die Wohnungen befinden sich in einem gepflegten Zustand und werden von den Bestandsmietern mit hohem Verantwortungsbewusstsein bewohnt.
Historisch wurde das Objekt stets von namhaften Dienstleistungsunternehmen sowie öffentlich-rechtlich orientierten Institutionen genutzt, ein Beleg für die herausragende Lage und die infrastrukturelle Qualität des Standorts.
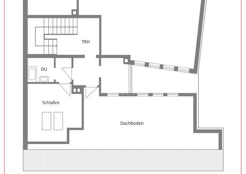
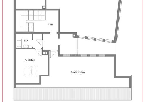
Kein zwingendes aber mögliches Potenzial bietet der weitläufige Dachstuhl mit angeschlossener Dachterrasse. Nach entsprechender Modernisierung lässt sich hier zusätzlicher Wohn- oder Arbeitsraum schaffen, ideal für kreative Konzepte!
Das Gebäude wird derzeit über mehrere Heizsysteme versorgt: Eine Gastherme, eine Ölzentralheizung sowie ein zusätzlicher Holzofen sorgen für flexible Wärmeversorgung.
Weitere Angebote unter www.GARANT-IMMO.de
Im Erdgeschoss befindet sich eine großzügige Ladeneinheit mit ca. 130 qm Fläche und einer ca. 7 m breiten Schaufensterfront, ideal für Einzelhandel, Dienstleister, Friseur oder Barbershop sowie Museum und Ausstellungen.
Das Obergeschoss bietet weitere ca. 100 qm Fläche, die sich hervorragend als Büro, Kanzlei oder Praxis nutzen lassen. Beide Einheiten verfügen über separate Zugänge und sind flexibel teilbar.
Der rückwärtige Wohnanbau ist solide langzeitvermietet und zeugt von einer gefestigten Mieterstruktur. Die Wohnungen befinden sich in einem gepflegten Zustand und werden von den Bestandsmietern mit hohem Verantwortungsbewusstsein bewohnt.
Historisch wurde das Objekt stets von namhaften Dienstleistungsunternehmen sowie öffentlich-rechtlich orientierten Institutionen genutzt, ein Beleg für die herausragende Lage und die infrastrukturelle Qualität des Standorts.
Kein zwingendes aber mögliches Potenzial bietet der weitläufige Dachstuhl mit angeschlossener Dachterrasse. Nach entsprechender Modernisierung lässt sich hier zusätzlicher Wohn- oder Arbeitsraum schaffen, ideal für kreative Konzepte!
Das Gebäude wird derzeit über mehrere Heizsysteme versorgt: Eine Gastherme, eine Ölzentralheizung sowie ein zusätzlicher Holzofen sorgen für flexible Wärmeversorgung.
Weitere Angebote unter www.GARANT-IMMO.de
Ausstattung
| Anzahl der Etagen im Haus | 2 |
| Bad | 1 |
| Boden | Stein, Teppich, Laminat |
| Balkone | 1 |
Das Anbau-Hinterhaus sowie die dazugehörige Garage sind komplett vermietet und über eine Zufahrt von der Rückseite erreichbar.
Durch den Hof und Garten kommen Sie im Erdgeschoss zu den Heizanlagen sowie zu den Nutzflächen/Räumen. Hier ist auch eine Verbindungstür zum Geschäftshaus. Im Hof befindet sich ein außenliegender Treppenaufgang zur Wohnung im Obergeschoss, diese hat ca. 110 qm.
* Ladenräume im Erdgeschoss des Geschäftshauses
mit Schaufenster-Front,
Ca. 130 qm, drei Räumlichkeiten, Küche und WC
* Büroräume im Obergeschoss des Geschäftshauses:
Ca. 100 qm, drei Räumlichkeiten, Flur
Küche und 2 x WC
* Massiver Altbau, teilweise unterkellert
Durch den Hof und Garten kommen Sie im Erdgeschoss zu den Heizanlagen sowie zu den Nutzflächen/Räumen. Hier ist auch eine Verbindungstür zum Geschäftshaus. Im Hof befindet sich ein außenliegender Treppenaufgang zur Wohnung im Obergeschoss, diese hat ca. 110 qm.
* Ladenräume im Erdgeschoss des Geschäftshauses
mit Schaufenster-Front,
Ca. 130 qm, drei Räumlichkeiten, Küche und WC
* Büroräume im Obergeschoss des Geschäftshauses:
Ca. 100 qm, drei Räumlichkeiten, Flur
Küche und 2 x WC
* Massiver Altbau, teilweise unterkellert
Sonstige Informationen
Energiebedarfsausweis
Energiekennwert: 211,50 kWh/(qm*a)
Energieeffizienz: Klasse G (<250)
Heizung: Zentralheizung mit Öl
Baujahr laut Energieausweis: 1900
Energiekennwert: 211,50 kWh/(qm*a)
Energieeffizienz: Klasse G (<250)
Heizung: Zentralheizung mit Öl
Baujahr laut Energieausweis: 1900
Lage des Objektes
Beste Innenstadtlage !!!!
Dieses Objekt befindet sich in zentralster Lage von Neustadt bei Coburg, direkt am belebten Marktplatz mit Blick auf die historische Stadtkirche und die waldreiche Hügellandschaft im Hintergrund. Eine gewerbliche Top-Adresse mit hoher Sichtbarkeit und optimaler Erreichbarkeit für Kunden, Klienten und Besucher.
Der Bahnhof ist fußläufig in ca. 10 Minuten erreichbar, ebenso wie zahlreiche Einkaufsmöglichkeiten, Apotheken, Ärzte und Einrichtungen des täglichen Bedarfs. Die Anbindung an die B4 sowie die Autobahn A73 sorgt für gute regionale Erreichbarkeit, u.a. Richtung Coburg, das nur rund 18 km entfernt liegt.
Rund um den Marktplatz stehen ausreichend Parkmöglichkeiten zur Verfügung, teilweise direkt am Objekt oder in unmittelbarer Nähe.
Neustadt bei Coburg ist als traditionsreiche Puppenstadt bekannt, bietet vielfältige Freizeit- und Naturerlebnisse und verbindet kleinstädtisches Flair mit hoher Lebensqualität.
Dieses Objekt befindet sich in zentralster Lage von Neustadt bei Coburg, direkt am belebten Marktplatz mit Blick auf die historische Stadtkirche und die waldreiche Hügellandschaft im Hintergrund. Eine gewerbliche Top-Adresse mit hoher Sichtbarkeit und optimaler Erreichbarkeit für Kunden, Klienten und Besucher.
Der Bahnhof ist fußläufig in ca. 10 Minuten erreichbar, ebenso wie zahlreiche Einkaufsmöglichkeiten, Apotheken, Ärzte und Einrichtungen des täglichen Bedarfs. Die Anbindung an die B4 sowie die Autobahn A73 sorgt für gute regionale Erreichbarkeit, u.a. Richtung Coburg, das nur rund 18 km entfernt liegt.
Rund um den Marktplatz stehen ausreichend Parkmöglichkeiten zur Verfügung, teilweise direkt am Objekt oder in unmittelbarer Nähe.
Neustadt bei Coburg ist als traditionsreiche Puppenstadt bekannt, bietet vielfältige Freizeit- und Naturerlebnisse und verbindet kleinstädtisches Flair mit hoher Lebensqualität.
Anbieter kontaktieren
Kontakt
| Telefon | 0951/96 86 510 |
| Fax | 0951/96 86 51 20 |
| Website | www.garant-immo.de |
