***Gastronomie neben Tennisclub - flexible Nutzung - 3 Wohnungen***
585.000 €
Kaufpreis
269 m²
Wohnfläche
10
Zimmer
immobilien.de Nr.: 9284198
Objektnummer: 786159
Preise & Kosten
| Kaufpreis | 585.000 € |
| Nebenkosten | keine Angabe |
| Maklerprovision | 4,76 % (inkl. MwSt.) |
Größe & Zustand
| Wohnfläche | 269 m² |
| Grundstücksfläche | 2.935 m² |
| Zimmer | 10 |
| Baujahr | 1974 |
| Verfügbar ab | nach Absprache |
| Zustand | Gepflegt |
Energie
| Energieausweistyp | Bedarfsausweis |
| Ausstellungsdatum | 30. 10. 2025 |
| Baujahr (laut Energieausweis) | 1981 |
| Energieeffizienzklasse | H |
| Endenergiebedarf | 267.4 |
| Heizungsart | Zentralheizung |
| Wesentlicher Energieträger | Gas |
| Energieträger/Befeuerung | Gas |
Objektbeschreibung
Große Gewerbeeinheit mit bisheriger Nutzung als Gastronomiebetrieb inkl. Biergarten, Stellplätzen und weiterer Gewerbeeinheit mit individueller Nutzung. Zusätzlich drei separate Wohneinheiten für privates Wohnen, für Familien, die großzügiges Wohnen auf einem großem Grundstück verwirklichen möchten. Oder als sichere Einnahmequelle durch Vermietung, zur Eigennutzung oder mit einer Umgestaltung zu einem Hostel oder Gästehaus. Damit bietet sich eine seltene Gelegenheit, Gastronomie/Gewerbe und Wohnraum in einer Immobilie zu vereinen.
Ein besonderes Highlight ist der großzügige Biergarten mit rund 80 Sitzplätzen, der in den warmen Monaten zum Treffpunkt für Gäste aus der Region und dem benachbarten Tennisverein wird. Zehn Außenstellplätze sorgen für bequemes Ankommen.
Nachfolgend ein paar Infos zum Objekt:
* Grundstücksgröße: ca. 2.935 qm
* Gewerblich genutzte Fläche ca. 415 qm
* Biergarten ca. 80 qm
* 10 Kfz-Stellplätze
* Sehr ruhige Umgebung - Feiern kein Problem
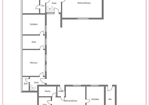
* Insgesamt 3 Wohneinheiten mit ca. 270 qm Wohnflächen
alle im EG
* WE 1: Einliegerwohnung ca. 78 qm
* WE 2: ca. 78 qm
* WE 3: ca. 113 qm mit großer Terrasse und eigenem Garten
* Durch den Ausbau der Dachgeschosse in WE 2 und WE 3
entstanden ca. 120 qm zusätzliche Wohnfläche.
* Ein Teil des überdurchschnittlich großen Gartens mit
Tennisplatz wurde an den benachbarten Tennisverein verpachtet.
* Das Inventar, wie Küche, Theke, komplette Gaststubeneinrichtung
kann übernommen werden.
* mehrere Gewerbe möglich (z.B. Untervermietung einer Teilfläche)
Gerne senden wir Ihnen weiterführende Informationen oder vereinbaren einen persönlichen Besichtigungstermin. Wir freuen uns auf Ihre Anfrage!
Weitere Angebote unter www.GARANT-IMMO.de
Ein besonderes Highlight ist der großzügige Biergarten mit rund 80 Sitzplätzen, der in den warmen Monaten zum Treffpunkt für Gäste aus der Region und dem benachbarten Tennisverein wird. Zehn Außenstellplätze sorgen für bequemes Ankommen.
Nachfolgend ein paar Infos zum Objekt:
* Grundstücksgröße: ca. 2.935 qm
* Gewerblich genutzte Fläche ca. 415 qm
* Biergarten ca. 80 qm
* 10 Kfz-Stellplätze
* Sehr ruhige Umgebung - Feiern kein Problem
* Insgesamt 3 Wohneinheiten mit ca. 270 qm Wohnflächen
alle im EG
* WE 1: Einliegerwohnung ca. 78 qm
* WE 2: ca. 78 qm
* WE 3: ca. 113 qm mit großer Terrasse und eigenem Garten
* Durch den Ausbau der Dachgeschosse in WE 2 und WE 3
entstanden ca. 120 qm zusätzliche Wohnfläche.
* Ein Teil des überdurchschnittlich großen Gartens mit
Tennisplatz wurde an den benachbarten Tennisverein verpachtet.
* Das Inventar, wie Küche, Theke, komplette Gaststubeneinrichtung
kann übernommen werden.
* mehrere Gewerbe möglich (z.B. Untervermietung einer Teilfläche)
Gerne senden wir Ihnen weiterführende Informationen oder vereinbaren einen persönlichen Besichtigungstermin. Wir freuen uns auf Ihre Anfrage!
Weitere Angebote unter www.GARANT-IMMO.de
Ausstattung
| Boden | Fliesen, Laminat |
| Balkone | 1 |
* 1975 Hallenbau mit Anbau und Einliegerwohnung
* Bau des Wohnhauses (WE 3)
* 1984/1985 Erweiterung Anbau und Ausbau zur Gaststätte
* 1984 Einabu Gasheizung
* 1988/1989 Ausbau Werkhalle vorderer Teil
* 1990 Dachausbau Wohnhaus (WE 3) Teil
* 1993/1994 Ausbau Werkhalle hinterer Teil zum Festsaal
und Küche
* 1993 Umbau Heizung
* 2010 Dachausbau Teil 2 (Wohnhaus WE 3)
* 2011 Badsanierung und Flur (Wohnhaus WE 3)
* 2012 Wohnhaus (WE 3) Fenster erneuert
* 2017/2018 Wohnhaus (WE 3) Dachfenster erneuert,
Heizkörper, Böden, Decke
* 2019 Terrassenüberdachung
* Gartenhaus
Mittleres Wohnhaus (WE 2):
* 2012 Dachausbau und neues Bad
* 2014 im EG in WE 2 Badsanierung, Fenster, Fußböden, Wände
* 2022 Dachfenster erneuert
* Bau des Wohnhauses (WE 3)
* 1984/1985 Erweiterung Anbau und Ausbau zur Gaststätte
* 1984 Einabu Gasheizung
* 1988/1989 Ausbau Werkhalle vorderer Teil
* 1990 Dachausbau Wohnhaus (WE 3) Teil
* 1993/1994 Ausbau Werkhalle hinterer Teil zum Festsaal
und Küche
* 1993 Umbau Heizung
* 2010 Dachausbau Teil 2 (Wohnhaus WE 3)
* 2011 Badsanierung und Flur (Wohnhaus WE 3)
* 2012 Wohnhaus (WE 3) Fenster erneuert
* 2017/2018 Wohnhaus (WE 3) Dachfenster erneuert,
Heizkörper, Böden, Decke
* 2019 Terrassenüberdachung
* Gartenhaus
Mittleres Wohnhaus (WE 2):
* 2012 Dachausbau und neues Bad
* 2014 im EG in WE 2 Badsanierung, Fenster, Fußböden, Wände
* 2022 Dachfenster erneuert
Sonstige Informationen
Energiebedarfsausweis (Wohnen)
Energiekennwert: 267,40 kWh/(qm*a)
Energieeffizienz: Klasse H (>250)
Heizung: Zentralheizung mit Gas
Baujahr laut Energieausweis: 1981
Energiebedarfsausweis (Gewerbe)
Energiekennwert: Strom 25,70 kWh/(qm*a), Wärme 719,00 kWh/(qm*a)
Heizung: Zentralheizung mit Gas
Baujahr laut Energieausweis: 1981
Energiekennwert: 267,40 kWh/(qm*a)
Energieeffizienz: Klasse H (>250)
Heizung: Zentralheizung mit Gas
Baujahr laut Energieausweis: 1981
Energiebedarfsausweis (Gewerbe)
Energiekennwert: Strom 25,70 kWh/(qm*a), Wärme 719,00 kWh/(qm*a)
Heizung: Zentralheizung mit Gas
Baujahr laut Energieausweis: 1981
Lage des Objektes
Schöffengrund ist eine Gemeinde im Lahn-Dill-Kreis in Hessen und liegt nur wenige Kilometer südlich von Wetzlar. Der Ortsteil Schwalbach ist einer von sechs Ortsteilen der Gemeinde.
Gute Infrastruktur und Anbindung an den Nahverkehr und A45 und B49.
Gute Infrastruktur und Anbindung an den Nahverkehr und A45 und B49.
