Historisch - Modernes Familiendomizil
618.000 €
Kaufpreis
160 m²
Wohnfläche
5
Zimmer
immobilien.de Nr.: 9250406
Objektnummer: 645533
Preise & Kosten
| Kaufpreis | 618.000 € |
| Nebenkosten | keine Angabe |
| Maklerprovision | 2,97 % (inkl. MwSt.) |
Größe & Zustand
| Wohnfläche | 160 m² |
| Grundstücksfläche | 384 m² |
| Zimmer | 5 |
| Baujahr | 1905 |
| Verfügbar ab | Sofort frei |
| Zustand | Gepflegt |
Energie
| Energieausweistyp | Bedarfsausweis |
| Ausstellungsdatum | 17. 02. 2025 |
| Baujahr (laut Energieausweis) | 1905 |
| Energieeffizienzklasse | E |
| Endenergiebedarf | 154.7 |
| Heizungsart | Zentralheizung |
| Wesentlicher Energieträger | Gas |
| Energieträger/Befeuerung | Gas |
Objektbeschreibung
Wenn Sie auf der Suche nach einem einzigartigen Familiendomizil in Heilbronn sind, dann könnte es sein, dass Ihre Suche nun ein Ende hat.
Aus Alt mach NEU - das war die Idee der Familie, die vor ca. 12 Jahren die alte Kinderschule im Stadtteil Frankenbach erwarb. Mit Geschick und Ausdauer entstand im Laufe der kommenden beiden Jahre ein Stück Individualität: Ein zu Hause für eine Familie, die den Individualismus liebt. Außen Anno 1905 und innen 2015.
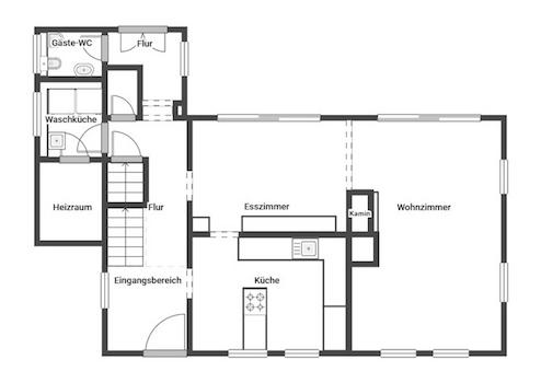
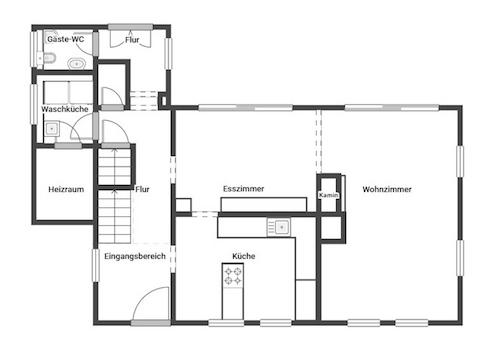
Alles wurde saniert, alles wurde erneuert. Entstanden ist ein geradliniges, ehrliches Einfamilienhaus. Klar strukturiert, um nicht zu sagen beinahe klassisch, finden Sie im Erdgeschoss mit dem Wohn- und Esszimmer den Lebensmittelpunkt, eine große Küche, Gäste-WC, Hauswirtschafts- und Technikraum. Im Dachgeschoss sind die privaten Räume und das Hauptbad. Der Spitzboden ist zur Nutzung ausgebaut. Auf der einen Seite wurde gearbeitet, auf der anderen spielten die Kids mit Ihrer Eisenbahn. Es gibt noch einen kleinen, sogenannten kalten Keller und natürlich 2 Garagen.
Insgesamt verteilt sich das alles auf ca. 160 qm Wohnfläche. Dazu kommt eine wirklich schöne, recht große Terrasse und, ganz wichtig und wie in den Bildern zu erkennen, das kleine Haus für die Kids. Auf ein paar weitere Highlights möchten wir verweisen:
- Den Holzofen mit Wassertasche im Wohnzimmer
- Die Klimaanlagen für die privaten Räume im Dachgeschoss und den Spitz
- Die hochwertige Einbauküche
- Die Solaranlage für Warmwasser und Heizung
- Die Ankleide am Schlafzimmer
Verkaufsgrund ist wie so oft der Umzug der gesamten Familie. Das geschah schweren Herzens und wird ein stückweit von der Hoffnung, dass das Anwesen in ähnliche Hände kommt, erleichtert.
Weitere Angebote unter www.GARANT-IMMO.de
Aus Alt mach NEU - das war die Idee der Familie, die vor ca. 12 Jahren die alte Kinderschule im Stadtteil Frankenbach erwarb. Mit Geschick und Ausdauer entstand im Laufe der kommenden beiden Jahre ein Stück Individualität: Ein zu Hause für eine Familie, die den Individualismus liebt. Außen Anno 1905 und innen 2015.
Alles wurde saniert, alles wurde erneuert. Entstanden ist ein geradliniges, ehrliches Einfamilienhaus. Klar strukturiert, um nicht zu sagen beinahe klassisch, finden Sie im Erdgeschoss mit dem Wohn- und Esszimmer den Lebensmittelpunkt, eine große Küche, Gäste-WC, Hauswirtschafts- und Technikraum. Im Dachgeschoss sind die privaten Räume und das Hauptbad. Der Spitzboden ist zur Nutzung ausgebaut. Auf der einen Seite wurde gearbeitet, auf der anderen spielten die Kids mit Ihrer Eisenbahn. Es gibt noch einen kleinen, sogenannten kalten Keller und natürlich 2 Garagen.
Insgesamt verteilt sich das alles auf ca. 160 qm Wohnfläche. Dazu kommt eine wirklich schöne, recht große Terrasse und, ganz wichtig und wie in den Bildern zu erkennen, das kleine Haus für die Kids. Auf ein paar weitere Highlights möchten wir verweisen:
- Den Holzofen mit Wassertasche im Wohnzimmer
- Die Klimaanlagen für die privaten Räume im Dachgeschoss und den Spitz
- Die hochwertige Einbauküche
- Die Solaranlage für Warmwasser und Heizung
- Die Ankleide am Schlafzimmer
Verkaufsgrund ist wie so oft der Umzug der gesamten Familie. Das geschah schweren Herzens und wird ein stückweit von der Hoffnung, dass das Anwesen in ähnliche Hände kommt, erleichtert.
Weitere Angebote unter www.GARANT-IMMO.de
Ausstattung
| Küche | Einbauküche |
| Bad | 1 |
| Boden | Fliesen, Parkett, Laminat |
Sonstige Informationen
- Kaminofen mit Wassertasche
- Doppelgarage
- Doppelgarage
Kontakt
| Telefon | 0931/32 93 76-0 |
| Fax | 0931/32 93 76-20 |
| Website | www.garant-immo.de |
