Geschichte zum Wohnen
345.000 €
Kaufpreis
180 m²
Wohnfläche
10
Zimmer
immobilien.de Nr.: 9247107
Objektnummer: 625102
Preise & Kosten
| Kaufpreis | 345.000 € |
| Nebenkosten | keine Angabe |
| Maklerprovision | 3,57 % (inkl. MwSt.) |
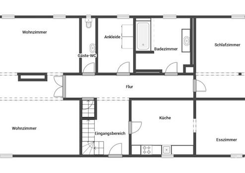
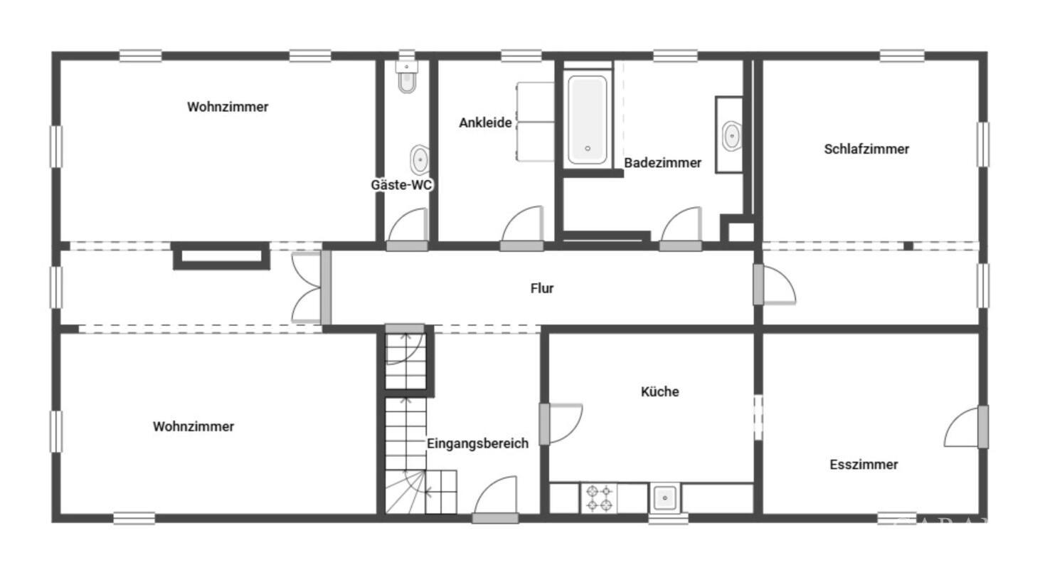
Größe & Zustand
| Wohnfläche | 180 m² |
| Grundstücksfläche | 706 m² |
| Zimmer | 10 |
| Baujahr | 1674 |
| Verfügbar ab | nach Absprache |
Objektbeschreibung
Manchmal gibt es absolut einzigartige Domizile. Nicht zwingend, weil sie hochmodern sind, sondern weil sich ein ungewöhnlicher Charakter in einem geschichtsträchtigen Gemäuer versteckt. Keine geraden Wände, keine rechten Winkel, keine estrichglatten Böden, aber jede Menge signifikante Geschichte. Bei Menschen, die solche Anwesen besitzen, da spielt das Wort ENERGIEAUSWEIS beim Thema Wohnqualität keine Rolle.
Sie mögen es schlicht und ergreifend individuell und einzigartig.
Und so eine Immobilie verkaufen wir in der Deutschordenstadt Bad Mergentheim:
Das Armen- und Siechhaus des St. Rochus Stiftes.
Wohl um 1674 wurde das kleine Armenhaus außerhalb der Stadtmauern von Mergentheim erbaut. Zum Ziele hatte es damals, den kranken, also siechenden, und verrückten, armen Leuten außerhalb der Stadt eine vernünftige Behausung zu schaffen. Damals wurde es von einem Siechenaufseher betrieben. Später wurde es vom "Spital zum Heiligen Geist" in Mergentheim erworben und betrieben. Zum Schluss diente es als Schwestern- und Ziviwohnheim bis es 2008 in Besitz des Sohnes einer charakterfesten und engagierten Mergentheimer Familie gelangte...
Was erwartet Sie nun:
- Ein Denkmal mit vielen Zimmern & zwei uralten Gewölbekellern
- Ein Areal mit etwas über 7 ar
- Ein abgedeckter rund gemauerter Brunnen vor der Haustüre
- Ein offener Kamin mit Kaminstein aus dem 17. Jhd. im Wohnzimmer
- Eine Menge Geschichte
Technisch, sprich Heizung, Sanitär und Elektro, ist das Anwesen ca. auf dem Stand von 2000.
Alle anderen Dinge sind älter.
Wir haben uns bemüht, auf unseren Fotos ein stückweit den Charakter des Anwesens einzufangen. Aber wir glauben, dass uns das nicht so gelingen kann, wie es wirklich ist.
Deshalb möchten wir Sie bitten, die Bildergalerie nicht überzubewerten, sondern sich auf einen Spaziergang mit uns und den Besitzern durch das Anwesen einzulassen.
Sie werden unseren Wunsch nach Ihrem ersten Date mit einem Armen- und Siechhaus ganz sicher verstehen.
Nicht nur wegen des Gemäuers.
Weitere Angebote unter www.GARANT-IMMO.de
Sie mögen es schlicht und ergreifend individuell und einzigartig.
Und so eine Immobilie verkaufen wir in der Deutschordenstadt Bad Mergentheim:
Das Armen- und Siechhaus des St. Rochus Stiftes.
Wohl um 1674 wurde das kleine Armenhaus außerhalb der Stadtmauern von Mergentheim erbaut. Zum Ziele hatte es damals, den kranken, also siechenden, und verrückten, armen Leuten außerhalb der Stadt eine vernünftige Behausung zu schaffen. Damals wurde es von einem Siechenaufseher betrieben. Später wurde es vom "Spital zum Heiligen Geist" in Mergentheim erworben und betrieben. Zum Schluss diente es als Schwestern- und Ziviwohnheim bis es 2008 in Besitz des Sohnes einer charakterfesten und engagierten Mergentheimer Familie gelangte...
Was erwartet Sie nun:
- Ein Denkmal mit vielen Zimmern & zwei uralten Gewölbekellern
- Ein Areal mit etwas über 7 ar
- Ein abgedeckter rund gemauerter Brunnen vor der Haustüre
- Ein offener Kamin mit Kaminstein aus dem 17. Jhd. im Wohnzimmer
- Eine Menge Geschichte
Technisch, sprich Heizung, Sanitär und Elektro, ist das Anwesen ca. auf dem Stand von 2000.
Alle anderen Dinge sind älter.
Wir haben uns bemüht, auf unseren Fotos ein stückweit den Charakter des Anwesens einzufangen. Aber wir glauben, dass uns das nicht so gelingen kann, wie es wirklich ist.
Deshalb möchten wir Sie bitten, die Bildergalerie nicht überzubewerten, sondern sich auf einen Spaziergang mit uns und den Besitzern durch das Anwesen einzulassen.
Sie werden unseren Wunsch nach Ihrem ersten Date mit einem Armen- und Siechhaus ganz sicher verstehen.
Nicht nur wegen des Gemäuers.
Weitere Angebote unter www.GARANT-IMMO.de
Ausstattung
| Anzahl der Etagen im Haus | 2 |
| Küche | Einbauküche |
| Bad | 2 |
| Boden | Fliesen, Teppich, Dielen |
Lage des Objektes
Bad Mergentheim ist heute eine Stadt, die Tradition und Moderne auf gelungene Weise verbindet. Hier findet man alles, was man im Alltag braucht: gut ausgebaute Infrastruktur, zahlreiche Vereine, ein lebendiges Kulturleben, regionale Genussküche und viele Angebote für Familien. Auch zum Einkaufen gibt es jede Menge Möglichkeiten. Die Verkehrsanbindung ist ebenfalls hervorragend: Bus und Bahn sind direkt vor Ort, die Autobahnen A3 und A81 sind in rund 30 Minuten erreicht. Und typisch für das Taubertal ist das hervorragend ausgebaute Netz an Radwegen â?? ideal für alle, die gerne aktiv und umweltfreundlich unterwegs sind.
Anbieter kontaktieren
Kontakt
| Telefon | 0931/32 93 76-0 |
| Fax | 0931/32 93 76-20 |
| Website | www.garant-immo.de |
