2 MFH als Kapitalanlage mit 11 WE in guter Lage von 24241 Grevenkrug
995.000 €
Kaufpreis
785 m²
Wohnfläche
936 m²
Nutzfläche
25
Zimmer
immobilien.de Nr.: 9188366
Objektnummer: 7574#I9XtUa
Preise & Kosten
| Kaufpreis | 995.000 € |
| Nebenkosten | keine Angabe |
| Maklerprovision | 3,57 % |
Größe & Zustand
| Wohnfläche | 785 m² |
| Nutzfläche | 936 m² |
| Grundstücksfläche | 1.646 m² |
| Zimmer | 25 |
| Baujahr | 1948 |
| Letzte Modernisierung | 2024 |
| Verfügbar ab | sofort |
| Zustand | Gepflegt |
Energie
| Baujahr (laut Energieausweis) | 1948 |
| Wesentlicher Energieträger | Öl |
| Energieträger/Befeuerung | Öl |
Objektbeschreibung
Energieausweis in Bearbeitung
In Grevenkrug, ruhig und doch verkehrsgünstig zwischen Kiel und Neumünster gelegen,
werden 2 Mehrfamilienhäuser im Paket auf einer Gesamtfläche von 1646m² Grundstück
und 785m² Wohnfläche als Kapitalanlage angeboten. Die Jahres-Nettokaltmiete beträgt
71.580,-€..
In Massivbauweise als landwirtschaftliche Gebäude ca. um die Jahrhundertwende und
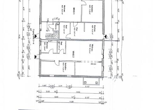
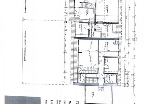
1948 erbaut, bieten Sie heute Platz für insgesamt 11genehmigte Wohneinheiten. Es sind
2- und 3-Zimmer-Wohnungen, die fast durchgehend und auch Langzeit vermietet sind.
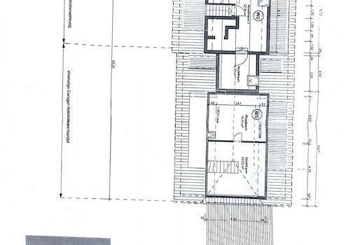
Es gehören 7 Garagen und 10 Stellplätze sowie 6 Außensitzplätze, 1 Balkon und 1
überdachte Dachterrasse mit zum Objekt.
Die Gebäude und Wohnungen wurden kontinuierlich renoviert und saniert. Ein
Flachdach-Gebäudeteil hat 2024 eine neue Eindeckung erhalten.
Nur in einem der Gebäude gibt es einen Teilkeller, in dem sich die Ölheizung mit
Tankanlage befindet. Das andere Gebäude hat eine Gas-Brennwert-Heizung.
Wir bieten Ihnen hier eine stabile Renditeanlage mit Potential an.
In Grevenkrug, ruhig und doch verkehrsgünstig zwischen Kiel und Neumünster gelegen,
werden 2 Mehrfamilienhäuser im Paket auf einer Gesamtfläche von 1646m² Grundstück
und 785m² Wohnfläche als Kapitalanlage angeboten. Die Jahres-Nettokaltmiete beträgt
71.580,-€..
In Massivbauweise als landwirtschaftliche Gebäude ca. um die Jahrhundertwende und
1948 erbaut, bieten Sie heute Platz für insgesamt 11genehmigte Wohneinheiten. Es sind
2- und 3-Zimmer-Wohnungen, die fast durchgehend und auch Langzeit vermietet sind.
Es gehören 7 Garagen und 10 Stellplätze sowie 6 Außensitzplätze, 1 Balkon und 1
überdachte Dachterrasse mit zum Objekt.
Die Gebäude und Wohnungen wurden kontinuierlich renoviert und saniert. Ein
Flachdach-Gebäudeteil hat 2024 eine neue Eindeckung erhalten.
Nur in einem der Gebäude gibt es einen Teilkeller, in dem sich die Ölheizung mit
Tankanlage befindet. Das andere Gebäude hat eine Gas-Brennwert-Heizung.
Wir bieten Ihnen hier eine stabile Renditeanlage mit Potential an.
Ausstattung
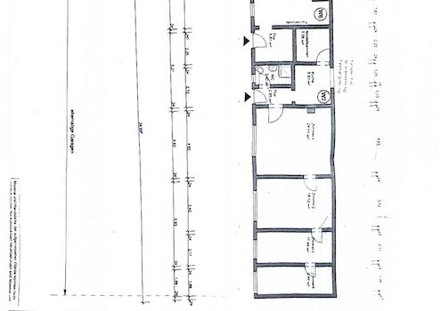
| Anzahl der Etagen im Haus | 3 |
| Küche | Einbauküche |
| Bad | 11 |
| Terrassen | 1 |
| Garage/Stellplätze | 7 |
| Keller |
2 Häuser, ein Preis
Massivbauweise
Moderne elektrische Versorgung
Glasfaseranschluss
Pflegeleichtes und großes Grundstück
Gaszentralheizung 2006
Ölzentralheizung im Teilkeller
7 Garagen plus 11 PKW Stellplätze
Massivbauweise
Moderne elektrische Versorgung
Glasfaseranschluss
Pflegeleichtes und großes Grundstück
Gaszentralheizung 2006
Ölzentralheizung im Teilkeller
7 Garagen plus 11 PKW Stellplätze
Lage des Objektes
Grevenkrug ist eine gemeinde im Kreis Rendsburg- Eckernförde in Schleswig- Holstein.
Das Gebiet der Gemeinde erstreckt sich am westlichen Ufer des oberen Flusslaufs der Eider im nordwestlichenTeilbereich des Naturraums Ostholsteinisches Hügel-und Seenland nördlich von Bordesholm.
Die Amtsverwaltung finden Sie in Bordesholm.
Über die nahegelegene A 215 sind Sie in kurzer Zeit in der Landeshauptstadt Kiel aber auch zum zubringer der A 7 Richtung Hamburg oder Dänemark.
Beste Infrastruktur finden Sie in den Orten Flintbeck und Bordesholm.
Zur Freizeitgestaltung wird auch gerne das Freilichtmuseum in Molfsee wahrgenommen.
eine Fahrradtour dorthin lohnt sich.
Das Gebiet der Gemeinde erstreckt sich am westlichen Ufer des oberen Flusslaufs der Eider im nordwestlichenTeilbereich des Naturraums Ostholsteinisches Hügel-und Seenland nördlich von Bordesholm.
Die Amtsverwaltung finden Sie in Bordesholm.
Über die nahegelegene A 215 sind Sie in kurzer Zeit in der Landeshauptstadt Kiel aber auch zum zubringer der A 7 Richtung Hamburg oder Dänemark.
Beste Infrastruktur finden Sie in den Orten Flintbeck und Bordesholm.
Zur Freizeitgestaltung wird auch gerne das Freilichtmuseum in Molfsee wahrgenommen.
eine Fahrradtour dorthin lohnt sich.
Anbieter kontaktieren
Kontakt
| Telefon | +49 451 393037 |
| Mobil | +49 176 62679353 |
| Website | erika-zech-immobilien.de |
