Zwei Ebenen, eine Vision – Ihr neues Zuhause mit Sonne & Stil - bald einziehen!
720.000 €
Kaufpreis
130,06 m²
Wohnfläche
4
Zimmer
immobilien.de Nr.: 9178912
Objektnummer: Dieskaustr. 49 WE 19
Kaufpreis
| Kaufpreis | 720.000 € |
| Kaufpreis pro m² | 5535,9 € |
Wohnfläche, Grundstück & Bausubstanz
| Wohnfläche | 130,06 m² |
| Zimmer | 4 |
| Baujahr | 2025 |
| Verfügbar ab | keine Angabe |
| Zustand | Erstbezug |
Energie
| Energieausweistyp | Bedarfsausweis |
| Energieeffizienzklasse | A_PLUS |
| Wesentlicher Energieträger | Strom |
| Energieträger/Befeuerung | Elektro |
Beschreibung der Immobilie
Willkommen in Ihrem neuen Zuhause über den Dächern von Leipzig: Dieses großzügige 4-Zimmer-Maisonette-Penthouse bietet auf ca. 130 m² Wohnfläche exklusiven Wohnkomfort mit durchdachter Raumaufteilung, lichtdurchfluteten Räumen und einer traumhaften Dachterrasse in Sonnenlage.
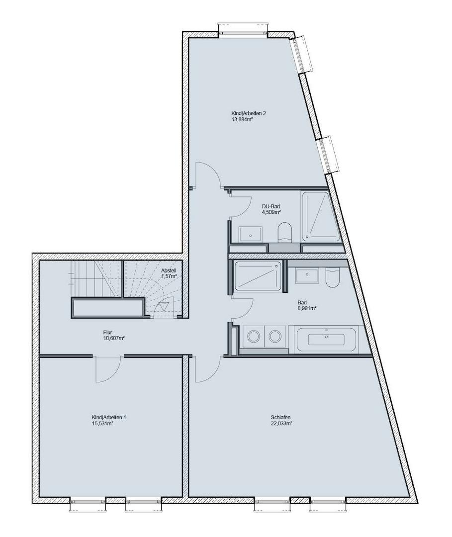
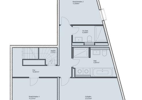
Im 1. Dachgeschoss befinden sich drei geräumige Schlafräume, ein stilvolles Masterbad mit Badewanne und Dusche, ein separates Gäste-Bad sowie eine praktische Abstellkammer – ideal für Familien oder Paare mit Platzbedarf. Hier entsteht ein privater Rückzugsbereich, der Funktionalität und Wohnqualität vereint.
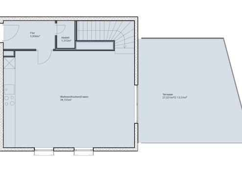
Das 2. Dachgeschoss bildet das Herzstück der Wohnung: ein großzügiger Wohn- und Essbereich mit ca. 34 m², der durch seine Offenheit und Helligkeit begeistert. Von hier aus betreten Sie die ca. 27 m² große Dachterrasse, die zur Sonnenseite ausgerichtet ist – perfekt für ein Frühstück im Freien, entspannte Nachmittage oder stimmungsvolle Abende mit Blick über Leipzig. Eine zweite Abstellkammer auf dieser Ebene bietet zusätzlichen Stauraum.
Für die Innenausstattung steht Ihnen eine kleine, aber exklusive Auswahl hochwertiger Wand- und Bodenbeläge zur Verfügung – gestalten Sie Ihr neues Zuhause ganz nach Ihrem persönlichen Stil.
Ein Tiefgaragenstellplatz ist optional für 25.000 € erhältlich und sorgt für zusätzlichen Komfort.
Der Neubau wird in Kürze fertiggestellt – sichern Sie sich jetzt dieses hochwertige Penthouse und genießen Sie schon bald modernes Wohnen auf höchstem Niveau.
Das Gebäude wird nach dem Standard eines Energieeffizienzhauses 40 EE errichtet und erfüllt somit höchste Anforderungen an nachhaltiges Bauen.
Die Versorgung mit Wärme erfolgt über eine umweltfreundliche Luftwärmepumpe, unterstützt durch eine leistungsstarke Photovoltaikanlage auf dem Dach.
So profitieren künftige Bewohner von niedrigen Energiekosten und einem zukunftssicheren Energiekonzept.
" frisch, engagiert, solide "
Die Künne Immobilien Gruppe ist professioneller Dienstleister der Immobilienbranche und steht Ihnen in den Bereichen Projektentwicklung, Verkauf, Vermietung, Verwaltung und Facility Management zur Verfügung.
Für weitere Informationen und Einblicke besuchen Sie unsere Homepage: www.kuenne-gruppe.de Sie wollen Ihre Immobilie verkaufen? Egal ob Mehrfamilien- oder Einfamilienhaus, Eigentumswohnung, Grundstück oder Neubau- bzw. Bauträgerprojekt. Wir vermitteln kompetent, transparent und zügig Ihre Immobilie, bundesweit.
Im 1. Dachgeschoss befinden sich drei geräumige Schlafräume, ein stilvolles Masterbad mit Badewanne und Dusche, ein separates Gäste-Bad sowie eine praktische Abstellkammer – ideal für Familien oder Paare mit Platzbedarf. Hier entsteht ein privater Rückzugsbereich, der Funktionalität und Wohnqualität vereint.
Das 2. Dachgeschoss bildet das Herzstück der Wohnung: ein großzügiger Wohn- und Essbereich mit ca. 34 m², der durch seine Offenheit und Helligkeit begeistert. Von hier aus betreten Sie die ca. 27 m² große Dachterrasse, die zur Sonnenseite ausgerichtet ist – perfekt für ein Frühstück im Freien, entspannte Nachmittage oder stimmungsvolle Abende mit Blick über Leipzig. Eine zweite Abstellkammer auf dieser Ebene bietet zusätzlichen Stauraum.
Für die Innenausstattung steht Ihnen eine kleine, aber exklusive Auswahl hochwertiger Wand- und Bodenbeläge zur Verfügung – gestalten Sie Ihr neues Zuhause ganz nach Ihrem persönlichen Stil.
Ein Tiefgaragenstellplatz ist optional für 25.000 € erhältlich und sorgt für zusätzlichen Komfort.
Der Neubau wird in Kürze fertiggestellt – sichern Sie sich jetzt dieses hochwertige Penthouse und genießen Sie schon bald modernes Wohnen auf höchstem Niveau.
Das Gebäude wird nach dem Standard eines Energieeffizienzhauses 40 EE errichtet und erfüllt somit höchste Anforderungen an nachhaltiges Bauen.
Die Versorgung mit Wärme erfolgt über eine umweltfreundliche Luftwärmepumpe, unterstützt durch eine leistungsstarke Photovoltaikanlage auf dem Dach.
So profitieren künftige Bewohner von niedrigen Energiekosten und einem zukunftssicheren Energiekonzept.
" frisch, engagiert, solide "
Die Künne Immobilien Gruppe ist professioneller Dienstleister der Immobilienbranche und steht Ihnen in den Bereichen Projektentwicklung, Verkauf, Vermietung, Verwaltung und Facility Management zur Verfügung.
Für weitere Informationen und Einblicke besuchen Sie unsere Homepage: www.kuenne-gruppe.de Sie wollen Ihre Immobilie verkaufen? Egal ob Mehrfamilien- oder Einfamilienhaus, Eigentumswohnung, Grundstück oder Neubau- bzw. Bauträgerprojekt. Wir vermitteln kompetent, transparent und zügig Ihre Immobilie, bundesweit.
Ausstattungsmerkmale
| Anzahl der Etagen im Haus | 6 |
| Inserat befindet sich im Stockwerk | 5 |
| Bad | 1 |
| Boden | Fliesen, Parkett |
| Balkone | 1 |
| Fahrstuhl | |
| Keller |
Sonstige Informationen
Alle Angaben sind ohne Gewähr und basieren ausschließlich auf Informationen, die uns von unserem Auftraggeber zur Verfügung gestellt wurden. Wir übernehmen keine Gewähr für die Vollständigkeit, Richtigkeit und Aktualität dieser Angaben.
Karte wird geladen...
Objektstandort
04249 Leipzig
- Sachsen
Lage & Infrastruktur
Objektstandort
04249 Leipzig
- Sachsen
Leipzig-Kleinzschocher zählt zu den charmanten, aufstrebenden Stadtteilen im Südwesten der Messestadt. Geprägt von einer Mischung aus gründerzeitlicher Architektur, weitläufigen Grünflächen und ruhigen Wohnstraßen, erfreut sich das Viertel zunehmender Beliebtheit bei jungen Familien, Berufstätigen und Kapitalanlegern gleichermaßen.
Nur wenige Gehminuten entfernt laden der Volkspark Kleinzschocher sowie der idyllische Palmengarten zu Spaziergängen, sportlichen Aktivitäten oder entspannten Stunden im Grünen ein. Auch der Clara-Zetkin-Park und der Cospudener See sind mit dem Fahrrad schnell erreichbar und erweitern das Freizeitangebot um naturnahe Erholung direkt vor der Haustür.
In direkter Umgebung befinden sich Einkaufsmöglichkeiten, Kindergärten, Schulen, Ärzte sowie gastronomische Angebote – alles für den täglichen Bedarf ist bequem erreichbar. Die sehr gute Anbindung an den öffentlichen Nahverkehr (Bus, Straßenbahn und S-Bahn) ermöglicht eine schnelle Verbindung in die Leipziger Innenstadt sowie zu anderen Stadtteilen und zum Hauptbahnhof. Auch mit dem Auto ist das Zentrum in rund 10–15 Minuten erreichbar.
Nur wenige Gehminuten entfernt laden der Volkspark Kleinzschocher sowie der idyllische Palmengarten zu Spaziergängen, sportlichen Aktivitäten oder entspannten Stunden im Grünen ein. Auch der Clara-Zetkin-Park und der Cospudener See sind mit dem Fahrrad schnell erreichbar und erweitern das Freizeitangebot um naturnahe Erholung direkt vor der Haustür.
In direkter Umgebung befinden sich Einkaufsmöglichkeiten, Kindergärten, Schulen, Ärzte sowie gastronomische Angebote – alles für den täglichen Bedarf ist bequem erreichbar. Die sehr gute Anbindung an den öffentlichen Nahverkehr (Bus, Straßenbahn und S-Bahn) ermöglicht eine schnelle Verbindung in die Leipziger Innenstadt sowie zu anderen Stadtteilen und zum Hauptbahnhof. Auch mit dem Auto ist das Zentrum in rund 10–15 Minuten erreichbar.
Kontaktanfrage senden
Über den Anbieter
Marko Künne Immobilien
Käthe-Kollwitz-Str. 58c
04109 Leipzig
Kontakt
| Telefon | 0341 442 9566 |
| Fax | 0341 2253930 |
| Website | www.kuenne-immobilien.de |