Wohnen mit Stil: 2-Zimmer-Altbauwohnung mit Balkon & Parkett

04299 Leipzig, Sachsen
225.000 € Kaufpreis
Wohnfläche
65 m²
Zimmer
2
Etage
3
Balkon
Keller

Kaufpreis

Kaufpreis 225.000 €
Kaufpreis pro m²3461 €
Hausgeld325 €

Wohnfläche, Grundstück & Bausubstanz

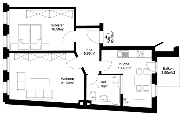
Wohnfläche65 m²
Zimmer2
Etagen4
Stockwerk3
Baujahr1910
Verfügbar ab Keine Angabe
ZustandVoll Saniert

Beschreibung der Immobilie

Diese 2-Zimmerwohnung vereint historischen Altbauflair mit einem behaglichen Wohngefühl und befindet sich im beliebten Leipziger Stadtteil Stötteritz. Das denkmalgeschützte Mehrfamilienhaus aus dem Jahr 1910 strahlt mit seiner stilvollen Fassade und dem gepflegten Treppenhaus eine besondere Wertigkeit und Geschichte aus.

Die 65 m² große Wohnung im 3. Obergeschoss empfängt Sie mit einer angenehmen Großzügigkeit und klassischen Altbaudetails. Zwei helle, gut geschnittene Zimmer bieten vielfältige Gestaltungsmöglichkeiten – ob als gemütliches Zuhause, inspirierender Rückzugsort oder stilvolle Kombination aus Wohnen und Arbeiten.

Die separate Küche wird schnell zum Lebensmittelpunkt der Wohnung – mit direktem Zugang zum Balkon, der zu entspannten Momenten im Freien einlädt. Das modern gestaltete Bad sorgt für eine freundliche, natürliche Atmosphäre. Der warme Holzparkettboden verleiht allen Räumen eine besondere Wohnlichkeit und unterstreicht den unverwechselbaren Charakter dieser Immobilie.

Ein eigener Kellerraum bietet zusätzlichen Stauraum und ergänzt das Angebot sinnvoll.

Aktuell ist die Wohnung zuverlässig vermietet und eignet sich daher auch hervorragend als wertstabile Kapitalanlage. Gleichzeitig eröffnet sie die Perspektive, sich langfristig den Traum vom eigenen Zuhause in einem gewachsenen, lebendigen Viertel zu erfüllen.

" frisch, engagiert, solide "

Die Künne Immobilien Gruppe ist professioneller Dienstleister der Immobilienbranche und steht Ihnen in den Bereichen Projektentwicklung, Verkauf, Vermietung, Verwaltung und Facility Management zur Verfügung.

Für weitere Informationen und Einblicke besuchen Sie unsere Homepage: www.kuenne-gruppe.de Sie wollen Ihre Immobilie verkaufen? Egal ob Mehrfamilien- oder Einfamilienhaus, Eigentumswohnung, Grundstück oder Neubau- bzw. Bauträgerprojekt. Wir vermitteln kompetent, transparent und zügig Ihre Immobilie, bundesweit.

Ausstattungsmerkmale

Bad1
Bad (Ausstattung)Wanne
BodenParkett
Balkone1
KellerJa

Energie

Heizungsart Zentralheizung
Wesentlicher EnergieträgerGas
Energieträger/Befeuerung Gas

Karte wird geladen...
04299 Leipzig – Sachsen

Lage & Infrastruktur

Die Wohnung befindet sich im beliebten Leipziger Stadtteil Stötteritz. Die Lage verbindet ruhiges Wohnen mit einer sehr guten Infrastruktur und zählt zu den gefragten Wohnlagen im Leipziger Osten.

Einkaufsmöglichkeiten, Ärzte, Apotheken sowie Cafés und Restaurants sind bequem erreichbar und sichern eine hohe Alltagstauglichkeit. Die Anbindung an den öffentlichen Nahverkehr ist hervorragend – die Leipziger Innenstadt sowie der Hauptbahnhof sind in kurzer Zeit erreichbar.

Für Eigennutzer bietet die Umgebung eine angenehme Wohnqualität mit nahegelegenen Grünflächen und Erholungsmöglichkeiten. Kapitalanleger profitieren von einer stabilen Mietnachfrage und einer breiten Zielgruppe, was den Standort langfristig attraktiv und wertstabil macht.
0341 442 9566
Marko Künne Immobilien
Käthe-Kollwitz-Str. 58c, 04109 Leipzig
0341 442 9566

Weitere Angebote in Leipzig