BUNGALOW Neubau- inkl. Baugrundstück in Dassel OT
367.500 €
Kaufpreis
94 m²
Wohnfläche
3
Zimmer
immobilien.de Nr.: 9150214
Objektnummer: 49BKBungalow95_Mark
Preise & Kosten
| Kaufpreis | 367.500 € |
| Nebenkosten | keine Angabe |
Größe & Zustand
| Wohnfläche | 94 m² |
| Grundstücksfläche | 600 m² |
| Zimmer | 3 |
| Baujahr | 2026 |
| Verfügbar ab | keine Angabe |
| Zustand | Erstbezug |
Energie
| Energietyp | Niedrigenergie, KfW-40 |
| Heizungsart | Zentralheizung, Fußbodenheizung |
| Energieträger/Befeuerung | Luft-Wärme-Pumpe |
Objektbeschreibung
Das hier angebotene Haus hat eine Netto-Raumfläche von insgesamt ca. 95 m², Effizienzhaus-Klasse 40 plus, inkl. Photovoltaikanlage und Batteriespeicher.
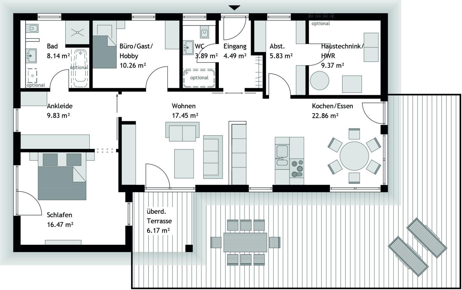
Der Haustyp BUNGALOW - barrierefrei wohnen
Mit einer kompakten Netto-Raumfläche von 94 m² präsentiert sich der Entwurf des Bungalows mit einem behaglichen und lichtdurchfluteten Wohn-/Ess- und Kochbereich, der clever übereck angelegt ist. Ein praktischer Zusatzraum bietet vielseitige Nutzungsmöglichkeiten, sei es als Kinderzimmer, Büro, Gästezimmer oder Hobbyraum. Das Raumkonzept ist ideal für Singles, Paare oder kleine Familien geeignet. Ein geräumiges Schlafzimmer mit großzügiger Stellfläche, ein Bad sowie ein Gäste-WC vervollständigen das Angebot an Räumlichkeiten.
Die abgebildeten Hausentwürfe sind Gestaltungsvorschläge. Eine Vielzahl individueller Anpassungen wie z. B. Hausgröße, Dachgeometrie, Fenstergrößen und deren Position sind möglich.
STREIF-Energiespar-Häuser sind für die Effizienzhaus-Klasse 40 plus ausgestattet. Gerne stellen wir für Ihr Haus eine Ökobilanz (KFWG) aus.
Dies bescheinigt, dass Ihr STREIF-Haus den neuen KfW-Förderrichtlinien für den Klimafreundlichen Neubau (KFN) entspricht. So sichern Sie sich bis zu 100.000,00 EUR zinsgünstiges Darlehen. Ergänzend mit der Nachhaltigkeitszertifizierung nach QNG (KFWG-Q) erhöht sich Ihr subventionierter Darlehensanspruch auf 150.000EUR.
Auch die Familienförderung mit bis zu 220.000EUR Förderdarlehen mit Zinssätzen < 1% ist äußerst lukrativ.
Wir beraten Sie gerne beim Hauskauf! Sprechen Sie uns an: 0176-34990349
Der Haustyp BUNGALOW - barrierefrei wohnen
Mit einer kompakten Netto-Raumfläche von 94 m² präsentiert sich der Entwurf des Bungalows mit einem behaglichen und lichtdurchfluteten Wohn-/Ess- und Kochbereich, der clever übereck angelegt ist. Ein praktischer Zusatzraum bietet vielseitige Nutzungsmöglichkeiten, sei es als Kinderzimmer, Büro, Gästezimmer oder Hobbyraum. Das Raumkonzept ist ideal für Singles, Paare oder kleine Familien geeignet. Ein geräumiges Schlafzimmer mit großzügiger Stellfläche, ein Bad sowie ein Gäste-WC vervollständigen das Angebot an Räumlichkeiten.
Die abgebildeten Hausentwürfe sind Gestaltungsvorschläge. Eine Vielzahl individueller Anpassungen wie z. B. Hausgröße, Dachgeometrie, Fenstergrößen und deren Position sind möglich.
STREIF-Energiespar-Häuser sind für die Effizienzhaus-Klasse 40 plus ausgestattet. Gerne stellen wir für Ihr Haus eine Ökobilanz (KFWG) aus.
Dies bescheinigt, dass Ihr STREIF-Haus den neuen KfW-Förderrichtlinien für den Klimafreundlichen Neubau (KFN) entspricht. So sichern Sie sich bis zu 100.000,00 EUR zinsgünstiges Darlehen. Ergänzend mit der Nachhaltigkeitszertifizierung nach QNG (KFWG-Q) erhöht sich Ihr subventionierter Darlehensanspruch auf 150.000EUR.
Auch die Familienförderung mit bis zu 220.000EUR Förderdarlehen mit Zinssätzen < 1% ist äußerst lukrativ.
Wir beraten Sie gerne beim Hauskauf! Sprechen Sie uns an: 0176-34990349
Ausstattung
| Anzahl der Etagen im Haus | 1 |
| Küche | Offene Küche |
| Bad | 1 |
| Bad | Dusche, Wanne, Fenster |
| Terrassen | 1 |
| Barrierefrei |
STREIF-Häuser erfüllen bereits im Standard die Effizienzhaus-Klasse KfW40PLUS.
Die STREIF-Passiv-Haus-Wände, eine effiziente Heiztechnik mit integrierter Wohnraumlüftung und Wärmerückgewinnung garantieren einen geringen Energieverbrauch und ein fantastisches Raumklima, das insbesondere Allergiker aufatmen lässt.
STREIF Leistungen sind MEHR WERT - schon im Grundpreis enthalten!
- 16-monatige Festpreisgarantie
- inkl. individuelle Grundrissgestaltung und Raumaufteilung
- inkl. gedämmte Fundamentplatte
- inkl. Photovoltaikanlage inkl. Batteriespeicher
- inkl. Wärmepumpen-Technologie mit integrierter
Lüftungsanlage mit Wärmerückgewinnung
- inkl. Haustür von KERA und Fenster von Porta/Kömmerling
- inkl. Massivholz-Geschosstreppe aus eigener Produktion
- inkl. Sanitärobjekte von Markenherstellern
- inkl. Elektroinstallation
- inkl. Gütesiegel vom TÜV Rheinland- (schadstoffgeprüfte Materialien)
- inkl.. KfW-Berechnungen, Nachweise & Anträge
Was wir Ihnen sonst noch bieten:
- Kostenlose Bauberatung inkl. Grundrissplanung
- Ermittlung der Gesamt-Investition Ihres Bauvorhabens
- Finanzierungs - & Fördermittelberatung
Die hohe Wertigkeit und Langlebigkeit eines STREIF-Energiespar-Hauses wird durch zahlreiche Auszeichnungen, Qualitäts- und Gütesiegel unabhängiger Institute und Verbände dokumentiert.
Der Angebotspreis ist inklusive Grundstück und bezieht sich auf die Standard-Ausbaustufe Fast-Fertig-Plus (Technikfertig inkl. Bäder). Somit wären Ihre Eigenleistungen: Malerarbeiten, Bodenbeläge und die Innentüren. Selbstverständlich können wir Ihr Haus auch schlüsselfertig / bezugsfertig errichten.
Wir beraten Sie gerne beim Hauskauf! Sprechen Sie uns an: 0176-34990349
Die STREIF-Passiv-Haus-Wände, eine effiziente Heiztechnik mit integrierter Wohnraumlüftung und Wärmerückgewinnung garantieren einen geringen Energieverbrauch und ein fantastisches Raumklima, das insbesondere Allergiker aufatmen lässt.
STREIF Leistungen sind MEHR WERT - schon im Grundpreis enthalten!
- 16-monatige Festpreisgarantie
- inkl. individuelle Grundrissgestaltung und Raumaufteilung
- inkl. gedämmte Fundamentplatte
- inkl. Photovoltaikanlage inkl. Batteriespeicher
- inkl. Wärmepumpen-Technologie mit integrierter
Lüftungsanlage mit Wärmerückgewinnung
- inkl. Haustür von KERA und Fenster von Porta/Kömmerling
- inkl. Massivholz-Geschosstreppe aus eigener Produktion
- inkl. Sanitärobjekte von Markenherstellern
- inkl. Elektroinstallation
- inkl. Gütesiegel vom TÜV Rheinland- (schadstoffgeprüfte Materialien)
- inkl.. KfW-Berechnungen, Nachweise & Anträge
Was wir Ihnen sonst noch bieten:
- Kostenlose Bauberatung inkl. Grundrissplanung
- Ermittlung der Gesamt-Investition Ihres Bauvorhabens
- Finanzierungs - & Fördermittelberatung
Die hohe Wertigkeit und Langlebigkeit eines STREIF-Energiespar-Hauses wird durch zahlreiche Auszeichnungen, Qualitäts- und Gütesiegel unabhängiger Institute und Verbände dokumentiert.
Der Angebotspreis ist inklusive Grundstück und bezieht sich auf die Standard-Ausbaustufe Fast-Fertig-Plus (Technikfertig inkl. Bäder). Somit wären Ihre Eigenleistungen: Malerarbeiten, Bodenbeläge und die Innentüren. Selbstverständlich können wir Ihr Haus auch schlüsselfertig / bezugsfertig errichten.
Wir beraten Sie gerne beim Hauskauf! Sprechen Sie uns an: 0176-34990349
Sonstige Informationen
Sie brauchen einen kompetenten und verlässlichen Baupartner? Wir stehen Ihnen von Anfang an zur Seite & begleiten Sie auf dem Weg in Ihr Eigenheim:
Mit großem Engagement, Persönlichkeit und einer Fachfirma STREIF mit immensen Bau-Know-how, die seit 1929 auf über 85.000 realisierte Wohnträume zurückblicken kann.
Jedes Haus von STREIF wird individuell als Energiesparhaus geplant und gebaut. Eine nachhaltige, ökologische und wohngesunde Bauweise, eine zertifizierte Ausführungsqualität und eine kurze Bauzeit, dafür stehen wir.
Gerne beraten wir Sie nach Vereinbarung in unserem Musterhaus in Kassel/Fuldabrück und erstellen Ihnen ein Angebot mit einer detaillierten & realistisch ermittelten Aufstellung der Gesamt-Investition.
Wir freuen uns auf Ihren Anruf / Nachricht!
Ihr STREIF Fachberater, Björn Kipphen
www.dr-haus-kassel.de
Mobil: 0176-34990349
E-Mail: bjoern.kipphen@streif.de
Hinweis:
Vorverkauf und Irrtümer vorbehalten.Bilder können Sonderbauteile darstellen, die im Preis nicht enthalten sind und abweichend von textlichen Inhalten sein.
zzgl. Baunebenkosten.
Der Grundstückserwerb stellt keine STREIF Leistung dar.
Hinweis zu den gesetzlichen Pflichtangaben gemäß der EnEV 2016: Bei dem hier angebotenen Haus handelt es sich um ein Neubauprojekt.
Wir weisen darauf hin, dass zu diesem projektierten Haus noch kein Energieausweis vorliegt. Der Energieausweis wird Ihnen spätestens im Rahmen der Erstellung des Objektes ausgehändigt
Mit großem Engagement, Persönlichkeit und einer Fachfirma STREIF mit immensen Bau-Know-how, die seit 1929 auf über 85.000 realisierte Wohnträume zurückblicken kann.
Jedes Haus von STREIF wird individuell als Energiesparhaus geplant und gebaut. Eine nachhaltige, ökologische und wohngesunde Bauweise, eine zertifizierte Ausführungsqualität und eine kurze Bauzeit, dafür stehen wir.
Gerne beraten wir Sie nach Vereinbarung in unserem Musterhaus in Kassel/Fuldabrück und erstellen Ihnen ein Angebot mit einer detaillierten & realistisch ermittelten Aufstellung der Gesamt-Investition.
Wir freuen uns auf Ihren Anruf / Nachricht!
Ihr STREIF Fachberater, Björn Kipphen
www.dr-haus-kassel.de
Mobil: 0176-34990349
E-Mail: bjoern.kipphen@streif.de
Hinweis:
Vorverkauf und Irrtümer vorbehalten.Bilder können Sonderbauteile darstellen, die im Preis nicht enthalten sind und abweichend von textlichen Inhalten sein.
zzgl. Baunebenkosten.
Der Grundstückserwerb stellt keine STREIF Leistung dar.
Hinweis zu den gesetzlichen Pflichtangaben gemäß der EnEV 2016: Bei dem hier angebotenen Haus handelt es sich um ein Neubauprojekt.
Wir weisen darauf hin, dass zu diesem projektierten Haus noch kein Energieausweis vorliegt. Der Energieausweis wird Ihnen spätestens im Rahmen der Erstellung des Objektes ausgehändigt
Lage des Objektes
Das Grundstück liegt im Neubaugebiet "Südlich des Rennebergsweges" in Dassel OT Markoldendorf und bietet einen wunderschönen Fernblick.
Aktuell stehen noch verschiedene Grundstücke zur Auswahl, sodass Sie bei der Auswahl der Größe (500-800qm) sowie der Wahl der Ausrichtung frei sind. Die Grundstücke liegen in unmittelbarer Nähe des Kindergartens, der Grundschule und der Sportstätten.
Die Bebauung ist über einen rechtskräftigen Bebauungsplan geregelt und ermöglicht die Bebauung von Ein, - Zwei und Doppelhäusern mit bis zu zweigeschossiger Bauweise.
Sie besitzen bereits ein Grundstück?
Gerne realisieren wir Ihr Wunschhaus auch auf Ihrem Grundstück.
Sie suchen noch Ihr Wunschgrundstück?
Mithilfe unserer starken regionalen Vernetzung finden sicherlich auch Sie für Ihr Bauvorhaben das passende Grundstück. Die Grundstücksakquise wird durch unsere Netzwerkpartner übernommen und ist ein Service, der nur unseren Auftragskunden zur Verfügung steht. Wir bitten um Verständnis dafür, dass Informationen zu den vorhandenen Bauplätzen erst nach Bestätigung der Widerrufsbelehrung erfolgen dürfen.
Die von uns gemachten Informationen beruhen auf Angaben des Verkäufers bzw. der Verkäuferin. Für die Richtigkeit und Vollständigkeit der Angaben kann keine Gewähr bzw. Haftung übernommen werden. Ein Zwischenverkauf und Irrtümer sind vorbehalten
Aktuell stehen noch verschiedene Grundstücke zur Auswahl, sodass Sie bei der Auswahl der Größe (500-800qm) sowie der Wahl der Ausrichtung frei sind. Die Grundstücke liegen in unmittelbarer Nähe des Kindergartens, der Grundschule und der Sportstätten.
Die Bebauung ist über einen rechtskräftigen Bebauungsplan geregelt und ermöglicht die Bebauung von Ein, - Zwei und Doppelhäusern mit bis zu zweigeschossiger Bauweise.
Sie besitzen bereits ein Grundstück?
Gerne realisieren wir Ihr Wunschhaus auch auf Ihrem Grundstück.
Sie suchen noch Ihr Wunschgrundstück?
Mithilfe unserer starken regionalen Vernetzung finden sicherlich auch Sie für Ihr Bauvorhaben das passende Grundstück. Die Grundstücksakquise wird durch unsere Netzwerkpartner übernommen und ist ein Service, der nur unseren Auftragskunden zur Verfügung steht. Wir bitten um Verständnis dafür, dass Informationen zu den vorhandenen Bauplätzen erst nach Bestätigung der Widerrufsbelehrung erfolgen dürfen.
Die von uns gemachten Informationen beruhen auf Angaben des Verkäufers bzw. der Verkäuferin. Für die Richtigkeit und Vollständigkeit der Angaben kann keine Gewähr bzw. Haftung übernommen werden. Ein Zwischenverkauf und Irrtümer sind vorbehalten
