Einzigartig in Lage, Historie und Lebensqualität
3.499.000 €
Kaufpreis
360 m²
Wohnfläche
12
Zimmer
immobilien.de Nr.: 9146191
Objektnummer: FALC-AL-70832
Preise & Kosten
| Kaufpreis | 3.499.000 € |
| Nebenkosten | keine Angabe |
| Maklerprovision | 3,57 % inkl. MwSt. |
Größe & Zustand
| Wohnfläche | 360 m² |
| Grundstücksfläche | 1.385 m² |
| Zimmer | 12 |
| Baujahr | 1938 |
| Verfügbar ab | keine Angabe |
Objektbeschreibung
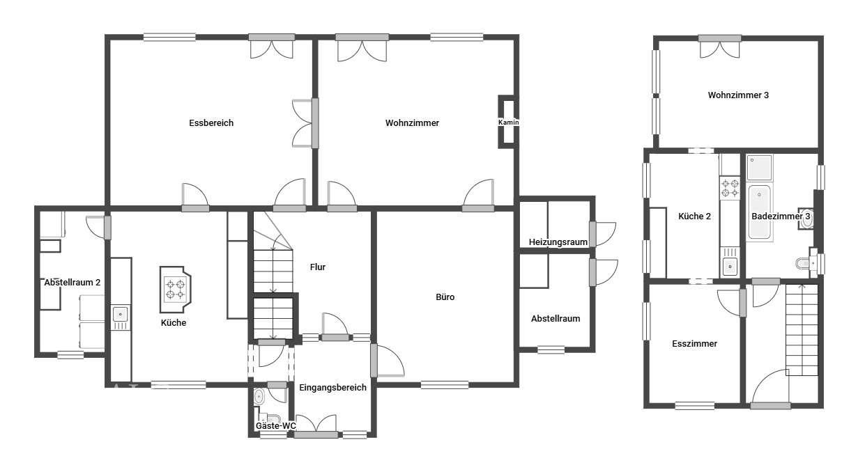
Diese charmante Villa am Rhein wurde im Jahr 1840 auf der anderen Rheinseite in Königswinter im spätklassizistischem Stil erbaut und 1937/38 an die Mehlemer Rheinpromenade transloziert. Es ist das einzige Gebäude am Mittelrhein, bei dem eine solche historisch einzigartige Versetzung (Translozierung) vorgenommen wurde. Auf einem Grundstück von circa 1500 m² erstreckt sich eine Wohnfläche von etwa 360 m², die sich über drei Etagen verteilt und insgesamt zwölf Zimmer sowie zwei Bäder und ein Gäste-WC umfasst.
Im Erdgeschoss befinden sich drei Räume, ein geräumiges Wohnzimmer mit Kamin und ein ebenso geräumiges Ess–/Gesellschaftszimmer, die durch einen großen Durchgang verbunden sind, beide mit direktem Zugang zur Terrasse und zum Garten, und ein frei nutzbarer Raum, der beispielsweise als Büro, Bibliothek oder Hobbyraum gestaltet werden kann. Die separate Küche verfügt über einen angrenzenden Hauswirtschaftsraum. Das Gäste-WC befindet sich ebenfalls auf dieser Etage.
Über eine Treppe gelangt man in das erste Obergeschoss, das vier weitere Zimmer bereithält. Hier befinden sich auch eine Ankleide sowie ein Hauswirtschaftsraum und ein Badezimmer. Drei der Räume werden zurzeit als Büro genutzt, bieten jedoch vielseitige Gestaltungsmöglichkeiten und lassen sich individuell an Ihre Bedürfnisse anpassen. Der große Raum mit Blick zum Rhein bietet sich zum Beispiel als weiteres Wohnzimmer, Bibliothek oder Musikzimmer an.
Das zweite Obergeschoss präsentiert sich ebenfalls großzügig und bietet vier weitere Räume. Zwei dieser Zimmer verfügen jeweils über einen eigenen Balkon. Abgerundet wird diese Etage durch eine zusätzliche Ankleide und ein weiteres Badezimmer.
Ein besonderes Highlight der Immobilie ist das separate so genannte Pförtnerhaus (Gästehaus), das über die Straße oder den Innenhof erreichbar ist. Im Erdgeschoss des Gästehauses erwarten Sie ein Badezimmer, eine moderne Küche, ein Essbereich sowie ein Wohnbereich mit direktem Terrassenzugang. Im Obergeschoss stehen zwei weitere Räume zur Verfügung, die ideal als Schlafzimmer, Arbeits- oder Gästezimmer genutzt werden können.
Sowohl das Haupthaus als auch das Gästehaus sind unterkellert und bieten so weiteren Stauraum und Abstellflächen.
Der Außenbereich begeistert bei dem Haupthaus durch eine traumhafte Terrasse mit herrlichem Rheinblick. Der Garten erstreckt sich einmal um das gesamte Häuserensemble und bietet viel Raum für Erholung und Freizeit. Ein besonders charmanter Innenhof ergänzt das Ensemble und sorgt für eine geschützte, private Atmosphäre.
Das gesamte Anwesen überzeugt durch seinen klassischen Charme, eine durchdachte Raumaufteilung und eine ruhige Lage am Rhein – ideal für Menschen, die Wert auf Großzügigkeit und Vielseitigkeit legen.
Im Erdgeschoss befinden sich drei Räume, ein geräumiges Wohnzimmer mit Kamin und ein ebenso geräumiges Ess–/Gesellschaftszimmer, die durch einen großen Durchgang verbunden sind, beide mit direktem Zugang zur Terrasse und zum Garten, und ein frei nutzbarer Raum, der beispielsweise als Büro, Bibliothek oder Hobbyraum gestaltet werden kann. Die separate Küche verfügt über einen angrenzenden Hauswirtschaftsraum. Das Gäste-WC befindet sich ebenfalls auf dieser Etage.
Über eine Treppe gelangt man in das erste Obergeschoss, das vier weitere Zimmer bereithält. Hier befinden sich auch eine Ankleide sowie ein Hauswirtschaftsraum und ein Badezimmer. Drei der Räume werden zurzeit als Büro genutzt, bieten jedoch vielseitige Gestaltungsmöglichkeiten und lassen sich individuell an Ihre Bedürfnisse anpassen. Der große Raum mit Blick zum Rhein bietet sich zum Beispiel als weiteres Wohnzimmer, Bibliothek oder Musikzimmer an.
Das zweite Obergeschoss präsentiert sich ebenfalls großzügig und bietet vier weitere Räume. Zwei dieser Zimmer verfügen jeweils über einen eigenen Balkon. Abgerundet wird diese Etage durch eine zusätzliche Ankleide und ein weiteres Badezimmer.
Ein besonderes Highlight der Immobilie ist das separate so genannte Pförtnerhaus (Gästehaus), das über die Straße oder den Innenhof erreichbar ist. Im Erdgeschoss des Gästehauses erwarten Sie ein Badezimmer, eine moderne Küche, ein Essbereich sowie ein Wohnbereich mit direktem Terrassenzugang. Im Obergeschoss stehen zwei weitere Räume zur Verfügung, die ideal als Schlafzimmer, Arbeits- oder Gästezimmer genutzt werden können.
Sowohl das Haupthaus als auch das Gästehaus sind unterkellert und bieten so weiteren Stauraum und Abstellflächen.
Der Außenbereich begeistert bei dem Haupthaus durch eine traumhafte Terrasse mit herrlichem Rheinblick. Der Garten erstreckt sich einmal um das gesamte Häuserensemble und bietet viel Raum für Erholung und Freizeit. Ein besonders charmanter Innenhof ergänzt das Ensemble und sorgt für eine geschützte, private Atmosphäre.
Das gesamte Anwesen überzeugt durch seinen klassischen Charme, eine durchdachte Raumaufteilung und eine ruhige Lage am Rhein – ideal für Menschen, die Wert auf Großzügigkeit und Vielseitigkeit legen.
Ausstattung
| Anzahl der Etagen im Haus | 3 |
| Küche | Einbauküche |
| Bad | 3 |
| Bad | Dusche, Wanne, Fenster |
| Balkone | 1 |
| Garten | |
| Keller |
Diese repräsentative Villa steht unter Denkmalschutz und wurde im Rahmen der Translozierung in solider Massivbauweise erbaut. Das Gebäude wurde ursprünglich im Jahr 1840 in Königswinter erbaut. Auf Antrag der damaligen Eigentümerin, die das ursprüngliche Gelände für ein Großprojekt beanspruchte, erfolgte eine Versetzung des Hauses an seinen heutigen Standort am Rhein. Hierbei wurden wichtige historische Elemente wie Fenster mit Fensterläden, die Haustüre, Treppen und Innentüren übernommen und bewahrt. Die Villa ist somit zum historischen Ereignis und zu einem Teil der Baugeschichte geworden, weshalb es unter Denkmalschutz steht und sich bis heute harmonisch in die Umgebung der prächtigen Rheinvillen einfügt.
Das Hauptgebäude verfügt über eine moderne Gaszentralheizung mit Wärmespeicher sowie einen offenen Kamin, der für wohlige Wärme und eine behagliche Atmosphäre sorgt. Fenster, Elektrik, Wasserleitungen, Bäder sowie der gesamte Innenausbau wurden bereits in den 1990er Jahren grundlegend modernisiert. Die Warmwasserversorgung wurde 2019 durch einen neuen Speicher ergänzt, und die Leitungssysteme wurden 2015 erneuert. Das gesamte Haus präsentiert sich in einem durchweg gehobenen Ausstattungsstandard.
Die Böden sind geschmackvoll gestaltet und passen zum Charakter des Hauses: In den Schlafzimmern wurde teilweise Teppichboden verlegt, in anderen Räumen sorgen Holzdielen, unter anderem Pitch Pine im Erdgeschoss, für eine wohnliche Atmosphäre, und im Eingangsbereich des Erdgeschosses und in den Bädern wurden Marmorfliesen verwendet. Das Bad im 1. Obergeschoss ist mit einer Dusche, einer Badewanne sowie Fenster ausgestattet und bietet so hohen Komfort. Das Badezimmer im 2. Obergeschoss verfügt über eine praktische Duschwanne.
Die Etagen sind mit einer außergewöhnlich gestalteten, geschwungenen Barocktreppe verbunden.
Auch das Gästehaus wurde umfassend modernisiert: Hier wurden im Jahr 2008 das Dach und die Außenwände gedämmt, die Dacheindeckung sowie das Bad und die Leitungssysteme erneuert. Das gesamte Ensemble besticht durch seinen gepflegten Zustand und eine durchdachte, hochwertige Ausstattung, die den Charme des historischen Gebäudes bewahrt und gleichzeitig modernen Ansprüchen gerecht wird.
Das Hauptgebäude verfügt über eine moderne Gaszentralheizung mit Wärmespeicher sowie einen offenen Kamin, der für wohlige Wärme und eine behagliche Atmosphäre sorgt. Fenster, Elektrik, Wasserleitungen, Bäder sowie der gesamte Innenausbau wurden bereits in den 1990er Jahren grundlegend modernisiert. Die Warmwasserversorgung wurde 2019 durch einen neuen Speicher ergänzt, und die Leitungssysteme wurden 2015 erneuert. Das gesamte Haus präsentiert sich in einem durchweg gehobenen Ausstattungsstandard.
Die Böden sind geschmackvoll gestaltet und passen zum Charakter des Hauses: In den Schlafzimmern wurde teilweise Teppichboden verlegt, in anderen Räumen sorgen Holzdielen, unter anderem Pitch Pine im Erdgeschoss, für eine wohnliche Atmosphäre, und im Eingangsbereich des Erdgeschosses und in den Bädern wurden Marmorfliesen verwendet. Das Bad im 1. Obergeschoss ist mit einer Dusche, einer Badewanne sowie Fenster ausgestattet und bietet so hohen Komfort. Das Badezimmer im 2. Obergeschoss verfügt über eine praktische Duschwanne.
Die Etagen sind mit einer außergewöhnlich gestalteten, geschwungenen Barocktreppe verbunden.
Auch das Gästehaus wurde umfassend modernisiert: Hier wurden im Jahr 2008 das Dach und die Außenwände gedämmt, die Dacheindeckung sowie das Bad und die Leitungssysteme erneuert. Das gesamte Ensemble besticht durch seinen gepflegten Zustand und eine durchdachte, hochwertige Ausstattung, die den Charme des historischen Gebäudes bewahrt und gleichzeitig modernen Ansprüchen gerecht wird.
Sonstige Informationen
Falls Sie Wert auf eine ruhige Lage, eine durchdachte Raumaufteilung und ein gehobenes Wohnumfeld legen, könnte dieses Objekt genau das Richtige für Sie sein. Wir bieten Ihnen eine kostenlose 24/7-Hotline unter der Rufnummer 0800-6460646, über die Sie uns jederzeit erreichen können.
Wenn Sie Interesse an der Immobilie haben, fordern Sie gerne das ausführliche Exposé an, das Ihnen in der Regel kurzfristig und automatisch zugesandt wird. Sollten Sie eine Besichtigung wünschen, antworten Sie am besten direkt per E-Mail auf das Exposé. Wir setzen uns umgehend mit Ihnen in Verbindung und unterbreiten Ihnen passende Terminvorschläge. Bitte geben Sie dabei stets Ihre vollständigen Kontaktdaten an.
Die Objektbeschreibung basiert ganz oder teilweise auf den Angaben des Eigentümers. Für die Richtigkeit und Vollständigkeit dieser Informationen übernehmen wir keine Gewähr.
Möchten auch Sie Ihre Immobilie professionell vermarkten? Dann kontaktieren Sie uns gerne! Wir stehen Ihnen täglich von Montag bis Sonntag zwischen 6:00 und 22:00 Uhr persönlich zur Verfügung. Über 200.000 aktive Interessenten warten bereits auf Ihr Angebot.
Bitte beachten Sie, dass das Exposé möglicherweise unter Zuhilfenahme von Künstlicher Intelligenz (KI) erstellt oder überarbeitet wurde. Dabei wurden jedoch keine wesentlichen Merkmale verändert.
Wenn Sie Interesse an der Immobilie haben, fordern Sie gerne das ausführliche Exposé an, das Ihnen in der Regel kurzfristig und automatisch zugesandt wird. Sollten Sie eine Besichtigung wünschen, antworten Sie am besten direkt per E-Mail auf das Exposé. Wir setzen uns umgehend mit Ihnen in Verbindung und unterbreiten Ihnen passende Terminvorschläge. Bitte geben Sie dabei stets Ihre vollständigen Kontaktdaten an.
Die Objektbeschreibung basiert ganz oder teilweise auf den Angaben des Eigentümers. Für die Richtigkeit und Vollständigkeit dieser Informationen übernehmen wir keine Gewähr.
Möchten auch Sie Ihre Immobilie professionell vermarkten? Dann kontaktieren Sie uns gerne! Wir stehen Ihnen täglich von Montag bis Sonntag zwischen 6:00 und 22:00 Uhr persönlich zur Verfügung. Über 200.000 aktive Interessenten warten bereits auf Ihr Angebot.
Bitte beachten Sie, dass das Exposé möglicherweise unter Zuhilfenahme von Künstlicher Intelligenz (KI) erstellt oder überarbeitet wurde. Dabei wurden jedoch keine wesentlichen Merkmale verändert.
Lage des Objektes
Diese Immobilie besticht durch ihre hervorragende Lage und die Vielzahl an Annehmlichkeiten, die sie umgeben. Besonders für Familien ist die Nähe zu Bildungseinrichtungen ein großer Vorteil. Der Katholische Kindergarten St. Severin und die renommierte École de Gaulle-Adenauer sind beide bequem zu Fuß erreichbar, was den Alltag mit Kindern erheblich erleichtert und den Schulweg zu einem sicheren und stressfreien Erlebnis macht.
Die Anbindung an den öffentlichen Nahverkehr ist ausgezeichnet und bietet Flexibilität für alle Bewohner. Die nächste Bushaltestelle ist nur wenige Gehminuten entfernt, sodass Sie schnell und bequem in die umliegenden Stadtteile gelangen können. Auch die Tram-Station Königswinter Denkmal ist schnell zu erreichen, was die Mobilität ohne Auto erheblich vereinfacht. Für Pendler ist die Autobahnauffahrt in etwa 6 km Entfernung eine praktische Option, die eine schnelle Verbindung zu den größeren Städten der Region ermöglicht.
Für den täglichen Bedarf stehen zahlreiche Einkaufsmöglichkeiten zur Verfügung. Ein moderner EDEKA-Supermarkt befindet sich in der Nähe und bietet ein umfassendes Sortiment an frischen Lebensmitteln und Haushaltswaren. Mehrere Bäckereien und Cafés laden zu einem gemütlichen Frühstück oder einem entspannten Nachmittag bei Kaffee und Kuchen ein. Die Vielfalt der kulinarischen Angebote in der Umgebung sorgt dafür, dass für jeden Geschmack etwas dabei ist.
Die Gesundheitsversorgung ist ebenfalls hervorragend abgedeckt. Mehrere Arztpraxen und Apotheken sind in der Umgebung ansässig, sodass medizinische Versorgung jederzeit gewährleistet ist. Das Cura Krankenhaus Bad Honnef ist nur eine kurze Fahrt entfernt und bietet umfassende medizinische Dienstleistungen, was ein beruhigendes Gefühl der Sicherheit vermittelt.
Die Nähe zu kulturellen und Freizeitangeboten rundet das Angebot dieser Immobilie perfekt ab. Die historische Burgruine Drachenfels und das beeindruckende Schloß Drachenburg bieten interessante Ausflugsziele für Geschichtsinteressierte und Naturliebhaber. Der nahegelegene Park lädt zu entspannenden Spaziergängen ein und bietet eine grüne Oase der Ruhe inmitten des städtischen Lebens.
Für Reisende ist der Flughafen Köln/Bonn in etwa 30 km Entfernung erreichbar, was sowohl für Geschäftsreisende als auch für Urlaubsreisende von Vorteil ist. Diese Lage kombiniert die Vorzüge einer ruhigen Wohngegend mit der Nähe zu wichtigen Einrichtungen und Verkehrsanbindungen, was sie zu einem idealen Wohnort für Menschen in jeder Lebensphase macht. Ob Sie die Ruhe der Natur genießen oder die Vorzüge der Stadt nutzen möchten, diese Immobilie bietet Ihnen beides in perfekter Harmonie.
Die Anbindung an den öffentlichen Nahverkehr ist ausgezeichnet und bietet Flexibilität für alle Bewohner. Die nächste Bushaltestelle ist nur wenige Gehminuten entfernt, sodass Sie schnell und bequem in die umliegenden Stadtteile gelangen können. Auch die Tram-Station Königswinter Denkmal ist schnell zu erreichen, was die Mobilität ohne Auto erheblich vereinfacht. Für Pendler ist die Autobahnauffahrt in etwa 6 km Entfernung eine praktische Option, die eine schnelle Verbindung zu den größeren Städten der Region ermöglicht.
Für den täglichen Bedarf stehen zahlreiche Einkaufsmöglichkeiten zur Verfügung. Ein moderner EDEKA-Supermarkt befindet sich in der Nähe und bietet ein umfassendes Sortiment an frischen Lebensmitteln und Haushaltswaren. Mehrere Bäckereien und Cafés laden zu einem gemütlichen Frühstück oder einem entspannten Nachmittag bei Kaffee und Kuchen ein. Die Vielfalt der kulinarischen Angebote in der Umgebung sorgt dafür, dass für jeden Geschmack etwas dabei ist.
Die Gesundheitsversorgung ist ebenfalls hervorragend abgedeckt. Mehrere Arztpraxen und Apotheken sind in der Umgebung ansässig, sodass medizinische Versorgung jederzeit gewährleistet ist. Das Cura Krankenhaus Bad Honnef ist nur eine kurze Fahrt entfernt und bietet umfassende medizinische Dienstleistungen, was ein beruhigendes Gefühl der Sicherheit vermittelt.
Die Nähe zu kulturellen und Freizeitangeboten rundet das Angebot dieser Immobilie perfekt ab. Die historische Burgruine Drachenfels und das beeindruckende Schloß Drachenburg bieten interessante Ausflugsziele für Geschichtsinteressierte und Naturliebhaber. Der nahegelegene Park lädt zu entspannenden Spaziergängen ein und bietet eine grüne Oase der Ruhe inmitten des städtischen Lebens.
Für Reisende ist der Flughafen Köln/Bonn in etwa 30 km Entfernung erreichbar, was sowohl für Geschäftsreisende als auch für Urlaubsreisende von Vorteil ist. Diese Lage kombiniert die Vorzüge einer ruhigen Wohngegend mit der Nähe zu wichtigen Einrichtungen und Verkehrsanbindungen, was sie zu einem idealen Wohnort für Menschen in jeder Lebensphase macht. Ob Sie die Ruhe der Natur genießen oder die Vorzüge der Stadt nutzen möchten, diese Immobilie bietet Ihnen beides in perfekter Harmonie.
Anbieter kontaktieren
Anbieter
FALC Immobilien GmbH & Co. KG
Humperdickstr. 3
53773 Hennef (Sieg)
Kontakt
| Telefon | +49 2242 90103611 |
| Mobil | +49 172 7146625 |
| Fax | +49 2242 9010319 |
| Website | www.falcimmo.de |
