Wohnen im Einfamilienhaus - am Fuße von Schloss Augustusburg
485.000 €
Kaufpreis
263 m²
Wohnfläche
8
Zimmer
immobilien.de Nr.: 9131854
Objektnummer: 493141
Preise & Kosten
| Kaufpreis | 485.000 € |
| Nebenkosten | keine Angabe |
| Maklerprovision | 3,57 % (inkl. MwSt.) |
Größe & Zustand
| Wohnfläche | 263 m² |
| Grundstücksfläche | 1.400 m² |
| Zimmer | 8 |
| Baujahr | 2000 |
| Verfügbar ab | sofort |
| Zustand | Gepflegt |
Energie
| Energieausweistyp | Verbrauch |
| Ausstellungsdatum | 26. 09. 2023 |
| Baujahr (laut Energieausweis) | 2000 |
| Energieeffizienzklasse | B |
| Energieverbrauchkennwert | 50.3 kWh/(m²*a) |
| Heizungsart | Zentralheizung |
| Wesentlicher Energieträger | Öl |
| Energieträger/Befeuerung | Öl |
Objektbeschreibung
In Kunnersdorf, nur etwa acht Minuten vom eindrucksvollen Schloss Augustusburg entfernt, erwartet Sie ein freistehendes Wohnhaus, das mehr ist als nur vier Wände und ein Dach: Es ist ein Ort, an dem Leben entsteht, mit Platz für Familie, Rückzug und gemeinsames Erleben.
Massiv gebaut. Durchdacht geplant.
Das im Jahr 2000 errichtete Wohnhaus überzeugt mit seiner soliden Massivbauweise und einer vielseitigen Raumaufteilung, die sich perfekt an unterschiedliche Lebensmodelle anpasst. Insgesamt fast drei vollwertige Etagen eröffnen zahlreiche Möglichkeiten - sei es für Mehrgenerationenwohnen, Homeoffice oder separate Wohnbereiche.
Die Aufteilung im Überblick:
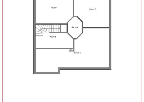
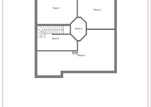
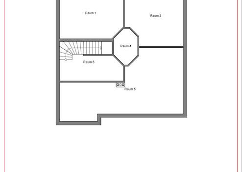
Erdgeschoss - Der zentrale Lebensmittelpunkt
Ein geräumiger Flur verbindet alle Räume auf dieser Ebene: das Kaminzimmer als gemütlicher Treffpunkt, die Küche, das Speisezimmer, ein Schlaf-/Kinderzimmer sowie ein Badezimmer und ein Gäste-WC. Herzstück ist der verglaste Wintergarten mit elektrischer Sonnenmarkise - perfekt, um hier morgens in den Tag zu starten oder abends zur Ruhe zu kommen.
Dachgeschoss - Eigenständiger Bereich mit Weitblick
Auch das Dachgeschoss ist vollständig ausgebaut und bietet eine zweite Wohneinheit mit Wohnzimmer, Küche, Bad und zwei weiteren Zimmern. Der Balkon öffnet den Blick in den gepflegten Garten - ein Ort für entspannte Sommerabende.
Souterrain - Vielseitig nutzbar mit eigenem Zugang
Mit separatem Eingang eignet sich der Souterrainbereich ideal als Einliegerwohnung. Zwei Zimmer, ein Bad mit Dusche und eine moderne Sauna machen diesen Bereich besonders attraktiv - ob als Gästebereich, Büro oder vielleicht auch zur Vermietung.
Außenbereich - Durchdacht bis ins Detail
Das ca. 870 qm große Grundstück bietet ausreichend Platz für Gartenfreude, Freizeit oder einfach Ruhe. Für Fahrzeuge stehen zwei offene Stellplätze sowie zwei Garagen zur Verfügung.
Weitere Angebote unter www.GARANT-IMMO.de
Massiv gebaut. Durchdacht geplant.
Das im Jahr 2000 errichtete Wohnhaus überzeugt mit seiner soliden Massivbauweise und einer vielseitigen Raumaufteilung, die sich perfekt an unterschiedliche Lebensmodelle anpasst. Insgesamt fast drei vollwertige Etagen eröffnen zahlreiche Möglichkeiten - sei es für Mehrgenerationenwohnen, Homeoffice oder separate Wohnbereiche.
Die Aufteilung im Überblick:
Erdgeschoss - Der zentrale Lebensmittelpunkt
Ein geräumiger Flur verbindet alle Räume auf dieser Ebene: das Kaminzimmer als gemütlicher Treffpunkt, die Küche, das Speisezimmer, ein Schlaf-/Kinderzimmer sowie ein Badezimmer und ein Gäste-WC. Herzstück ist der verglaste Wintergarten mit elektrischer Sonnenmarkise - perfekt, um hier morgens in den Tag zu starten oder abends zur Ruhe zu kommen.
Dachgeschoss - Eigenständiger Bereich mit Weitblick
Auch das Dachgeschoss ist vollständig ausgebaut und bietet eine zweite Wohneinheit mit Wohnzimmer, Küche, Bad und zwei weiteren Zimmern. Der Balkon öffnet den Blick in den gepflegten Garten - ein Ort für entspannte Sommerabende.
Souterrain - Vielseitig nutzbar mit eigenem Zugang
Mit separatem Eingang eignet sich der Souterrainbereich ideal als Einliegerwohnung. Zwei Zimmer, ein Bad mit Dusche und eine moderne Sauna machen diesen Bereich besonders attraktiv - ob als Gästebereich, Büro oder vielleicht auch zur Vermietung.
Außenbereich - Durchdacht bis ins Detail
Das ca. 870 qm große Grundstück bietet ausreichend Platz für Gartenfreude, Freizeit oder einfach Ruhe. Für Fahrzeuge stehen zwei offene Stellplätze sowie zwei Garagen zur Verfügung.
Weitere Angebote unter www.GARANT-IMMO.de
Ausstattung
| Anzahl der Etagen im Haus | 1 |
| Bad | 2 |
| Boden | Fliesen, Linoleum |
| Balkone | 1 |
- massiv gebaut
- Kaminzimmer
- Balkon
- Wintergarten
- Souterrain mit separatem Eingang
- Sauna
- Oelheizung mit 4000 Ltr. Tank
- separater Kühlraum neben der Garage
- Sanitätbereiche gefliest
- Flurbereiche gefliest
- Kaminzimmer
- Balkon
- Wintergarten
- Souterrain mit separatem Eingang
- Sauna
- Oelheizung mit 4000 Ltr. Tank
- separater Kühlraum neben der Garage
- Sanitätbereiche gefliest
- Flurbereiche gefliest
Sonstige Informationen
Ein Haus, das mitwächst!
Ob für große Familien, als Rückzugsort mit flexiblen Nutzungsmöglichkeiten oder als Kombination aus Wohnen und Vermieten, dieses Zuhause passt sich an Ihr Leben an. Lassen Sie sich inspirieren und entdecken Sie Ihr neues Kapitel in Kunnersdorf.
Ob für große Familien, als Rückzugsort mit flexiblen Nutzungsmöglichkeiten oder als Kombination aus Wohnen und Vermieten, dieses Zuhause passt sich an Ihr Leben an. Lassen Sie sich inspirieren und entdecken Sie Ihr neues Kapitel in Kunnersdorf.
Lage des Objektes
Ruhig wohnen, gut angebunden
Das Wohnhaus befindet sich in Kunnersdorf, einem idyllischen Ortsteil der Stadt Augustusburg, eingebettet in die grüne Hügellandschaft des Erzgebirges. Die Lage verbindet das Beste aus zwei Welten: viel Ruhe, Natur und Privatsphäre und gleichzeitig eine gute Anbindung an die umliegenden Städte.
Nur etwa 8 Minuten entfernt liegt Augustusburg mit Einkaufsmöglichkeiten, Ärzten, Schulen und dem berühmten Schloss. Die Stadt Zschopau ist in rund 15 Minuten erreichbar und bietet eine solide städtische Infrastruktur mit Fachärzten, Supermärkten und gastronomischem Angebot.
Auch die Großstadt Chemnitz liegt nur ca. 30 Fahrminuten entfernt, ideal für Pendler oder alle, die städtisches Leben und kulturelle Angebote schätzen. Dank der regionalen Busanbindung und der gut ausgebauten Landstraßen ist der Standort verkehrstechnisch sehr gut erschlossen.
Kindergärten befinden sich direkt im Ort oder in den umliegenden Stadtteilen, Grund- und Oberschulen sind im nahen Umfeld bequem zu erreichen. Auch für Freizeit, Natur und Sport bietet die Region rund um Kunnersdorf zahlreiche Möglichkeiten.
Das Wohnhaus befindet sich in Kunnersdorf, einem idyllischen Ortsteil der Stadt Augustusburg, eingebettet in die grüne Hügellandschaft des Erzgebirges. Die Lage verbindet das Beste aus zwei Welten: viel Ruhe, Natur und Privatsphäre und gleichzeitig eine gute Anbindung an die umliegenden Städte.
Nur etwa 8 Minuten entfernt liegt Augustusburg mit Einkaufsmöglichkeiten, Ärzten, Schulen und dem berühmten Schloss. Die Stadt Zschopau ist in rund 15 Minuten erreichbar und bietet eine solide städtische Infrastruktur mit Fachärzten, Supermärkten und gastronomischem Angebot.
Auch die Großstadt Chemnitz liegt nur ca. 30 Fahrminuten entfernt, ideal für Pendler oder alle, die städtisches Leben und kulturelle Angebote schätzen. Dank der regionalen Busanbindung und der gut ausgebauten Landstraßen ist der Standort verkehrstechnisch sehr gut erschlossen.
Kindergärten befinden sich direkt im Ort oder in den umliegenden Stadtteilen, Grund- und Oberschulen sind im nahen Umfeld bequem zu erreichen. Auch für Freizeit, Natur und Sport bietet die Region rund um Kunnersdorf zahlreiche Möglichkeiten.
Anbieter kontaktieren
Kontakt
| Telefon | 0341 583119-00 |
| Fax | 0341 583119-20 |
| Website | www.garant-immo.de |
