Neubau-Erstbezug - Hervorragende Lage - Stimmige Architektur (Wohnung 8)
1.030.260 €
Kaufpreis
129 m²
Wohnfläche
4
Zimmer
immobilien.de Nr.: 9122122
Objektnummer: 202152
Preise & Kosten
| Kaufpreis | 1.030.260 € |
| Nebenkosten | keine Angabe |
| Stellplatz Tiefgarage Kaufpreis | 35.000 € |
Größe & Zustand
| Wohnfläche | 129 m² |
| Zimmer | 4 |
| Baujahr | 2025 |
| Verfügbar ab | nach Fertigstellung |
| Zustand | Erstbezug |
Energie
| Energieausweistyp | Bedarfsausweis |
| Ausstellungsdatum | 11. 04. 2024 |
| Baujahr (laut Energieausweis) | 2025 |
| Energieeffizienzklasse | A+ |
| Endenergiebedarf | 14 |
| Wesentlicher Energieträger | Strom |
| Energieträger/Befeuerung | Elektro |
Objektbeschreibung
In naturnaher Umgebung entsteht "Am Schweigeracker 1, 90425 Nürnberg-Thon" eine moderne Wohnanlage mit 9 Wohneinheiten. Diese wert- und nachhaltig konzipierte Dachterrassenwohnung ist eine ideale Investitionsmöglichkeit für Kapitalanleger, Familien oder Paare, die einfach nur "großzügig wohnen" möchten. Sie punktet mit einem großzügigen Schnitt und bietet enorm viel Platz auf zwei Ebenen. Auf den beiden Dachterrassen genießen Sie neben einem Sonnenbad auch einen paradiesischen Blick über die Stadt..., eine Wohlfühloase in luftiger Höhe.
Das 1. Dachgeschoss beherbergt Garderobe, Flur, Abstellraum, WC, Schlafzimmer mit "En Suite Bad" und Kinderzimmer. Das Herzstück auf dieser Ebene ist der offene Koch-/Ess-/Wohnbereich mit einem besonderen Highlight - eine Galerie. Sie offeriert weitläufige Aussicht, mehr Licht und das Gefühl der grenzenlosen Freiheit..., Luxus pur.
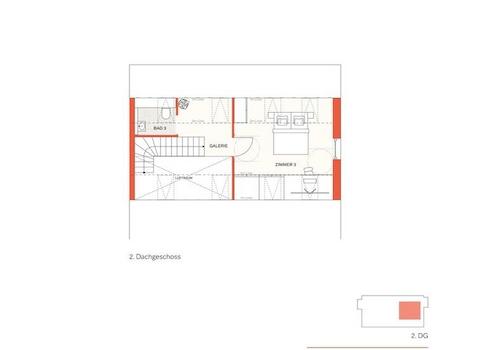
Zwei weiteres Schlafzimmer sowie eine Toilette stehen Ihnen im 2. Dachgeschoss zur Verfügung.
Für diese Wohnung ist ein Tiefgaragenstellplatz vorgesehen, welcher für 35.000,-- Euro zu erwerben ist.
Weitere Angebote unter www.GARANT-IMMO.de
Das 1. Dachgeschoss beherbergt Garderobe, Flur, Abstellraum, WC, Schlafzimmer mit "En Suite Bad" und Kinderzimmer. Das Herzstück auf dieser Ebene ist der offene Koch-/Ess-/Wohnbereich mit einem besonderen Highlight - eine Galerie. Sie offeriert weitläufige Aussicht, mehr Licht und das Gefühl der grenzenlosen Freiheit..., Luxus pur.
Zwei weiteres Schlafzimmer sowie eine Toilette stehen Ihnen im 2. Dachgeschoss zur Verfügung.
Für diese Wohnung ist ein Tiefgaragenstellplatz vorgesehen, welcher für 35.000,-- Euro zu erwerben ist.
Weitere Angebote unter www.GARANT-IMMO.de
Ausstattung
| Anzahl der Etagen im Haus | 3 |
| Inserat befindet sich im Stockwerk | 2 |
| Bad | 2 |
| Boden | Fliesen, Parkett, Fertigparkett, Laminat |
| Balkone | 1 |
| Terrassen | 1 |
| Fahrstuhl |
* KfW-Effizienzhaus 40 EE Massivbauweise
* extra hohe Decken
* extra hohe Türen (2,13m)
* bodentiefe Fensterflächen mit 3-fach Wärmeschutzverglasung
* Tageslichtduschbad mit Waschmaschinen- und Trockneranschluß
* Gästetoilette mit Dusche
* Toilette/Dusche im 2. Obergeschoss
* elektrische Rollläden
* Parkett, Design-Vinylboden oder Laminatboden
(nach Wunsch des Kunden)
* Fußbodenheizung mit Einzelraumthermostaten
* Personenaufzug
* Süd-Dachterrasse
* Ost-Dachterrasse
* Galerie
* eigenes Kellerabteil im Untergeschoss
* Abstellplätze für Fahr- und Motorräder
* Wärmepumpe und Photovoltaikanlage
* Wohnraum-Einzellüfter mit Wärmerückgewinnung
* frostsicherer Gartenwasseranschluss
* Kinderspielplatz (bei Bedarf)
* extra hohe Decken
* extra hohe Türen (2,13m)
* bodentiefe Fensterflächen mit 3-fach Wärmeschutzverglasung
* Tageslichtduschbad mit Waschmaschinen- und Trockneranschluß
* Gästetoilette mit Dusche
* Toilette/Dusche im 2. Obergeschoss
* elektrische Rollläden
* Parkett, Design-Vinylboden oder Laminatboden
(nach Wunsch des Kunden)
* Fußbodenheizung mit Einzelraumthermostaten
* Personenaufzug
* Süd-Dachterrasse
* Ost-Dachterrasse
* Galerie
* eigenes Kellerabteil im Untergeschoss
* Abstellplätze für Fahr- und Motorräder
* Wärmepumpe und Photovoltaikanlage
* Wohnraum-Einzellüfter mit Wärmerückgewinnung
* frostsicherer Gartenwasseranschluss
* Kinderspielplatz (bei Bedarf)
Sonstige Informationen
Aktuell befindet sich das Objekt im Rohbau - Bodenbeläge können nach Wunsch des Kunden ausgesucht werden.
Lineare Abschreibung: Lineare AfA gem. § 7 Abs. 4 Satz 1 Nr. 2 EStG, 3,0 % linear für die Dauer von 33 Jahren, bezogen auf die Neubausubstanz (Errichtung nach dem 31.12.2022 gemäß JStG 2022).
Dazu kommt nach aktueller Gesetzeslage wegen der Änderung durch das Wachstumschancengesetz (rück-führende Einführung einer degressiven Sonder-Afa voraussichtlich ab 01.10.2023) eine Sonderabschreibung in Höhe von 5 % zur Anwendung. Im ersten Jahr können 5 % der Investitionskosten geltend gemacht werden und danach 5 % des Restwertes.
Das Gebäude wird als "KFW-Effizienzhaus 40 EE" in Massivbauweise errichtet.
Ein Energieausweis wird rechtzeitig erstellt. Gemäß Förderprogramm KfW-Effizienzhaus 40 (KfW-Kredit Nr. 261) sind 150.000 Euro Kreditsumme pro Wohneinheit möglich.
Lineare Abschreibung: Lineare AfA gem. § 7 Abs. 4 Satz 1 Nr. 2 EStG, 3,0 % linear für die Dauer von 33 Jahren, bezogen auf die Neubausubstanz (Errichtung nach dem 31.12.2022 gemäß JStG 2022).
Dazu kommt nach aktueller Gesetzeslage wegen der Änderung durch das Wachstumschancengesetz (rück-führende Einführung einer degressiven Sonder-Afa voraussichtlich ab 01.10.2023) eine Sonderabschreibung in Höhe von 5 % zur Anwendung. Im ersten Jahr können 5 % der Investitionskosten geltend gemacht werden und danach 5 % des Restwertes.
Das Gebäude wird als "KFW-Effizienzhaus 40 EE" in Massivbauweise errichtet.
Ein Energieausweis wird rechtzeitig erstellt. Gemäß Förderprogramm KfW-Effizienzhaus 40 (KfW-Kredit Nr. 261) sind 150.000 Euro Kreditsumme pro Wohneinheit möglich.
Lage des Objektes
Das traumhafte Domizil liegt, zentrumsnah und ruhig, in unmittelbarer Nähe vom Volkspark Marienberg in Nürnberg. Das angrenzende Knoblauchsland mit seinen fruchtbaren Feldern, lädt zu entspannenden Spaziergängen ein, hier ist Erholung garantiert. Trotz der harmonischen Umgebung verzichten Sie keineswegs auf den Komfort einer Großstadt.
Der überaus beliebte Nürnberger Stadtteil Thon bietet eine Vielfalt an Einkaufsmöglichkeiten sowie kulinarische und kulturelle Angebote. Ärzte, diverse Schulen, ein Kindergarten sowie zahlreiche Möglichkeiten zur sportlichen Betätigung sind vorhanden und allesamt fußläufig oder mit dem Fahrrad erreichbar.
Ihr Auto lassen Sie stehen, denn die nahe gelegenen Bushaltestellen gewähren eine optimale Anbindung an den öffentlichen Nahverkehr. Für Vielreisende sind die mit dem PKW schnell erreichten Anbindungen an die A73, A3, A6 und A9 von großem Vorteil.
Der überaus beliebte Nürnberger Stadtteil Thon bietet eine Vielfalt an Einkaufsmöglichkeiten sowie kulinarische und kulturelle Angebote. Ärzte, diverse Schulen, ein Kindergarten sowie zahlreiche Möglichkeiten zur sportlichen Betätigung sind vorhanden und allesamt fußläufig oder mit dem Fahrrad erreichbar.
Ihr Auto lassen Sie stehen, denn die nahe gelegenen Bushaltestellen gewähren eine optimale Anbindung an den öffentlichen Nahverkehr. Für Vielreisende sind die mit dem PKW schnell erreichten Anbindungen an die A73, A3, A6 und A9 von großem Vorteil.
