Wohntraum mit Zukunft: Energieeffiziente Neubauwohnung in kleiner Anlage - Individuell gestaltbar!
784.000 €
Kaufpreis
82 m²
Wohnfläche
3
Zimmer
immobilien.de Nr.: 9092753
Objektnummer: 817131
Preise & Kosten
| Kaufpreis | 784.000 € |
| Nebenkosten | keine Angabe |
| Stellplatz Garage Kaufpreis | 35.000 € |
Größe & Zustand
| Wohnfläche | 82 m² |
| Zimmer | 3 |
| Baujahr | 2027 |
| Verfügbar ab | Anfang 2027 |
| Zustand | Erstbezug |
Objektbeschreibung
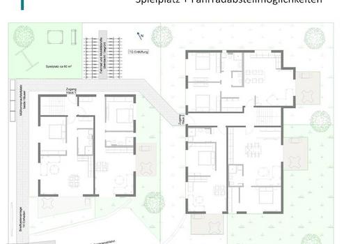
In ruhiger, gewachsener Nachbarschaft entsteht eine kleine, exklusive Wohnanlage mit nur 14 Wohnungen - Hochwertig in Massivbauweise gebaut und durchdacht geplant. Zwei moderne Mehrfamilienhäuser auf einem ca. 1.307 qm großen Grundstück bieten Wohnkomfort, Energieeffizienz und Individualität.
Ihre Wünsche zählen:
Ob begehbarer Kleiderschrank, mit oder ohne Gäste-WC, Badewanne oder Dusche, Parkett oder Fliesen, eine Abstellkammer in der Wohnung - Je nach Baufortschritt können Sie mitgestalten! Nach Möglichkeit setzen wir Ihre Ideen um.
Für Eigennutzer oder Kapitalanleger:
Moderne Grundrisse, helle Räume und hochwertige Ausstattung sichern optimale Vermietbarkeit und langfristige Wertstabilität. Ihre zukunftssichere Kapitalanlage!
Profitieren Sie von der 5% AfA für Neubauwohnungen ideal für Kapitalanleger, die steuerliche Vorteile nutzen möchten.
Nachhaltig & komfortabel:
* Energieeffiziente Wärmepumpe mit Sonnenunterstützung
* Fußbodenheizung, kühlt im Sommer
* Gäste-WC
* zwei Balkone
* Dreifachverglaste Kunststoff-Alu-Fenster
* Tiefgaragenstellplatz mit Stromanschluss
* Kellerabteil mit Licht & Steckdose
* Fahrradhäuschen für Räder & Kinderwägen
Geplanter Einzug: Anfang 2027
Neugierig? Wir freuen uns auf Ihre Anfrage und zeigen Ihnen gern das Grundstück sowie bereits fertiggestellte Wohnungen des Bauträgers.
Weitere Angebote unter www.GARANT-IMMO.de
Ihre Wünsche zählen:
Ob begehbarer Kleiderschrank, mit oder ohne Gäste-WC, Badewanne oder Dusche, Parkett oder Fliesen, eine Abstellkammer in der Wohnung - Je nach Baufortschritt können Sie mitgestalten! Nach Möglichkeit setzen wir Ihre Ideen um.
Für Eigennutzer oder Kapitalanleger:
Moderne Grundrisse, helle Räume und hochwertige Ausstattung sichern optimale Vermietbarkeit und langfristige Wertstabilität. Ihre zukunftssichere Kapitalanlage!
Profitieren Sie von der 5% AfA für Neubauwohnungen ideal für Kapitalanleger, die steuerliche Vorteile nutzen möchten.
Nachhaltig & komfortabel:
* Energieeffiziente Wärmepumpe mit Sonnenunterstützung
* Fußbodenheizung, kühlt im Sommer
* Gäste-WC
* zwei Balkone
* Dreifachverglaste Kunststoff-Alu-Fenster
* Tiefgaragenstellplatz mit Stromanschluss
* Kellerabteil mit Licht & Steckdose
* Fahrradhäuschen für Räder & Kinderwägen
Geplanter Einzug: Anfang 2027
Neugierig? Wir freuen uns auf Ihre Anfrage und zeigen Ihnen gern das Grundstück sowie bereits fertiggestellte Wohnungen des Bauträgers.
Weitere Angebote unter www.GARANT-IMMO.de
Ausstattung
| Anzahl der Etagen im Haus | 2 |
| Inserat befindet sich im Stockwerk | 1 |
| Bad | 2 |
| Boden | Fliesen, Parkett |
| Balkone | 1 |
| Garage/Stellplätze | 1 |
Auf einen Blick:
* vergünstigte qm-Preise bis Fertigstellung des Rohbaus
* Je nach Bau-/Planungsfortschritt erfüllen wir
gerne Ihre Wünsche!
* Fertigstellung Anfang 2027
* KfW55 Haus, Effizienzklasse A+
* Heizung erfolgt durch klimafreundliche Wärmepumpe
mit Sonnenunterstützung
* Fußbodenheizung
* Parkettboden in der ganzen Wohnung
* Videogegenprechanlage
* elektrische Rollläden an allen Fenstern
* hochwertige dreifachverglaste Kunststoff-Alu-Fenster
* nur einen Schlüssel dank Schließanlage
* Platz für die Waschmaschine im Badezimmer
* Kellerabteil mit Steckdose
* Farradhäuschen
* Stromanschluss am Tiefgaragenstellplatz
(für Wallbox)
Auf Wunsch möglich:
* Smarthomesystem zur Steuerung der Beleuchtung,
Heizung und Rollläden
* dimmbare LED-Beleuchtung
* Küchenplanung
* vergünstigte qm-Preise bis Fertigstellung des Rohbaus
* Je nach Bau-/Planungsfortschritt erfüllen wir
gerne Ihre Wünsche!
* Fertigstellung Anfang 2027
* KfW55 Haus, Effizienzklasse A+
* Heizung erfolgt durch klimafreundliche Wärmepumpe
mit Sonnenunterstützung
* Fußbodenheizung
* Parkettboden in der ganzen Wohnung
* Videogegenprechanlage
* elektrische Rollläden an allen Fenstern
* hochwertige dreifachverglaste Kunststoff-Alu-Fenster
* nur einen Schlüssel dank Schließanlage
* Platz für die Waschmaschine im Badezimmer
* Kellerabteil mit Steckdose
* Farradhäuschen
* Stromanschluss am Tiefgaragenstellplatz
(für Wallbox)
Auf Wunsch möglich:
* Smarthomesystem zur Steuerung der Beleuchtung,
Heizung und Rollläden
* dimmbare LED-Beleuchtung
* Küchenplanung
Sonstige Informationen
Sämtliche Informationen stammen vom Verkäufer. Alle Visualisierungen wurden aus Sicht des Illustrators erstellt - Änderungen vorbehalten.
Lage des Objektes
Die Immobilie befindet sich in der begehrten Wohngegend Trudering - im Münchner Osten gelegen und bekannt für seine angenehme Kombination aus städtischem Komfort und naturnahem Wohnen. Die Xaver-Weismor-Straße überzeugt durch ihre ruhige, gepflegte Umgebung mit vorwiegend Einfamilien- und Reihenhäusern sowie kleinen Mehrfamilienhäusern.
In unmittelbarer Nähe finden sich zahlreiche Einkaufsmöglichkeiten, Kindergärten, Schulen sowie ärztliche Versorgung. Für Freizeit und Erholung laden der nahegelegene Truderinger Wald und der Riemer Park zu Spaziergängen, Joggingrunden oder entspannten Nachmittagen im Grünen ein.
Dank der guten Anbindung an den öffentlichen Nahverkehr - Mit der U-Bahn-Linie U2 (Haltestelle Trudering) sowie der S-Bahn (S4/S6) - Ist die Münchner Innenstadt bequem erreichbar. Auch mit dem Auto profitieren Sie von einer schnellen Anbindung an den Mittleren Ring sowie die Autobahnen A94 und A99.
Trudering ist der ideale Wohnort für alle, die ein ruhiges, grünes Umfeld mit guter Infrastruktur und schneller City-Anbindung zu schätzen wissen.
In unmittelbarer Nähe finden sich zahlreiche Einkaufsmöglichkeiten, Kindergärten, Schulen sowie ärztliche Versorgung. Für Freizeit und Erholung laden der nahegelegene Truderinger Wald und der Riemer Park zu Spaziergängen, Joggingrunden oder entspannten Nachmittagen im Grünen ein.
Dank der guten Anbindung an den öffentlichen Nahverkehr - Mit der U-Bahn-Linie U2 (Haltestelle Trudering) sowie der S-Bahn (S4/S6) - Ist die Münchner Innenstadt bequem erreichbar. Auch mit dem Auto profitieren Sie von einer schnellen Anbindung an den Mittleren Ring sowie die Autobahnen A94 und A99.
Trudering ist der ideale Wohnort für alle, die ein ruhiges, grünes Umfeld mit guter Infrastruktur und schneller City-Anbindung zu schätzen wissen.
Anbieter kontaktieren
Kontakt
| Telefon | 089/78 74 790 |
| Fax | 089/78 70 78 55 |
| Website | www.garant-immo.de |
