Reihenmittelhaus mit Nebengelass und Garten zu verkaufen
99.000 €
Kaufpreis
170 m²
Wohnfläche
7
Zimmer
immobilien.de Nr.: 9070322
Objektnummer: 451149
Preise & Kosten
| Kaufpreis | 99.000 € |
| Nebenkosten | keine Angabe |
| Maklerprovision | 5,95 % (inkl. MwSt.) |
Größe & Zustand
| Wohnfläche | 170 m² |
| Grundstücksfläche | 850 m² |
| Zimmer | 7 |
| Baujahr | 1850 |
| Verfügbar ab | sofort |
| Zustand | Teil Vollrenovierungsbed |
Energie
| Energieausweistyp | Bedarfsausweis |
| Ausstellungsdatum | 05. 06. 2023 |
| Baujahr (laut Energieausweis) | 1850 |
| Energieeffizienzklasse | H |
| Endenergiebedarf | 283 |
| Heizungsart | Ofen |
| Wesentlicher Energieträger | Kohle |
| Energieträger/Befeuerung | Kohle |
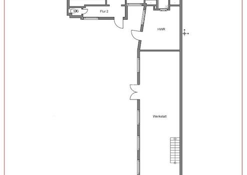
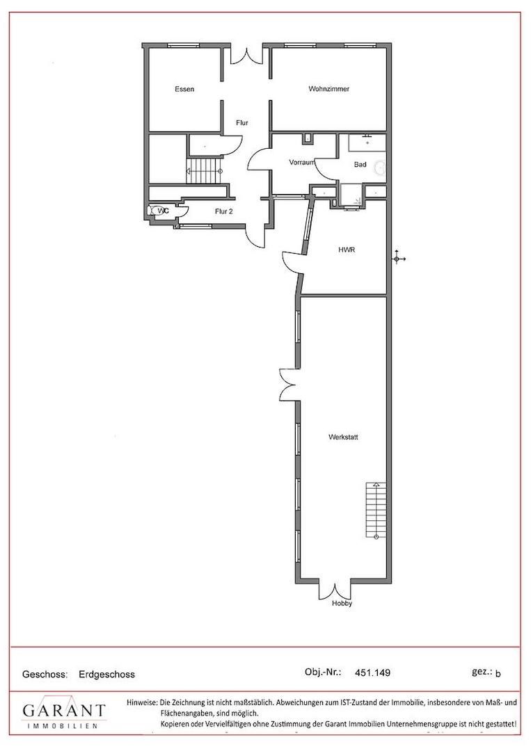
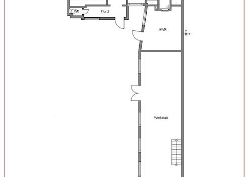
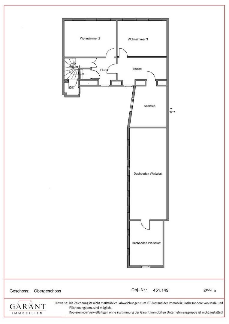
Objektbeschreibung
In der Mutzschener Innenstadt wird ein Reihenmittelhaus mit Nebengelass und Gartenland zum Verkauf angeboten. Das mehrgeschossige Wohnhaus ist aktuell unbewohnt und wird zeitnah von den Erben beräumt.
Die hofseitigen Gewerberäume beherbergten eine Tischlerei.
Weitere Angebote unter www.GARANT-IMMO.de
Die hofseitigen Gewerberäume beherbergten eine Tischlerei.
Weitere Angebote unter www.GARANT-IMMO.de
Ausstattung
| Anzahl der Etagen im Haus | 2 |
| Bad | 1 |
| Boden | Fliesen, Dielen |
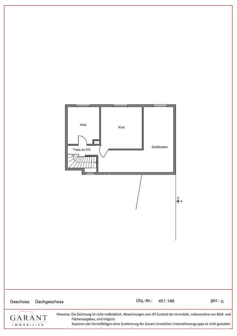
Das Reihenmittelhaus beherbergt zwei Vollgeschosse und ein teilweise für Wohnzwecke ausgebautes Dachgeschoss und ist teilunterkellert. In den Jahren 2004 bis 2005 wurde das Dach neu gedeckt und neue Kunststofffenster eingebaut. Zur Beheizung dienten Einzelöfen, für die Warmwasseraufbereitung wurden Durchlauferhitzer und WW-Boiler genutzt. Der Innenausbau (Elektro, Sanitär, Fußböden, Innentüren) ist nicht mehr zeitgemäß und muss erneuert werden.
Sonstige Informationen
Der südlich vom Haupthaus gelegene Garten ist auch über die Südseite erreichbar und bietet vielfältige Möglichkeiten der Gestaltung.
Lage des Objektes
Mutzschen war eine der kleinsten Städte Sachsens und bietet von der Infrastruktur her alle Funktionen eines Kleinzentrums. Es liegt ca. 14 km östlich von Grimma und ca. 17 km westlich von Oschatz entfernt, südlich des Wermsdorfer Forstes in einer teichreichen Gegend am Nordrand des Mittelsächsischen Hügellandes westlich der Mulde.
Vom Reihenmittelhaus sind es ca. 4 km bis zur Autobahn AS Mutzschen der A14, wovon die Metropolen Leipzig (ca. 40 km) und Dresden (ca. 70 km) schnell zu erreichen sind. Gut 30 Minuten PKW-Fahrzeit sind es bis zur neuen Messe, den BMW- und Porsche-Niederlassungen und ca. 35 Minuten bis zum Flughafen Halle/Leipzig mit dem DHL-Drehkreuz.
Vom Reihenmittelhaus sind es ca. 4 km bis zur Autobahn AS Mutzschen der A14, wovon die Metropolen Leipzig (ca. 40 km) und Dresden (ca. 70 km) schnell zu erreichen sind. Gut 30 Minuten PKW-Fahrzeit sind es bis zur neuen Messe, den BMW- und Porsche-Niederlassungen und ca. 35 Minuten bis zum Flughafen Halle/Leipzig mit dem DHL-Drehkreuz.
Anbieter kontaktieren
Kontakt
| Telefon | 0341 583119-00 |
| Fax | 0341 583119-20 |
| Website | www.garant-immo.de |
