Traumhaus mit Einliegerwohnung inkl. Grundstück
662.500 €
Kaufpreis
168 m²
Wohnfläche
10
Zimmer
immobilien.de Nr.: 9020214
Objektnummer: EFHEWBIRG
Preise & Kosten
| Kaufpreis | 662.500 € |
| Nebenkosten | keine Angabe |
Größe & Zustand
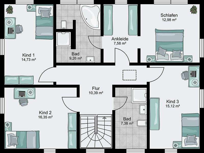
| Wohnfläche | 168 m² |
| Grundstücksfläche | 2.100 m² |
| Zimmer | 10 |
| Verfügbar ab | keine Angabe |
| Zustand | Projektiert |
Energie
| Energietyp | KfW-40 |
| Heizungsart | Zentralheizung |
| Energieträger/Befeuerung | Luft-Wärme-Pumpe |
Objektbeschreibung
Willkommen in Ihrem zukünftigen Traumhaus in Eckertsfeld! Dieses beeindruckende Zweifamilienhaus bietet Ihnen auf großzügigen 168m² Wohnfläche und einem 2100m² großen Grundstück ausreichend Platz für Ihre Familie und Ihre individuellen Wohnbedürfnisse. Mit insgesamt 10 Zimmern, darunter 4 Schlafzimmer, und 2 modernen Badezimmern ist dies der perfekte Ort zum Wohnen und Wohlfühlen. Die durchdachte Planung erstreckt sich über zwei Etagen, sodass jeder Bewohner seinen eigenen Rückzugsort genießen kann. Das Badezimmer ist mit einer Dusche, einer Wanne und einem Fenster ausgestattet - ideal für entspannende Stunden nach einem langen Tag. Genießen Sie den Komfort eines gehobenen Ausstattungsniveaus, das keine Wünsche offenlässt.
Ausstattung
| Anzahl der Etagen im Haus | 2 |
| Bad | 2 |
Das Zweifamilienhaus wird mit einer innovativen Wärmepumpe beheizt, die nicht nur umweltfreundlich ist, sondern auch Ihre Energiekosten senkt. Die Befeuerungsart sorgt für eine effiziente Nutzung erneuerbarer Energien und entspricht dem KfW 40 Standard - perfekt für alle, die Wert auf Nachhaltigkeit legen. Mit dieser Ausstattung profitieren Sie von einem hohen Maß an Energieeffizienz und tragen aktiv zum Klimaschutz bei. Darüber hinaus ermöglicht Ihnen die Ausbaustufe "FastFertigPlus", die haustechnischen Gewerke wie Heizung, Lüftung und Sanitär von Fachbetrieben erledigen zu lassen, während Sie dennoch eigene Ideen in die Gestaltung Ihres neuen Zuhauses einbringen können.
Sonstige Informationen
Mit STREIF haben Sie die Möglichkeit, Ihr eigenes Zweifamilienhaus nach Ihren Vorstellungen zu gestalten. Diese Flexibilität eröffnet Ihnen zahlreiche Nutzungsmöglichkeiten: ob als Generationenhaus, zur Vermietung oder als Kombination aus Wohnen und Arbeiten - jede Variante bringt ihre eigenen Vorteile mit sich. Nutzen Sie den begrenzten Platz optimal aus und schaffen Sie zwei separate Wohneinheiten auf einem Grundstück. Die Ausbaustufe "FastFertigPlus" bietet Ihnen eine solide Grundlage für Ihr individuelles Bauprojekt. Profitieren Sie von Eigenleistungen in Form einer Muskelhypothek zur Kostenersparnis - so reduzieren Sie Ihre Kredithöhe oder verkürzen sogar die Laufzeiten Ihrer Finanzierung.
Lage des Objektes
Das Objekt befindet sich in einer ruhigen Wohngegend in Eckertsfeld, die sowohl ländliche Idylle als auch eine gute Anbindung an städtische Einrichtungen bietet. Hier wohnen Sie nah am Puls der Natur und gleichzeitig in unmittelbarer Nähe zu dem wichtigstem des täglichen Bedarfs. Diese Lage vereint die Vorteile des ländlichen Lebens mit der Erreichbarkeit urbaner Zentren - ideal für Familien und Berufstätige gleichermaßen.
