ZRH489 Mehrfamilienhaus in ruhiger Lage / Regensburg - Schwabelweis
995.000 €
Kaufpreis
382 m²
Wohnfläche
18
Zimmer
immobilien.de Nr.: 9006916
Objektnummer: ZRH 489
Preise & Kosten
| Kaufpreis | 995.000 € |
| Nebenkosten | keine Angabe |
| Maklerprovision | Ortsübliche Provision vom Käufer/Mieter nur im Erfolgsfalle |
Größe & Zustand
| Wohnfläche | 382 m² |
| Gesamtfläche | 382 m² |
| Grundstücksfläche | 738 m² |
| Zimmer | 18 |
| Baujahr | 1934 |
| Verfügbar ab | vermietet |
| Zustand | Teil Vollrenoviert |
Energie
| Heizungsart | Ofen |
Objektbeschreibung
Das ruhig gelegene Mehrfamilienhaus befindet sich in ruhiger Lage in Regensburg - Schwabelweis. Durch die nahegelegene Osttangente ist eine gute Verkehrsanbindung gegeben. Eine Bushaltestelle befindet sich in unmittelbarer Nähe. Einkaufsmöglichkeiten, Kindergarten, Ärzte und Freizeiteinrichtungen sind in der Nähe vorhanden.
Das Haus wurde in Massivbauweise errichtet. 1965 wurde ein Anbau und an das bestehende Haus und ein Treppenhaus erstellt. Im Haus wurden der Dachstuhl, Elektrik und Bäder erneuert. 2010 wurden alle Fenster und Rollläden getauscht und im Haus die Wohnung im Obergeschoss mit dem Dachgeschoss verbunden und saniert. Die Wohnungen wurden laufend instandgehalten, so wurden z. B. die Fußböden, Bäder, Heizöfen und Boiler erneuert. 2023 Die Beheizung erfolgt über Holz- und Elektroöfen. Es sind überwiegend Laminatböden verlegt.
Die schöne 3,5-Zimmerwohnung im Erdgeschoss des Hauses ist im Wohnzimmer mit einer Klimaanlage ausgestattet. Die Terrasse mit angrenzendem Südgarten ist über das Wohnzimmer aus begehbar. Neben der Küche befindet sich das Esszimmer. Das Bad ist mit Fenster, Wanne, Waschbecken, WC und Waschmaschinenanschluss ausgestattet.
Die großzügige 2,5-Zimmerwohnung im Obergeschoss hat eine große und gemütliche Essdiele mit Kachelofen. Von hier aus sind das Schlafzimmer und das Wohnzimmer mit Zugang zum Südbalkon aus begehbar. Das Bad mit Fenster, Dusche, Waschbecken und WC ist deckenhoch hell gefliest. In der Küche ist ausreichend Platz für einen Esstisch.
Die Dachgeschosswohnung ist mit der Obergeschosswohnung zusammengelegt. Eine Trennung ist durch geringe Umbauarbeiten möglich. Sie hat aufgrund des hohen Kniestocks gute Stellmöglichkeiten. Das Bad mit Fenster, Dusche, Waschbecken, WC und Waschmaschinenanschluss ist hell gefliest. Die Küche wird derzeit als Kinderzimmer genutzt.
Im Erd- und Obergeschoss des Anbaus sind identisch geschnittene 2,5-Zimmerwohnungen. Vom Wohnzimmer aus ist die geflieste Südterrasse bzw. der Südbalkon begehbar. Das Schlafzimmer ist sehr geräumig. Das Bad ist mit Fenster, Wanne, Waschbecken, WC und Handtuchheizkörper ausgestattet und hell gefliest.
Die 2-Zimmerwohnung im Dachgeschoss ist gut geschnitten. Die Küche ist mit einer Einbauküche ausgestattet. Das Bad mit Fenster, Wanne, Waschbecken und WC ist gefliest.
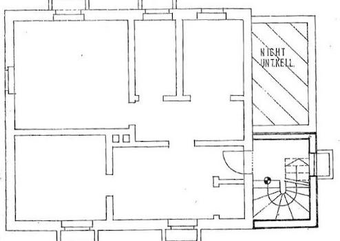
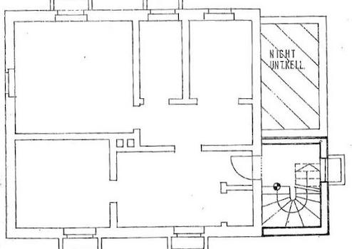
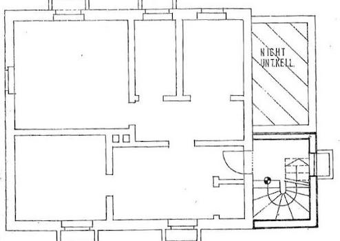
Das Haus und der Anbau sind im Keller miteinander verbunden. Hier befinden sich ein zu jeder Wohnung gehörendes Kellerabteil, der Waschraum mit Platz für die eigene Maschine und gemeinschaftlich genutzte Räume.
Ein Renditeobjekt, das wir gerne mit Ihnen besichtigen.
Das Haus wurde in Massivbauweise errichtet. 1965 wurde ein Anbau und an das bestehende Haus und ein Treppenhaus erstellt. Im Haus wurden der Dachstuhl, Elektrik und Bäder erneuert. 2010 wurden alle Fenster und Rollläden getauscht und im Haus die Wohnung im Obergeschoss mit dem Dachgeschoss verbunden und saniert. Die Wohnungen wurden laufend instandgehalten, so wurden z. B. die Fußböden, Bäder, Heizöfen und Boiler erneuert. 2023 Die Beheizung erfolgt über Holz- und Elektroöfen. Es sind überwiegend Laminatböden verlegt.
Die schöne 3,5-Zimmerwohnung im Erdgeschoss des Hauses ist im Wohnzimmer mit einer Klimaanlage ausgestattet. Die Terrasse mit angrenzendem Südgarten ist über das Wohnzimmer aus begehbar. Neben der Küche befindet sich das Esszimmer. Das Bad ist mit Fenster, Wanne, Waschbecken, WC und Waschmaschinenanschluss ausgestattet.
Die großzügige 2,5-Zimmerwohnung im Obergeschoss hat eine große und gemütliche Essdiele mit Kachelofen. Von hier aus sind das Schlafzimmer und das Wohnzimmer mit Zugang zum Südbalkon aus begehbar. Das Bad mit Fenster, Dusche, Waschbecken und WC ist deckenhoch hell gefliest. In der Küche ist ausreichend Platz für einen Esstisch.
Die Dachgeschosswohnung ist mit der Obergeschosswohnung zusammengelegt. Eine Trennung ist durch geringe Umbauarbeiten möglich. Sie hat aufgrund des hohen Kniestocks gute Stellmöglichkeiten. Das Bad mit Fenster, Dusche, Waschbecken, WC und Waschmaschinenanschluss ist hell gefliest. Die Küche wird derzeit als Kinderzimmer genutzt.
Im Erd- und Obergeschoss des Anbaus sind identisch geschnittene 2,5-Zimmerwohnungen. Vom Wohnzimmer aus ist die geflieste Südterrasse bzw. der Südbalkon begehbar. Das Schlafzimmer ist sehr geräumig. Das Bad ist mit Fenster, Wanne, Waschbecken, WC und Handtuchheizkörper ausgestattet und hell gefliest.
Die 2-Zimmerwohnung im Dachgeschoss ist gut geschnitten. Die Küche ist mit einer Einbauküche ausgestattet. Das Bad mit Fenster, Wanne, Waschbecken und WC ist gefliest.
Das Haus und der Anbau sind im Keller miteinander verbunden. Hier befinden sich ein zu jeder Wohnung gehörendes Kellerabteil, der Waschraum mit Platz für die eigene Maschine und gemeinschaftlich genutzte Räume.
Ein Renditeobjekt, das wir gerne mit Ihnen besichtigen.
Ausstattung
| Keller |
Lage: Regensburg - Schwabelweis
Kaufpreis: EUR 995.000,-
Fläche: ca. 382 m²
Wohnfläche: ca. 382 m³
Grundstück: ca. 738 m²
Zimmeranzahl: 18
Baujahr: 1934
Geschoss(e): E + 1 + D
Bezug: vermietet
Stellplatzanzahl: 2
Stellplatzpreis: EUR 0,-
Jahresnettomiete: EUR 48.024,-
Fußweg zum RVV: 5 min.
Fahrtzeit Bahnhof: 10 min.
Fahrtzeit Autobahn: 5 min.
Fahrtzeit Flughafen: 80 min.
Objekttyp: Mehrfamilienhaus
Zustand: renoviert
Ausstattung: normal
Heizung: Ofenheizung
Keller: ja
Kaufpreis: EUR 995.000,-
Fläche: ca. 382 m²
Wohnfläche: ca. 382 m³
Grundstück: ca. 738 m²
Zimmeranzahl: 18
Baujahr: 1934
Geschoss(e): E + 1 + D
Bezug: vermietet
Stellplatzanzahl: 2
Stellplatzpreis: EUR 0,-
Jahresnettomiete: EUR 48.024,-
Fußweg zum RVV: 5 min.
Fahrtzeit Bahnhof: 10 min.
Fahrtzeit Autobahn: 5 min.
Fahrtzeit Flughafen: 80 min.
Objekttyp: Mehrfamilienhaus
Zustand: renoviert
Ausstattung: normal
Heizung: Ofenheizung
Keller: ja
Sonstige Informationen
Wir befinden uns im Betriebsurlaub. Ab dem 07.01.2026 sind wir wieder wie gewohnt für Sie erreichbar. Um eine schnelle Bearbeitung zu gewähren benötigen wir Ihre Telefonnummer sowie Ihre komplette Adresse.
Anbieter
TRUMMER Immobilien GmbH & Co. KG
Nußbergerstr. 6
93059 Regensburg
Kontakt
| Telefon | 0941/447633 |
| Fax | 0941/41793 |
| Website | www.trummer.de |
