DG-Wohnung-Maisonette mit Kamin in der Südvorstadt - 4 Zimmer, 126m², KfW 40, Erstbezug
750.415 €
Kaufpreis
126,99 m²
Wohnfläche
4
Zimmer
immobilien.de Nr.: 8763224
Objektnummer: RL 47 WE 22
Preise & Kosten
| Kaufpreis | 750.415 € |
| Nebenkosten | keine Angabe |
| Kaufpreis pro m² | 5957,57 € |
Größe & Zustand
| Wohnfläche | 126,99 m² |
| Grundstücksfläche | 650 m² |
| Zimmer | 4 |
| Baujahr | 2027 |
| Verfügbar ab | Bezugsfertig: 3. Quartal 2027 |
| Zustand | Erstbezug |
Energie
| Energieausweistyp | Bedarfsausweis |
| Ausstellungsdatum | 28. 07. 2024 |
| Gültig bis | 08.02.2034 |
| Energieeffizienzklasse | A_PLUS |
| Endenergiebedarf | 16 |
| Heizungsart | Fernwärme |
| Wesentlicher Energieträger | Fernwärme |
| Energieträger/Befeuerung | Fernwärme |
Objektbeschreibung
Zum Verkauf steht eine 125,96 m² große 4-Zimmer-Wohnung im modernen Neubauprojekt "Richard L." im Leipziger Stadtteil Südvorstadt.
Das Gebäude fügt sich harmonisch in die Nachbarbebauung ein, hebt sich aber dennoch aufgrund der puristischen Bauweise auf den ersten Blick hervor.
Schon beim Betreten der Eingangshalle und dem großen Treppenhaus wird ein Gefühl von Zuhause geweckt.
Erfreuen Sie sich an der besonderen Architektur und betreten Sie die lichtdurchfluteten großzügigen Räumlichkeiten, welche perfekt auf die individuellen Bedürfnisse moderner Lebensmodelle zugeschnitten sind. Gleichermaßen erhalten Singles, junge Paare, Best Ager, Lebensgemeinschaften oder Familien mit Kindern allumfassende Entfaltungsmöglichkeiten und einen vielseitig nutzbaren Wohnraum, der das Zusammenleben bereichert.
Hierzu tragen beispielsweise ein Kinderwagenabstellraum im Kellergeschoß, viele Fahrradstellplätze im Außenbereich und der geschützte Spielbereich für Kinder im Gemeinschaftsgarten bei.
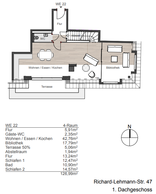
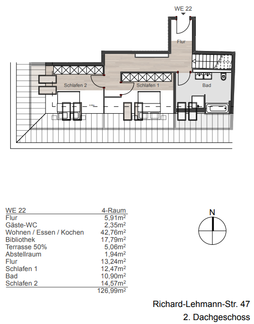
Die hier angebotene Wohneinheit erstreckt sich über 2 Etagen, verbunden durch eine innenliegende Maisonettetreppe. Diese Wohnung verfügt über 4 großzügige Räume sowie das hochwertige Tageslichtbad mit Doppelwaschbecken, bodengleicher Dusche und Badewanne sowie einem Abstellraum.
Das Highlight dieser Wohntraums ist das ca. 41m² große Wohnzimmer mit großer Fensterfront und angeschlossener Terrasse, die ca. 11 m² groß ist.
Auf Wunsch kann in diesem Wohnbereich ein Kamin eingebaut werden.
Die offene Küche wurde als Nische im großzügigen Wohnbereich ausgebildet, so dass die Bereiche Wohnen/Essen/Kochen ineinander übergehen, aber dennoch getrennt sind.
Auf dieser Ebene liegt - vom Wohnbereich getrennt durch eine Schiebetür - ein weiterer Raum, der als Bibliothek oder Arbeitszimmer seine Nutzung finden kann.
Vom Wohnzimmer führt eine innenliegende Treppe in das 2. Dachgeschoss.
Dort angekommen gelangt man über den Flur zu zwei weiteren großen Räumen sowie dem Masterbad.
Außerdem verfügt das Gebäude über einen Lift und eine Tiefgarage mit insgesamt 15 PKW-Stellplätzen.
Ein Tiefgaragenstellplatz kann für 35.000EUR erworben werden.
Variantenreiche Grundrisse mit durchdachten Raumaufteilungen ermöglichen eine auf Ihre Bedürfnisse zugeschnittene Flächengestaltung. Gleichermaßen erhalten Singles, junge Paare, Best Ager, Lebensgemeinschaften oder Familien mit Kindern allumfassende Entfaltungsmöglichkeiten und einen vielseitig nutzbaren Wohnraum, der das Zusammenleben bereichert.
Mit hochwertigen Parkett- und Fliesenböden mit Fußbodenheizung ist Wohnkomfort in ihrem neuen Zuhause garantiert. In den geräumigen Wohlfühlbädern, die meisten mit bodengleicher Dusche und Wanne starten Sie hervorragend in den Tag.
Seien Sie während der Bauphase unbesorgt! Während des gesamten Projekts steht ein baubegleitendes Qualitätscontrolling zur Seite, welchen einen reibungslosen Verlauf garantiert und Ihnen die Qualität liefert, die Sie von uns erwarten. Ein unabhängiger Sachverständige des TÜV Süd führt während der Bauausführung des Objekts baubegleitende Qualitätskontrollen durch.
KfW 40 - Energieeffizienzstandard: Eine nachhaltige Investition in die Zukunft
Der KfW 40-Energieeffizienzstandard ist ein Maßstab für energieeffizientes Bauen und Sanieren. Er steht für Gebäude, die besonders wenig Energie verbrauchen und dadurch einen Beitrag zum Klimaschutz leisten. Ein Haus, das den KfW 40-Standard erfüllt, verbraucht nur rund 40 Prozent der Energie eines vergleichbaren Gebäudes, das den gesetzlichen Mindeststandard erfüllt. Dies wird durch eine effiziente Wärmedämmung, eine optimierte Gebäudehülle, eine innovative Heizungs- und Lüftungstechnik sowie den Einsatz erneuerbarer Energien erreicht.
Für klimafreundliche Gebäude mit KfW-Standard 40 hat die KFW Bank einen Förderkredit geschaffen. Dabei können bis zu 170.000EUR Darlehen je Wohneinheit zu günstigeren Konditionen als auf dem gängigen Kapitalmarkt mit den KfW-Programmen Wohneigentum für Familien (300) und Klimafreundlicher Neubau - Wohngebäude (297, 298) aufgenommen werden.
Insgesamt ist der KfW 40-Energieeffizienzstandard ein wichtiger Baustein auf dem Weg zu einer nachhaltigen und klimafreundlichen Zukunft. Er zeigt, dass energieeffizientes Bauen und Sanieren nicht nur ökologisch sinnvoll sind, sondern auch wirtschaftlich rentabel sein kann. Wer heute in energieeffiziente Gebäude investiert, investiert in die Zukunft unserer Umwelt und kommender Generationen.
Steuervorteile für Wohnungsbau: Erhöhte degressive AfA 5%
Die degressive Abschreibung gilt für Wohnungen und Wohngebäude mit Baubeginn ab dem 01.10.2023 und mindestens dem Effizienzhaus-Standard 55. Es ist keine Baukostenobergrenze vorgesehen. Im ersten Jahr können fünf Prozent der Investitionskosten steuerlich geltend gemacht werden. In den folgenden Jahren sind es fünf Prozent des Restwertes, die steuerlich in Abzug gebracht werden können.
Beispielrechnung: Bei 400.000 EUR Investitionskosten (Gebäudewert) sind im ersten Jahr 20.000 EUR (fünf Prozent von 400.000 EUR), im zweiten Jahr 19.000 EUR (400.000 EUR abzüglich 20.000 EUR vom ersten Jahr = 380.000EUR Restwert) usw. steuerlich abzugsfähig.
Alle Informationen hierzu erhalten sie auf Anfrage von unseren Immobilienberatern.
" frisch, engagiert, solide "
Die Künne Immobilien Gruppe ist professioneller Dienstleister der Immobilienbranche und steht Ihnen in den Bereichen Projektentwicklung, Verkauf, Vermietung, Verwaltung und Facility Management zur Verfügung.
Für weitere Informationen und Einblicke besuchen Sie unsere Homepage: www.kuenne-gruppe.de Sie wollen Ihre Immobilie verkaufen? Egal ob Mehrfamilien- oder Einfamilienhaus, Eigentumswohnung, Grundstück oder Neubau- bzw. Bauträgerprojekt. Wir vermitteln kompetent, transparent und zügig Ihre Immobilie, bundesweit.
Das Gebäude fügt sich harmonisch in die Nachbarbebauung ein, hebt sich aber dennoch aufgrund der puristischen Bauweise auf den ersten Blick hervor.
Schon beim Betreten der Eingangshalle und dem großen Treppenhaus wird ein Gefühl von Zuhause geweckt.
Erfreuen Sie sich an der besonderen Architektur und betreten Sie die lichtdurchfluteten großzügigen Räumlichkeiten, welche perfekt auf die individuellen Bedürfnisse moderner Lebensmodelle zugeschnitten sind. Gleichermaßen erhalten Singles, junge Paare, Best Ager, Lebensgemeinschaften oder Familien mit Kindern allumfassende Entfaltungsmöglichkeiten und einen vielseitig nutzbaren Wohnraum, der das Zusammenleben bereichert.
Hierzu tragen beispielsweise ein Kinderwagenabstellraum im Kellergeschoß, viele Fahrradstellplätze im Außenbereich und der geschützte Spielbereich für Kinder im Gemeinschaftsgarten bei.
Die hier angebotene Wohneinheit erstreckt sich über 2 Etagen, verbunden durch eine innenliegende Maisonettetreppe. Diese Wohnung verfügt über 4 großzügige Räume sowie das hochwertige Tageslichtbad mit Doppelwaschbecken, bodengleicher Dusche und Badewanne sowie einem Abstellraum.
Das Highlight dieser Wohntraums ist das ca. 41m² große Wohnzimmer mit großer Fensterfront und angeschlossener Terrasse, die ca. 11 m² groß ist.
Auf Wunsch kann in diesem Wohnbereich ein Kamin eingebaut werden.
Die offene Küche wurde als Nische im großzügigen Wohnbereich ausgebildet, so dass die Bereiche Wohnen/Essen/Kochen ineinander übergehen, aber dennoch getrennt sind.
Auf dieser Ebene liegt - vom Wohnbereich getrennt durch eine Schiebetür - ein weiterer Raum, der als Bibliothek oder Arbeitszimmer seine Nutzung finden kann.
Vom Wohnzimmer führt eine innenliegende Treppe in das 2. Dachgeschoss.
Dort angekommen gelangt man über den Flur zu zwei weiteren großen Räumen sowie dem Masterbad.
Außerdem verfügt das Gebäude über einen Lift und eine Tiefgarage mit insgesamt 15 PKW-Stellplätzen.
Ein Tiefgaragenstellplatz kann für 35.000EUR erworben werden.
Variantenreiche Grundrisse mit durchdachten Raumaufteilungen ermöglichen eine auf Ihre Bedürfnisse zugeschnittene Flächengestaltung. Gleichermaßen erhalten Singles, junge Paare, Best Ager, Lebensgemeinschaften oder Familien mit Kindern allumfassende Entfaltungsmöglichkeiten und einen vielseitig nutzbaren Wohnraum, der das Zusammenleben bereichert.
Mit hochwertigen Parkett- und Fliesenböden mit Fußbodenheizung ist Wohnkomfort in ihrem neuen Zuhause garantiert. In den geräumigen Wohlfühlbädern, die meisten mit bodengleicher Dusche und Wanne starten Sie hervorragend in den Tag.
Seien Sie während der Bauphase unbesorgt! Während des gesamten Projekts steht ein baubegleitendes Qualitätscontrolling zur Seite, welchen einen reibungslosen Verlauf garantiert und Ihnen die Qualität liefert, die Sie von uns erwarten. Ein unabhängiger Sachverständige des TÜV Süd führt während der Bauausführung des Objekts baubegleitende Qualitätskontrollen durch.
KfW 40 - Energieeffizienzstandard: Eine nachhaltige Investition in die Zukunft
Der KfW 40-Energieeffizienzstandard ist ein Maßstab für energieeffizientes Bauen und Sanieren. Er steht für Gebäude, die besonders wenig Energie verbrauchen und dadurch einen Beitrag zum Klimaschutz leisten. Ein Haus, das den KfW 40-Standard erfüllt, verbraucht nur rund 40 Prozent der Energie eines vergleichbaren Gebäudes, das den gesetzlichen Mindeststandard erfüllt. Dies wird durch eine effiziente Wärmedämmung, eine optimierte Gebäudehülle, eine innovative Heizungs- und Lüftungstechnik sowie den Einsatz erneuerbarer Energien erreicht.
Für klimafreundliche Gebäude mit KfW-Standard 40 hat die KFW Bank einen Förderkredit geschaffen. Dabei können bis zu 170.000EUR Darlehen je Wohneinheit zu günstigeren Konditionen als auf dem gängigen Kapitalmarkt mit den KfW-Programmen Wohneigentum für Familien (300) und Klimafreundlicher Neubau - Wohngebäude (297, 298) aufgenommen werden.
Insgesamt ist der KfW 40-Energieeffizienzstandard ein wichtiger Baustein auf dem Weg zu einer nachhaltigen und klimafreundlichen Zukunft. Er zeigt, dass energieeffizientes Bauen und Sanieren nicht nur ökologisch sinnvoll sind, sondern auch wirtschaftlich rentabel sein kann. Wer heute in energieeffiziente Gebäude investiert, investiert in die Zukunft unserer Umwelt und kommender Generationen.
Steuervorteile für Wohnungsbau: Erhöhte degressive AfA 5%
Die degressive Abschreibung gilt für Wohnungen und Wohngebäude mit Baubeginn ab dem 01.10.2023 und mindestens dem Effizienzhaus-Standard 55. Es ist keine Baukostenobergrenze vorgesehen. Im ersten Jahr können fünf Prozent der Investitionskosten steuerlich geltend gemacht werden. In den folgenden Jahren sind es fünf Prozent des Restwertes, die steuerlich in Abzug gebracht werden können.
Beispielrechnung: Bei 400.000 EUR Investitionskosten (Gebäudewert) sind im ersten Jahr 20.000 EUR (fünf Prozent von 400.000 EUR), im zweiten Jahr 19.000 EUR (400.000 EUR abzüglich 20.000 EUR vom ersten Jahr = 380.000EUR Restwert) usw. steuerlich abzugsfähig.
Alle Informationen hierzu erhalten sie auf Anfrage von unseren Immobilienberatern.
" frisch, engagiert, solide "
Die Künne Immobilien Gruppe ist professioneller Dienstleister der Immobilienbranche und steht Ihnen in den Bereichen Projektentwicklung, Verkauf, Vermietung, Verwaltung und Facility Management zur Verfügung.
Für weitere Informationen und Einblicke besuchen Sie unsere Homepage: www.kuenne-gruppe.de Sie wollen Ihre Immobilie verkaufen? Egal ob Mehrfamilien- oder Einfamilienhaus, Eigentumswohnung, Grundstück oder Neubau- bzw. Bauträgerprojekt. Wir vermitteln kompetent, transparent und zügig Ihre Immobilie, bundesweit.
Ausstattung
| Inserat befindet sich im Stockwerk | 6 |
| Bad | 2 |
| Bad | Dusche, Wanne, Fenster |
| Boden | Fliesen, Parkett |
| Balkone | 1 |
| Garten | |
| Fahrstuhl | |
| Keller |
Lage des Objektes
Nur ein wenig südlich vom Zentrum beginnt das wahre Leipziger Leben. Links und rechts der Karl- Liebknecht- Straße liegen reizende kleine Straßen mit liebevoll restaurierten Jugendstil- Häusern. Der ein oder andere Altbestand wartet versteckt auf seinen ambitionierten Nutzer. Das steigert noch den Charme dieses Stadtteils, der seit Jahren gelassene Moderne mit Traditionen verbindet. Viele Studenten, Kulturschaffende, Kreative und auch Familien füllen die Südvorstadt so angenehm mit Leben, dass so mancher sich nach einer ausgedehnten 'KarLi- Tour' und anschließendem Heimweg durchs Viertel mit seinem einzigartigen Flair nach einer neuen Bleibe in der Südvorstadt umgesehen hat.
Anbieter kontaktieren
Anbieter
Marko Künne Immobilien
Käthe-Kollwitz-Str. 58c
04109 Leipzig
Kontakt
| Telefon | 0341 442 9566 |
| Fax | 0341 2253930 |
| Website | www.kuenne-immobilien.de |
