Mietpreis & Nebenkosten
| Kaltmiete | 0 € |
| Nebenkosten | Keine Angabe |
| Kaution | 3 Nettomonatsmieten |
| Maklerprovision | 1 Nettomonatsmiete zzgl. MwSt. |
Wohnfläche, Grundstück & Bausubstanz
| Gesamtfläche | 2.737 m² |
| Verfügbar ab | sofort |
| Zustand | Neuwertig |
Beschreibung der Immobilie
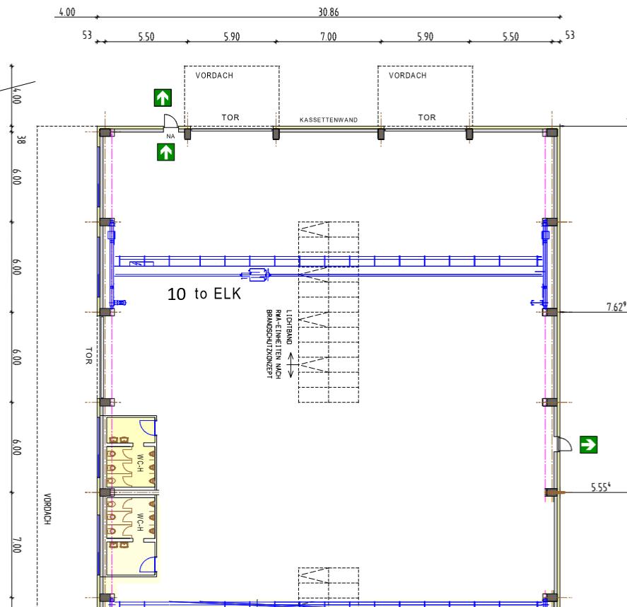
Die moderne Produktions- bzw. Lagerhalle umfasst ca. 1.337 m² Nutzfläche und eignet sich u.a. für Produktion-, Montage- oder Lagerprozesse. Sie überzeugt durch top Ausstattung sowie eine hochwertige Gesamterscheinung.
Die Halle verfügt über ein modernes Heiz-/Lüftungskonzept und ermöglicht damit ganzjährig stabile Nutzungsbedingungen. Die Hallenhöhe beträgt ca. 8 m, daher ist sie auch für größere Anlagen, Lagerlösungen oder logistische Abläufe geeignet. Es besteht grundsätzlich die Möglichkeit zur Installation eines 10-t-Krans. Sehr hohe Stromkapazitäten sind dank eigener Trafostation möglich.
Mehrere Verteilpunkte für Druckluft, Wasser, Strom und Internet sind praktikabel in der Halle angeordnet.
Eine ebenerdige Andienung ist über drei große, elektrische Sektionaltore gewährleistet.
Ergänzend zur Halle wird eine Außenfläche von ca. 1.400 m² mitvermietet. Diese steht ausschließlich dem Mieter zur Verfügung und befindet sich in einem eigenen, abgeschlossenen Bereich mit separater Zufahrt. Dadurch sind eine klare Flächentrennung, sichere Abläufe und eine komfortable Anlieferung gewährleistet.
Bei Bedarf kann eine ca. 234 m² klimatisierte, helle Büroetage im Gebäude mit angemietet werden.
Das repräsentative Objekt kann dank der Lage an einer Umgehungsstraße mit hoher Frequenz bestens als Werbefläche genutzt werden.
Gerne beraten wir Sie!
Ausstattungsmerkmale
* ca. 1.400 m² Außenfläche
* sehr gute Sichtbarkeit
* zentrale Anbindung an die B15, A3 und A93
* Hallenhöhe ca. 8 Meter
* lichtdurchflutet
* Jalousien elektrisch
* LED Beleuchtung einzeln schaltbar
* hauseigene Trafostation für höhere Stromkapazitäten
* Glasfaseranschluss 100 Mbit/s
* Druckluftsystem
* Brandmeldeanlage
* Lüftungsanlage mit Wärmerückgewinnung
* zahlreiche Verteilpunkte für: Druckluft, Wasser, Elektro, Internet
* klimatisierte, helle Büroetage im Gebäude anmietbar - sprechen Sie uns an!
Lage & Infrastruktur
Die Stadt ist ein sehr wichtiger Industrie- und Wirtschaftsstandort.
Der Gewerbesteuer Hebesatz von Neutraubling beträgt 310 v.H.
Bedeutende Unternehmen aus Maschinenbau, Metallverarbeitung, Chemie, Textil- und Verpackungsindustrie, Einzelhandel, Spedition und Logistik sowie Automobilzulieferer sind in und um Neutraubling angesiedelt.
Die Bundesstraße 15 führt direkt an Neutraubling vorbei. Die Stadt hat zwei eigene Anschlussstellen an die BAB 3. Von hier aus erreicht man innerhalb von fünf Minuten das Autobahnkreuz Regensburg, wo die A 3 auf die A 93 trifft.
Sonstige Informationen
Bitte beachten Sie, dass für die im Exposé aufgeführten Angaben keine Haftung übernommen wird.
Wir bieten Ihnen gerne an, sich bei einem persönlichen Termin in unserer Immobilien Lounge
unverbindlich über dieses und weitere interessante Objekte zu informieren.
Vereinbaren Sie einfach einen Termin oder nennen Sie uns gleich einen Terminvorschlag!
Mietpreis & Nebenkosten
| Kaltmiete | 0 € |
| Nebenkosten | Keine Angabe |
| Kaution | 3 Nettomonatsmieten |
| Maklerprovision | 1 Nettomonatsmiete zzgl. MwSt. |
| Mobilnummer | 0173 / 35 46 888 |
| Website | www.il-r.de |
| Fax | 004994137800759 |
| Vertretungsberechtigter | Josef Brantl |
| Berufsaufsichtsbehörde | IHK für München und Oberbayern, Max-Joseph-Straße 2, 80333 München |
| Handelsregister | AG Regensburg |
| Handelsregisternummer | HRB16622 |
| USt.-IdNr | DE318866218 |
| Berufskammer | IHK Regensburg |
| Weitere Angaben | Verbraucherstreitbeilegung: Wir sind nicht bereit oder verpflichtet, an Streitbeilegungsverfahren vor einer Verbraucherschlichtungsstelle teilzunehmen. Datenschutzerklärung: Wir freuen uns sehr über Ihr Interesse an unserem Unternehmen. Datenschutz hat einen besonders hohen Stellenwert für die Geschäftsleitung der Immobilien Lounge Regensburg GmbH. Eine Nutzung der Internetseiten der Immobilien Lounge Regensburg GmbH ist grundsätzlich ohne jede Angabe personenbezogener Daten möglich. Sofern eine betroffene Person besondere Services unseres Unternehmens über unsere Internetseite in Anspruch nehmen möchte, könnte jedoch eine Verarbeitung personenbezogener Daten erforderlich werden. Ist die Verarbeitung personenbezogener Daten erforderlich und besteht für eine solche Verarbeitung keine gesetzliche Grundlage, holen wir generell eine Einwilligung der betroffenen Person ein. Die Verarbeitung personenbezogener Daten, beispielsweise des Namens, der Anschrift, E-Mail-Adresse oder Telefonnummer einer betroffenen Person, erfolgt stets im Einklang mit der Datenschutz-Grundverordnung und in Übereinstimmung mit den für die Immobilien Lounge Regensburg GmbH geltenden landesspezifischen Datenschutzbestimmungen. Mittels dieser Datenschutzerklärung möchte unser Unternehmen die Öffentlichkeit über Art, Umfang und Zweck der von uns erhobenen, genutzten und verarbeiteten personenbezogenen Daten informieren. Ferner werden betroffene Personen mittels dieser Datenschutzerklärung über die ihnen zustehenden Rechte aufgeklärt. Die Immobilien Lounge Regensburg GmbH hat als für die Verarbeitung Verantwortlicher zahlreiche technische und organisatorische Maßnahmen umgesetzt, um einen möglichst lückenlosen Schutz der über diese Internetseite verarbeiteten personenbezogenen Daten sicherzustellen. Dennoch können Internetbasierte Datenübertragungen grundsätzlich Sicherheitslücken aufweisen, sodass ein absoluter Schutz nicht gewährleistet werden kann. Aus diesem Grund steht es jeder betroffenen Person frei, personenbezogene Daten auch auf alternativen Wegen, beispielsweise telefonisch, an uns zu übermitteln. 1. Begriffsbestimmungen Die Datenschutzerklärung der Immobilien Lounge Regensburg GmbH beruht auf den Begrifflichkeiten, die durch den Europäischen Richtlinien- und Verordnungsgeber beim Erlass der Datenschutz-Grundverordnung (DS-GVO) verwendet wurden. Unsere Datenschutzerklärung soll sowohl für die Öffentlichkeit als auch für unsere Kunden und Geschäftspartner einfach lesbar und verständlich sein. Um dies zu gewährleisten, möchten wir vorab die verwendeten Begrifflichkeiten erläutern. Wir verwenden in dieser Datenschutzerklärung unter anderem die folgenden Begriffe: a) personenbezogene Daten Personenbezogene Daten sind alle Informationen, die sich auf eine identifizierte oder identifizierbare natürliche Person (im Folgenden „betroffene Person“) beziehen. Als identifizierbar wird eine natürliche Person angesehen, die direkt oder indirekt, insbesondere mittels Zuordnung zu einer Kennung wie einem Namen, zu einer Kennnummer, zu Standortdaten, zu einer OnlineKennung oder zu einem oder mehreren besonderen Merkmalen, die Ausdruck der physischen, physiologischen, genetischen, psychischen, wirtschaftlichen, kulturellen oder sozialen Identität dieser natürlichen Person sind, identifiziert werden kann. b) betroffene Person Betroffene Person ist jede identifizierte oder identifizierbare natürliche Person, deren personenbezogene Daten von dem für die Verarbeitung Verantwortlichen verarbeitet werden. c) Verarbeitung Verarbeitung ist jeder mit oder ohne Hilfe automatisierter Verfahren ausgeführte Vorgang oder jede solche Vorgangsreihe im Zusammenhang mit personenbezogenen Daten wie das Erheben, das Erfassen, die Organisation, das Ordnen, die Speicherung, die Anpassung oder Veränderung, das Auslesen, das Abfragen, die Verwendung, die Offenlegung durch Übermittlung, Verbreitung oder eine andere Form der Bereitstellung, den Abgleich oder die Verknüpfung, die Einschränkung, das Löschen oder die Vernichtung. d) Einschränkung der Verarbeitung Einschränkung der Verarbeitung ist die Markierung gespeicherter personenbezogener Daten mit dem Ziel, ihre künftige Verarbeitung einzuschränken. e) Profiling Profiling ist jede Art der automatisierten Verarbeitung personenbezogener Daten, die darin besteht, dass diese personenbezogenen Daten verwendet werden, um bestimmte persönliche Aspekte, die sich auf eine natürliche Person beziehen, zu bewerten, insbesondere, um Aspekte bezüglich Arbeitsleistung, wirtschaftlicher Lage, Gesundheit, persönlicher Vorlieben, Interessen, Zuverlässigkeit, Verhalten, Aufenthaltsort oder Ortswechsel dieser natürlichen Person zu analysieren oder vorherzusagen. f) Pseudonymisierung Pseudonymisierung ist die Verarbeitung personenbezogener Daten in einer Weise, auf welche die personenbezogenen Daten ohne Hinzuziehung zusätzlicher Informationen nicht mehr einer spezifischen betroffenen Person zugeordnet werden können, sofern diese zusätzlichen Informationen gesondert aufbewahrt werden und technischen und organisatorischen Maßnahmen unterliegen, die gewährleisten, dass die personenbezogenen Daten nicht einer identifizierten oder identifizierbaren natürlichen Person zugewiesen werden. g) Verantwortlicher oder für die Verarbeitung Verantwortlicher Verantwortlicher oder für die Verarbeitung Verantwortlicher ist die natürliche oder juristische Person, Behörde, Einrichtung oder andere Stelle, die allein oder gemeinsam mit anderen über die Zwecke und Mittel der Verarbeitung von personenbezogenen Daten entscheidet. Sind die Zwecke und Mittel dieser Verarbeitung durch das Unionsrecht oder das Recht der Mitgliedstaaten vorgegeben, so kann der Verantwortliche beziehungsweise können die bestimmten Kriterien seiner Benennung nach dem Unionsrecht oder dem Recht der Mitgliedstaaten vorgesehen werden. h) Auftragsverarbeiter Auftragsverarbeiter ist eine natürliche oder juristische Person, Behörde, Einrichtung oder andere Stelle, die personenbezogene Daten im Auftrag des Verantwortlichen verarbeitet. i) Empfänger Empfänger ist eine natürliche oder juristische Person, Behörde, Einrichtung oder andere Stelle, der personenbezogene Daten offengelegt werden, unabhängig davon, ob es sich bei ihr um einen Dritten handelt oder nicht. Behörden, die im Rahmen eines bestimmten Untersuchungsauftrags nach dem Unionsrecht oder dem Recht der Mitgliedstaaten möglicherweise personenbezogene Daten erhalten, gelten jedoch nicht als Empfänger. j) Dritter Dritter ist eine natürliche oder juristische Person, Behörde, Einrichtung oder andere Stelle außer der betroffenen Person, dem Verantwortlichen, dem Auftragsverarbeiter und den Personen, die unter der unmittelbaren Verantwortung des Verantwortlichen oder des Auftragsverarbeiters befugt sind, die personenbezogenen Daten zu verarbeiten. k) Einwilligung Einwilligung ist jede von der betroffenen Person freiwillig für den bestimmten Fall in informierter Weise und unmissverständlich abgegebene Willensbekundung in Form einer Erklärung oder einer sonstigen eindeutigen bestätigenden Handlung, mit der die betroffene Person zu verstehen gibt, dass sie mit der Verarbeitung der sie betreffenden personenbezogenen Daten einverstanden ist. 2. Name und Anschrift des für die Verarbeitung Verantwortlichen Verantwortlicher im Sinne der Datenschutz-Grundverordnung, sonstiger in den Mitgliedstaaten der Europäischen Union geltenden Datenschutzgesetze und anderer Bestimmungen mit datenschutzrechtlichem Charakter ist die: Immobilien Lounge Regensburg GmbH Lichtenfelser Str. 3 93057 Regensburg Deutschland Tel.: 0941 / 850 84 136 | E-Mail : info@il-r.de | Website: www.il-r.de 3. Cookies Die Internetseiten der Immobilien Lounge Regensburg GmbH verwenden Cookies. Cookies sind Textdateien, welche über einen Internetbrowser auf einem Computersystem abgelegt und gespeichert werden. Zahlreiche Internetseiten und Server verwenden Cookies. Viele Cookies enthalten eine sogenannte Cookie-ID. Eine Cookie-ID ist eine eindeutige Kennung des Cookies. Sie besteht aus einer Zeichenfolge, durch welche Internetseiten und Server dem konkreten Internetbrowser zugeordnet werden können, in dem das Cookie gespeichert wurde. Dies ermöglicht es den besuchten Internetseiten und Servern, den individuellen Browser der betroffenen Person von anderen Internetbrowsern, die andere Cookies enthalten, zu unterscheiden. Ein bestimmter Internetbrowser kann über die eindeutige Cookie-ID wiedererkannt und identifiziert werden. Durch den Einsatz von Cookies kann die Immobilien Lounge Regensburg GmbH den Nutzern dieser Internetseite nutzerfreundlichere Services bereitstellen, die ohne die Cookie-Setzung nicht möglich wären. Mittels eines Cookies können die Informationen und Angebote auf unserer Internetseite im Sinne des Benutzers optimiert werden. Cookies ermöglichen uns, wie bereits erwähnt, die Benutzer unserer Internetseite wiederzuerkennen. Zweck dieser Wiedererkennung ist es, den Nutzern die Verwendung unserer Internetseite zu erleichtern. Der Benutzer einer Internetseite, die Cookies verwendet, muss beispielsweise nicht bei jedem Besuch der Internetseite erneut seine Zugangsdaten eingeben, weil dies von der Internetseite und dem auf dem Computersystem des Benutzers abgelegten Cookie übernommen wird. Ein weiteres Beispiel ist das Cookie eines Warenkorbes im Online-Shop. Der Online-Shop merkt sich die Artikel, die ein Kunde in den virtuellen Warenkorb gelegt hat, über ein Cookie. Die betroffene Person kann die Setzung von Cookies durch unsere Internetseite jederzeit mittels einer entsprechenden Einstellung des genutzten Internetbrowsers verhindern und damit der Setzung von Cookies dauerhaft widersprechen. Ferner können bereits gesetzte Cookies jederzeit über einen Internetbrowser oder andere Softwareprogramme gelöscht werden. Dies ist in allen gängigen Internetbrowsern möglich. Deaktiviert die betroffene Person die Setzung von Cookies in dem genutzten Internetbrowser, sind unter Umständen nicht alle Funktionen unserer Internetseite vollumfänglich nutzbar. 4. Erfassung von allgemeinen Daten und Informationen Die Internetseite der Immobilien Lounge Regensburg GmbH erfasst mit jedem Aufruf der Internetseite durch eine betroffene Person oder ein automatisiertes System eine Reihe von allgemeinen Daten und Informationen. Diese allgemeinen Daten und Informationen werden in den Logfiles des Servers gespeichert. Erfasst werden können die (1) verwendeten Browsertypen und Versionen, (2) das vom zugreifenden System verwendete Betriebssystem, (3) die Internetseite, von welcher ein zugreifendes System auf unsere Internetseite gelangt (sogenannte Referrer), (4) die Unterwebseiten, welche über ein zugreifendes System auf unserer Internetseite angesteuert werden, (5) das Datum und die Uhrzeit eines Zugriffs auf die Internetseite, (6) eine InternetProtokoll-Adresse (IP-Adresse), (7) der Internet-Service-Provider des zugreifenden Systems und (8) sonstige ähnliche Daten und Informationen, die der Gefahrenabwehr im Falle von Angriffen auf unsere informationstechnologischen Systeme dienen. Bei der Nutzung dieser allgemeinen Daten und Informationen zieht die Immobilien Lounge Regensburg GmbH keine Rückschlüsse auf die betroffene Person. Diese Informationen werden vielmehr benötigt, um (1) die Inhalte unserer Internetseite korrekt auszuliefern, (2) die Inhalte unserer Internetseite sowie die Werbung für diese zu optimieren, (3) die dauerhafte Funktionsfähigkeit unserer informationstechnologischen Systeme und der Technik unserer Internetseite zu gewährleisten sowie (4) um Strafverfolgungsbehörden im Falle eines Cyberangriffes die zur Strafverfolgung notwendigen Informationen bereitzustellen. Diese anonym erhobenen Daten und Informationen werden durch die Immobilien Lounge Regensburg GmbH daher einerseits statistisch und ferner mit dem Ziel ausgewertet, den Datenschutz und die Datensicherheit in unserem Unternehmen zu erhöhen, um letztlich ein optimales Schutzniveau für die von uns verarbeiteten personenbezogenen Daten sicherzustellen. Die anonymen Daten der Server-Logfiles werden getrennt von allen durch eine betroffene Person angegebenen personenbezogenen Daten gespeichert. 5. Registrierung auf unserer Internetseite Die betroffene Person hat die Möglichkeit, sich auf der Internetseite des für die Verarbeitung Verantwortlichen unter Angabe von personenbezogenen Daten zu registrieren. Welche personenbezogenen Daten dabei an den für die Verarbeitung Verantwortlichen übermittelt werden, ergibt sich aus der jeweiligen Eingabemaske, die für die Registrierung verwendet wird. Die von der betroffenen Person eingegebenen personenbezogenen Daten werden ausschließlich für die interne Verwendung bei dem für die Verarbeitung Verantwortlichen und für eigene Zwecke erhoben und gespeichert. Der für die Verarbeitung Verantwortliche kann die Weitergabe an einen oder mehrere Auftragsverarbeiter, beispielsweise einen Paketdienstleister, veranlassen, der die personenbezogenen Daten ebenfalls ausschließlich für eine interne Verwendung, die dem für die Verarbeitung Verantwortlichen zuzurechnen ist, nutzt. Durch eine Registrierung auf der Internetseite des für die Verarbeitung Verantwortlichen wird ferner die vom Internet-Service-Provider (ISP) der betroffenen Person vergebene IP-Adresse, das Datum sowie die Uhrzeit der Registrierung gespeichert. Die Speicherung dieser Daten erfolgt vor dem Hintergrund, dass nur so der Missbrauch unserer Dienste verhindert werden kann, und diese Daten im Bedarfsfall ermöglichen, begangene Straftaten aufzuklären. Insofern ist die Speicherung dieser Daten zur Absicherung des für die Verarbeitung Verantwortlichen erforderlich. Eine Weitergabe dieser Daten an Dritte erfolgt grundsätzlich nicht, sofern keine gesetzliche Pflicht zur Weitergabe besteht oder die Weitergabe der Strafverfolgung dient. Die Registrierung der betroffenen Person unter freiwilliger Angabe personenbezogener Daten dient dem für die Verarbeitung Verantwortlichen dazu, der betroffenen Person Inhalte oder Leistungen anzubieten, die aufgrund der Natur der Sache nur registrierten Benutzern angeboten werden können. Registrierten Personen steht die Möglichkeit frei, die bei der Registrierung angegebenen personenbezogenen Daten jederzeit abzuändern oder vollständig aus dem Datenbestand des für die Verarbeitung Verantwortlichen löschen zu lassen. Der für die Verarbeitung Verantwortliche erteilt jeder betroffenen Person jederzeit auf Anfrage Auskunft darüber, welche personenbezogenen Daten über die betroffene Person gespeichert sind. Ferner berichtigt oder löscht der für die Verarbeitung Verantwortliche personenbezogene Daten auf Wunsch oder Hinweis der betroffenen Person, soweit dem keine gesetzlichen Aufbewahrungspflichten entgegenstehen. Die Gesamtheit der Mitarbeiter des für die Verarbeitung Verantwortlichen stehen der betroffenen Person in diesem Zusammenhang als Ansprechpartner zur Verfügung. 6. Abonnement unseres Newsletters Auf der Internetseite der Immobilien Lounge Regensburg GmbH wird den Benutzern die Möglichkeit eingeräumt, den Newsletter unseres Unternehmens zu abonnieren. Welche personenbezogenen Daten bei der Bestellung des Newsletters an den für die Verarbeitung Verantwortlichen übermittelt werden, ergibt sich aus der hierzu verwendeten Eingabemaske. Die Immobilien Lounge Regensburg GmbH informiert ihre Kunden und Geschäftspartner in regelmäßigen Abständen im Wege eines Newsletters über Angebote des Unternehmens. Der Newsletter unseres Unternehmens kann von der betroffenen Person grundsätzlich nur dann empfangen werden, wenn (1) die betroffene Person über eine gültige E-Mail-Adresse verfügt und (2) die betroffene Person sich für den Newsletterversand registriert. An die von einer betroffenen Person erstmalig für den Newsletterversand eingetragene E-Mail-Adresse wird aus rechtlichen Gründen eine Bestätigungsmail im Double-Opt-In-Verfahren versendet. Diese Bestätigungsmail dient der Überprüfung, ob der Inhaber der E-Mail-Adresse als betroffene Person den Empfang des Newsletters autorisiert hat. Bei der Anmeldung zum Newsletter speichern wir ferner die vom Internet-Service-Provider (ISP) vergebene IP-Adresse des von der betroffenen Person zum Zeitpunkt der Anmeldung verwendeten Computersystems sowie das Datum und die Uhrzeit der Anmeldung. Die Erhebung dieser Daten ist erforderlich, um den(möglichen) Missbrauch der E-Mail-Adresse einer betroffenen Person zu einem späteren Zeitpunkt nachvollziehen zu können und dient deshalb der rechtlichen Absicherung des für die Verarbeitung Verantwortlichen. Die im Rahmen einer Anmeldung zum Newsletter erhobenen personenbezogenen Daten werden ausschließlich zum Versand unseres Newsletters verwendet. Ferner könnten Abonnenten des Newsletters per E-Mail informiert werden, sofern dies für den Betrieb des Newsletter-Dienstes oder eine diesbezügliche Registrierung erforderlich ist, wie dies im Falle von Änderungen am Newsletterangebot oder bei der Veränderung der technischen Gegebenheiten der Fall sein könnte. Es erfolgt keine Weitergabe der im Rahmen des Newsletter-Dienstes erhobenen personenbezogenen Daten an Dritte. Das Abonnement unseres Newsletters kann durch die betroffene Person jederzeit gekündigt werden. Die Einwilligung in die Speicherung personenbezogener Daten, die die betroffene Person uns für den Newsletterversand erteilt hat, kann jederzeit widerrufen werden. Zum Zwecke des Widerrufs der Einwilligung findet sich in jedem Newsletter ein entsprechender Link. Ferner besteht die Möglichkeit, sich jederzeit auch direkt auf der Internetseite des für die Verarbeitung Verantwortlichen vom Newsletterversand abzumelden oder dies dem für die Verarbeitung Verantwortlichen auf andere Weise mitzuteilen. 7. Newsletter-Tracking Die Newsletter der Immobilien Lounge Regensburg GmbH enthalten sogenannte Zählpixel. Ein Zählpixel ist eine Miniaturgrafik, die in solche E-Mails eingebettet wird, welche im HTML-Format versendet werden, um eine Logdatei-Aufzeichnung und eine Logdatei-Analyse zu ermöglichen. Dadurch kann eine statistische Auswertung des Erfolges oder Misserfolges von Online-MarketingKampagnen durchgeführt werden. Anhand des eingebetteten Zählpixels kann die Immobilien Lounge Regensburg GmbH erkennen, ob und wann eine E-Mail von einer betroffenen Person geöffnet wurde und welche in der E-Mail befindlichen Links von der betroffenen Person aufgerufen wurden. Solche über die in den Newslettern enthaltenen Zählpixel erhobenen personenbezogenen Daten, werden von dem für die Verarbeitung Verantwortlichen gespeichert und ausgewertet, um den Newsletterversand zu optimieren und den Inhalt zukünftiger Newsletter noch besser den Interessen der betroffenen Person anzupassen. Diese personenbezogenen Daten werden nicht an Dritte weitergegeben. Betroffene Personen sind jederzeit berechtigt, die diesbezügliche gesonderte, über das Double-Opt-In-Verfahren abgegebene Einwilligungserklärung zu widerrufen. Nach einem Widerruf werden diese personenbezogenen Daten von dem für die Verarbeitung Verantwortlichen gelöscht. Eine Abmeldung vom Erhalt des Newsletters deutet die Immobilien Lounge Regensburg GmbH automatisch als Widerruf. 8. Kontaktmöglichkeit über die Internetseite Die Internetseite der Immobilien Lounge Regensburg GmbH enthält aufgrund von gesetzlichen Vorschriften Angaben, die eine schnelle elektronische Kontaktaufnahme zu unserem Unternehmen sowie eine unmittelbare Kommunikation mit uns ermöglichen, was ebenfalls eine allgemeine Adresse der sogenannten elektronischen Post (E-Mail-Adresse) umfasst. Sofern eine betroffene Person per E-Mail oder über ein Kontaktformular den Kontakt mit dem für die Verarbeitung Verantwortlichen aufnimmt, werden die von der betroffenen Person übermittelten personenbezogenen Daten automatisch gespeichert. Solche auf freiwilliger Basis von einer betroffenen Person an den für die Verarbeitung Verantwortlichen übermittelten personenbezogenen Daten werden für Zwecke der Bearbeitung oder der Kontaktaufnahme zur betroffenen Person gespeichert. Es erfolgt keine Weitergabe dieser personenbezogenen Daten an Dritte. 9. Routinemäßige Löschung und Sperrung von personenbezogenen Daten Der für die Verarbeitung Verantwortliche verarbeitet und speichert personenbezogene Daten der betroffenen Person nur für den Zeitraum, der zur Erreichung des Speicherungszwecks erforderlich ist oder sofern dies durch den Europäischen Richtlinien- und Verordnungsgeber oder einen anderen Gesetzgeber in Gesetzen oder Vorschriften, welchen der für die Verarbeitung Verantwortliche unterliegt, vorgesehen wurde. Entfällt der Speicherungszweck oder läuft eine vom Europäischen Richtlinien- und Verordnungsgeber oder einem anderen zuständigen Gesetzgeber vorgeschriebene Speicherfrist ab, werden die personenbezogenen Daten routinemäßig und entsprechend den gesetzlichen Vorschriften gesperrt oder gelöscht. 10. Rechte der betroffenen Person a) Recht auf Bestätigung Jede betroffene Person hat das vom Europäischen Richtlinien- und Verordnungsgeber eingeräumte Recht, von dem für die Verarbeitung Verantwortlichen eine Bestätigung darüber zu verlangen, ob sie betreffende personenbezogene Daten verarbeitet werden. Möchte eine betroffene Person dieses Bestätigungsrecht in Anspruch nehmen, kann sie sich hierzu jederzeit an einen Mitarbeiter des für die Verarbeitung Verantwortlichen wenden. b) Recht auf Auskunft Jede von der Verarbeitung personenbezogener Daten betroffene Person hat das vom Europäischen Richtlinien- und Verordnungsgeber gewährte Recht, jederzeit von dem für die Verarbeitung Verantwortlichen unentgeltliche Auskunft über die zu seiner Person gespeicherten personenbezogenen Daten und eine Kopie dieser Auskunft zu erhalten. Ferner hat der Europäische Richtlinien- und Verordnungsgeber der betroffenen Person Auskunft über folgende Informationen zugestanden: die Verarbeitungszwecke die Kategorien personenbezogener Daten, die verarbeitet werden die Empfänger oder Kategorien von Empfängern, gegenüber denen die personenbezogenen Daten offengelegt worden sind oder noch offengelegt werden, insbesondere bei Empfängern in Drittländern oder bei internationalen Organisationen falls möglich die geplante Dauer, für die die personenbezogenen Daten gespeichert werden, oder, falls dies nicht möglich ist, die Kriterien für die Festlegung dieser Dauer das Bestehen eines Rechts auf Berichtigung oder Löschung der sie betreffenden personenbezogenen Daten oder auf Einschränkung der Verarbeitung durch den Verantwortlichen oder eines Widerspruchsrechts gegen diese Verarbeitung das Bestehen eines Beschwerderechts bei einer Aufsichtsbehörde wenn die personenbezogenen Daten nicht bei der betroffenen Person erhoben werden: Alle verfügbaren Informationen über die Herkunft der Daten das Bestehen einer automatisierten Entscheidungsfindung einschließlich Profiling gemäß Artikel 22 Abs.1 und 4 DS-GVO und — zumindest in diesen Fällen — aussagekräftige Informationen über die involvierte Logik sowie die Tragweite und die angestrebten Auswirkungen einer derartigen Verarbeitung für die betroffene Person Ferner steht der betroffenen Person ein Auskunftsrecht darüber zu, ob personenbezogene Daten an ein Drittland oder an eine internationale Organisation übermittelt wurden. Sofern dies der Fall ist, so steht der betroffenen Person im Übrigen das Recht zu, Auskunft über die geeigneten Garantien im Zusammenhang mit der Übermittlung zu erhalten. Möchte eine betroffene Person dieses Auskunftsrecht in Anspruch nehmen, kann sie sich hierzu jederzeit an einen Mitarbeiter des für die Verarbeitung Verantwortlichen wenden. c) Recht auf Berichtigung Jede von der Verarbeitung personenbezogener Daten betroffene Person hat das vom Europäischen Richtlinien- und Verordnungsgeber gewährte Recht, die unverzügliche Berichtigung sie betreffender unrichtiger personenbezogener Daten zu verlangen. Ferner steht der betroffenen Person das Recht zu, unter Berücksichtigung der Zwecke der Verarbeitung, die Vervollständigung unvollständiger personenbezogener Daten — auch mittels einer ergänzenden Erklärung — zu verlangen. Möchte eine betroffene Person dieses Berichtigungsrecht in Anspruch nehmen, kann sie sich hierzu jederzeit an einen Mitarbeiter des für die Verarbeitung Verantwortlichen wenden. d) Recht auf Löschung (Recht auf Vergessen werden) Jede von der Verarbeitung personenbezogener Daten betroffene Person hat das vom Europäischen Richtlinien- und Verordnungsgeber gewährte Recht, von dem Verantwortlichen zu verlangen, dass die sie betreffenden personenbezogenen Daten unverzüglich gelöscht werden, sofern einer der folgenden Gründe zutrifft und soweit die Verarbeitung nicht erforderlich ist: Die personenbezogenen Daten wurden für solche Zwecke erhoben oder auf sonstige Weise verarbeitet, für welche sie nicht mehr notwendig sind. Die betroffene Person widerruft ihre Einwilligung, auf die sich die Verarbeitung gemäß Art. 6 Abs. 1 Buchstabe a DS-GVO oder Art. 9 Abs. 2 Buchstabe a DS-GVO stützte, und es fehlt an einer anderweitigen Rechtsgrundlage für die Verarbeitung. Die betroffene Person legt gemäß Art. 21 Abs. 1 DS-GVO Widerspruch gegen die Verarbeitung ein, und es liegen keine vorrangigen berechtigten Gründe für die Verarbeitung vor, oder die betroffene Person legt gemäß Art. 21 Abs. 2 DS-GVO Widerspruch gegen die Verarbeitung ein. Die personenbezogenen Daten wurden unrechtmäßig verarbeitet. Die Löschung der personenbezogenen Daten ist zur Erfüllung einer rechtlichen Verpflichtung nach dem Unionsrecht oder dem Recht der Mitgliedstaaten erforderlich, dem der Verantwortliche unterliegt. Die personenbezogenen Daten wurden in Bezug auf angebotene Dienste der Informationsgesellschaft gemäß Art. 8 Abs. 1 DS-GVO erhoben. Sofern einer der oben genannten Gründe zutrifft und eine betroffene Person die Löschung von personenbezogenen Daten, die bei der Immobilien Lounge Regensburg GmbH gespeichert sind, veranlassen möchte, kann sie sich hierzu jederzeit an einen Mitarbeiter des für die Verarbeitung Verantwortlichen wenden. Der Mitarbeiter der Immobilien Lounge Regensburg GmbH wird veranlassen, dass dem Löschverlangen unverzüglich nachgekommen wird. Wurden die personenbezogenen Daten von der Immobilien Lounge Regensburg GmbH öffentlich gemacht und ist unser Unternehmen als Verantwortlicher gemäß Art. 17 Abs. 1 DS-GVO zur Löschung der personenbezogenen Daten verpflichtet, so trifft die Immobilien Lounge Regensburg GmbH unter Berücksichtigung der verfügbaren Technologie und der Implementierungskosten angemessene Maßnahmen, auch technischer Art, um andere für die Datenverarbeitung Verantwortliche, welche die veröffentlichten personenbezogenen Daten verarbeiten, darüber in Kenntnis zu setzen, dass die betroffene Person von diesen anderen für die Datenverarbeitung Verantwortlichen die Löschung sämtlicher Links zu diesen personenbezogenen Daten oder von Kopien oder Replikationen dieser personenbezogenen Daten verlangt hat, soweit die Verarbeitung nicht erforderlich ist. Der Mitarbeiter der Immobilien Lounge Regensburg GmbH wird im Einzelfall das Notwendige veranlassen. e) Recht auf Einschränkung der Verarbeitung Jede von der Verarbeitung personenbezogener Daten betroffene Person hat das vom Europäischen Richtlinien- und Verordnungsgeber gewährte Recht, von dem Verantwortlichen die Einschränkung der Verarbeitung zu verlangen, wenn eine der folgenden Voraussetzungen gegeben ist: Die Richtigkeit der personenbezogenen Daten wird von der betroffenen Person bestritten, und zwar für eine Dauer, die es dem Verantwortlichen ermöglicht, die Richtigkeit der personenbezogenen Daten zu überprüfen. Die Verarbeitung ist unrechtmäßig, die betroffene Person lehnt die Löschung der personenbezogenen Daten ab und verlangt stattdessen die Einschränkung der Nutzung der personenbezogenen Daten. Der Verantwortliche benötigt die personenbezogenen Daten für die Zwecke der Verarbeitung nicht länger, die betroffene Person benötigt sie jedoch zur Geltendmachung, Ausübung oder Verteidigung von Rechtsansprüchen. Die betroffene Person hat Widerspruch gegen die Verarbeitung gem. Art. 21 Abs. 1 DS-GVO eingelegt und es steht noch nicht fest, ob die berechtigten Gründe des Verantwortlichen gegenüber denen der betroffenen Person überwiegen. Sofern eine der oben genannten Voraussetzungen gegeben ist und eine betroffene Person die Einschränkung von personenbezogenen Daten, die bei der Immobilien Lounge Regensburg GmbH gespeichert sind, verlangen möchte, kann sie sich hierzu jederzeit an einen Mitarbeiter des für die Verarbeitung Verantwortlichen wenden. Der Mitarbeiter der Immobilien Lounge Regensburg GmbH wird die Einschränkung der Verarbeitung veranlassen. f) Recht auf Datenübertragbarkeit Jede von der Verarbeitung personenbezogener Daten betroffene Person hat das vom Europäischen Richtlinien- und Verordnungsgeber gewährte Recht, die sie betreffenden personenbezogenen Daten, welche durch die betroffene Person einem Verantwortlichen bereitgestellt wurden, in einem strukturierten, gängigen und maschinenlesbaren Format zu erhalten. Sie hat außerdem das Recht, diese Daten einem anderen Verantwortlichen ohne Behinderung durch den Verantwortlichen, dem die personenbezogenen Daten bereitgestellt wurden, zu übermitteln, sofern die Verarbeitung auf der Einwilligung gemäß Art. 6 Abs. 1 Buchstabe a DS-GVO oder Art. 9 Abs. 2 Buchstabe a DS-GVO oder auf einem Vertrag gemäß Art. 6 Abs. 1 Buchstabe b DS-GVO beruht und die Verarbeitung mithilfe automatisierter Verfahren erfolgt, sofern die Verarbeitung nicht für die Wahrnehmung einer Aufgabe erforderlich ist, die im öffentlichen Interesse liegt oder in Ausübung öffentlicher Gewalt erfolgt, welche dem Verantwortlichen übertragen wurde. Ferner hat die betroffene Person bei der Ausübung ihres Rechts auf Datenübertragbarkeit gemäß Art. 20 Abs. 1 DS-GVO das Recht, zu erwirken, dass die personenbezogenen Daten direkt von einem Verantwortlichen an einen anderen Verantwortlichen übermittelt werden, soweit dies technisch machbar ist und sofern hiervon nicht die Rechte und Freiheiten anderer Personen beeinträchtigt werden. Zur Geltendmachung des Rechts auf Datenübertragbarkeit kann sich die betroffene Person jederzeit an einen Mitarbeiter der Immobilien Lounge Regensburg GmbH wenden. g) Recht auf Widerspruch Jede von der Verarbeitung personenbezogener Daten betroffene Person hat das vom Europäischen Richtlinien- und Verordnungsgeber gewährte Recht, aus Gründen, die sich aus ihrer besonderen Situation ergeben, jederzeit gegen die Verarbeitung sie betreffender personenbezogener Daten, die aufgrund von Art. 6 Abs. 1 Buchstaben e oder f DS-GVO erfolgt, Widerspruch einzulegen. Dies gilt auch für ein auf diese Bestimmungen gestütztes Profiling. Die Immobilien Lounge Regensburg GmbH verarbeitet die personenbezogenen Daten im Falle des Widerspruchs nicht mehr, es sei denn, wir können zwingende schutzwürdige Gründe für die Verarbeitung nachweisen, die den Interessen, Rechten und Freiheiten der betroffenen Person überwiegen, oder die Verarbeitung dient der Geltendmachung, Ausübung oder Verteidigung von Rechtsansprüchen. Verarbeitet die Immobilien Lounge Regensburg GmbH personenbezogene Daten, um Direktwerbung zu betreiben, so hat die betroffene Person das Recht, jederzeit Widerspruch gegen die Verarbeitung der personenbezogenen Daten zum Zwecke derartiger Werbung einzulegen. Dies gilt auch für das Profiling, soweit es mit solcher Direktwerbung in Verbindung steht. Widerspricht die betroffene Person gegenüber der Immobilien Lounge Regensburg GmbH der Verarbeitung für Zwecke der Direktwerbung, so wird die Immobilien Lounge Regensburg GmbH die personenbezogenen Daten nicht mehr für diese Zwecke verarbeiten. Zudem hat die betroffene Person das Recht, aus Gründen, die sich aus ihrer besonderen Situation ergeben, gegen die sie betreffende Verarbeitung personenbezogener Daten, die bei der Immobilien Lounge Regensburg GmbH zu wissenschaftlichen oder historischen Forschungszwecken oder zu statistischen Zwecken gemäß Art. 89 Abs. 1 DS-GVO erfolgen, Widerspruch einzulegen, es sei denn, eine solche Verarbeitung ist zur Erfüllung einer im öffentlichen Interesse liegenden Aufgabe erforderlich. Zur Ausübung des Rechts auf Widerspruch kann sich die betroffene Person direkt jeden Mitarbeiter der Immobilien Lounge Regensburg GmbH oder einen anderen Mitarbeiter wenden. Der betroffenen Person steht es ferner frei, im Zusammenhang mit der Nutzung von Diensten der Informationsgesellschaft, ungeachtet der Richtlinie 2002/58/EG, ihr Widerspruchsrecht mittels automatisierter Verfahren auszuüben, bei denen technische Spezifikationen verwendet werden. h) Automatisierte Entscheidungen im Einzelfall einschließlich Profiling Jede von der Verarbeitung personenbezogener Daten betroffene Person hat das vom Europäischen Richtlinien- und Verordnungsgeber gewährte Recht, nicht einer ausschließlich auf einer automatisierten Verarbeitung — einschließlich Profiling — beruhenden Entscheidung unterworfen zu werden, die ihr gegenüber rechtliche Wirkung entfaltet oder sie in ähnlicher Weise erheblich beeinträchtigt, sofern die Entscheidung (1) nicht für den Abschluss oder die Erfüllung eines Vertrags zwischen der betroffenen Person und dem Verantwortlichen erforderlich ist, oder (2) aufgrund von Rechtsvorschriften der Union oder der Mitgliedstaaten, denen der Verantwortliche unterliegt, zulässig ist und diese Rechtsvorschriften angemessene Maßnahmen zur Wahrung der Rechte und Freiheiten sowie der berechtigten Interessen der betroffenen Person enthalten oder (3) mit ausdrücklicher Einwilligung der betroffenen Person erfolgt. Ist die Entscheidung (1) für den Abschluss oder die Erfüllung eines Vertrags zwischen der betroffenen Person und dem Verantwortlichen erforderlich oder (2) erfolgt sie mit ausdrücklicher Einwilligung der betroffenen Person, trifft die Immobilien Lounge Regensburg GmbH angemessene Maßnahmen, um die Rechte und Freiheiten sowie die berechtigten Interessen der betroffenen Person zu wahren, wozu mindestens das Recht auf Erwirkung des Eingreifens einer Person seitens des Verantwortlichen, auf Darlegung des eigenen Standpunkts und auf Anfechtung der Entscheidung gehört. Möchte die betroffene Person Rechte mit Bezug auf automatisierte Entscheidungen geltend machen, kann sie sich hierzu jederzeit an einen Mitarbeiter des für die Verarbeitung Verantwortlichen wenden. i) Recht auf Widerruf einer datenschutzrechtlichen Einwilligung Jede von der Verarbeitung personenbezogener Daten betroffene Person hat das vom Europäischen Richtlinien- und Verordnungsgeber gewährte Recht, eine Einwilligung zur Verarbeitung personenbezogener Daten jederzeit zu widerrufen. Möchte die betroffene Person ihr Recht auf Widerruf einer Einwilligung geltend machen, kann sie sich hierzu jederzeit an einen Mitarbeiter des für die Verarbeitung Verantwortlichen wenden. 11. Datenschutz bei Bewerbungen und im Bewerbungsverfahren Der für die Verarbeitung Verantwortliche erhebt und verarbeitet die personenbezogenen Daten von Bewerbern zum Zwecke der Abwicklung des Bewerbungsverfahrens. Die Verarbeitung kann auch auf elektronischem Wege erfolgen. Dies ist insbesondere dann der Fall, wenn ein Bewerber entsprechende Bewerbungsunterlagen auf dem elektronischen Wege, beispielsweise per E-Mail oder über ein auf der Internetseite befindliches Webformular, an den für die Verarbeitung Verantwortlichen übermittelt. Schließt der für die Verarbeitung Verantwortliche einen Anstellungsvertrag mit einem Bewerber, werden die übermittelten Daten zum Zwecke der Abwicklung des Beschäftigungsverhältnisses unter Beachtung der gesetzlichen Vorschriften gespeichert. Wird von dem für die Verarbeitung Verantwortlichen kein Anstellungsvertrag mit dem Bewerber geschlossen, so werden die Bewerbungsunterlagen zwei Monate nach Bekanntgabe der Absageentscheidung automatisch gelöscht, sofern einer Löschung keine sonstigen berechtigten Interessen des für die Verarbeitung Verantwortlichen entgegenstehen. Sonstiges berechtigtes Interesse in diesem Sinne ist beispielsweise eine Beweispflicht in einem Verfahren nach dem Allgemeinen Gleichbehandlungsgesetz (AGG). 12. Datenschutzbestimmungen zu Einsatz und Verwendung von Adobe Analytics (Omniture) / Adobe Marketing Cloud Der für die Verarbeitung Verantwortliche hat auf dieser Internetseite Komponenten des Unternehmens Adobe integriert. Adobe Analytics (Omniture) bzw. die Adobe Marketing Cloud (nachfolgend „Omniture“ genannt) ist ein Instrument, das ein effizienteres Online-Marketing sowie eine Web-Analyse ermöglicht. Omniture ist ein Teil der Adobe Marketing Cloud. Die Adobe Marketing Cloud ermöglicht Echtzeitanalysen von Besucherströmen auf Internetseiten. Die Echtzeitanalysen umfassen Projektberichte und gestatten eine Ad-Hoc-Analyse der Internetseitenbesucher. Kundeninteraktionen werden so dargestellt, dass dem für die Verarbeitung Verantwortlichen ein besserer Überblick über die Onlineaktivitäten der Nutzer dieser Internetseite verschafft wird, indem die Daten in einfachen und interaktiven Dashboards angezeigt und in Berichte umgewandelt werden. Dies versetzt den für die Verarbeitung Verantwortlichen in die Lage, Informationen in Echtzeit zu erhalten und hierdurch auftretende Probleme schneller zu erkennen. Betreibergesellschaft dieser Services ist die Adobe Systems Software Ireland Limited, 4-6 Riverwalk, Citywest Business Campus, Dublin 24, Republic of Ireland. Omniture setzt ein Cookie auf dem informationstechnologischen System der betroffenen Person (Cookies wurden im Vorfeld bereits erklärt; entsprechendes kann oben nachgelesen werden). Der für die Verarbeitung Verantwortliche gewährleistet durch eine Servereinstellung, dass die an das Datencenter von Adobe übermittelten Tracking-Datensätze vor einer Geolokalisierung anonymisiert werden. Die Anonymisierung wird durch das Ersetzen des letzten Teils der IP-Adresse umgesetzt. Der für die Verarbeitung Verantwortliche hat serverseitig Einstellungen vorgenommen, aufgrund derer die IP-Adresse der betroffenen Person vor einer jeweiligen Verarbeitung für die Geolokalisierung und die Reichweitenmessung unabhängig voneinander anonymisiert werden. Adobe wird im Auftrag des für die Verarbeitung Verantwortlichen die über unsere Internetseite gewonnenen Daten und Informationen dazu nutzen das Nutzerverhalten der betroffenen Person auszuwerten. Ferner wird Adobe die Daten nutzen, um in unserem Auftrag Reports über die Nutzeraktivitäten zu erstellen sowie weitere Dienstleistungen für unser Unternehmen zu erbringen, die im Zusammenhang mit der Nutzung unserer Internetseite stehen. Die IP-Adresse der betroffenen Person wird durch Adobe nicht mit anderen personenbezogenen Daten zusammengeführt. Die betroffene Person kann die Setzung von Cookies durch unsere Internetseite, wie oben bereits dargestellt, jederzeit mittels einer entsprechenden Einstellung des genutzten Internetbrowsers verhindern und damit der Setzung von Cookies dauerhaft widersprechen. Eine solche Einstellung des genutzten Internetbrowsers würde auch verhindern, dass Omniture ein Cookie auf dem informationstechnologischen System der betroffenen Person setzt. Zudem können die von Omniture bereits gesetzten Cookies jederzeit über einen Internetbrowser oder andere Softwareprogramme gelöscht werden. Ferner besteht für die betroffene Person die Möglichkeit, einer Erfassung der durch das AdobeCookie erzeugten, auf eine Nutzung dieser Internetseite bezogenen Daten sowie der Verarbeitung dieser Daten durch Adobe zu widersprechen und eine solche zu verhindern. Hierzu muss die betroffene Person den Abmelde-Button unter dem Link http://www.adobe.com/de/privacy/optout.html drücken, der einen Opt-Out-Cookie setzt. Der mit dem Widerspruch gesetzte Opt-OutCookie wird auf dem von der betroffenen Person genutzten informationstechnologischen System abgelegt. Werden die Cookies auf dem System der betroffenen Person nach einem Widerspruch gelöscht, muss die betroffene Person den Link erneut aufrufen und einen neuen Opt-Out-Cookie setzen. Mit der Setzung des Opt-Out-Cookies besteht jedoch die Möglichkeit, dass die Internetseiten des für die Verarbeitung Verantwortlichen für die betroffene Person nicht mehr vollumfänglich nutzbar sind. Die geltenden Datenschutzbestimmungen von Adobe können unter http://www.adobe.com/de/privacy.html abgerufen werden. 13. Datenschutzbestimmungen zu Einsatz und Verwendung von econda Der für die Verarbeitung Verantwortliche hat auf dieser Internetseite Komponenten des Unternehmens econda integriert. Econda ist ein Web-Analyse-Dienst. Web-Analyse ist die Erhebung, Sammlung und Auswertung von Daten über das Verhalten von Besuchern von Internetseiten. Ein Web-Analyse-Dienst erfasst unter anderem Daten darüber, von welcher Internetseite eine betroffene Person auf eine Internetseite gekommen ist (sogenannte Referrer), auf welche Unterseiten der Internetseite zugegriffen oder wie oft und für welche Verweildauer eine Unterseite betrachtet wurde. Eine Web-Analyse wird überwiegend zur Optimierung einer Internetseite und zur Kosten-Nutzen-Analyse von Internetwerbung eingesetzt. Betreibergesellschaft von econda ist die econda GmbH, Eisenlohrstr. 43, 76135 Karlsruhe, Deutschland. Econda setzt ein Cookie auf dem informationstechnologischen System der betroffenen Person. Was Cookies sind, wurde oben bereits erläutert. Durch jeden Aufruf einer der Einzelseiten dieser Internetseite, die durch den für die Verarbeitung Verantwortlichen betrieben wird und auf welcher eine econda-Komponente integriert wurde, wird der Internetbrowser auf dem informationstechnologischen System der betroffenen Person automatisch durch die jeweilige econda-Komponente veranlasst, Daten zu Marketing- und Optimierungszwecken an econda zu übermitteln. Im Rahmen dieses technischen Verfahrens erhält econda Kenntnis über Daten, die in der Folge zur Erstellung von pseudonymen Nutzungsprofilen verwendet werden. Die so gewonnenen Nutzungsprofile dienen der Analyse des Verhaltens der betroffenen Person, welche auf die Internetseite des für die Verarbeitung Verantwortlichen zugegriffen hat und werden mit dem Ziel, die Internetseite zur verbessern und zu optimieren, ausgewertet. Die über die econda-Komponente erhobenen Daten werden nicht ohne vorherige Einholung einer gesonderten und ausdrücklichen Einwilligung der betroffenen Person dazu genutzt, die betroffene Person zu identifizieren. Diese Daten werden nicht mit personenbezogenen Daten oder mit anderen Daten, die das gleiche Pseudonym enthalten, zusammengeführt. Die betroffene Person kann die Setzung von Cookies durch unsere Internetseite, wie oben bereits dargestellt, jederzeit mittels einer entsprechenden Einstellung des genutzten Internetbrowsers verhindern und damit der Setzung von Cookies dauerhaft widersprechen. Eine solche Einstellung des genutzten Internetbrowsers würde auch verhindern, dass econda ein Cookie auf dem informationstechnologischen System der betroffenen Person setzt. Zudem können von econda bereits gesetzte Cookies jederzeit über einen Internetbrowser oder andere Softwareprogramme gelöscht werden. Ferner besteht für die betroffene Person die Möglichkeit, einer Erfassung der durch den econdaCookie erzeugten, auf eine Nutzung dieser Internetseite bezogenen Daten sowie der Verarbeitung dieser Daten durch econda zu widersprechen und eine solche zu verhindern. Hierzu muss die betroffene Person den Absende-Button unter dem Link http://www.econda.de/econda/unternehmen/datenschutz/widerspruchscookie/ drücken, der den Opt-Out-Cookie setzt. Der mit dem Widerspruch gesetzte Opt-Out-Cookie wird auf dem von der betroffenen Person genutzten informationstechnologischen System abgelegt. Werden die Cookies auf dem System der betroffenen Person nach einem Widerspruch gelöscht, muss die betroffene Person den Link erneut aufrufen und einen neuen Opt-Out-Cookie setzen. Mit der Setzung des Opt-Out-Cookies besteht jedoch die Möglichkeit, dass die Internetseiten des für die Verarbeitung Verantwortlichen für die betroffene Person nicht mehr vollumfänglich nutzbar sind. Die geltenden Datenschutzbestimmungen von econda können unter http://www.econda.de/econda/unternehmen/datenschutz/datenschutzerklaerung/ abgerufen werden. 14. Datenschutzbestimmungen zu Einsatz und Verwendung von etracker Der für die Verarbeitung Verantwortliche hat auf dieser Internetseite Komponenten des Unternehmens etracker integriert. Etracker ist ein Web-Analyse-Dienst. Web-Analyse ist die Erhebung, Sammlung und Auswertung von Daten über das Verhalten der Besucher von Internetseiten. Ein Web-Analyse-Dienst erfasst unter anderem Daten darüber, von welcher Internetseite eine betroffene Person auf eine Internetseite gekommen ist (sogenannte Referrer), auf welche Unterseiten der Internetseite zugegriffen oder wie oft und für welche Verweildauer eine Unterseite betrachtet wurde. Eine Web-Analyse wird überwiegend zur Optimierung einer Internetseite und zur Kosten-Nutzen-Analyse von Internetwerbung eingesetzt. Betreibergesellschaft von etracker ist die etracker GmbH, Erste Brunnenstraße 1, 20459 Hamburg, Deutschland. Etracker setzt ein Cookie auf dem informationstechnologischen System der betroffenen Person. Was Cookies sind, wurde oben bereits erläutert. Durch jeden Aufruf einer der Einzelseiten dieser Internetseite, die durch den für die Verarbeitung Verantwortlichen betrieben wird und auf welcher eine etracker-Komponente integriert wurde, wird der Internetbrowser auf dem informationstechnologischen System der betroffenen Person automatisch durch die jeweilige etracker-Komponente veranlasst, Daten zu Marketing- und Optimierungszwecken an etracker zu übermitteln. Im Rahmen dieses technischen Verfahrens erhält etracker Kenntnis über Daten, die in der Folge zur Erstellung von pseudonymen Nutzungsprofilen verwendet werden. Die so gewonnenen Nutzungsprofile dienen der Analyse des Verhaltens der betroffenen Person, welche auf die Internetseite des für die Verarbeitung Verantwortlichen zugegriffen hat und werden mit dem Ziel, die Internetseite zur verbessern und zu optimieren, ausgewertet. Die über die etracker-Komponente erhobenen Daten werden nicht ohne vorherige Einholung einer gesonderten und ausdrücklichen Einwilligung der betroffenen Person dazu genutzt, die betroffene Person zu identifizieren. Diese Daten werden nicht mit personenbezogenen Daten oder mit anderen Daten, die das gleiche Pseudonym enthalten, zusammengeführt. Die betroffene Person kann die Setzung von Cookies durch unsere Internetseite, wie oben bereits dargestellt, jederzeit mittels einer entsprechenden Einstellung des genutzten Internetbrowsers verhindern und damit der Setzung von Cookies dauerhaft widersprechen. Eine solche Einstellung des genutzten Internetbrowsers würde auch verhindern, dass etracker ein Cookie auf dem informationstechnologischen System der betroffenen Person setzt. Zudem können von etracker bereits gesetzte Cookies jederzeit über den Internetbrowser oder andere Softwareprogramme gelöscht werden. Ferner besteht für die betroffene Person die Möglichkeit, einer Erfassung der durch den etrackerCookie erzeugten, auf eine Nutzung dieser Internetseite bezogenen Daten sowie der Verarbeitung dieser Daten durch etracker zu widersprechen und eine solche zu verhindern. Hierzu muss die betroffene Person den Cookie-setzen-Button unter dem Link http://www.etracker.de/privacy?et=V23Jbb drücken, der einen Opt-Out-Cookie setzt. Der mit dem Widerspruch gesetzte Opt-Out-Cookie wird auf dem von der betroffenen Person genutzten informationstechnologischen System abgelegt. Werden die Cookies auf dem System der betroffenen Person nach einem Widerspruch gelöscht, muss die betroffene Person den Link erneut aufrufen und einen neuen Opt-Out-Cookie setzen. Mit der Setzung des Opt-Out-Cookies besteht jedoch die Möglichkeit, dass die Internetseiten des für die Verarbeitung Verantwortlichen für die betroffene Person nicht mehr vollumfänglich nutzbar sind. Die geltenden Datenschutzbestimmungen von etracker können unter https://www.etracker.com/de/datenschutz.html abgerufen werden. 15. Datenschutzbestimmungen zu Einsatz und Verwendung von Facebook Der für die Verarbeitung Verantwortliche hat auf dieser Internetseite Komponenten des Unternehmens Facebook integriert. Facebook ist ein soziales Netzwerk. Ein soziales Netzwerk ist ein im Internet betriebener sozialer Treffpunkt, eine Online-Gemeinschaft, die es den Nutzern in der Regel ermöglicht, untereinander zu kommunizieren und im virtuellen Raum zu interagieren. Ein soziales Netzwerk kann als Plattform zum Austausch von Meinungen und Erfahrungen dienen oder ermöglicht es der Internetgemeinschaft, persönliche oder unternehmensbezogene Informationen bereitzustellen. Facebook ermöglicht den Nutzern des sozialen Netzwerkes unter anderem die Erstellung von privaten Profilen, den Upload von Fotos und eine Vernetzung über Freundschaftsanfragen. Betreibergesellschaft von Facebook ist die Facebook, Inc., 1 Hacker Way, Menlo Park, CA 94025, USA. Für die Verarbeitung personenbezogener Daten Verantwortlicher ist, wenn eine betroffene Person außerhalb der USA oder Kanada lebt, die Facebook Ireland Ltd., 4 Grand Canal Square, Grand Canal Harbour, Dublin 2, Ireland. Durch jeden Aufruf einer der Einzelseiten dieser Internetseite, die durch den für die Verarbeitung Verantwortlichen betrieben wird und auf welcher eine Facebook-Komponente (Facebook-Plug-In) integriert wurde, wird der Internetbrowser auf dem informationstechnologischen System der betroffenen Person automatisch durch die jeweilige Facebook-Komponente veranlasst, eine Darstellung der entsprechenden Facebook-Komponente von Facebook herunterzuladen. Eine Gesamtübersicht über alle Facebook-Plug-Ins kann unter https://developers.facebook.com/docs/plugins/?locale=de_DE abgerufen werden. Im Rahmen dieses technischen Verfahrens erhält Facebook Kenntnis darüber, welche konkrete Unterseite unserer Internetseite durch die betroffene Person besucht wird. Sofern die betroffene Person gleichzeitig bei Facebook eingeloggt ist, erkennt Facebook mit jedem Aufruf unserer Internetseite durch die betroffene Person und während der gesamten Dauer des jeweiligen Aufenthaltes auf unserer Internetseite, welche konkrete Unterseite unserer Internetseite die betroffene Person besucht. Diese Informationen werden durch die Facebook-Komponente gesammelt und durch Facebook dem jeweiligen Facebook-Account der betroffenen Person zugeordnet. Betätigt die betroffene Person einen der auf unserer Internetseite integrierten Facebook-Buttons, beispielsweise den „Gefällt mir“-Button, oder gibt die betroffene Person einen Kommentar ab, ordnet Facebook diese Information dem persönlichen Facebook-Benutzerkonto der betroffenen Person zu und speichert diese personenbezogenen Daten. Facebook erhält über die Facebook-Komponente immer dann eine Information darüber, dass die betroffene Person unsere Internetseite besucht hat, wenn die betroffene Person zum Zeitpunkt des Aufrufs unserer Internetseite gleichzeitig bei Facebook eingeloggt ist; dies findet unabhängig davon statt, ob die betroffene Person die Facebook-Komponente anklickt oder nicht. Ist eine derartige Übermittlung dieser Informationen an Facebook von der betroffenen Person nicht gewollt, kann diese die Übermittlung dadurch verhindern, dass sie sich vor einem Aufruf unserer Internetseite aus ihrem Facebook-Account ausloggt. Die von Facebook veröffentlichte Datenrichtlinie, die unter https://de-de.facebook.com/about/privacy/ abrufbar ist, gibt Aufschluss über die Erhebung, Verarbeitung und Nutzung personenbezogener Daten durch Facebook. Ferner wird dort erläutert, welche Einstellungsmöglichkeiten Facebook zum Schutz der Privatsphäre der betroffenen Person bietet. Zudem sind unterschiedliche Applikationen erhältlich, die es ermöglichen, eine Datenübermittlung an Facebook zu unterdrücken. Solche Applikationen können durch die betroffene Person genutzt werden, um eine Datenübermittlung an Facebook zu unterdrücken. 16. Datenschutzbestimmungen zu Einsatz und Verwendung von Google Analytics (mit Anonymisierungsfunktion) Der für die Verarbeitung Verantwortliche hat auf dieser Internetseite die Komponente Google Analytics (mit Anonymisierungsfunktion) integriert. Google Analytics ist ein Web-Analyse-Dienst. Web-Analyse ist die Erhebung, Sammlung und Auswertung von Daten über das Verhalten von Besuchern von Internetseiten. Ein Web-Analyse-Dienst erfasst unter anderem Daten darüber, von welcher Internetseite eine betroffene Person auf eine Internetseite gekommen ist (sogenannte Referrer), auf welche Unterseiten der Internetseite zugegriffen oder wie oft und für welche Verweildauer eine Unterseite betrachtet wurde. Eine Web-Analyse wird überwiegend zur Optimierung einer Internetseite und zur Kosten-Nutzen-Analyse von Internetwerbung eingesetzt. Betreibergesellschaft der Google-Analytics-Komponente ist die Google Inc., 1600 Amphitheatre Pkwy, Mountain View, CA 94043-1351, USA. Der für die Verarbeitung Verantwortliche verwendet für die Web-Analyse über Google Analytics den Zusatz "_gat._anonymizeIp". Mittels dieses Zusatzes wird die IP-Adresse des Internetanschlusses der betroffenen Person von Google gekürzt und anonymisiert, wenn der Zugriff auf unsere Internetseiten aus einem Mitgliedstaat der Europäischen Union oder aus einem anderen Vertragsstaat des Abkommens über den Europäischen Wirtschaftsraum erfolgt. Der Zweck der Google-Analytics-Komponente ist die Analyse der Besucherströme auf unserer Internetseite. Google nutzt die gewonnenen Daten und Informationen unter anderem dazu, die Nutzung unserer Internetseite auszuwerten, um für uns Online-Reports, welche die Aktivitäten auf unseren Internetseiten aufzeigen, zusammenzustellen, und um weitere mit der Nutzung unserer Internetseite in Verbindung stehende Dienstleistungen zu erbringen. Google Analytics setzt ein Cookie auf dem informationstechnologischen System der betroffenen Person. Was Cookies sind, wurde oben bereits erläutert. Mit Setzung des Cookies wird Google eine Analyse der Benutzung unserer Internetseite ermöglicht. Durch jeden Aufruf einer der Einzelseiten dieser Internetseite, die durch den für die Verarbeitung Verantwortlichen betrieben wird und auf welcher eine Google-Analytics-Komponente integriert wurde, wird der Internetbrowser auf dem informationstechnologischen System der betroffenen Person automatisch durch die jeweilige Google-Analytics-Komponente veranlasst, Daten zum Zwecke der Online-Analyse an Google zu übermitteln. Im Rahmen dieses technischen Verfahrens erhält Google Kenntnis über personenbezogene Daten, wie der IP-Adresse der betroffenen Person, die Google unter anderem dazu dienen, die Herkunft der Besucher und Klicks nachzuvollziehen und in der Folge Provisionsabrechnungen zu ermöglichen. Mittels des Cookies werden personenbezogene Informationen, beispielsweise die Zugriffszeit, der Ort, von welchem ein Zugriff ausging und die Häufigkeit der Besuche unserer Internetseite durch die betroffene Person, gespeichert. Bei jedem Besuch unserer Internetseiten werden diese personenbezogenen Daten, einschließlich der IP-Adresse des von der betroffenen Person genutzten Internetanschlusses, an Google in den Vereinigten Staaten von Amerika übertragen. Diese personenbezogenen Daten werden durch Google in den Vereinigten Staaten von Amerika gespeichert. Google gibt diese über das technische Verfahren erhobenen personenbezogenen Daten unter Umständen an Dritte weiter. Die betroffene Person kann die Setzung von Cookies durch unsere Internetseite, wie oben bereits dargestellt, jederzeit mittels einer entsprechenden Einstellung des genutzten Internetbrowsers verhindern und damit der Setzung von Cookies dauerhaft widersprechen. Eine solche Einstellung des genutzten Internetbrowsers würde auch verhindern, dass Google ein Cookie auf dem informationstechnologischen System der betroffenen Person setzt. Zudem kann ein von Google Analytics bereits gesetzter Cookie jederzeit über den Internetbrowser oder andere Softwareprogramme gelöscht werden. Ferner besteht für die betroffene Person die Möglichkeit, einer Erfassung der durch Google Analytics erzeugten, auf eine Nutzung dieser Internetseite bezogenen Daten sowie der Verarbeitung dieser Daten durch Google zu widersprechen und eine solche zu verhindern. Hierzu muss die betroffene Person ein Browser-Add-On unter dem Link https://tools.google.com/dlpage/gaoptout herunterladen und installieren. Dieses Browser-Add-On teilt Google Analytics über JavaScript mit, dass keine Daten und Informationen zu den Besuchen von Internetseiten an Google Analytics übermittelt werden dürfen. Die Installation des Browser-Add-Ons wird von Google als Widerspruch gewertet. Wird das informationstechnologische System der betroffenen Person zu einem späteren Zeitpunkt gelöscht, formatiert oder neu installiert, muss durch die betroffene Person eine erneute Installation des Browser-Add-Ons erfolgen, um Google Analytics zu deaktivieren. Sofern das Browser-Add-On durch die betroffene Person oder einer anderen Person, die ihrem Machtbereich zuzurechnen ist, deinstalliert oder deaktiviert wird, besteht die Möglichkeit der Neuinstallation oder der erneuten Aktivierung des Browser-Add-Ons. Weitere Informationen und die geltenden Datenschutzbestimmungen von Google können unter https://www.google.de/intl/de/policies/privacy/ und unter http://www.google.com/analytics/terms/de.html abgerufen werden. Google Analytics wird unter diesem Link https://www.google.com/intl/de_de/analytics/ genauer erläutert. 17. Datenschutzbestimmungen zu Einsatz und Verwendung von Google-AdWords Der für die Verarbeitung Verantwortliche hat auf dieser Internetseite Google AdWords integriert. Google AdWords ist ein Dienst zur Internetwerbung, der es Werbetreibenden gestattet, sowohl Anzeigen in den Suchmaschinenergebnissen von Google als auch im Google-Werbenetzwerk zu schalten. Google AdWords ermöglicht es einem Werbetreibenden, vorab bestimmte Schlüsselwörter festzulegen, mittels derer eine Anzeige in den Suchmaschinenergebnissen von Google ausschließlich dann angezeigt wird, wenn der Nutzer mit der Suchmaschine ein schlüsselwortrelevantes Suchergebnis abruft. Im Google-Werbenetzwerk werden die Anzeigen mittels eines automatischen Algorithmus und unter Beachtung der zuvor festgelegten Schlüsselwörter auf themenrelevanten Internetseiten verteilt. Betreibergesellschaft der Dienste von Google AdWords ist die Google Inc., 1600 Amphitheatre Pkwy, Mountain View, CA 94043-1351, USA. Der Zweck von Google AdWords ist die Bewerbung unserer Internetseite durch die Einblendung von interessenrelevanter Werbung auf den Internetseiten von Drittunternehmen und in den Suchmaschinenergebnissen der Suchmaschine Google und eine Einblendung von Fremdwerbung auf unserer Internetseite. Gelangt eine betroffene Person über eine Google-Anzeige auf unsere Internetseite, wird auf dem informationstechnologischen System der betroffenen Person durch Google ein sogenannter Conversion-Cookie abgelegt. Was Cookies sind, wurde oben bereits erläutert. Ein Conversion-Cookie verliert nach dreißig Tagen seine Gültigkeit und dient nicht zur Identifikation der betroffenen Person. Über den Conversion-Cookie wird, sofern das Cookie noch nicht abgelaufen ist, nachvollzogen, ob bestimmte Unterseiten, beispielsweise der Warenkorb von einem Online-Shop-System, auf unserer Internetseite aufgerufen wurden. Durch den Conversion-Cookie können sowohl wir als auch Google nachvollziehen, ob eine betroffene Person, die über eine AdWords-Anzeige auf unsere Internetseite gelangt ist, einen Umsatz generierte, also einen Warenkauf vollzogen oder abgebrochen hat. Die durch die Nutzung des Conversion-Cookies erhobenen Daten und Informationen werden von Google verwendet, um Besuchsstatistiken für unsere Internetseite zu erstellen. Diese Besuchsstatistiken werden durch uns wiederum genutzt, um die Gesamtanzahl der Nutzer zu ermitteln, welche über AdWords-Anzeigen an uns vermittelt wurden, also um den Erfolg oder Misserfolg der jeweiligen AdWords-Anzeige zu ermitteln und um unsere AdWords-Anzeigen für die Zukunft zu optimieren. Weder unser Unternehmen noch andere Werbekunden von Google-AdWords erhalten Informationen von Google, mittels derer die betroffene Person identifiziert werden könnte. Mittels des Conversion-Cookies werden personenbezogene Informationen, beispielsweise die durch die betroffene Person besuchten Internetseiten, gespeichert. Bei jedem Besuch unserer Internetseiten werden demnach personenbezogene Daten, einschließlich der IP-Adresse des von der betroffenen Person genutzten Internetanschlusses, an Google in den Vereinigten Staaten von Amerika übertragen. Diese personenbezogenen Daten werden durch Google in den Vereinigten Staaten von Amerika gespeichert. Google gibt diese über das technische Verfahren erhobenen personenbezogenen Daten unter Umständen an Dritte weiter. Die betroffene Person kann die Setzung von Cookies durch unsere Internetseite, wie oben bereits dargestellt, jederzeit mittels einer entsprechenden Einstellung des genutzten Internetbrowsers verhindern und damit der Setzung von Cookies dauerhaft widersprechen. Eine solche Einstellung des genutzten Internetbrowsers würde auch verhindern, dass Google einen Conversion-Cookie auf dem informationstechnologischen System der betroffenen Person setzt. Zudem kann ein von Google AdWords bereits gesetzter Cookie jederzeit über den Internetbrowser oder andere Softwareprogramme gelöscht werden. Ferner besteht für die betroffene Person die Möglichkeit, der interessenbezogenen Werbung durch Google zu widersprechen. Hierzu muss die betroffene Person von jedem der von ihr genutzten Internetbrowser aus den Link www.google.de/settings/ads aufrufen und dort die gewünschten Einstellungen vornehmen. Weitere Informationen und die geltenden Datenschutzbestimmungen von Google können unter https://www.google.de/intl/de/policies/privacy/ abgerufen werden. 18. Datenschutzbestimmungen zu Einsatz und Verwendung von Instagram Der für die Verarbeitung Verantwortliche hat auf dieser Internetseite Komponenten des Dienstes Instagram integriert. Instagram ist ein Dienst, der als audiovisuelle Plattform zu qualifizieren ist und den Nutzern das Teilen von Fotos und Videos und zudem eine Weiterverbreitung solcher Daten in anderen sozialen Netzwerken ermöglicht. Betreibergesellschaft der Dienste von Instagram ist die Instagram LLC, 1 Hacker Way, Building 14 First Floor, Menlo Park, CA, USA. Durch jeden Aufruf einer der Einzelseiten dieser Internetseite, die durch den für die Verarbeitung Verantwortlichen betrieben wird und auf welcher eine Instagram-Komponente (Insta-Button) integriert wurde, wird der Internetbrowser auf dem informationstechnologischen System der betroffenen Person automatisch durch die jeweilige Instagram-Komponente veranlasst, eine Darstellung der entsprechenden Komponente von Instagram herunterzuladen. Im Rahmen dieses technischen Verfahrens erhält Instagram Kenntnis darüber, welche konkrete Unterseite unserer Internetseite durch die betroffene Person besucht wird. Sofern die betroffene Person gleichzeitig bei Instagram eingeloggt ist, erkennt Instagram mit jedem Aufruf unserer Internetseite durch die betroffene Person und während der gesamten Dauer des jeweiligen Aufenthaltes auf unserer Internetseite, welche konkrete Unterseite die betroffene Person besucht. Diese Informationen werden durch die Instagram-Komponente gesammelt und durch Instagram dem jeweiligen Instagram-Account der betroffenen Person zugeordnet. Betätigt die betroffene Person einen der auf unserer Internetseite integrierten Instagram-Buttons, werden die damit übertragenen Daten und Informationen dem persönlichen Instagram-Benutzerkonto der betroffenen Person zugeordnet und von Instagram gespeichert und verarbeitet. Instagram erhält über die Instagram-Komponente immer dann eine Information darüber, dass die betroffene Person unsere Internetseite besucht hat, wenn die betroffene Person zum Zeitpunkt des Aufrufs unserer Internetseite gleichzeitig bei Instagram eingeloggt ist; dies findet unabhängig davon statt, ob die betroffene Person die Instagram-Komponente anklickt oder nicht. Ist eine derartige Übermittlung dieser Informationen an Instagram von der betroffenen Person nicht gewollt, kann diese die Übermittlung dadurch verhindern, dass sie sich vor einem Aufruf unserer Internetseite aus ihrem Instagram-Account ausloggt. Weitere Informationen und die geltenden Datenschutzbestimmungen von Instagram können unter https://help.instagram.com/155833707900388 und https://www.instagram.com/about/legal/privacy/ abgerufen werden. 19. Datenschutzbestimmungen zu Einsatz und Verwendung von LinkedIn Der für die Verarbeitung Verantwortliche hat auf dieser Internetseite Komponenten der LinkedIn Corporation integriert. LinkedIn ist ein Internetbasiertes soziales Netzwerk, das eine Konnektierung der Nutzer mit bestehenden Geschäftskontakten sowie das Knüpfen von neuen Businesskontakten ermöglicht. Über 400 Millionen registrierte Personen nutzen LinkedIn in mehr als 200 Ländern. Damit ist LinkedIn derzeit die größte Plattform für Businesskontakte und eine der meistbesuchten Internetseiten der Welt. Betreibergesellschaft von LinkedIn ist die LinkedIn Corporation, 2029 Stierlin Court Mountain View, CA 94043, USA. Für Datenschutzangelegenheiten außerhalb der USA ist LinkedIn Ireland, Privacy Policy Issues, Wilton Plaza, Wilton Place, Dublin 2, Ireland, zuständig. Bei jedem einzelnen Abruf unserer Internetseite, die mit einer LinkedIn-Komponente (LinkedIn-Plug-In) ausgestattet ist, veranlasst diese Komponente, dass der von der betroffenen Person verwendete Browser eine entsprechende Darstellung der Komponente von LinkedIn herunterlädt. Weitere Informationen zu den LinkedIn-Plug-Ins können unter https://developer.linkedin.com/plugins abgerufen werden. Im Rahmen dieses technischen Verfahrens erhält LinkedIn Kenntnis darüber, welche konkrete Unterseite unserer Internetseite durch die betroffene Person besucht wird. Sofern die betroffene Person gleichzeitig bei LinkedIn eingeloggt ist, erkennt LinkedIn mit jedem Aufruf unserer Internetseite durch die betroffene Person und während der gesamten Dauer des jeweiligen Aufenthaltes auf unserer Internetseite, welche konkrete Unterseite unserer Internetseite die betroffene Person besucht. Diese Informationen werden durch die LinkedIn-Komponente gesammelt und durch LinkedIn dem jeweiligen LinkedIn-Account der betroffenen Person zugeordnet. Betätigt die betroffene Person einen auf unserer Internetseite integrierten LinkedInButton, ordnet LinkedIn diese Information dem persönlichen LinkedIn-Benutzerkonto der betroffenen Person zu und speichert diese personenbezogenen Daten. LinkedIn erhält über die LinkedIn-Komponente immer dann eine Information darüber, dass die betroffene Person unsere Internetseite besucht hat, wenn die betroffene Person zum Zeitpunkt des Aufrufes unserer Internetseite gleichzeitig bei LinkedIn eingeloggt ist; dies findet unabhängig davon statt, ob die betroffene Person die LinkedIn-Komponente anklickt oder nicht. Ist eine derartige Übermittlung dieser Informationen an LinkedIn von der betroffenen Person nicht gewollt, kann diese die Übermittlung dadurch verhindern, dass sie sich vor einem Aufruf unserer Internetseite aus ihrem LinkedIn-Account ausloggt. LinkedIn bietet unter https://www.linkedin.com/psettings/guest-controls die Möglichkeit, E-Mail-Nachrichten, SMS-Nachrichten und zielgerichtete Anzeigen abzubestellen sowie AnzeigenEinstellungen zu verwalten. LinkedIn nutzt ferner Partner wie Quantcast, Google Analytics, BlueKai, DoubleClick, Nielsen, Comscore, Eloqua und Lotame, die Cookies setzen können. Solche Cookies können unter https://www.linkedin.com/legal/cookie-policy abgelehnt werden. Die geltenden Datenschutzbestimmungen von LinkedIn sind unter https://www.linkedin.com/legal/privacy-policy abrufbar. Die Cookie-Richtlinie von LinkedIn ist unter https://www.linkedin.com/legal/cookie-policy abrufbar. 20. Datenschutzbestimmungen zu Einsatz und Verwendung von Matomo Der für die Verarbeitung Verantwortliche hat auf dieser Internetseite die Komponente Matomo integriert. Matomo ist ein Open-Source-Softwaretool zur Web-Analyse. Web-Analyse ist die Erhebung, Sammlung und Auswertung von Daten über das Verhalten von Besuchern von Internetseiten. Ein Web-Analyse-Tool erfasst unter anderem Daten darüber, von welcher Internetseite eine betroffene Person auf eine Internetseite gekommen ist (sogenannter Referrer), auf welche Unterseiten der Internetseite zugegriffen oder wie oft und für welche Verweildauer eine Unterseite betrachtet wurde. Eine Web-Analyse wird überwiegend zur Optimierung einer Internetseite und zur Kosten-Nutzen-Analyse von Internetwerbung eingesetzt. Die Software wird auf dem Server des für die Verarbeitung Verantwortlichen betrieben, die datenschutzrechtlich sensiblen Logdateien werden ausschließlich auf diesem Server gespeichert. Der Zweck der Matomo-Komponente ist die Analyse der Besucherströme auf unserer Internetseite. Der für die Verarbeitung Verantwortliche nutzt die gewonnenen Daten und Informationen unter anderem dazu, die Nutzung dieser Internetseite auszuwerten, um Online-Reports, welche die Aktivitäten auf unseren Internetseiten aufzeigen, zusammenzustellen. Matomo setzt ein Cookie auf dem informationstechnologischen System der betroffenen Person. Was Cookies sind, wurde oben bereits erläutert. Mit der Setzung des Cookies wird uns eine Analyse der Benutzung unserer Internetseite ermöglicht. Durch jeden Aufruf einer der Einzelseiten dieser Internetseite wird der Internetbrowser auf dem informationstechnologischen System der betroffenen Person automatisch durch die Matomo-Komponente veranlasst, Daten zum Zwecke der Online-Analyse an unseren Server zu übermitteln. Im Rahmen dieses technischen Verfahrens erhalten wir Kenntnis über personenbezogene Daten, wie der IP-Adresse der betroffenen Person, die uns unter anderem dazu dient, die Herkunft der Besucher und Klicks nachzuvollziehen. Mittels des Cookies werden personenbezogene Informationen, beispielsweise die Zugriffszeit, der Ort, von welchem ein Zugriff ausging und die Häufigkeit der Besuche auf unserer Internetseite gespeichert. Bei jedem Besuch unserer Internetseiten werden diese personenbezogenen Daten, einschließlich der IP-Adresse des von der betroffenen Person genutzten Internetanschlusses, an unseren Server übertragen. Diese personenbezogenen Daten werden durch uns gespeichert. Wir geben diese personenbezogenen Daten nicht an Dritte weiter. Die betroffene Person kann die Setzung von Cookies durch unsere Internetseite, wie oben bereits dargestellt, jederzeit mittels einer entsprechenden Einstellung des genutzten Internetbrowsers verhindern und damit der Setzung von Cookies dauerhaft widersprechen. Eine solche Einstellung des genutzten Internetbrowsers würde auch verhindern, dass Matomo ein Cookie auf dem informationstechnologischen System der betroffenen Person setzt. Zudem kann ein von Matomo bereits gesetzter Cookie jederzeit über einen Internetbrowser oder andere Softwareprogramme gelöscht werden. Ferner besteht für die betroffene Person die Möglichkeit, einer Erfassung der durch den Matomo erzeugten, auf eine Nutzung dieser Internetseite bezogenen Daten zu widersprechen und eine solche zu verhindern. Hierzu muss die betroffene Person in Ihrem Browser "Do Not Track" einstellen. Mit der Setzung des Opt-Out-Cookies besteht jedoch die Möglichkeit, dass die Internetseiten des für die Verarbeitung Verantwortlichen für die betroffene Person nicht mehr vollumfänglich nutzbar sind. Weitere Informationen und die geltenden Datenschutzbestimmungen von Matomo können unter https://matomo.org/privacy/ abgerufen werden. 21. Datenschutzbestimmungen zu Einsatz und Verwendung von Webtrekk Der für die Verarbeitung Verantwortliche hat auf dieser Internetseite Komponenten von Webtrekk integriert. Webtrekk ist eine Kombination aus Analyse- und Marketinglösung in einem System. Webtrekk ermöglicht dem Seitenbetreiber die Sammlung von Daten über die Nutzung der Internetseite sowie eine Individualisierung der Marketingaktivitäten. Betreibergesellschaft von Webtrekk ist die Webtrekk GmbH, Robert-Koch-Platz 4, 10115 Berlin, Deutschland. Durch jeden Aufruf einer der Einzelseiten dieser Internetseite, die durch den für die Verarbeitung Verantwortlichen betrieben wird, sammelt Webtrekk Daten zu Marketing- und Optimierungszwecken und speichert diese. Mittels der gewonnenen Daten werden pseudonymisierte Nutzerprofile erstellt. Die pseudonymisierten Nutzerprofile werden zum Zwecke der Analyse des Besucherverhaltens genutzt und ermöglichen eine Verbesserung unseres Internetangebots. Die über die Webtrekk-Komponente erhobenen Daten werden nicht ohne vorherige Einholung einer gesonderten und ausdrücklichen Einwilligung der betroffenen Person dazu genutzt, die betroffene Person zu identifizieren. Diese Daten werden nicht mit personenbezogenen Daten oder mit anderen Daten, die das gleiche Pseudonym enthalten, zusammengeführt. Webtrekk setzt ein Cookie auf dem informationstechnologischen System der betroffenen Person. Was Cookies sind, wurde oben bereits erläutert. Webtrekk wird im Auftrag des für die Verarbeitung Verantwortlichen die über unsere Internetseite gewonnenen Daten und Informationen dazu nutzen, das Nutzerverhalten von der betroffenen Person, die unsere Internetseite besucht hat, auszuwerten. Ferner wird Webtrekk die Daten nutzen, um in unserem Auftrag Reports über die Nutzeraktivitäten zu erstellen sowie weitere Dienstleistungen für unser Unternehmen zu erbringen, die im Zusammenhang mit der Nutzung unserer Internetseite stehen. Die IP-Adresse der betroffenen Person wird durch Webtrekk nicht mit anderen personenbezogenen Daten zusammengeführt. Die betroffene Person kann die Setzung von Cookies durch unsere Internetseite, wie oben bereits dargestellt, jederzeit mittels einer entsprechenden Einstellung des genutzten Internetbrowsers verhindern und damit der Setzung von Cookies dauerhaft widersprechen. Eine solche Einstellung des genutzten Internetbrowsers würde auch verhindern, dass Webtrekk ein Cookie auf dem informationstechnologischen System der betroffenen Person setzt. Zudem können von Webtrekk bereits gesetzte Cookies jederzeit über einen Internetbrowser oder andere Softwareprogramme gelöscht werden. Ferner besteht für die betroffene Person die Möglichkeit, einer Erfassung der durch das WebtrekkCookie erzeugten, auf eine Nutzung dieser Internetseite bezogenen Daten sowie der Verarbeitung dieser Daten durch Webtrekk zu widersprechen und eine solche zu verhindern. Hierzu muss die betroffene Person einen Link auf https://www.webtrekk.com/de/legal/opt-out-webtrekk/ anklicken, welcher einen Opt-Out-Cookie setzt. Der mit dem Widerspruch gesetzte Opt-Out-Cookie wird auf dem von der betroffenen Person genutzten informationstechnologischen System abgelegt. Werden die Cookies auf dem System der betroffenen Person nach einem Widerspruch gelöscht, muss die betroffene Person den Link erneut aufrufen und einen neuen Opt-Out-Cookie setzen. Mit der Setzung des Opt-Out-Cookies besteht jedoch die Möglichkeit, dass die Internetseiten des für die Verarbeitung Verantwortlichen für die betroffene Person nicht mehr vollumfänglich nutzbar sind. Die geltenden Datenschutzbestimmungen von Webtrekk können unter https://www.webtrekk.com/de/warum-webtrekk/datenschutz/ abgerufen werden. 22. Datenschutzbestimmungen zu Einsatz und Verwendung von Xing Der für die Verarbeitung Verantwortliche hat auf dieser Internetseite Komponenten von Xing integriert. Xing ist ein Internetbasiertes soziales Netzwerk, das die Konnektierung der Nutzer mit bestehenden Geschäftskontakten sowie das Knüpfen von neuen Businesskontakten ermöglicht. Die einzelnen Nutzer können bei Xing ein persönliches Profil von sich anlegen. Unternehmen können beispielsweise Unternehmensprofile erstellen oder Stellenangebote auf Xing veröffentlichen. Betreibergesellschaft von Xing ist die XING SE, Dammtorstraße 30, 20354 Hamburg, Deutschland. Durch jeden Aufruf einer der Einzelseiten dieser Internetseite, die durch den für die Verarbeitung Verantwortlichen betrieben wird und auf welcher eine Xing-Komponente (Xing-Plug-In) integriert wurde, wird der Internetbrowser auf dem informationstechnologischen System der betroffenen Person automatisch durch die jeweilige Xing-Komponente veranlasst, eine Darstellung der entsprechenden Xing-Komponente von Xing herunterzuladen. Weitere Informationen zum den XingPlug-Ins können unter https://dev.xing.com/plugins abgerufen werden. Im Rahmen dieses technischen Verfahrens erhält Xing Kenntnis darüber, welche konkrete Unterseite unserer Internetseite durch die betroffene Person besucht wird. Sofern die betroffene Person gleichzeitig bei Xing eingeloggt ist, erkennt Xing mit jedem Aufruf unserer Internetseite durch die betroffene Person und während der gesamten Dauer des jeweiligen Aufenthaltes auf unserer Internetseite, welche konkrete Unterseite unserer Internetseite die betroffene Person besucht. Diese Informationen werden durch die Xing-Komponente gesammelt und durch Xing dem jeweiligen Xing-Account der betroffenen Person zugeordnet. Betätigt die betroffene Person einen der auf unserer Internetseite integrierten Xing-Buttons, beispielsweise den „Share“-Button, ordnet Xing diese Information dem persönlichen Xing-Benutzerkonto der betroffenen Person zu und speichert diese personenbezogenen Daten. Xing erhält über die Xing-Komponente immer dann eine Information darüber, dass die betroffene Person unsere Internetseite besucht hat, wenn die betroffene Person zum Zeitpunkt des Aufrufs unserer Internetseite gleichzeitig bei Xing eingeloggt ist; dies findet unabhängig davon statt, ob die betroffene Person die Xing-Komponente anklickt oder nicht. Ist eine derartige Übermittlung dieser Informationen an Xing von der betroffenen Person nicht gewollt, kann diese die Übermittlung dadurch verhindern, dass sie sich vor einem Aufruf unserer Internetseite aus ihrem Xing-Account ausloggt. Die von Xing veröffentlichten Datenschutzbestimmungen, die unter https://www.xing.com/privacy abrufbar sind, geben Aufschluss über die Erhebung, Verarbeitung und Nutzung personenbezogener Daten durch Xing. Ferner hat Xing unter https://www.xing.com/app/share?op=data_protection Datenschutzhinweise für den XING-Share-Button veröffentlicht. 23. Datenschutzbestimmungen zu Einsatz und Verwendung von YouTube Der für die Verarbeitung Verantwortliche hat auf dieser Internetseite Komponenten von YouTube integriert. YouTube ist ein Internet-Videoportal, dass Video-Publishern das kostenlose Einstellen von Videoclips und anderen Nutzern die ebenfalls kostenfreie Betrachtung, Bewertung und Kommentierung dieser ermöglicht. YouTube gestattet die Publikation aller Arten von Videos, weshalb sowohl komplette Film- und Fernsehsendungen, aber auch Musikvideos, Trailer oder von Nutzern selbst angefertigte Videos über das Internetportal abrufbar sind. Betreibergesellschaft von YouTube ist die YouTube, LLC, 901 Cherry Ave., San Bruno, CA 94066, USA. Die YouTube, LLC ist einer Tochtergesellschaft der Google Inc., 1600 Amphitheatre Pkwy, Mountain View, CA 94043-1351, USA. Durch jeden Aufruf einer der Einzelseiten dieser Internetseite, die durch den für die Verarbeitung Verantwortlichen betrieben wird und auf welcher eine YouTube-Komponente (YouTube-Video) integriert wurde, wird der Internetbrowser auf dem informationstechnologischen System der betroffenen Person automatisch durch die jeweilige YouTube-Komponente veranlasst, eine Darstellung der entsprechenden YouTube-Komponente von YouTube herunterzuladen. Weitere Informationen zu YouTube können unter https://www.youtube.com/yt/about/de/ abgerufen werden. Im Rahmen dieses technischen Verfahrens erhalten YouTube und Google Kenntnis darüber, welche konkrete Unterseite unserer Internetseite durch die betroffene Person besucht wird. Sofern die betroffene Person gleichzeitig bei YouTube eingeloggt ist, erkennt YouTube mit dem Aufruf einer Unterseite, die ein YouTube-Video enthält, welche konkrete Unterseite unserer Internetseite die betroffene Person besucht. Diese Informationen werden durch YouTube und Google gesammelt und dem jeweiligen YouTube-Account der betroffenen Person zugeordnet. YouTube und Google erhalten über die YouTube-Komponente immer dann eine Information darüber, dass die betroffene Person unsere Internetseite besucht hat, wenn die betroffene Person zum Zeitpunkt des Aufrufs unserer Internetseite gleichzeitig bei YouTube eingeloggt ist; dies findet unabhängig davon statt, ob die betroffene Person ein YouTube-Video anklickt oder nicht. Ist eine derartige Übermittlung dieser Informationen an YouTube und Google von der betroffenen Person nicht gewollt, kann diese die Übermittlung dadurch verhindern, dass sie sich vor einem Aufruf unserer Internetseite aus ihrem YouTube-Account ausloggt. Die von YouTube veröffentlichten Datenschutzbestimmungen, die unter https://www.google.de/intl/de/policies/privacy/ abrufbar sind, geben Aufschluss über die Erhebung, Verarbeitung und Nutzung personenbezogener Daten durch YouTube und Google. 24. Datenschutzbestimmungen zu Einsatz und Verwendung des Skalierbaren Zentralen Messverfahrens der INFOnline GmbH Der für die Verarbeitung Verantwortliche hat auf dieser Internetseite ein Zählpixel zur Reichweitenmessung integriert. Ein Zählpixel ist eine Miniaturgrafik, die in Internetseiten eingebettet wird, um eine Logdatei-Aufzeichnung und eine Logdatei-Analyse zu ermöglichen, um in der Folge eine statistische Auswertung durchzuführen. Die integrierten Zählpixel dienen dem Skalierbaren Zentralen Messverfahren (SZM) der INFOnline GmbH. Das Skalierbare Zentrale Messverfahren wird von der INFOnline GmbH, Forum Bonn Nord, Brühler Str. 9, 53119 Bonn, Deutschland betrieben. Das Skalierbare Zentrale Messverfahren dient der Ermittlung statistischer Kennzahlen, also der Reichweitenmessung. Anhand des eingebetteten Zählpixels wird nachvollzogen, ob, wann und von wie vielen Nutzern (darunter ist die betroffene Person) unsere Internetseite geöffnet wurde und welche Inhalte abgerufen wurden. Die mittels des Skalierbaren Zentralen Messverfahrens erlangten Daten werden anonym erhoben. Zur Erfassung der Zugriffszahlen wird zum Zwecke der Wiedererkennung der Nutzer einer Internetseite entweder ein sogenannter Session-Cookie gesetzt, also eine Signatur erstellt, welche sich aus verschiedenen automatisch übertragenen Informationen zusammensetzt oder alternative Methoden verwendet. Die IP-Adresse des von der betroffenen Person genutzten Internetanschlusses wird nur in anonymisierter Form erhoben und verarbeitet. Die betroffene Person wird zu keinem Zeitpunkt identifiziert. Die betroffene Person kann die Setzung von Cookies durch unsere Internetseite, wie oben bereits dargestellt, jederzeit mittels einer entsprechenden Einstellung des genutzten Internetbrowsers verhindern und damit der Setzung von Cookies dauerhaft widersprechen. Eine solche Einstellung des genutzten Internetbrowsers würde auch verhindern, dass INFOnline ein Cookie auf dem informationstechnologischen System der betroffenen Person setzt. Zudem können von INFOnline bereits gesetzte Cookies jederzeit über einen Internetbrowser oder andere Softwareprogramme gelöscht werden. Ferner besteht für die betroffene Person die Möglichkeit, einer Erfassung der durch den INFOnline erzeugten, auf eine Nutzung dieser Internetseite bezogenen Daten sowie der Verarbeitung dieser Daten durch INFOnline zu widersprechen und eine solche zu verhindern. Hierzu muss die betroffene Person den Opt-Out-Button unter dem Link http://optout.ioam.de drücken, der einen Opt-OutCookie setzt. Der mit dem Widerspruch gesetzte Opt-Out-Cookie wird auf dem von der betroffenen Person genutzten informationstechnologischen System abgelegt. Werden die Cookies auf dem System der betroffenen Person nach einem Widerspruch gelöscht, muss die betroffene Person den Link erneut aufrufen und einen neuen Opt-Out-Cookie setzen. Mit der Setzung des Opt-Out-Cookies geht die Möglichkeit einher, dass die Internetseiten des für die Verarbeitung Verantwortlichen nicht mehr vollumfänglich nutzbar sind. Die geltenden Datenschutzbestimmungen von INFOnline können unter https://www.infonline.de/datenschutz/ abgerufen werden. 25. Rechtsgrundlage der Verarbeitung Art. 6 I lit. a DS-GVO dient unserem Unternehmen als Rechtsgrundlage für Verarbeitungsvorgänge, bei denen wir eine Einwilligung für einen bestimmten Verarbeitungszweck einholen. Ist die Verarbeitung personenbezogener Daten zur Erfüllung eines Vertrags, dessen Vertragspartei die betroffene Person ist, erforderlich, wie dies beispielsweise bei Verarbeitungsvorgängen der Fall ist, die für eine Lieferung von Waren oder die Erbringung einer sonstigen Leistung oder Gegenleistung notwendig sind, so beruht die Verarbeitung auf Art. 6 I lit. b DS-GVO. Gleiches gilt für solche Verarbeitungsvorgänge die zur Durchführung vorvertraglicher Maßnahmen erforderlich sind, etwa in Fällen von Anfragen zur unseren Produkten oder Leistungen. Unterliegt unser Unternehmen einer rechtlichen Verpflichtung durch welche eine Verarbeitung von personenbezogenen Daten erforderlich wird, wie beispielsweise zur Erfüllung steuerlicher Pflichten, so basiert die Verarbeitung auf Art. 6 I lit. c DS-GVO. In seltenen Fällen könnte die Verarbeitung von personenbezogenen Daten erforderlich werden, um lebenswichtige Interessen der betroffenen Person oder einer anderen natürlichen Person zu schützen. Dies wäre beispielsweise der Fall, wenn ein Besucher in unserem Betrieb verletzt werden würde und daraufhin sein Name, sein Alter, seine Krankenkassendaten oder sonstige lebenswichtige Informationen an einen Arzt, ein Krankenhaus oder sonstige Dritte weitergegeben werden müssten. Dann würde die Verarbeitung auf Art. 6 I lit. d DS-GVO beruhen. Letztlich könnten Verarbeitungsvorgänge auf Art. 6 I lit. f DS-GVO beruhen. Auf dieser Rechtsgrundlage basieren Verarbeitungsvorgänge, die von keiner der vorgenannten Rechtsgrundlagen erfasst werden, wenn die Verarbeitung zur Wahrung eines berechtigten Interesses unseres Unternehmens oder eines Dritten erforderlich ist, sofern die Interessen, Grundrechte und Grundfreiheiten des Betroffenen nicht überwiegen. Solche Verarbeitungsvorgänge sind uns insbesondere deshalb gestattet, weil sie durch den Europäischen Gesetzgeber besonders erwähnt wurden. Er vertrat insoweit die Auffassung, dass ein berechtigtes Interesse anzunehmen sein könnte, wenn die betroffene Person ein Kunde des Verantwortlichen ist (Erwägungsgrund 47 Satz 2 DS-GVO). 26. Berechtigte Interessen an der Verarbeitung, die von dem Verantwortlichen oder einem Dritten verfolgt werden Basiert die Verarbeitung personenbezogener Daten auf Artikel 6 I lit. f DS-GVO ist unser berechtigtes Interesse die Durchführung unserer Geschäftstätigkeit zugunsten des Wohlergehens all unserer Mitarbeiter und unserer Anteilseigner. 27. Dauer, für die die personenbezogenen Daten gespeichert werden Das Kriterium für die Dauer der Speicherung von personenbezogenen Daten ist die jeweilige gesetzliche Aufbewahrungsfrist. Nach Ablauf der Frist werden die entsprechenden Daten routinemäßig gelöscht, sofern sie nicht mehr zur Vertragserfüllung oder Vertragsanbahnung erforderlich sind. 28. Gesetzliche oder vertragliche Vorschriften zur Bereitstellung der personenbezogenen Daten; Erforderlichkeit für den Vertragsabschluss; Verpflichtung der betroffenen Person, die personenbezogenen Daten bereitzustellen; mögliche Folgen der Nichtbereitstellung Wir klären Sie darüber auf, dass die Bereitstellung personenbezogener Daten zum Teil gesetzlich vorgeschrieben ist (z.B. Steuervorschriften) oder sich auch aus vertraglichen Regelungen (z.B. Angaben zum Vertragspartner) ergeben kann. Mitunter kann es zu einem Vertragsschluss erforderlich sein, dass eine betroffene Person uns personenbezogene Daten zur Verfügung stellt, die in der Folge durch uns verarbeitet werden müssen. Die betroffene Person ist beispielsweise verpflichtet uns personenbezogene Daten bereitzustellen, wenn unser Unternehmen mit ihr einen Vertrag abschließt. Eine Nichtbereitstellung der personenbezogenen Daten hätte zur Folge, dass der Vertrag mit dem Betroffenen nicht geschlossen werden könnte. Vor einer Bereitstellung personenbezogener Daten durch den Betroffenen muss sich der Betroffene an einen unserer Mitarbeiter wenden. Unser Mitarbeiter klärt den Betroffenen einzelfallbezogen darüber auf, ob die Bereitstellung der personenbezogenen Daten gesetzlich oder vertraglich vorgeschrieben oder für den Vertragsabschluss erforderlich ist, ob eine Verpflichtung besteht, die personenbezogenen Daten bereitzustellen, und welche Folgen die Nichtbereitstellung der personenbezogenen Daten hätte. 29. Bestehen einer automatisierten Entscheidungsfindung Als verantwortungsbewusstes Unternehmen verzichten wir auf eine automatische Entscheidungsfindung oder ein Profiling. Diese Datenschutzerklärung wurde durch den Datenschutzerklärungs-Generator der DGD Deutsche Gesellschaft für Datenschutz GmbH, die als Externer Datenschutzbeauftragter Augsburg tätig ist, in Kooperation mit dem Kölner IT- und Datenschutz Anwalt Christian Solmecke erstellt. |
Immobilien Lounge Regensburg GmbH
Weitere Angebote von Immobilien Lounge Regensburg GmbH
Alle anzeigen