Willkommen in Ihrem neuen Büro oder Ihrer Praxis in ruhiger Lage von Sinzheim.
2.150 €
Kaltmiete (netto)
10
Zimmer
immobilien.de Nr.: 9151200
Objektnummer: 1069
Preise & Kosten
| Kaltmiete | 0 € |
| Kaltmiete (netto) | 2.150 € |
| Nebenkosten | keine Angabe |
| Maklerprovision | eine Kaltmiete |
Größe & Zustand
| Zimmer | 10 |
| Baujahr | 1979 |
| Verfügbar ab | keine Angabe |
Energie
| Energieausweistyp | Verbrauch |
| Gültig bis | 2027-09-21 |
| Baujahr (laut Energieausweis) | 2005 |
| Energieeffizienzklasse | D |
| Energieverbrauchkennwert | 106.00 kWh/(m²*a) |
| Wesentlicher Energieträger | Gas |
Objektbeschreibung
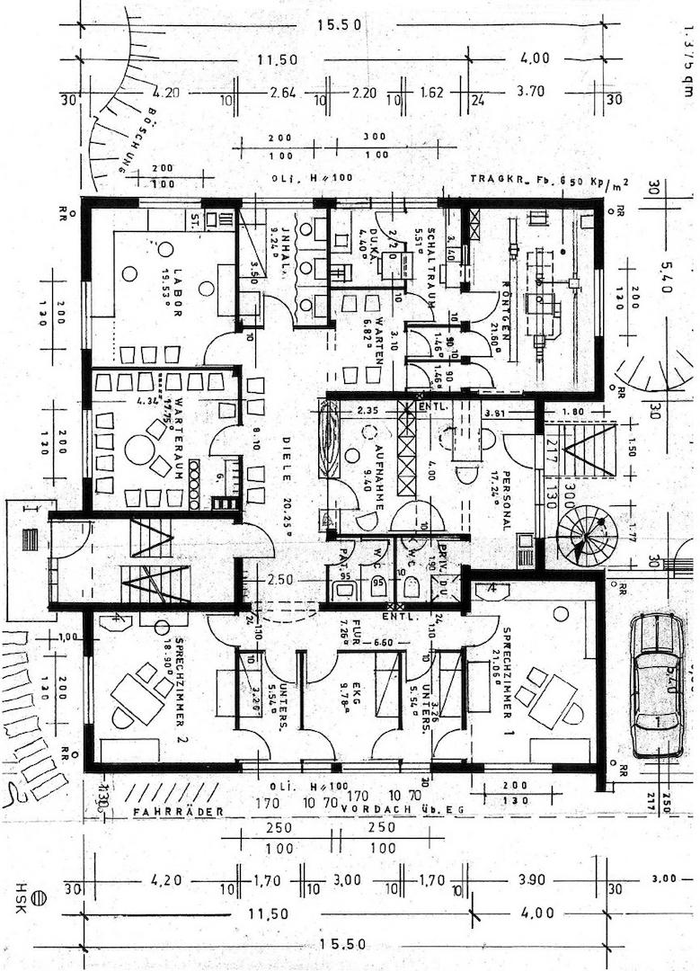
Willkommen zu Ihrer neuen Praxis- oder Bürofläche im charmanten Sinzheim! Diese beeindruckende Mietpraxis, erbaut im Jahr 1979, vereint Funktionalität und Ästhetik auf harmonische Weise. Mit insgesamt 10 Zimmern bietet sie großzügigen Raum, um Ihre Praxisvisionen zu verwirklichen und gleichzeitig eine angenehme Atmosphäre für Ihre Patienten zu schaffen.
Der edle Marmorboden zeugt von Eleganz und Qualität, wodurch Ihre Praxis nicht nur professionell, sondern auch einladend wirkt. Der Grundriss ist intelligent gestaltet, um Ihnen optimale Flexibilität zu bieten, egal ob für medizinische, therapeutische oder andere gesundheitsbezogene Dienstleistungen.
Diese Praxisfläche befindet sich in einer begehrten Lage in Sinzheim und profitiert von einer ausgezeichneten Erreichbarkeit sowohl mit öffentlichen Verkehrsmitteln als auch mit dem Auto. Ein etabliertes Netzwerk von Geschäften und Dienstleistern in der Umgebung wird zusätzliche Vorteile für Sie und Ihre Patienten bieten.
Nutzen Sie diese einmalige Gelegenheit, Ihre Praxis in einer vielseitigen und florierenden Umgebung einzurichten! Kontaktieren Sie uns gerne für weitere Informationen oder um eine Besichtigung vor Ort zu arrangieren. Wir freuen uns darauf, Ihnen diese einzigartige Fläche persönlich vorstellen zu dürfen.
Der edle Marmorboden zeugt von Eleganz und Qualität, wodurch Ihre Praxis nicht nur professionell, sondern auch einladend wirkt. Der Grundriss ist intelligent gestaltet, um Ihnen optimale Flexibilität zu bieten, egal ob für medizinische, therapeutische oder andere gesundheitsbezogene Dienstleistungen.
Diese Praxisfläche befindet sich in einer begehrten Lage in Sinzheim und profitiert von einer ausgezeichneten Erreichbarkeit sowohl mit öffentlichen Verkehrsmitteln als auch mit dem Auto. Ein etabliertes Netzwerk von Geschäften und Dienstleistern in der Umgebung wird zusätzliche Vorteile für Sie und Ihre Patienten bieten.
Nutzen Sie diese einmalige Gelegenheit, Ihre Praxis in einer vielseitigen und florierenden Umgebung einzurichten! Kontaktieren Sie uns gerne für weitere Informationen oder um eine Besichtigung vor Ort zu arrangieren. Wir freuen uns darauf, Ihnen diese einzigartige Fläche persönlich vorstellen zu dürfen.
Ausstattung
| Inserat befindet sich im Stockwerk | 0 |
| Boden | Marmor |
- Marmorböden
- 2 Garagen
- 5 Stellplätze
- 2 Garagen
- 5 Stellplätze
Lage des Objektes
Die angebotene Praxis-/Büroflächefläche befindet sich in Sinzheim, einer charmanten Gemeinde im Herzen des Landkreises Rastatt in Baden-Württemberg. Sinzheim zeichnet sich durch eine harmonische Mischung aus ländlichem Charme und städtischem Komfort aus. Die Praxisfläche liegt in einer ruhigen und dennoch zentral erreichbaren Gegend und bietet somit eine ideale Anbindung sowohl an das Stadtzentrum als auch an die umliegenden Gemeinden.
Die Region besticht durch ihre hervorragende Infrastruktur: In unmittelbarer Nähe befinden sich Annehmlichkeiten des täglichen Bedarfs wie Einkaufsmöglichkeiten, Restaurants und Cafés. Die Verkehrsanbindung ist exzellent; sowohl mit dem Auto als auch mit öffentlichen Verkehrsmitteln sind Sie optimal vernetzt. Das nahegelegene Autobahnnetz ermöglicht eine schnelle Erreichbarkeit der umliegenden Städte wie Rastatt, Baden-Baden und Karlsruhe, was diesen Standort besonders attraktiv für Berufspendler macht.
Naturfreunde werden die Nähe zu den malerischen Landschaften des Schwarzwalds zu schätzen wissen, die zahlreiche Erholungs- und Freizeitmöglichkeiten bieten. Die Kombination aus exzellenter Lage und Infrastruktur macht diese Praxisfläche zu einem herausragenden Standort für Ihre geschäftlichen Aktivitäten.
Die Region besticht durch ihre hervorragende Infrastruktur: In unmittelbarer Nähe befinden sich Annehmlichkeiten des täglichen Bedarfs wie Einkaufsmöglichkeiten, Restaurants und Cafés. Die Verkehrsanbindung ist exzellent; sowohl mit dem Auto als auch mit öffentlichen Verkehrsmitteln sind Sie optimal vernetzt. Das nahegelegene Autobahnnetz ermöglicht eine schnelle Erreichbarkeit der umliegenden Städte wie Rastatt, Baden-Baden und Karlsruhe, was diesen Standort besonders attraktiv für Berufspendler macht.
Naturfreunde werden die Nähe zu den malerischen Landschaften des Schwarzwalds zu schätzen wissen, die zahlreiche Erholungs- und Freizeitmöglichkeiten bieten. Die Kombination aus exzellenter Lage und Infrastruktur macht diese Praxisfläche zu einem herausragenden Standort für Ihre geschäftlichen Aktivitäten.
Anbieter kontaktieren
Anbieter
VR-Bank in Mittelbaden eG
Hügelsheimer Str. 6
76473 Iffezheim
Kontakt
| Telefon | 004972296022421 |
| Website | www.vr-miba.de |
