Repräsentatives, gepflegtes 1-2 Familienwohnhaus mit Traumaussicht in Ebersteinburg!

76530 Baden-Baden / Ebersteinburg
Frei ab: sofort
885.000 € Kaufpreis
Wohnfläche
319 m²
Zimmer
7
Balkon
Terrasse
Keller

Kaufpreis

Kaufpreis 885.000 €
Maklerprovision3,57 % inkl. Mwst.

Wohnfläche, Grundstück & Bausubstanz

Wohnfläche319 m²
Nutzfläche175 m²
Grundstücksfläche883 m²
Zimmer7
Etagen2
Baujahr1978
Verfügbar ab sofort
ZustandGepflegt

Beschreibung der Immobilie

In begehrter Wohnlage von Baden-Baden/Ebersteinburg präsentiert sich dieses gepflegte 1–2 Familienhaus aus dem Baujahr 1978 auf einem großzügigen Grundstück von ca. 883 m². Die Immobilie bietet viel Platz, flexible Nutzungsmöglichkeiten und ein Umfeld, das Ruhe und Wohnqualität ideal miteinander verbindet – perfekt für Familien, Mehrgenerationenwohnen oder die Kombination aus Wohnen und Arbeiten unter einem Dach.

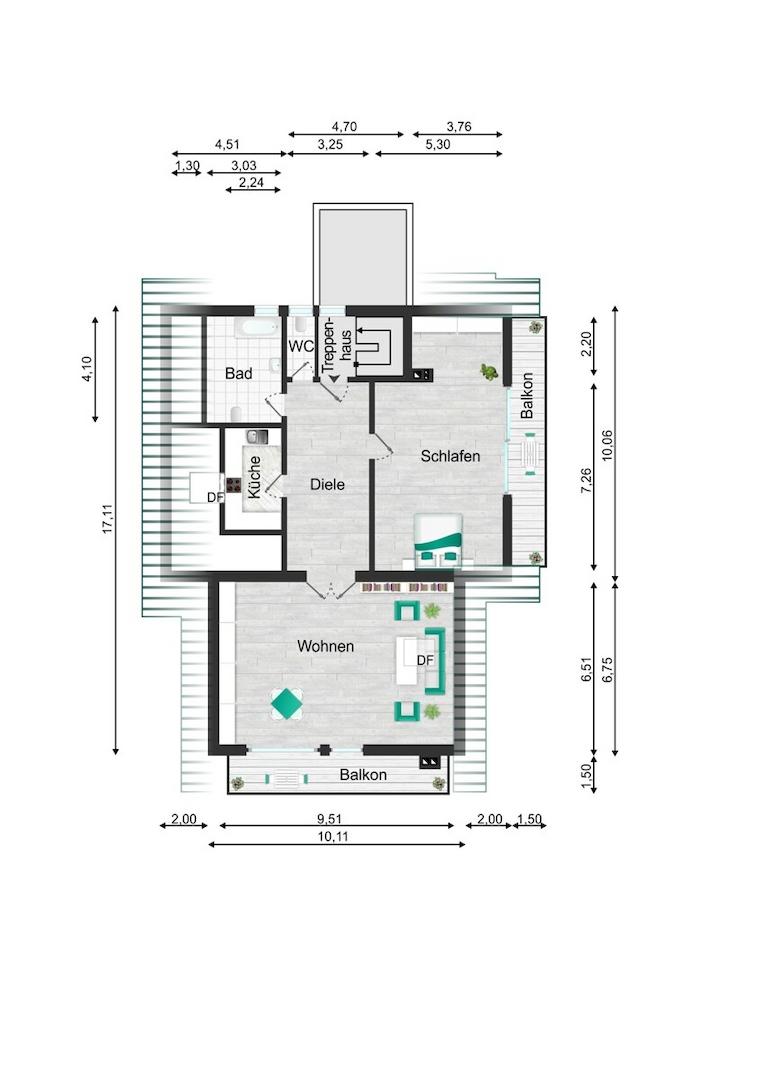
Auf zwei Etagen stehen Ihnen insgesamt ca. 319 m² Wohnfläche zur Verfügung, davon ca. 185 m² im EG und ca. 135 m² im nachträglich 1982 ausgebauten DG. Mit insgesamt 7 Zimmern eröffnet das Haus vielseitige Gestaltungsspielräume – vom großzügigen Familienleben bis hin zu separaten Bereichen für Gäste oder Homeoffice. Zwei großzügige Schlafzimmer, zwei lichtdurchflutete, helle Wohnräume, zwei Tageslichtbäder und auf jeder Etage zwei Gäste-WC und Küchen unterstreichen den komfortablen Charakter und ermöglichen eine unkomplizierte Alltagsorganisation auch bei mehreren Bewohnern.

Ein Kamin sorgt in der kühleren Jahreszeit für eine angenehme Wohnatmosphäre, während Terrasse und Balkon attraktive Außenbereiche schaffen, um die Lage und den Garten in vollen Zügen zu genießen.

Das Haus ist komplett unterkellert und bietet damit zusätzliche Stau- und Nutzmöglichkeiten, die den praktischen Wert der Immobilie deutlich erhöhen. Die gepflegte Gesamtanmutung macht den Einstieg leicht – die Immobilie ist sofort verfügbar und eignet sich sowohl für Eigennutzer als auch für Käufer, die Wert auf Substanz, Raumangebot und Lage legen.
Eine Doppelgarage, elektrisch betrieben, und weitere 2 Außenstellplätze sind für Ihren Fuhrpark vorhanden.
Rufen Sie uns einfach an, wir zeigen Ihnen gerne diese außergewöhnliche Immobilie.

Ausstattungsmerkmale

Bad2
Balkone1
Terrassen1
KellerJa
- hochwertige Einbauküche
- Innen- und Außenkamin
- Terrasse mit Überdachung
- Balkon mit elektr. Markise
- moderne Einbauten
- Doppelgarage
- Partyraum im UG

Energie

F
Energieeffizienzklasse F · 188.40 kWh/(m²*a)
EnergieausweistypBedarfsausweis
Gültig bis2036-02-18
Baujahr (laut Energieausweis)1987
EnergieeffizienzklasseF
Endenergiebedarf188.40
Heizungsart Zentralheizung
Wesentlicher EnergieträgerErdgas Schwer
Energieträger/Befeuerung Gas

Karte wird geladen...
76530 Baden-Baden / Ebersteinburg

Lage & Infrastruktur

Das exklusive, traumhaft gelegene 2-Familienwohnhaus befindet sich in einer sehr ruhigen, aber dennoch zentralen Lage in Ebersteinburg, einem Höhenstadtteil von Baden-Baden, der für seine hohe Lebensqualität bekannt ist. Die Umgebung ist geprägt von einer harmonischen Mischung aus Natur und urbanem Leben. Einkaufsmöglichkeiten, Schulen, Kindergärten und Freizeitangebote sind in unmittelbarer Nähe und tragen zu einem angenehmen Wohnumfeld bei. Die gute Anbindung an die Stadt Baden-Baden sowie die Nähe zu den malerischen Weinbergen und Wanderwegen machen diesen Standort besonders attraktiv.
Ansprechpartner/in: Frau Simone Langendörfer
VR-Bank in Mittelbaden eG
Hügelsheimer Str. 6, 76473 Iffezheim

Weitere Angebote in Baden-Baden