VB3892 Provisionsfreie, exklusive Büroflächen in zentraler Lage / Regensburg - Süd
14.355 €
Kaltmiete
14.355 €
Kaltmiete (netto)
1.305 m²
Nutzfläche
18
Zimmer
immobilien.de Nr.: 9144110
Objektnummer: VB 3892
Preise & Kosten
| Kaltmiete | 14.355 € |
| Kaltmiete (netto) | 14.355 € |
| Nebenkosten | 3589 € |
| Maklerprovision | Ortsübliche Provision vom Käufer/Mieter nur im Erfolgsfalle |
| Kaution | 43.065 € |
| Stellplatz Freiplatz Miete} | 70 € |
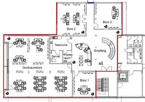
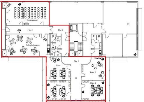
Größe & Zustand
| Nutzfläche | 1.305 m² |
| Bürofläche | 1.305 m² |
| Fläche teilbar ab | 395 m² |
| Zimmer | 18 |
| Baujahr | 2001 |
| Letzte Modernisierung | 2024 |
| Verfügbar ab | sofort |
| Zustand | Modernisiert |
Energie
| Energieausweistyp | Verbrauch |
| Energieverbrauchkennwert | 65.00 kWh/(m²*a) |
| Energieträger/Befeuerung | Gas |
Objektbeschreibung
Die Flächen befinden sich in einem Bürogebäude mit exklusiver Ausstattung und hohem technischen Standard in einer Lage mit bester Verkehrsanbindung am südlichen Zentrum von Regensburg. Die Nähe zu den Autobahnen A 93 und A 3 bietet eine schnelle überregionale Erreichbarkeit. Eine Bushaltestelle befindet sich vor dem Gebäude.
Großflächige Fensterbänder mit außenliegendem Sonnenschutz durch Jalousien bieten eine gute Tagesbeleuchtung und geben dem Haus eine markante Struktur. Moderne Loggien und Dachterrassen sowie die begrünten Innenhöfe können genutzt werden. Individuelle Raumaufteilungsmöglichkeiten sind umsetzbar.
Die Büroräume sind ausgestattet mit eleganten Teppichböden und abgehängten Elementdecken mit integrierten Beleuchtungseinheiten. Ein DSL-Anschluss mit bis zu 1.000 Mbit/s ist vorhanden.
Kostenlose Besucherparkplätze sind vorhanden. Die Tiefgarage bietet ausreichend anmietbare Mitarbeiterstellplätze.
Ein interessanter Standort, den wir gerne mit Ihnen besichtigen.
Großflächige Fensterbänder mit außenliegendem Sonnenschutz durch Jalousien bieten eine gute Tagesbeleuchtung und geben dem Haus eine markante Struktur. Moderne Loggien und Dachterrassen sowie die begrünten Innenhöfe können genutzt werden. Individuelle Raumaufteilungsmöglichkeiten sind umsetzbar.
Die Büroräume sind ausgestattet mit eleganten Teppichböden und abgehängten Elementdecken mit integrierten Beleuchtungseinheiten. Ein DSL-Anschluss mit bis zu 1.000 Mbit/s ist vorhanden.
Kostenlose Besucherparkplätze sind vorhanden. Die Tiefgarage bietet ausreichend anmietbare Mitarbeiterstellplätze.
Ein interessanter Standort, den wir gerne mit Ihnen besichtigen.
Ausstattung
| Boden | Teppich |
| Fahrstuhl |
Lage: Regensburg - Süd
Mietpreis: EUR 14.355,-
Nebenkosten: EUR 3.589,-
Fläche: ca. 1.305 m²
Zimmeranzahl: 18
Baujahr: 2001
letzte Modernisierung: 2024
Kaution: EUR 43.065,-
Geschoss(e): 1.OG + 2.OG
Bezug: sofort
teilbar ab: ca. 395 m²
Stellplatzpreis: EUR 70,-
Fußweg zum RVV: 3 min.
Fahrtzeit Bahnhof: 3 min.
Fahrtzeit Autobahn: 5 min.
Fahrtzeit Flughafen: 70 min.
Objekttyp: Büro
Zustand: modernisiert
Stellplatz: Außenstellplatz
Ausstattung: gehoben
Bodenbelag: Teppich
Heizung: Gas-Heizung
Energieausweis Art: Energieverbrauchsausweis
Energieausweis Wert: 65 kWh kWh/m²a
Energieträger: Gas
Starkstrom: ja
DV-Verkabelung: ja
Lift: ja
Mietpreis: EUR 14.355,-
Nebenkosten: EUR 3.589,-
Fläche: ca. 1.305 m²
Zimmeranzahl: 18
Baujahr: 2001
letzte Modernisierung: 2024
Kaution: EUR 43.065,-
Geschoss(e): 1.OG + 2.OG
Bezug: sofort
teilbar ab: ca. 395 m²
Stellplatzpreis: EUR 70,-
Fußweg zum RVV: 3 min.
Fahrtzeit Bahnhof: 3 min.
Fahrtzeit Autobahn: 5 min.
Fahrtzeit Flughafen: 70 min.
Objekttyp: Büro
Zustand: modernisiert
Stellplatz: Außenstellplatz
Ausstattung: gehoben
Bodenbelag: Teppich
Heizung: Gas-Heizung
Energieausweis Art: Energieverbrauchsausweis
Energieausweis Wert: 65 kWh kWh/m²a
Energieträger: Gas
Starkstrom: ja
DV-Verkabelung: ja
Lift: ja
Sonstige Informationen
Wir befinden uns im Betriebsurlaub. Ab dem 07.01.2026 sind wir wieder wie gewohnt für Sie erreichbar. Um eine schnelle Bearbeitung zu gewähren benötigen wir Ihre Telefonnummer sowie Ihre komplette Adresse.
Anbieter
TRUMMER Immobilien GmbH & Co. KG
Nußbergerstr. 6
93059 Regensburg
Kontakt
| Telefon | 0941/447633 |
| Fax | 0941/41793 |
| Website | www.trummer.de |
