VH3869 Provisionsfreies Gewerbeanwesen mit Halle, Büroanbau und Freifläche / Ansbach
5.439 m²
Nutzfläche
immobilien.de Nr.: 9006736
Objektnummer: VH 3869
Preise & Kosten
| Miete für das Objekt | Auf Anfrage |
| Nebenkosten | keine Angabe |
| Maklerprovision | Ortsübliche Provision vom Käufer/Mieter nur im Erfolgsfalle |
| Kaution | 3 € |
Größe & Zustand
| Nutzfläche | 5.439 m² |
| Gesamtfläche | 18.096 m² |
| Freifläche | 12.657 m² |
| Grundstücksfläche | 18.096 m² |
| Baujahr | 1986 |
| Verfügbar ab | sofort |
| Zustand | Teil Vollrenoviert |
Objektbeschreibung
Das verkehrsgünstig gelegene Anwesen zur Vermietung befindet sich in einem Gewerbegebiet in Ansbach. Über die nahe gelegene Autobahn A 6 und die Bundesstraßen B 13 und B 14 ist eine gute Verkehrsanbindung gegeben. Eine Bushaltestelle befindet sich in direkter Nähe. Die S 4 verbindet Ansbach mit Nürnberg.
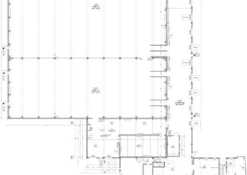
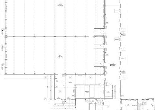
Das Gewerbeanwesen befindet sich auf einem eingezäunten Grundstück mit Ausbaureserve. Es besteht aus einer Halle mit Büroanbau. Ein Internet-Anschluss mit bis zu 100 Mbit/s ist möglich.
Die Halle hat eine Höhe von ca. 11,6 m. Die Umschlaghalle als Ladezone verfügt über 10 Laderampe und hat eine Höhe von ca. 6,50 m.
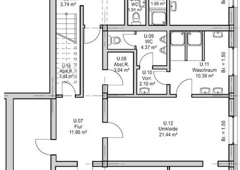
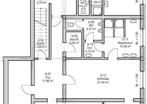
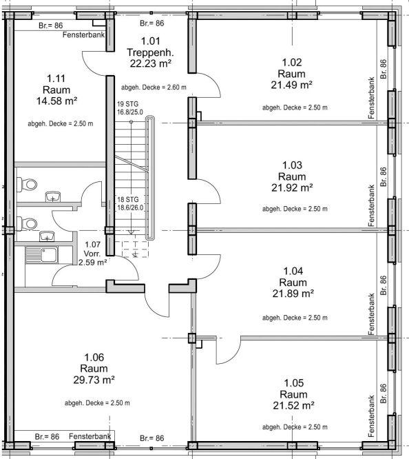
Der Büroanbau erstreckt sich über drei Stockwerke. Im Erdgeschoss und Obergeschoss befinden sich jeweils Büroräume, WCs sowie eine Teeküche. Im Keller sind die Umkleide- und Waschräume.
Aufenthaltsraum, Abstellraum sowie WCs untergebracht. Durch die großen Fenster sind die überwiegend mit Teppichboden ausgelegten Büros sehr hell und freundlich. Die Teeküchen sind mit Kunststoffböden und die Sanitärräume und WCs sind gefliest. In den abgehängten Decken sind Leuchten integriert. Die EDV-Verkabelung verläuft in Brüstungskanälen.
Gerne besichtigen wir mir Ihnen dieses Gewerbeanwesen.
Das Gewerbeanwesen befindet sich auf einem eingezäunten Grundstück mit Ausbaureserve. Es besteht aus einer Halle mit Büroanbau. Ein Internet-Anschluss mit bis zu 100 Mbit/s ist möglich.
Die Halle hat eine Höhe von ca. 11,6 m. Die Umschlaghalle als Ladezone verfügt über 10 Laderampe und hat eine Höhe von ca. 6,50 m.
Der Büroanbau erstreckt sich über drei Stockwerke. Im Erdgeschoss und Obergeschoss befinden sich jeweils Büroräume, WCs sowie eine Teeküche. Im Keller sind die Umkleide- und Waschräume.
Aufenthaltsraum, Abstellraum sowie WCs untergebracht. Durch die großen Fenster sind die überwiegend mit Teppichboden ausgelegten Büros sehr hell und freundlich. Die Teeküchen sind mit Kunststoffböden und die Sanitärräume und WCs sind gefliest. In den abgehängten Decken sind Leuchten integriert. Die EDV-Verkabelung verläuft in Brüstungskanälen.
Gerne besichtigen wir mir Ihnen dieses Gewerbeanwesen.
Sonstige Informationen
Wir befinden uns im Betriebsurlaub. Ab dem 07.01.2026 sind wir wieder wie gewohnt für Sie erreichbar. Um eine schnelle Bearbeitung zu gewähren benötigen wir Ihre Telefonnummer sowie Ihre komplette Adresse.
Anbieter
TRUMMER Immobilien GmbH & Co. KG
Nußbergerstr. 6
93059 Regensburg
Kontakt
| Telefon | 0941/447633 |
| Fax | 0941/41793 |
| Website | www.trummer.de |
