VB3898VH Bürogebäude / Weiden
558 m²
Nutzfläche
12
Zimmer
immobilien.de Nr.: 9006689
Objektnummer: VB 3898VH
Preise & Kosten
| Miete für das Objekt | Auf Anfrage |
| Nebenkosten | keine Angabe |
| Maklerprovision | Ortsübliche Provision vom Käufer/Mieter nur im Erfolgsfalle |
| Kaution | 40.000 € |
| Stellplatz Freiplatz Miete} | 0 € |
Größe & Zustand
| Nutzfläche | 558 m² |
| Bürofläche | 558 m² |
| Grundstücksfläche | 8.600 m² |
| Zimmer | 12 |
| Baujahr | 1991 |
| Verfügbar ab | sofort |
| Zustand | Teil Vollrenoviert |
Energie
| Energieträger/Befeuerung | Gas |
Objektbeschreibung
Das gepflegte und multifunktional nutzbare Gewerbeanwesen befindet sich in einem Gewerbegebiet in Weiden. Eine erstklassiger Verkehrsanbindung an die Autobahn und Bundesstraße ist gegeben.
Das eingezäunte Gewerbeanwesen besteht aus einem Bürogebäude mit drei angrenzenden Hallen. Der Außenbereich ist geteert und kann mit einem LKW umfahren werden. Es wurde ständig instandgehalten. Die Beheizung erfolgt mit einer 2023 erneuerten Gaszentralheizung. Ein Internetanschluss mit bis zu 250 Mbit/s ist möglich.
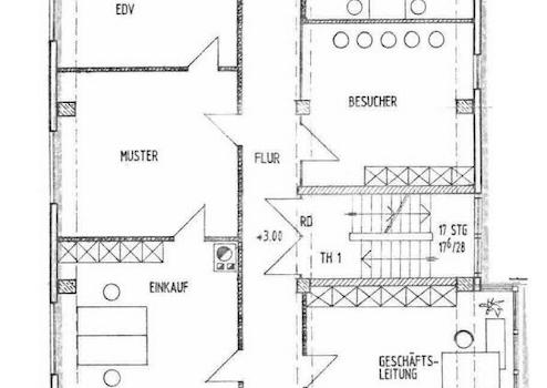
Das Bürogebäude ist im Erdgeschoss über einen repräsentativen Vorraum mit Empfang mit Natursteinboden begehbar. Hier befinden sich drei Großraumbüros mit Vinylboden, ein Aufenthaltsraum mit Laminat und Küchenzeile sowie eine hell geflieste WC-Anlage. Der Flur ist ebenfalls mit Naturstein ausgelegt. Der Innenhof ist über eines der Großraumbüros erreichbar. Die EDV- und Telefonverkabelung verläuft in Kabelkanälen und Bodentanks. Leuchten sind vorhanden.
Das Obergeschoss ist aufgrund der vielen Fenster sehr hell und freundlich. Die Büroräume sind überwiegend mit Laminat und Vinylboden, der Flur mit Naturstein, ausgelegt. Die EDV- und Telefonverkabelung verläuft in Kabelkanälen und Bodentanks. In den abgehängten Decken sind Leuchten integriert. Vom Sekretariat aus ist sowohl das Chefbüro als auch die Küche erreichbar. Die WC-Anlage ist hell gefliest.
Im Außenbereich sind Stellplätze vorhanden.
Das eingezäunte Gewerbeanwesen besteht aus einem Bürogebäude mit drei angrenzenden Hallen. Der Außenbereich ist geteert und kann mit einem LKW umfahren werden. Es wurde ständig instandgehalten. Die Beheizung erfolgt mit einer 2023 erneuerten Gaszentralheizung. Ein Internetanschluss mit bis zu 250 Mbit/s ist möglich.
Das Bürogebäude ist im Erdgeschoss über einen repräsentativen Vorraum mit Empfang mit Natursteinboden begehbar. Hier befinden sich drei Großraumbüros mit Vinylboden, ein Aufenthaltsraum mit Laminat und Küchenzeile sowie eine hell geflieste WC-Anlage. Der Flur ist ebenfalls mit Naturstein ausgelegt. Der Innenhof ist über eines der Großraumbüros erreichbar. Die EDV- und Telefonverkabelung verläuft in Kabelkanälen und Bodentanks. Leuchten sind vorhanden.
Das Obergeschoss ist aufgrund der vielen Fenster sehr hell und freundlich. Die Büroräume sind überwiegend mit Laminat und Vinylboden, der Flur mit Naturstein, ausgelegt. Die EDV- und Telefonverkabelung verläuft in Kabelkanälen und Bodentanks. In den abgehängten Decken sind Leuchten integriert. Vom Sekretariat aus ist sowohl das Chefbüro als auch die Küche erreichbar. Die WC-Anlage ist hell gefliest.
Im Außenbereich sind Stellplätze vorhanden.
Ausstattung
| Boden | Estrich |
| Keller |
Lage: Weiden
Mietpreis: auf Anfrage
Nebenkosten: auf Anfrage
Fläche: ca. 558 m²
Grundstück: ca. 8.600 m²
Zimmeranzahl: 12
Baujahr: 1991
Kaution: EUR 40.000,-
Geschoss(e): E+1
Bezug: sofort
teilbar ab: nein
Erschließung: erschlossen
Fußweg zum RVV: 2 min.
Fahrtzeit Bahnhof: 10 min.
Fahrtzeit Autobahn: 5 min.
Fahrtzeit Flughafen: 120 min.
Objekttyp: Bürohaus
Zustand: renoviert
Stellplatz: Außenstellplatz
Ausstattung: normal
Bodenbelag: Beton
Heizung: Gas-Heizung
Energieträger: Gas
Starkstrom: ja
Keller: ja
Mietpreis: auf Anfrage
Nebenkosten: auf Anfrage
Fläche: ca. 558 m²
Grundstück: ca. 8.600 m²
Zimmeranzahl: 12
Baujahr: 1991
Kaution: EUR 40.000,-
Geschoss(e): E+1
Bezug: sofort
teilbar ab: nein
Erschließung: erschlossen
Fußweg zum RVV: 2 min.
Fahrtzeit Bahnhof: 10 min.
Fahrtzeit Autobahn: 5 min.
Fahrtzeit Flughafen: 120 min.
Objekttyp: Bürohaus
Zustand: renoviert
Stellplatz: Außenstellplatz
Ausstattung: normal
Bodenbelag: Beton
Heizung: Gas-Heizung
Energieträger: Gas
Starkstrom: ja
Keller: ja
Sonstige Informationen
Wir befinden uns im Betriebsurlaub. Ab dem 07.01.2026 sind wir wieder wie gewohnt für Sie erreichbar. Um eine schnelle Bearbeitung zu gewähren benötigen wir Ihre Telefonnummer sowie Ihre komplette Adresse.
Anbieter
TRUMMER Immobilien GmbH & Co. KG
Nußbergerstr. 6
93059 Regensburg
Kontakt
| Telefon | 0941/447633 |
| Fax | 0941/41793 |
| Website | www.trummer.de |
