VH3898 Gewerbeanwesen mit Halle und Büroanbau / Weiden
20.000 €
Kaltmiete
20.000 €
Kaltmiete (netto)
3.993 m²
Nutzfläche
immobilien.de Nr.: 9006673
Objektnummer: VH 3898
Preise & Kosten
| Kaltmiete | 20.000 € |
| Kaltmiete (netto) | 20.000 € |
| Nebenkosten | keine Angabe |
| Maklerprovision | Ortsübliche Provision vom Käufer/Mieter nur im Erfolgsfalle |
| Kaution | 40.000 € |
Größe & Zustand
| Nutzfläche | 3.993 m² |
| Gesamtfläche | 8.600 m² |
| Freifläche | 4.607 m² |
| Grundstücksfläche | 8.600 m² |
| Baujahr | 1991 |
| Verfügbar ab | sofort |
| Zustand | Teil Vollrenoviert |
Energie
| Energieträger/Befeuerung | Gas |
Objektbeschreibung
Das gepflegte und multifunktional nutzbare Gewerbeanwesen befindet sich in einem Gewerbegebiet in Weiden. Eine erstklassiger Verkehrsanbindung an die Autobahn und Bundesstraße ist gegeben.
Das eingezäunte Gewerbeanwesen besteht aus einem Bürogebäude mit drei angrenzenden Hallen. Der Außenbereich ist geteert und kann mit einem LKW umfahren werden. Es wurde ständig instandgehalten. Die Beheizung erfolgt mit einer 2023 erneuerten Gaszentralheizung. Ein Internetanschluss mit bis zu 250 Mbit/s ist möglich.
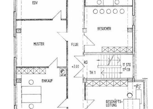
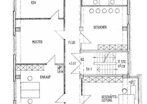
Das Bürogebäude ist im Erdgeschoss über einen repräsentativen Vorraum mit Empfang mit Natursteinboden begehbar. Hier befinden sich drei Großraumbüros mit Vinylboden, ein Aufenthaltsraum mit Laminat und Küchenzeile sowie eine hell geflieste WC-Anlage. Der Flur ist ebenfalls mit Naturstein ausgelegt. Der Innenhof ist über eines der Großraumbüros erreichbar. Die EDV- und Telefonverkabelung verläuft in Kabelkanälen und Bodentanks. Leuchten sind vorhanden. Es besteht Zugang zur Halle 1 und Halle 2.
Das Obergeschoss ist aufgrund der vielen Fenster sehr hell und freundlich. Die Büroräume sind überwiegend mit Laminat und Vinylboden, der Flur mit Naturstein, ausgelegt. Die EDV- und Telefonverkabelung verläuft in Kabelkanälen und Bodentanks. In den abgehängten Decken sind Leuchten integriert. Vom Sekretariat aus ist sowohl das Chefbüro als auch die Küche erreichbar. Die WC-Anlage ist hell gefliest.
Im Keller befinden sich die Umkleiden, Duschen, Lagerräume und die Heizung.
Die Halle 1 mit Fußbodenheizung hat eine Höhe von ca. 7,50 m und ist mit Betonboden. Die Belichtung erfolgt über Lichtbänder sowie zwei Reihen Dachflächenfenster. Ein Anlieferungsbereich mit einer Höhe von ca. 5 m und einem Rolltor ist abgetrennt.
Die Halle 2 mit Fußbodenheizung hat eine Höhe von ca. 5 m und ist mit Betonboden. Die Belichtung erfolgt über Lichtbänder sowie mehrere Oberlichten. Mehrere Rolltore mit ca. 3 m Breite und ca. 3,70 m Höhe mit vorgelagertem Vordach sind vorhanden.
Die Halle 3 mit Fußbodenheizung hat eine Höhe von ca. 7,50 m und ist mit Betonboden. Die Belichtung erfolgt über Lichtbänder und einer umlaufenden Fensterfront. Ein Meisterbüro mit angrenzenden WCs sind abgetrennt. Die EDV- und Telefonverkabelung verläuft in Brüstungskanälen. Neben dem Meisterbüro befindet sich ein Rolltor mit ca. 3 m Breite und ca. 3,70 m Höhe. In der Halle sind noch zwei weitere gleichgroße Rolltore verbaut.
Im Außenbereich sind Stellplätze vorhanden.
Eine Teilanmietung ist möglich.
Das eingezäunte Gewerbeanwesen besteht aus einem Bürogebäude mit drei angrenzenden Hallen. Der Außenbereich ist geteert und kann mit einem LKW umfahren werden. Es wurde ständig instandgehalten. Die Beheizung erfolgt mit einer 2023 erneuerten Gaszentralheizung. Ein Internetanschluss mit bis zu 250 Mbit/s ist möglich.
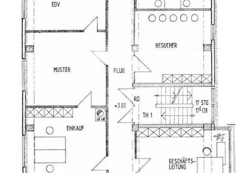
Das Bürogebäude ist im Erdgeschoss über einen repräsentativen Vorraum mit Empfang mit Natursteinboden begehbar. Hier befinden sich drei Großraumbüros mit Vinylboden, ein Aufenthaltsraum mit Laminat und Küchenzeile sowie eine hell geflieste WC-Anlage. Der Flur ist ebenfalls mit Naturstein ausgelegt. Der Innenhof ist über eines der Großraumbüros erreichbar. Die EDV- und Telefonverkabelung verläuft in Kabelkanälen und Bodentanks. Leuchten sind vorhanden. Es besteht Zugang zur Halle 1 und Halle 2.
Das Obergeschoss ist aufgrund der vielen Fenster sehr hell und freundlich. Die Büroräume sind überwiegend mit Laminat und Vinylboden, der Flur mit Naturstein, ausgelegt. Die EDV- und Telefonverkabelung verläuft in Kabelkanälen und Bodentanks. In den abgehängten Decken sind Leuchten integriert. Vom Sekretariat aus ist sowohl das Chefbüro als auch die Küche erreichbar. Die WC-Anlage ist hell gefliest.
Im Keller befinden sich die Umkleiden, Duschen, Lagerräume und die Heizung.
Die Halle 1 mit Fußbodenheizung hat eine Höhe von ca. 7,50 m und ist mit Betonboden. Die Belichtung erfolgt über Lichtbänder sowie zwei Reihen Dachflächenfenster. Ein Anlieferungsbereich mit einer Höhe von ca. 5 m und einem Rolltor ist abgetrennt.
Die Halle 2 mit Fußbodenheizung hat eine Höhe von ca. 5 m und ist mit Betonboden. Die Belichtung erfolgt über Lichtbänder sowie mehrere Oberlichten. Mehrere Rolltore mit ca. 3 m Breite und ca. 3,70 m Höhe mit vorgelagertem Vordach sind vorhanden.
Die Halle 3 mit Fußbodenheizung hat eine Höhe von ca. 7,50 m und ist mit Betonboden. Die Belichtung erfolgt über Lichtbänder und einer umlaufenden Fensterfront. Ein Meisterbüro mit angrenzenden WCs sind abgetrennt. Die EDV- und Telefonverkabelung verläuft in Brüstungskanälen. Neben dem Meisterbüro befindet sich ein Rolltor mit ca. 3 m Breite und ca. 3,70 m Höhe. In der Halle sind noch zwei weitere gleichgroße Rolltore verbaut.
Im Außenbereich sind Stellplätze vorhanden.
Eine Teilanmietung ist möglich.
Ausstattung
| Boden | Estrich |
| Keller |
Lage: Weiden
Mietpreis: EUR 20.000,-
Nebenkosten: auf Anfrage
Fläche: ca. 3.993 m²
Grundstück: ca. 8.600 m²
Baujahr: 1991
Kaution: EUR 40.000,-
Geschoss(e): E+1
Bezug: sofort
teilbar ab: nein
Erschließung: erschlossen
Stellplatzpreis: EUR 0,-
Lastenaufzug: nein
Kranbahn: nein
Fußweg zum RVV: 2 min.
Fahrtzeit Bahnhof: 10 min.
Fahrtzeit Autobahn: 5 min.
Fahrtzeit Flughafen: 120 min.
Objekttyp: Industriehalle
Zustand: renoviert
Ausstattung: normal
Bodenbelag: Beton
Heizung: Gas-Heizung
Energieträger: Gas
Starkstrom: ja
Keller: ja
Mietpreis: EUR 20.000,-
Nebenkosten: auf Anfrage
Fläche: ca. 3.993 m²
Grundstück: ca. 8.600 m²
Baujahr: 1991
Kaution: EUR 40.000,-
Geschoss(e): E+1
Bezug: sofort
teilbar ab: nein
Erschließung: erschlossen
Stellplatzpreis: EUR 0,-
Lastenaufzug: nein
Kranbahn: nein
Fußweg zum RVV: 2 min.
Fahrtzeit Bahnhof: 10 min.
Fahrtzeit Autobahn: 5 min.
Fahrtzeit Flughafen: 120 min.
Objekttyp: Industriehalle
Zustand: renoviert
Ausstattung: normal
Bodenbelag: Beton
Heizung: Gas-Heizung
Energieträger: Gas
Starkstrom: ja
Keller: ja
Sonstige Informationen
Wir befinden uns im Betriebsurlaub. Ab dem 07.01.2026 sind wir wieder wie gewohnt für Sie erreichbar. Um eine schnelle Bearbeitung zu gewähren benötigen wir Ihre Telefonnummer sowie Ihre komplette Adresse.
Anbieter
TRUMMER Immobilien GmbH & Co. KG
Nußbergerstr. 6
93059 Regensburg
Kontakt
| Telefon | 0941/447633 |
| Fax | 0941/41793 |
| Website | www.trummer.de |
