Großzügige Bürofläche in gut vernetzter Lage der Wismarer Altstadt.
2.200 €
Kaltmiete
2.800 €
Warmmiete
immobilien.de Nr.: 8896798
Objektnummer: 498
Preise & Kosten
| Kaltmiete | 2.200 € |
| Warmmiete | 2.800 € |
| Nebenkosten | 300 € |
| Heizkosten | 300 € |
Größe & Zustand
| Gesamtfläche | 210,75 m² |
| Bürofläche | 210,75 m² |
| Baujahr | 1996 |
| Verfügbar ab | keine Angabe |
| Zustand | Gepflegt |
Energie
| Energieausweistyp | Verbrauch |
| Gültig bis | 2028-09-16 |
| Baujahr (laut Energieausweis) | 1996 |
| Energieeffizienzklasse | E |
| Energieverbrauchkennwert | 70.20 kWh/(m²*a) |
| Wesentlicher Energieträger | Gas |
Objektbeschreibung
Im Jahr 1995 wurde der gepflegte Wohn- und Geschäftskomplex "Alte Sektkellerei" in solider Bauweise errichtet. Das Objekt wird laufend instandgehalten und präsentiert sich in einem ansprechenden Zustand. Im Gebäudekomplex finden sich u.a. Büros, Mietwohnungen und ein bekanntes Fitnessstudio.
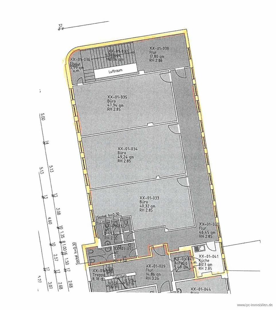
Im 1 OG ist die zur Vermietung stehende Büro / Praxisfläche belegen. Die Gesamtfläche von ca. 210,75 m² verteilt sich auf Büroräume, Flur, Küche und WC Bereiche. Die Fläche ist ab Sommer 2025 frei.
Wir freuen uns auf Ihre Geschäftsidee und stehen gerne mit weiteren Auskünften und eine unverbindliche Innenbesichtigung zur Verfügung.
Im 1 OG ist die zur Vermietung stehende Büro / Praxisfläche belegen. Die Gesamtfläche von ca. 210,75 m² verteilt sich auf Büroräume, Flur, Küche und WC Bereiche. Die Fläche ist ab Sommer 2025 frei.
Wir freuen uns auf Ihre Geschäftsidee und stehen gerne mit weiteren Auskünften und eine unverbindliche Innenbesichtigung zur Verfügung.
Ausstattung
| Inserat befindet sich im Stockwerk | 1 |
+ ca. 210,75 m²
+ Freundlicher Grundriss
+ Interessante Mieterstruktur im Haus
+ Zentralheizung
Pflichtangaben gem. EnEV
Energieausweistyp : Verbrauchsausweis
Hauptenergieträger : Erdgas
Baujahr gem. Energieausweis : 1996
Energieverbrauch Wärme: 70,2 kWh/(m2*a)
Energieverbrauch Strom : 84,3 kWh/(m²*a
Energieeffizienzklasse : B
Warmwasser enthalten : nein
Energieausweis gültig bis : 16.09.2028
+ Freundlicher Grundriss
+ Interessante Mieterstruktur im Haus
+ Zentralheizung
Pflichtangaben gem. EnEV
Energieausweistyp : Verbrauchsausweis
Hauptenergieträger : Erdgas
Baujahr gem. Energieausweis : 1996
Energieverbrauch Wärme: 70,2 kWh/(m2*a)
Energieverbrauch Strom : 84,3 kWh/(m²*a
Energieeffizienzklasse : B
Warmwasser enthalten : nein
Energieausweis gültig bis : 16.09.2028
Lage des Objektes
Wismar ist eine Hansestadt an der Ostsee zwischen den Hansestädten Lübeck und Rostock gelegen. Wismar hat ca. 46.000 Einwohner und eine Stadtgebietsfläche von ca. 41,6 km². Die zur Vermietung stehende Fläche liegt in der zum Weltkulturerbe zählenden Altstadt.
Die Lage zeichnet sich durch eine sehr gute Infrastruktur aus. Einkaufsmöglichkeiten, Schulen, Restaurants und Ärzte finden sich im fußläufigen Bereich. Auch der Wismarer Hafen ist fußläufig erreichbar, bis zum Marktplatz sind es wenige Fußminuten.
Rundum eine Lage die kaum Wünsche offen lässt.
Die Lage zeichnet sich durch eine sehr gute Infrastruktur aus. Einkaufsmöglichkeiten, Schulen, Restaurants und Ärzte finden sich im fußläufigen Bereich. Auch der Wismarer Hafen ist fußläufig erreichbar, bis zum Marktplatz sind es wenige Fußminuten.
Rundum eine Lage die kaum Wünsche offen lässt.
