Erstbezug - Büro/Praxis in kleinem Villenensemble in exklusiver Lage in Dresden
2
Zimmer
immobilien.de Nr.: 8084797
Objektnummer: 263/E7/Eh1
Preise & Kosten
| Miete für das Objekt | Auf Anfrage |
| Nebenkosten | 200 € |
| Mietpreis pro m² | 11,5 € |
| Maklerprovision | provisionsfrei |
Größe & Zustand
| Bürofläche | 106,58 m² |
| Bürofläche | 106,58 m² |
| Fläche teilbar ab | 106,58 m² |
| Zimmer | 2 |
| Verfügbar ab | 01.06.22 |
Objektbeschreibung
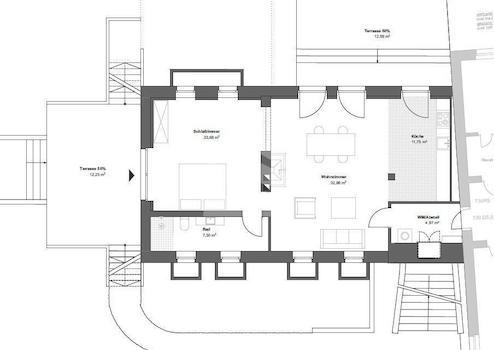
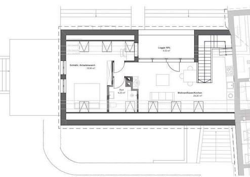
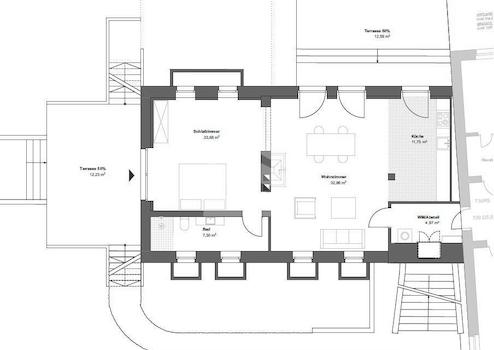
Das denkmalgeschützte Wohn- und Büroensemble in der Krügerstraße besteht aus 3 Häusern die separat erschlossen sind. Aktuell wird das Haus C (Südbau) liebevoll saniert. Aus den großen Fenstern hat man einen wundervollen Blick in den grünen Garten mit Brunnen in welchem man sich wundervoll erholen kann. Die Flächen können individuell nach dem Raumprofil des Mieters ausgebaut und ausgestattet werden. Insgesamt entstehen 255 m² Flächen auf 3 Geschossen:
Gartengeschoss mit 106 m² mit separatem Zugang und Terrassen
Erdgeschoss mit 86 m² zzgl. Terrasse
Dachgeschoss mit 76,52 m² mit Loggia
zusätzlich Hobbyraum/Archiv/Garage im Haus B ca. 70 m² anmietbar
Die Flächen sind einzeln oder insgesamt anmietbar. Die Gartennutzung kann individuell vereinbart werden. Stellplätze für Besucher und Kunden befinden sich direkt vor den Haus. Bitte informieren Sie uns über Ihren gewünschten Flächenbedarf. Der Mietpreis richtet sich nach der Ausstattung und liegt ca. 11,50 EUR/m² - 17,50 EUR/m².
Gartengeschoss mit 106 m² mit separatem Zugang und Terrassen
Erdgeschoss mit 86 m² zzgl. Terrasse
Dachgeschoss mit 76,52 m² mit Loggia
zusätzlich Hobbyraum/Archiv/Garage im Haus B ca. 70 m² anmietbar
Die Flächen sind einzeln oder insgesamt anmietbar. Die Gartennutzung kann individuell vereinbart werden. Stellplätze für Besucher und Kunden befinden sich direkt vor den Haus. Bitte informieren Sie uns über Ihren gewünschten Flächenbedarf. Der Mietpreis richtet sich nach der Ausstattung und liegt ca. 11,50 EUR/m² - 17,50 EUR/m².
Sonstige Informationen
Anmietung leicht gemacht?
Bitte sprechen Sie uns an, gern stellen wir Ihnen eine Auswahl geeigneter Flächenangebote zusammen. Für Fragen, ein persönliches Gespräch oder auch eine persönliche Terminvereinbarung stehen wir Ihnen gern telefonisch unter 0341 | 5643000 zur Verfügung.
Bitte sprechen Sie uns an, gern stellen wir Ihnen eine Auswahl geeigneter Flächenangebote zusammen. Für Fragen, ein persönliches Gespräch oder auch eine persönliche Terminvereinbarung stehen wir Ihnen gern telefonisch unter 0341 | 5643000 zur Verfügung.
Lage des Objektes
Das Anwesen befindet sich im reinen Villenviertel Loschwitz in Dresden. Das ehemalige Winzer- und Fischerdorf schmiegt sich an die grünen Hänge östlich der Elbe und erstreckt sich von den drei Elbschlössern aus stromaufwärts über den Körnernplatz bis hin zum Wachwitzer Fernsehturm. Im Osten wird Loschwitz/Wachwitz von der Dresdner Heide, einem ausgedehnten Waldgebiet, begrenzt. Auf dem liebevoll angelegten Eckgrundstück mit ca. 1.575 m² Fläche und einem schönen Bewuchs stehen Stellplätze zur Anmietung zur Verfügung. Vor dem Grundstück können Gäste und Besucher öffentliche Stellplätze nutzen. Eine Buslinie verkehrt direkt vor dem Gebäude.
