Großzügiges Haus mit Nebengebäuden nahe Leipzig | Wohnen & Arbeiten unter einem Dach!

04683 Naunhof, Sachsen
549.000 € Kaufpreis
Wohnfläche
284,4 m²
Zimmer
8
Balkon
Garten
Stellplatz

Kaufpreis

Kaufpreis 549.000 €
Maklerprovision3,57% inkl. MwSt.

Wohnfläche, Grundstück & Bausubstanz

Wohnfläche284,4 m²
Grundstücksfläche714 m²
Zimmer8
Etagen3
Baujahr1920
Letzte Modernisierung2023
Verfügbar ab Keine Angabe

Beschreibung der Immobilie

Dieses besondere Haus vereint komfortables Wohnen mit vielfältigen Nutzungs- und Entwicklungsmöglichkeiten. Ideal für Familien, Selbstständige, Mehrgenerationenkonzepte oder alle, die Wohnen, Arbeiten, Werkstatt, Hobby oder Projekte auf einem Grundstück verbinden möchten.

Das Wohnhaus ist sofort nutzbar und wurde in den vergangenen Jahren umfassend saniert. Die solide Bausubstanz sowie die flexible Raumaufteilung ermöglichen individuelle Gestaltung, Modernisierung oder auch eine spätere Teilung – je nach persönlichem Lebenskonzept.

Das Anwesen eignet sich ideal für die Kombination aus Wohnen und Arbeiten – beispielsweise für Selbstständige, Praxis- oder Büronutzung, Handwerksbetriebe oder Mehrgenerationenkonzepte mit viel Platzbedarf.
Die Nebengebäude bieten vielseitige Nutzungsmöglichkeiten, etwa als Werkstatt, Lagerflächen, für Tierhaltung oder für betriebliche Zwecke, und unterstreichen den besonderen Charakter dieser Immobilie. Die klare Trennung von Wohn- und Nutzbereichen schafft ideale Voraussetzungen für Wohnen und Arbeiten auf einem Grundstück.

Mehrere Brunnen auf dem Grundstück ermöglichen zudem eine unabhängige Wasserversorgung für Garten- und Außenbereiche.

Die Lage im Leipziger Umland verbindet naturnahes Wohnen mit guter Anbindung an Leipzig sowie einer soliden Infrastruktur in der Umgebung.

Ausstattungsmerkmale

Bad3
Bad (Ausstattung)Dusche, Wanne, Fenster
BodenFliesen, Laminat
Balkone1
GartenJa
Garage/Stellplätze3
* Wohnen & Gewerbe kombinierbar (Lage im Mischgebiet)
* Bereits etablierte Tierhaltung (Pferde, Ponys & Schafe)
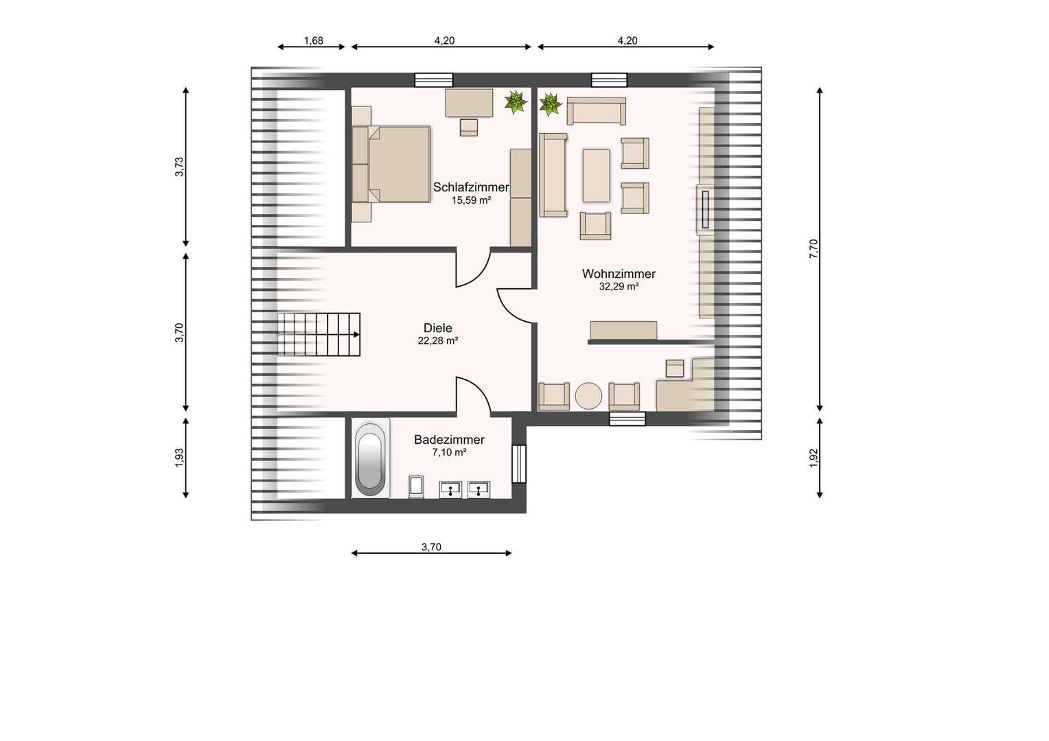
* Ca. 284,40 m² Wohnfläche auf 3 Etagen mit 8 Zimmern & 3 Bädern
* Werkstatt- und Lagerräume vorhanden
* Separate Einliegerwohnung mit eigenem Zugang
* Elektrik, Wasserleitungen, Brunnenanlage und Heizung neu errichtet
* Viel Platz für Handwerk, Projekte, Familie & Hobby
* Sehr gute Anbindung Richtung Leipzig
* Leben im Naherholungsgebiet mit zahlreichen Seen und Naturflächen

Energie

Heizungsart Zentralheizung
Wesentlicher EnergieträgerGas
Energieträger/Befeuerung Gas

Karte wird geladen...
04683 Naunhof – Sachsen

Lage & Infrastruktur

Albrechtshain, ein ruhiger Ortsteil von Naunhof, ist bekannt für seine Seenlandschaft, Naturpfade und seine Nähe zu Leipzig.

- Nur wenige Minuten bis Albrechtshainer See, Grillensee und Moritzsee

- Ideale Reit- und Wanderwege direkt ab Haustür

- Kita vor Ort, Schulen & Gymnasium in Naunhof

- Perfekte Anbindung über A14 und A38

- Leipzig, Flughafen & umliegende Städte schnell erreichbar

Ein Standort, der Ruhe schenkt – ohne die Welt außen vor zu lassen.

Sonstige Informationen

Hinweis zur Richtigkeit und Vollständigkeit der Angaben:

Der Makler weist darauf hin, dass die von ihm weitergegebenen Objektinformationen vom Verkäufer bzw. von einem vom Verkäufer beauftragten Dritten stammen und von ihm, dem Makler, auf ihre Richtigkeit nicht überprüft worden sind. Es ist Sache des Kunden, diese Angaben auf ihre Richtigkeit hin zu überprüfen. Der Makler, der diese Informationen nur weitergibt, übernimmt für die Richtigkeit keinerlei Haftung.
Ansprechpartner/in: Shenja Schorina
01520-2505830
Willuhn Immobilien e. K.
Scherlstraße 12, 04103 Leipzig
01520-2505830

Weitere Angebote in Belgershain