3-Zimmer-Wohnung (W3) zentral in Ahlen ab 01.08.2026

59227 Ahlen, Nordrhein-Westfalen
Frei ab: 01.08.2026
900 € Kaltmiete
11,25 € Preis/m² ca.
Wohnfläche
80 m²
Zimmer
3
Etage
1
Balkon
Terrasse
Barrierefrei

Mietpreis & Nebenkosten

Kaltmiete (netto)900 €
Nebenkosten 100 €
Heizkosten150 €
Kaution 2.700 €

Wohnfläche, Grundstück & Bausubstanz

Wohnfläche80 m²
Zimmer3
Etagen1
Stockwerk1
Baujahr2026
Verfügbar ab 01.08.2026
ZustandTeil Vollsaniert

Beschreibung der Immobilie

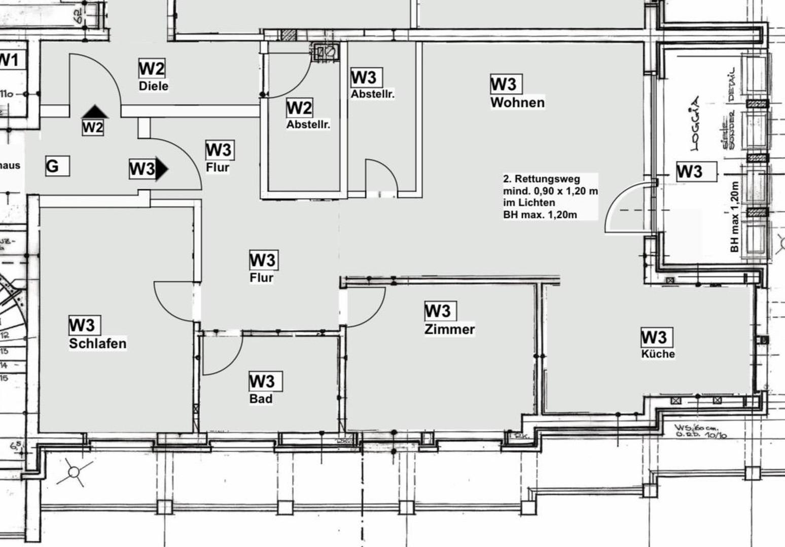
Erstbezug nach Kernsanierung – Moderne 3-Zimmer-Wohnung (W3) zentral in Ahlen mit offenem Wohnbereich & Balkon – ca. 80 m² – ab 01.08.26.

Zur Vermietung steht eine frisch kernsanierte und hochwertig ausgestattete 3-Zimmer-Wohnung mit ca. 80 m² Wohnfläche. (W3) Es handelt sich um einen Erstbezug, ideal für Singles, Paare, kleine Familien, die modernen Wohnkomfort schätzen.

Ausstattung & Highlights:
• Erstbezug nach vollständiger Kernsanierung
• Fußbodenheizung in der gesamten Wohnung
• elektrische Rolladen
• 2 Schlafzimmer
• heller, offener Wohn- und Küchenbereich (ineinander übergehend)
• modernes Badezimmer mit Dusche
• kleiner Hauswirtschaftsraum
• überdachter Balkon/ Loggia
• Tiefgaragenstellplatz in der Nähe (separat zu mieten)

Das Haus ist zudem mit einem Treppenlift ausgestattet, dies bietet zusätzlichen Komfort für ältere Personen oder Menschen mit Handicap.

Das Objekt befindet sich zentral gelegen in direkter Nähe zum Rathaus. Der Stadtpark mit Spielplatz ist ebenfalls in unmittelbarer Nähe.
Die Fußgängerzone und der Marktplatz ist zu Fuß innerhalb von 2 Minuten zu erreichen.

Mietkonditionen:
• Kaltmiete: 900 €
• Hausgeld/Nebenkosten: 250 €
• Verfügbar ab: 01.08.26

Bei Interesse freuen wir uns über eine Nachricht mit einer kurzen Vorstellung Ihrer Person(en).

Besichtigungstermine können nach Absprache vereinbart werden.

Objektzustand: Erstbezug nach Sanierung

Ausstattungsmerkmale

Bad1
Balkone1
Terrassen0
BarrierefreiJa
Balkon, Barrierefrei

Bemerkungen:
Erstbezug nach Sanierung

Energie

Heizungsart Fußbodenheizung
Energieträger/Befeuerung Gas

Karte wird geladen...
59227 Ahlen – Nordrhein-Westfalen

Lage & Infrastruktur

Ahlen Innenstadt
Infrastruktur (im Umkreis von 5 km):
Apotheke, Lebensmittel-Discount, Allgemeinmediziner, Kindergarten, Grundschule, Hauptschule, Realschule, Gymnasium, Gesamtschule, Öffentliche Verkehrsmittel

Sonstige Informationen

Heizungsart: Fußbodenheizung
Energieträger: Gas
Energieausweis nicht vorhanden


Makleranfragen nicht erwünscht. Nach § 7 UWG sind unaufgeforderte Kontaktaufnahmen durch Makler ohne ausdrückliche Einwilligung des Empfängers verboten!

ohne-makler (OM) ist weder Anbieter noch Vermittler der Immobilie. OM betreibt eine Plattform für Immobilieneigentümer, die unter anderem die gleichzeitige Veröffentlichung einzelner Inserate auf mehreren Immobilienportalen ermöglicht. Die Inhalte dieser Inserate werden ausschließlich von Dritten verantwortet. Für die Richtigkeit, Vollständigkeit oder Rechtmäßigkeit der Angaben übernimmt OM keine Haftung. Hinweise auf mögliche Rechtsverstöße können jederzeit gemeldet werden und werden nach Prüfung umgehend bearbeitet.
Ansprechpartner/in: Privat von Alexander Brockmann
OM PropTech GmbH
Humboldtstraße 25a, 21509 Glinde

Weitere Angebote in Ahlen