3 Zimmer Wohnung in Bothfeld

30659 Hannover, Niedersachsen
Frei ab: nach Absprache
770 € Kaltmiete
10,27 € Preis/m² ca.
Wohnfläche
75 m²
Zimmer
3
Etage
1
Einbauküche
Balkon
Terrasse
Garten
Keller
Stellplatz

Mietpreis & Nebenkosten

Kaltmiete (netto)770 €
Nebenkosten 145 €
Heizkosten134 €
Kaution 2.500 €
Stellplatz Garage Miete110 €

Wohnfläche, Grundstück & Bausubstanz

Wohnfläche75 m²
Zimmer3
Etagen2
Stockwerk1
Baujahr1967
Verfügbar ab nach Absprache
ZustandTeil Vollrenoviert

Beschreibung der Immobilie

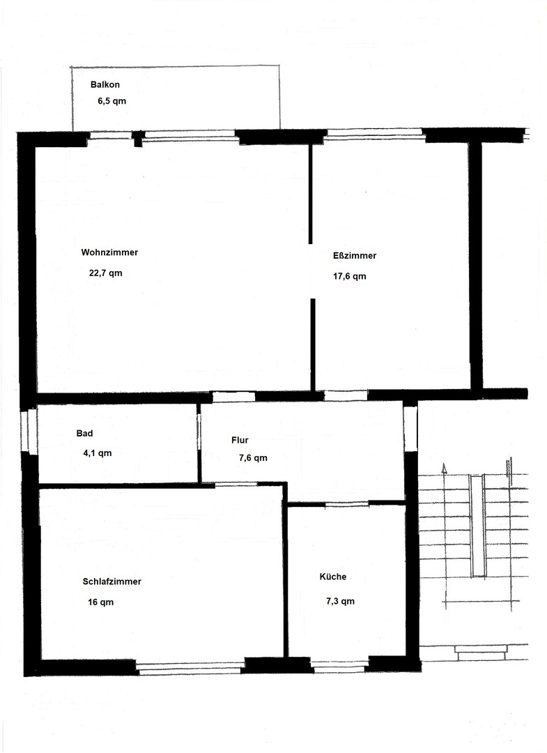
Diese renovierte 2-3-Zimmer-Wohnung mit ca. 75 m² Wohnfläche befindet sich im 1. Obergeschoss eines Mehrfamilienhauses in Hannover-Bothfeld.
Zur Wohnung gehören eine neue Einbauküche, eine Garage und ein großer Kellerraum, welcher zusätzlichen Stauraum bietet. Ein Balkon in Südwestlage lädt zum Entspannen ein. Eine weitere Annehmlichkeit ist die die gemeinsame Nutzung des Gartens.
Das Wohnzimmer ist zurzeit mit dem Nebenzimmer mit einem offenen Durchgang verbunden. Dieser kann bei Bedarf geschlossen werden, sodass drei geschlossene Räume zur Verfügung stehen. Für Fahrräder steht ein gemeinschaftlich genutzter Fahrradkeller zur Verfügung. Eine Gemeinschaftswaschküche kann ebenfalls genutzt werden. Die Garage befindet sich neben dem Haus. Im Flur und Schlafzimmer bieten Einbauschränke viel Stauraum.

Ausstattungsmerkmale

KücheEinbauküche
Bad1
BodenFliesen, Laminat, Kunststoff
Balkone1
Terrassen0
GartenJa
KellerJa
Garage/Stellplätze1
Balkon, Garten, Keller, Einbauküche, Laminat, Fliesen

Bemerkungen:
Die Wohnung wird in renoviertem Zustand übergeben.

Energie

D
Energieeffizienzklasse D · 103 kWh/(m²*a)
EnergieausweistypVerbrauch
EnergieeffizienzklasseD
Energieverbrauchkennwert103 kWh/(m²*a)
Heizungsart Zentralheizung
Energieträger/Befeuerung Gas

Karte wird geladen...
30659 Hannover – Niedersachsen

Lage & Infrastruktur

Hannover-Bothfeld ist ein etablierter Stadtteil mit guter Infrastruktur. Einkaufsmöglichkeiten für den täglichen Bedarf sowie Ärzte und Schulen sind gut erreichbar. Die Anbindung an den öffentlichen Nahverkehr ist solide, was schnelle Wege in die Innenstadt und andere Stadtteile ermöglicht. Zahlreiche Grünflächen und Parks in der Umgebung bieten Raum für Erholung und Freizeitaktivitäten. Hier lebt man ruhig, naturnah und dennoch hervorragend angebunden. Ein idealer Ort für alle, die naturnah leben und gleichzeitig die Vorteile der Stadt genießen möchten.

Sonstige Informationen

Heizungsart: Zentralheizung
Energieträger: Gas

Die Wohnung eignet sich optimal für Mieter, die Wert auf eine ruhige Lage legen. Das Landschaftsschutzgebiet "Laher Wiesen" ist nah erreichbar.

Makleranfragen nicht erwünscht. Nach § 7 UWG sind unaufgeforderte Kontaktaufnahmen durch Makler ohne ausdrückliche Einwilligung des Empfängers verboten!

ohne-makler (OM) ist weder Anbieter noch Vermittler der Immobilie. OM betreibt eine Plattform für Immobilieneigentümer, die unter anderem die gleichzeitige Veröffentlichung einzelner Inserate auf mehreren Immobilienportalen ermöglicht. Die Inhalte dieser Inserate werden ausschließlich von Dritten verantwortet. Für die Richtigkeit, Vollständigkeit oder Rechtmäßigkeit der Angaben übernimmt OM keine Haftung. Hinweise auf mögliche Rechtsverstöße können jederzeit gemeldet werden und werden nach Prüfung umgehend bearbeitet.
Ansprechpartner/in: Privat von Herr Helde
OM PropTech GmbH
Humboldtstraße 25a, 21509 Glinde

Weitere Angebote in Hannover