++ Begehrte Lage - an Wiesen und Weiden! Modernisierter Bungalow mit Garage in Vreschen-Bokel! ++

26689 Apen / Vreschen-Bokel
Frei ab: nach Vereinbarung
329.000 € Kaufpreis
Wohnfläche
120 m²
Zimmer
5
Terrasse
Stellplatz

Kaufpreis

Kaufpreis 329.000 €
Kaufpreis pro m²2741,67 €
MaklerprovisionDie Käuferprovision beträgt 3,57 % inkl. 19 % MwSt. vom beurkundeten Kaufpreis.
Stellplatz Garage Miete0 €

Wohnfläche, Grundstück & Bausubstanz

Wohnfläche120 m²
Nutzfläche69 m²
Grundstücksfläche800 m²
Zimmer5
Baujahr1968
Verfügbar ab nach Vereinbarung
ZustandGepflegt

Beschreibung der Immobilie

Dieser Walmdachbungalow befindet sich in begehrter Sackgassenlage von Vreschen-Bokel bei Augustfehn und bietet einen unverbaubaren Blick auf Wiesen und Felder - eine der begehrtesten Lagen!

Gliederung der Räumlichkeiten:

a) Kellergeschoss
Teilkeller bestehend aus einem Vorratsraum und Heizungsraum.

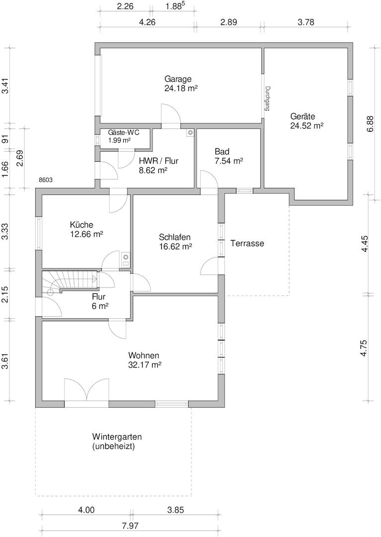
b) Erdgeschoss
Eingangsdiele mit Garderobe, großzügiges Wohnzimmer, Küche mit Essbereich, Schlafzimmer mit Zugang zum Badezimmer, Hauswirtschaftsraum, Gäste-WC und Flur.

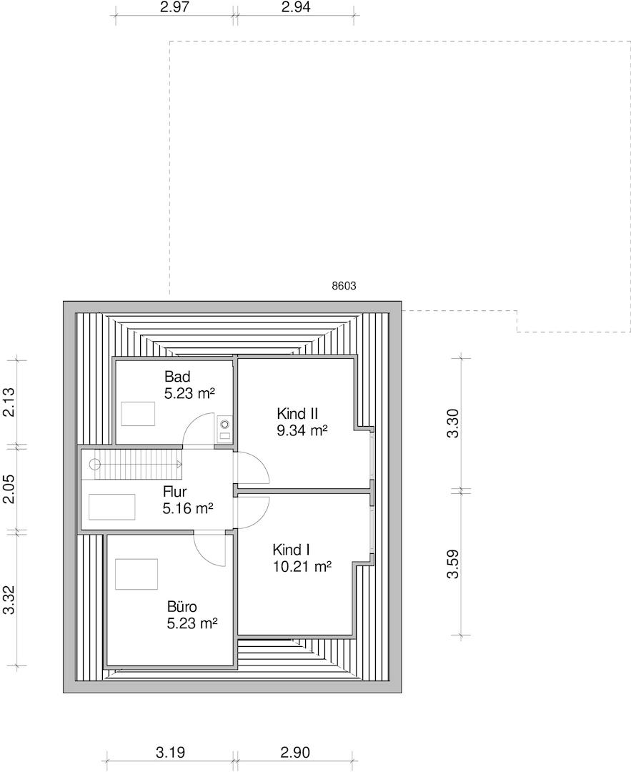
b) Dachgeschoss
Zwei Kinderzimmer, Büro, Badezimmer und Flur.

Die Wohnfläche beträgt ca. 120 m².
Die Nutzfläche beträgt ca. 69 m².

Weiter verfügt das Immobilienangebot über einen Garagenanbau in Flachdachausführung mit einem großzügigen Hobbyraum, der vielfältige Nutzungsmöglichkeiten bietet - etwa als Werkstattbereich oder Raum zur kreativen Entfaltung.

Der sehr gepflegte Walmdach-Bungalow wurde im Jahre 1968 in konventioneller Massivbauweise mit Teilkeller, Erdgeschoss und ausgebautem Dachgeschoss errichtet.

In den Jahre 2015 und 2016 erfuhr das Haus laut Eigentümer eine grundlegende Modernisierung:

- Neueindeckung des Walmdaches mit Dämmung und neuen Regenrinnen
- Einbau einer neuen Erdgas-Brennwert-Therme
- Einbau neuer Flachheizkörper (überwiegend)
- Einbau eines neuen Badezimmers im Erdgeschoss
- Modernisierung des Gäste-WC im Erdgeschoss
- Modernisierung des Badezimmers im Dachgeschoss
- Einbau neuer Kunststofffenster mit Isolierverglasung (überwiegend)
(im Wohnzimmer und der Küche stammen die Fenster aus 2013)
- die Hauseingangstür und die Nebeneingangstür stammen aus dem Jahre 2009
- Einbau eines neuen Garagen-Sektionaltores
- Einbau neuer Dachflächenfenster im Zuge der Neueindeckung des Daches
- Modernisierung der Elektro-Installation (überwiegend)
- Einbau neuer Innentüren
- Einbau einer neuen Einbauküche
- komplette Maler- und Bodenbelagsarbeiten

Das Verkaufsobjekt befindet sich in einem gepflegten Gesamtzustand.

Das Haus ist auf unbestimmte Zeit vermietet.

Der Energieausweis ist in Vorbereitung.

Ausstattungsmerkmale

Bad2
Bad (Ausstattung)Dusche
BodenFliesen
Terrassen1
Garage/Stellplätze1

Energie

Heizungsart Zentralheizung

Karte wird geladen...
26689 Apen / Vreschen-Bokel

Lage & Infrastruktur

Der Bahnhof und sämtliche Versorgungseinrichtungen (Aldi, Edeka, Lidl usw.) befinden sich in Umkreis von nur ca. 1.000 m und sind allesamt bequem zu Fuß zu erreichen!

Die Kreisstadt Westerstede ist ca. 13 km entfernt. Hier befinden sich u.a. die Ammerland-Klinik, Fachärzte, sämtliche Kreisbehörden und das Gymnasium als weiterführende Schule. Augustfehn verfügt über sehr gute Verkehrsanbindungen.

Die BAB 28 (Anschlussstelle Nr. 4) ist nur ca. 6 km entfernt.

Weiter verfügt Augustfehn über einen Bahnhof an der Bahnstrecke Oldenburg - Leer. Von hier fahren Züge im stündlichen Wechsel in beide Richtungen. Der bekannte Kurort Bad Zwischenahn ist in ca. 15 Auto- bzw. Bahnminuten zu erreichen, die Oberzentren Oldenburg und Bremen in ca. ½ bzw. 1 Auto- bzw. Bahnstunde.

Sonstige Informationen

Zu diesem Objekt liegt ein ausführliches Exposé mit weiteren Detailinformationen vor, das Sie gerne bei uns anfordern können.

Telefonische Erreichbarkeit:
Montag - Freitag: 8.00 Uhr - 12.30 Uhr und 14.00 Uhr bis 17.30 Uhr
Samstag: 9.00 Uhr -12.00 Uhr


Sie möchten Ihre Immobilie verkaufen.....
..... und suchen den passenden Käufer?

Unabhängig davon, ob Sie aktuell oder erst in unbestimmter Zeit Ihre Immobilie verkaufen möchten, ist eine fundierte Beratung bares Geld wert. Wir wissen, worauf es beim professionellen Verkauf Ihrer Immobilie ankommt.

Über 60 Jahre Marktpräsenz und tausende Vermittlungen sprechen für sich.

Für ein kostenfreies und informatives Beratungsgespräch stehen wir Ihnen jederzeit gerne zur Verfügung.
Ansprechpartner/in: Herr Hermann Lott
0049448994080
Hermann Lott, Auktionator und Grundstücksmakler KG
Mühlenstrasse 15, 26689 Apen - Augustfehn
0049448994080

Weitere Angebote in Apen