+++ Beste Zentrumslage - geräumiges ZFH mit viel Platz für Familie und Hobbies! +++

26689 Apen / Augustfehn
Frei ab: nach Vereinbarung
387.000 € Kaufpreis
Wohnfläche
214,08 m²
Zimmer
7
Einbauküche
Balkon
Terrasse
Stellplatz

Kaufpreis

Kaufpreis 387.000 €
Kaufpreis pro m²1807,74 €
MaklerprovisionDie Käuferprovision beträgt 3,57 % inkl. 19 % MwSt. vom beurkundeten Kaufpreis.
Stellplatz Garage Kaufpreis0 €

Wohnfläche, Grundstück & Bausubstanz

Wohnfläche214,08 m²
Nutzfläche72,33 m²
Grundstücksfläche1.155 m²
Zimmer7
Baujahr1979
Letzte Modernisierung- 2022 Einbau von zwei neuen Heizungen (Brennwert-Thermen) - 2022 nachträgliche Dachdämmung - 2025 Einbau neuer Kunststofffenster im Erdgeschoss
Verfügbar ab nach Vereinbarung
ZustandGepflegt

Beschreibung der Immobilie

Großzügiges und gepflegtes Zweifamilienhaus mit Doppelgarage und Terrassenüberdachung sowie Teilkeller in sehr bevorzugter Wohnlage im Ortzentrum von Augustfehn.
Der Bahnhof und die Versorgungseinrichtungen sind bequem zu Fuß zu erreichen.

Räumlichkeiten:

a) Kellergeschoss
Ein Kellerraum.

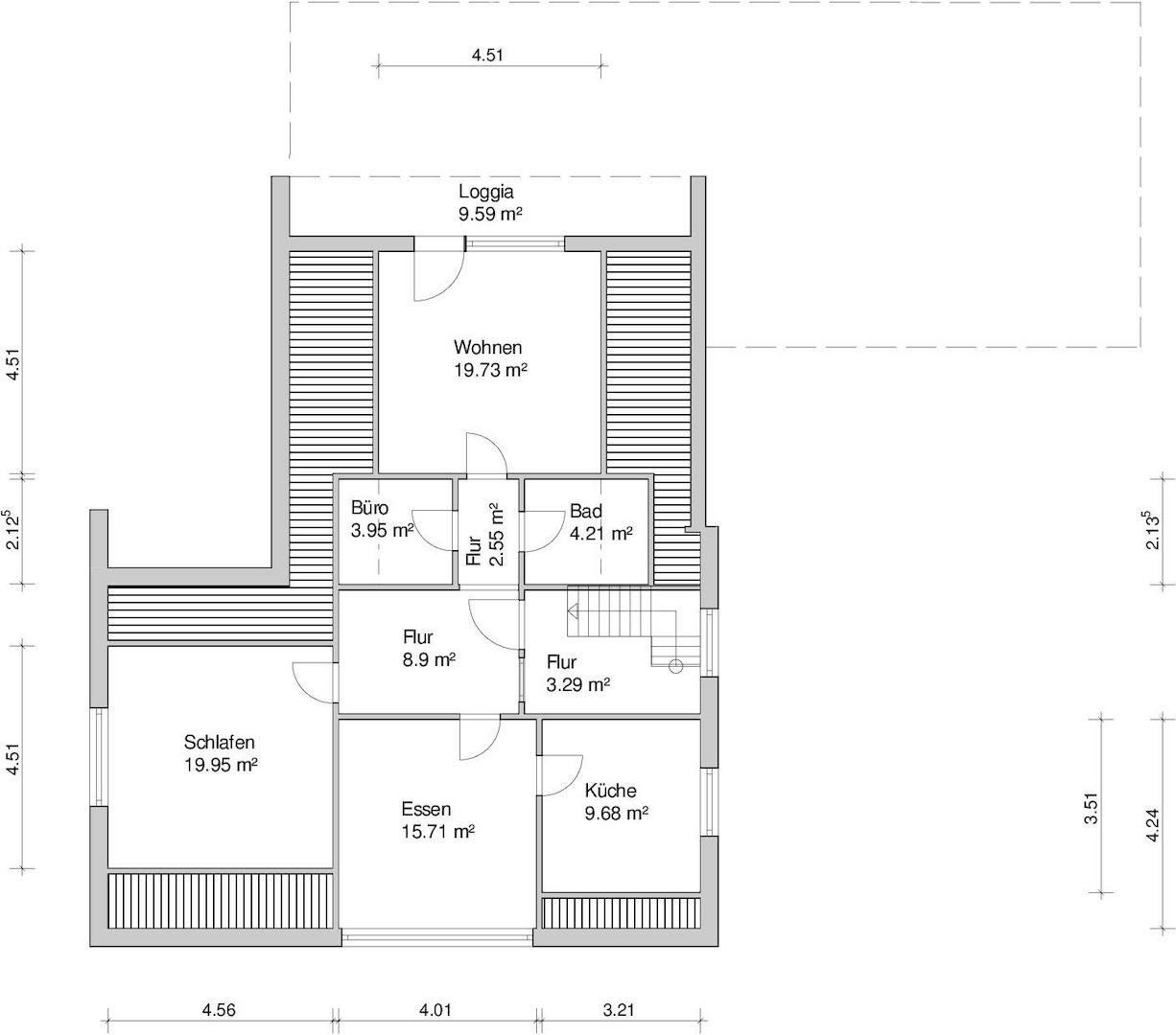
b) Erdgeschoss
Geräumiges Wohnzimmer mit Terrassenzugang, Esszimmer, Küche, Wohndiele, zwei Schlafzimmer, Flur, Badezimmer, Hauswirtschaftsraum, Gäste-WC und Abstellraum.
Die Wohnfläche beträgt ca. 127,65 m².

c) Dachgeschoss
Wohnzimmer, Esszimmer, Küche, Schlafzimmer, Duschbad, Büro und Flur.
Die Wohnfläche beträgt ca. 86,43 m².

d) Spitzboden
Der Spitzboden dient als Abstellfläche.

e) Nebengebäude (Flachanbau)
Der Anbau gliedert sich in Flur, Heizungsraum, zwei Garagen und eine sehr großzügig überdachte Terrasse.

Die Nutzfläche beträgt ca. 72,33 m².

Im Jahre 2022 wurde das Dach nachträglich gedämmt und zwei neue Heizungsanlagen (Brennwert-Thermen) installiert. Neue Kunststofffenster mit Außenrollläden wurden im Jahre 2025 im Erdgeschoss eingebaut.

Insgesamt befindet sich das Verkaufsobjekt in einem gepflegten Gesamtzustand.

Übergabe / Mietverhältnisse:
Die Erdgeschosswohnung ist seit 2011auf unbestimmte Zeit vermietet.
Die Dachgeschosswohnung ist seit 2023 auf unbestimmte Zeit vermietet.

Die Mietzahlungen erfolg(t)en pünktlich und ohne Verzug (Nachweise möglich).

Der Energieausweis ist in Vorbereitung.

Ausstattungsmerkmale

KücheEinbauküche
Bad2
Bad (Ausstattung)Dusche, Wanne, Fenster
BodenFliesen, Teppich, Laminat
Balkone1
Terrassen1
Garage/Stellplätze2

Energie

F
Energieeffizienzklasse F · 168.00 kWh/(m²*a)
EnergieausweistypBedarfsausweis
Gültig bis2036-04-07
Baujahr (laut Energieausweis)1979
EnergieeffizienzklasseF
Endenergiebedarf168.00
Heizungsart Zentralheizung, Fußbodenheizung
Wesentlicher EnergieträgerGas
Energieträger/Befeuerung Gas

Karte wird geladen...
26689 Apen / Augustfehn

Lage & Infrastruktur

Das großzügige und gepflegte Zweifamilienhaus mit Teilkeller und Garagenanbau mit großzügig überdachter Terrasse befindet sich in einer besten Wohnlagen Augustfehns - zentral im Herzen des Ortes!

Zu Fuß oder mit dem Rad, Sie können alles autofrei erledigen! Schulen, Ärzte, Sporthallen, Supermärkte und der Bahnhof befinden sich im näheren Umkreis.

Die Kreisstadt Westerstede ist ca. 12 km entfernt. Hier befinden sich u.a. die Ammerland-Klinik, Fachärzte, sämtliche Kreisbehörden und das Gymnasium als weiterführende Schule. Augustfehn verfügt über sehr gute Verkehrsanbindungen.

Die BAB 28 (Anschlussstelle Nr. 4) ist nur ca. 5 km entfernt. Weiter verfügt Augustfehn über einen Bahnhof an der Bahnstrecke Oldenburg - Leer. Von hier fahren Züge im stündlichen Wechsel in beide Richtungen. Der bekannte Kurort Bad Zwischenahn ist in ca. 15 Auto- bzw. Bahnminuten zu erreichen, die Oberzentren Oldenburg und Bremen in ca. ½ bzw. 1 Auto- bzw. Bahnstunde.

Sonstige Informationen

Zu diesem Objekt liegt ein ausführliches Exposé mit weiteren Detailinformationen vor, das Sie gerne bei uns anfordern können.

Telefonische Erreichbarkeit:
Montag - Freitag: 8.00 Uhr - 12.30 Uhr und 14.00 Uhr bis 17.30 Uhr
Samstag: 9.00 Uhr -12.00 Uhr


Sie möchten Ihre Immobilie verkaufen.....
..... und suchen den passenden Käufer?

Unabhängig davon, ob Sie aktuell oder erst in unbestimmter Zeit Ihre Immobilie verkaufen möchten, ist eine fundierte Beratung bares Geld wert. Wir wissen, worauf es beim professionellen Verkauf Ihrer Immobilie ankommt.

Über 60 Jahre Marktpräsenz und tausende Vermittlungen sprechen für sich.

Für ein kostenfreies und informatives Beratungsgespräch stehen wir Ihnen jederzeit gerne zur Verfügung.
Ansprechpartner/in: Herr Hermann Lott
0049448994080
Hermann Lott, Auktionator und Grundstücksmakler KG
Mühlenstrasse 15, 26689 Apen - Augustfehn
0049448994080

Weitere Angebote in Apen