Altengerechte Wohnung in ruhigem Wohnhaus zu vermieten.

Brackeler Hellweg 186 44309 Dortmund
Frei ab: 01.06.26
1.188 € Kaltmiete
12,04 € Preis/m² ca.
Wohnfläche
98,66 m²
Zimmer
3
Offene Küche
Fahrstuhl

Mietpreis & Nebenkosten

Kaltmiete1.188 €
Nebenkosten 379,47 €
Heizkosten enthaltenJa
Kaution 2.170 €

Wohnfläche, Grundstück & Bausubstanz

Wohnfläche98,66 m²
Zimmer3
Etagen3
Baujahr2014
Verfügbar ab 01.06.26
ZustandNeuwertig

Beschreibung der Immobilie

Diese schöne 98m² große Wohnung befindet sich in einem sehr ruhigen und gut gepflegtem Wohn / Geschäftshaus.

Die Wohnung befindet sich im 1. Obergeschoss des Gebäudes.

Das 1.OG erreichen Sie ohne Einschränkungen über den Fahrstuhl des Hauses.

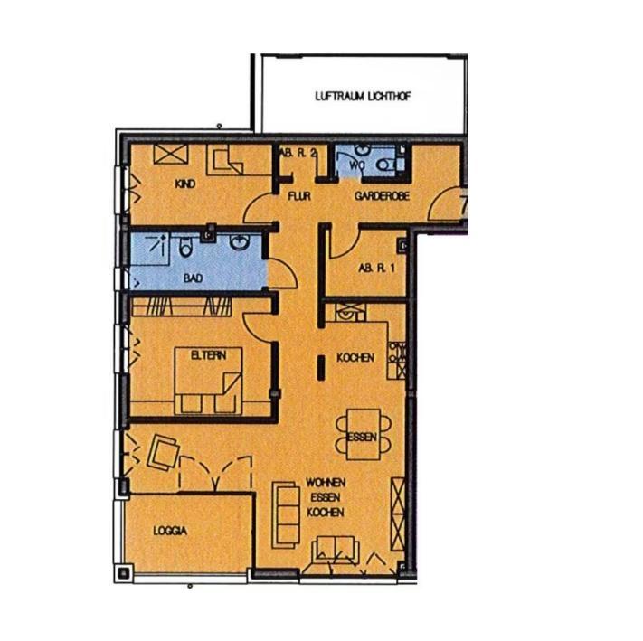
Nach dem Durchschreiten der Wohnungseingangstür finden Sie sich in einem kleinen Eingangsbereich wieder. Zu Ihrer rechten ist eine kleine Ecke mit genug Platz für eine großzügige Garderobe.

Im ersten Teil des Flures finden Sie zu Ihrer linken eine große Waschküche mit allen nötigen Anschlüssen. Zu Ihrer rechten ein Gäste-WC und einen Abstellraum.

Im weiteren Teil des Flures liegen die beiden Schlafzimmer der Wohnung und das Tageslichtbad.

Das Tageslichtbad ist in einem perfekten Zustand, komplett gefliest und mit einer Duschwanne ausgestattet.

Am Ende des Flures gelangen Sie in den Wohnbereich der Wohnung. Dieser besteht aus einer großen offenen Küche mit Kochinsel, einem angrenzendem Wohnzimmer und einer großzügigen Loggia.

Die Küche kann bei Bedarf von den jetzigen Mietern nach Absprache übernommen werden.

Es besteht die Möglichkeit einen Stellplatz für 60€ im Monat anzumieten.

Ausstattungsmerkmale

KücheOffene Küche
Bad1
Bad (Ausstattung)Wanne
BodenFliesen, Laminat
Fahrstuhl
- altengerecht
- Aufzug
- Gehobene Ausstattung des Bades
- Loggia
- Waschküche
- offen gestaltet
- Anmietung eines Stellplatzes für 60€/Monat möglich

Energie

EnergieausweistypBedarfsausweis
Gültig bis21.05.2025
Heizungsart Zentralheizung, Fußbodenheizung
Energieträger/Befeuerung Gas

Karte wird geladen...
Brackeler Hellweg 186
44309 Dortmund

Lage & Infrastruktur

Die kreisfreie Stadt Dortmund befindet sich im Bundesland Nordrhein-Westfalen und gilt als größte Stadt des Ruhrgebiets. Angrenzend sind die Städte Castrop, Waltrop, Lünen, Unna, Holzwickede, Schwerte, Herdecke, Witten und Bochum. Dortmund ist über die Autobahn A2, A40, A42, A44 und A45, sowie über die Bundesstraßen 1, 54 235 und 236 an den Fernverkehr angebunden. Auch der ÖPNV bietet mit den vielen Bahnhöfen sehr gute Anbindungen.

Die Wohnung befindet sich im Ortsteil Dortmund-Brackel.

Im näheren Umfeld befinden alle Läden des täglichen Bedarfs. Zu Fuß sind ein Lidl, Rewe, Edeka, eine Apotheke, Ärzte, Versicherungen, Anwälte oder auch eine Bäckerei ohne Probleme zu erreichen.

Sonstige Informationen

Haben wir Ihr Interesse geweckt - Ihnen gefällt das Objekt?

Zögern Sie nicht und melden Sie sich bei uns - sehr gerne stehen wir bei Fragen und Wünschen, sowie für weitere Informationen rund um das Angebot zur Verfügung.

Die in diesem Expose gemachten Angaben beruhen auf Auskünften des Eigentümers oder vorgelegten Plänen und Berechnungen. Wir übernehmen daher keine Haftung, insbesondere für Flächenangaben, Grundrisse oder Lageskizzen.

Wir freuen uns über Ihren Anruf und Ihren Besuch unserer Internetseite www.immoweb.de
Ansprechpartner/in: Herr Jean-Maurice Weingarten
0231-3981970
immoweb AG
Dortmunder Strasse 5, 44536 Lünen
0231-3981970

Weitere Angebote in Dortmund