2019 teilsaniert - Doppelhaushälfte mit Nebengelass! Fußbodenheizung | Einbauküche | Garage

04821 Brandis, Sachsen
Frei ab: Q4 2026
249.900 € Kaufpreis
Wohnfläche
95 m²
Zimmer
3
Einbauküche
Garten
Keller

Kaufpreis

Kaufpreis 249.900 €
Maklerprovision3,57 % inkl. 19 % Umsatzsteuer

Wohnfläche, Grundstück & Bausubstanz

Wohnfläche95 m²
Grundstücksfläche500 m²
Zimmer3
Etagen2
Baujahr1938
Verfügbar ab Q4 2026
ZustandTeil Saniert

Beschreibung der Immobilie

Diese liebevoll modernisierte Doppelhaushälfte aus dem Jahr 1938 verbindet den klassischen Charme eines Siedlungshauses mit dem Komfort zeitgemäßen Wohnens. Im Jahr 2019 wurde der Innenbereich umfassend saniert. Auf rund 95 Quadratmetern Wohnfläche und einem etwa 500 Quadratmeter großen Grundstück erwartet Sie ein Zuhause, das Sie direkt beziehen können und das zugleich Raum für individuelle Gestaltung im Außenbereich bietet. Der Auszug der Eigentümer ist zum Jahresende geplant, wodurch die Immobilie zeitnah zur Verfügung steht.

Über eine kleine Treppe gelangen Sie in die einladende Diele mit Platz für eine Garderobe. Von hier öffnet sich ein großzügiger Flur, der zusätzliche Stellfläche bietet. Das helle Tageslichtbad überzeugt mit Dusche, Badewanne, Handtuchheizkörper und moderner Fliesengestaltung. Angrenzend befindet sich das großzügige Wohnzimmer als zentraler Lebensmittelpunkt des Hauses. Gegenüber liegt die Küche mit integrierter Einbauküche, die im Kaufpreis enthalten ist und ausreichend Platz für einen Esstisch bietet. Eine praktische Speisekammer mit direktem Zugang zum Keller ergänzt das Raumangebot. Im gesamten Erdgeschoss sorgen Fliesenböden und eine Fußbodenheizung für ein angenehmes Wohngefühl.

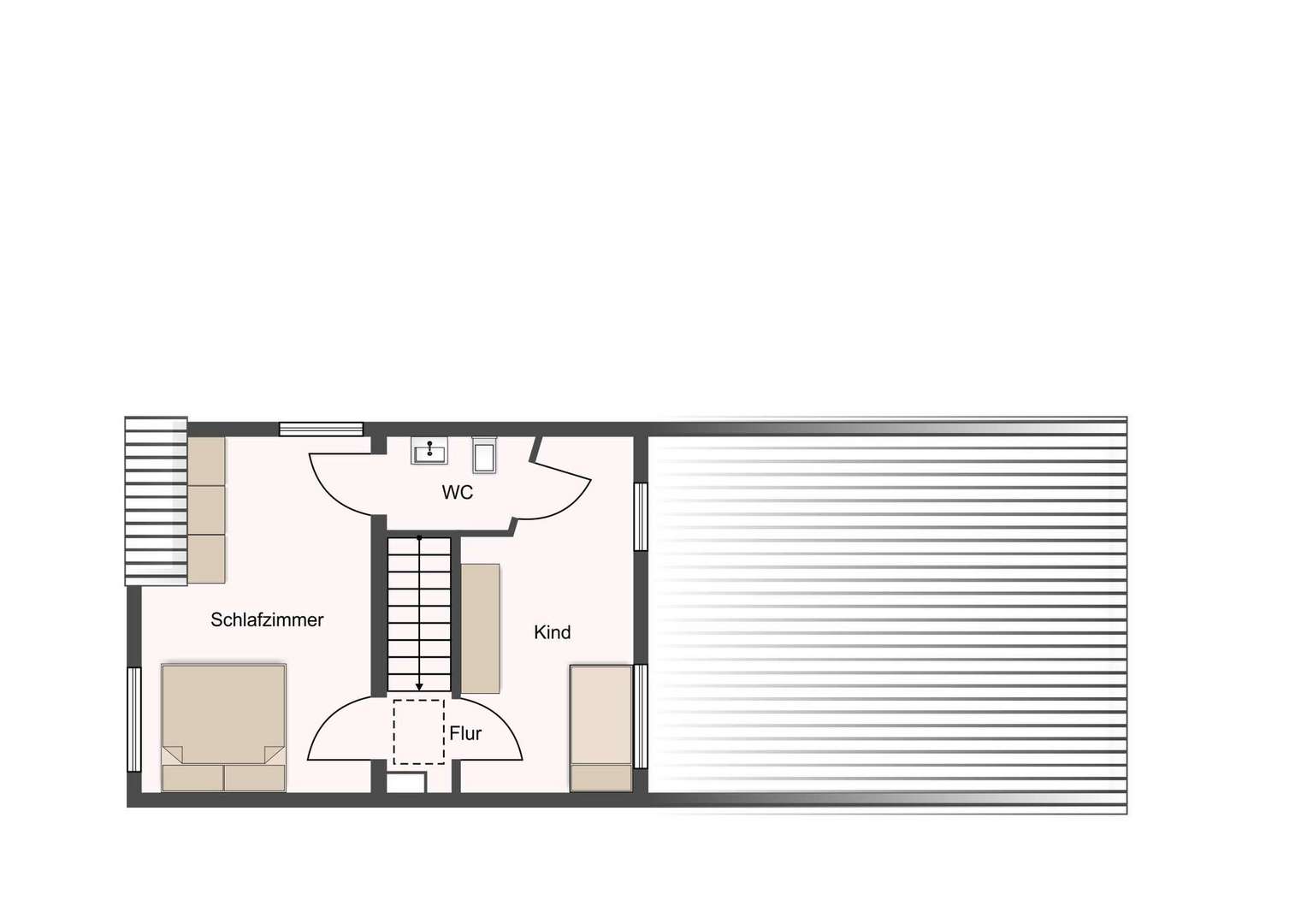
Im ausgebauten Dachgeschoss stehen Ihnen zwei helle Schlafzimmer mit Laminatboden und klassischen Heizkörpern zur Verfügung. Ein bereits vorbereitetes WC mit vorhandenen Anschlüssen eröffnet Ihnen die Möglichkeit, Ihre persönlichen Ausstattungswünsche umzusetzen. Vom Kinderzimmer aus erreichen Sie zudem einen Teil des Dachspitzes, der sich bei Bedarf weiter ausbauen lässt, etwa als zusätzliche Schlafebene. Das Dach wurde im Rahmen der Sanierung teilweise neu gedämmt und eingedeckt.

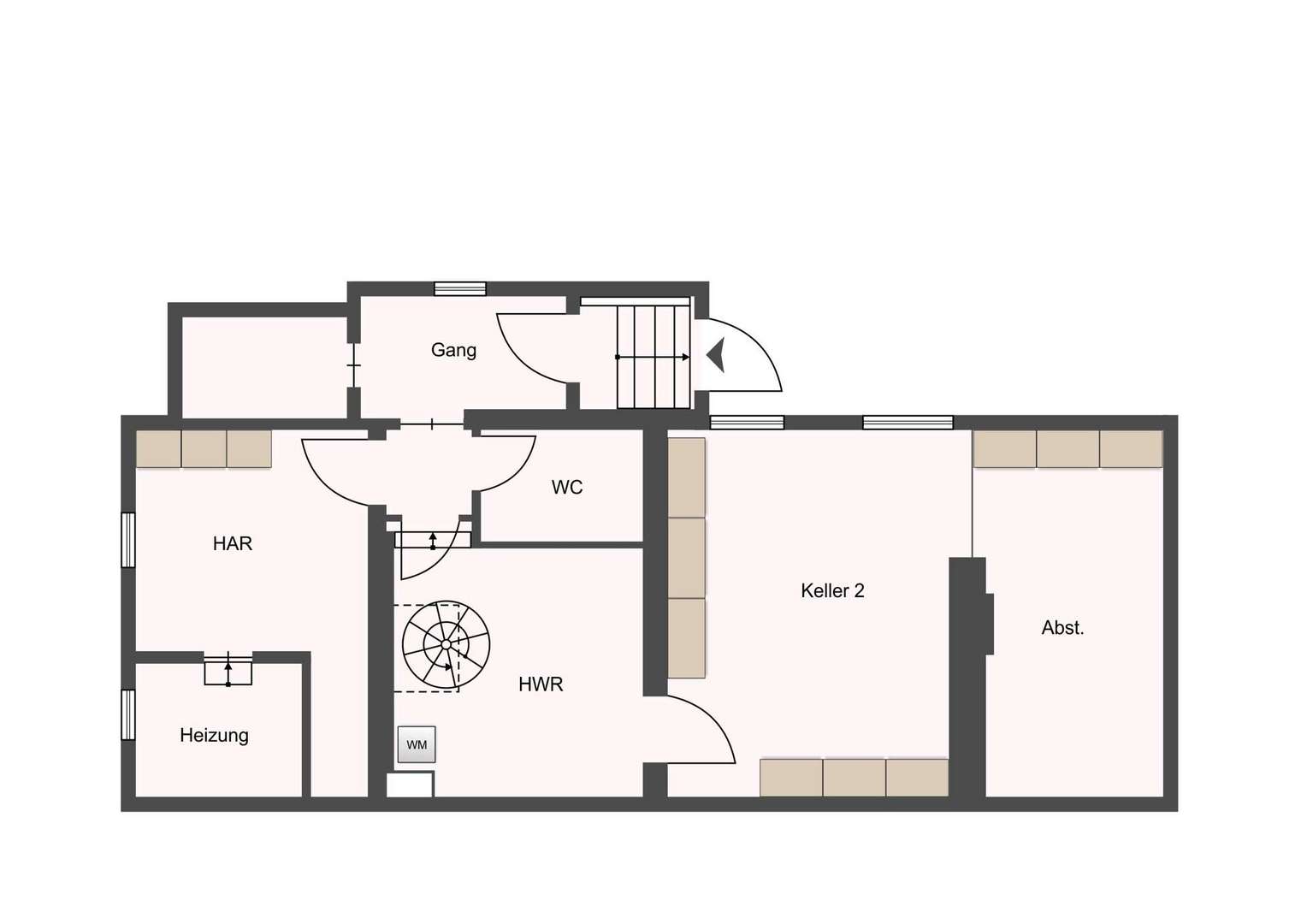
Auch der Keller überzeugt mit großzügigem Platzangebot und vielseitigen Nutzungsmöglichkeiten. Neben dem Heizungsraum mit moderner Gasbrennwerttherme aus dem Jahr 2019 stehen ein großer Lagerbereich mit Waschmaschinenanschlüssen sowie die Vorbereitung für ein zusätzliches WC zur Verfügung. Besonders hervorzuheben sind zwei großzügige Räume, die derzeit als Arbeitszimmer und Sportraum genutzt werden und sich ebenso ideal für Hobby, Fitness oder Homeoffice anbieten. Ein Glasfaseranschluss und eine vorbereitete Alarmanlage runden die technische Ausstattung ab.

Der großzügige Garten im hinteren Grundstücksbereich lädt zum Entspannen und Gestalten ein. Ein Nebengelass mit integrierter Garage und weiteren Räumen bietet zusätzliche Nutzungsmöglichkeiten, wobei Strom sowie Warm und Kaltwasser bereits anliegen. Die Fassade und die Außenanlagen sind noch fertigzustellen. Damit eröffnet sich Ihnen die attraktive Möglichkeit, das äußere Erscheinungsbild nach eigenen Vorstellungen zu vollenden und dieses charmante Zuhause nachhaltig und energetisch aufzuwerten.

Ausstattungsmerkmale

KücheEinbauküche
Bad1
Bad (Ausstattung)Dusche, Wanne, Fenster
BodenFliesen, Laminat
GartenJa
KellerJa
- 2019 teilsaniert
- Ca. 95 m² Wohnfläche mit 3 Zimmern
- Ca. 500 m² Grundstück
- Gas-Brennwerttherme aus 2019, teilw. Fußbodenheizung
- Einbauküche inklusive
- Glasfaser
- Nebengelass mit Garage
- Individuelle Nutzfläche im Keller

Energie

Heizungsart Zentralheizung
Wesentlicher EnergieträgerGas
Energieträger/Befeuerung Gas

Karte wird geladen...
04821 Brandis – Sachsen

Lage & Infrastruktur

Die Lage besticht durch ihre ruhige, naturnahe Wohnumgebung in einer liebenswerten Kleinstadt mit starker regionaler Anbindung. Hier trifft ländliche Ruhe auf eine gute Infrastruktur: kurze Wege zu Einkaufsmöglichkeiten, Bildungseinrichtungen und Freizeitangeboten machen den Standort besonders attraktiv für Familien, Berufspendler und Erholungssuchende. Gleichzeitig liegen Leipzig und weitere Zentren des Umlands in komfortabler Reichweite.

Verkehrsanbindung

- Regionalbus-Haltestellen im Ortsteil (z. B. „Markt“ / „Leipziger Str.“): ca. 500–900 m (Regionalbuslinien 640, 644, 689)
- Bahnhof Beucha (Regionalbahn): ca. 3 km – regelmäßige Züge nach Leipzig (z. B. in ca. 20–25 Min.).
- Autobahnanschluss A14 (nahe Grimma/Naunhof): ca. 4 km – direkte Verbindungen Richtung Leipzig, Halle und Dresden.

Einkaufen & Versorgung

- EDEKA Dölz – ca. 750 m
- Penny Markt Brandis – ca. 750 m
- NORMA, Wreesmann, Rossmann und weitere Märkte – im Stadtgebiet innerhalb von ~1,5 km
- Apotheken, Bäckereien, sonstige Geschäfte – fußläufig im Ortskern erreichbar (ca. 800 – 1 200 m)

Erholung & Natur

- Waldflächen & Grünzüge rings um Brandis – innerhalb von 1 bis 1,5 km ideal für Spaziergänge, Jogging oder Radtouren in der Natur.
- Kleine Grünflächen, Spielplätze und naturnahe Wege durchs Ortsgebiet – fußläufig erreichbar.
- Beliebte Rad- und Freizeitstrecken ins Umland, z. B. Richtung Machern oder Beucha.

Kultur & Freizeit

- Schlosspark Brandis und historischer Stadtkern – ca. 1,2 km – ideal für kulturelle Spaziergänge und gemeinsames Erleben.
- Sportplätze, Vereinsangebote (z. B. Fußball, Turn- und Fitnessvereine) sowie örtliche Veranstaltungen – im Stadtgebiet innerhalb von 1–3 km verfügbar.
- Naherholung in umliegenden Orten wie Machern oder Naunhof mit weiteren Freizeit- und Gastronomieangeboten.

Bildungseinrichtungen

- Grundschule Brandis – ca. 1,2 km
- Oberschule Brandis – ca. 1,3 km
- Gymnasium Brandis – ca. 1,2 km
- Kitas & Kindergärten (z. B. KiTa Purzelbaum, CVJM Brandis e. V.): ca. 800 – 1 200 m
- Weiterführende Bildungseinrichtungen und berufliche Angebote im Umkreis, z. B. in Leipzig – per Bahn oder Auto schnell erreichbar.

Sonstige Informationen

Hinweis zur Richtigkeit und Vollständigkeit der Angaben:

Der Makler weist darauf hin, dass die von ihm weitergegebenen Objektinformationen vom Verkäufer bzw. von einem vom Verkäufer beauftragten Dritten stammen und von ihm, dem Makler, auf ihre Richtigkeit nicht überprüft worden sind. Es ist Sache des Kunden, diese Angaben auf ihre Richtigkeit hin zu überprüfen. Der Makler, der diese Informationen nur weitergibt, übernimmt für die Richtigkeit keinerlei Haftung.
Ansprechpartner/in: Romy Engelmann
Willuhn Immobilien e. K.
Scherlstraße 12, 04103 Leipzig

Weitere Angebote in Brandis