!!! ImmoPoint !!! 2. BEZUG nach SANIERUNG - 40 m² Wohnzimmer - 9 m² SÜD-BALKON (IP 3 MD 90 - 1.OGL)

58636 Iserlohn
Frei ab: nach Absprache
645 € Kaltmiete
895 € Warmmiete inkl. NK
7,17 € Preis/m² ca.
Wohnfläche
90 m²
Zimmer
3
Etage
1
Offene Küche
Balkon
Stellplatz

Mietpreis & Nebenkosten

Kaltmiete645 €
Nebenkosten 250 €
Heizkosten enthaltenJa
Warmmiete895 €
Kaution 2.055 €
MaklerprovisionKEINE !!!
Stellplatz Garage Miete40 €

Wohnfläche, Grundstück & Bausubstanz

Wohnfläche90 m²
Zimmer3
Stockwerk1
Baujahr1993
Letzte Modernisierung2026
Verfügbar ab nach Absprache
ZustandTeil Vollrenoviert

Beschreibung der Immobilie

ENERGIEAUSWEIS

- erstellt am: 04.03.2014
- gültig bis: 04.03.2024
- Art des Energieausweises: nach Verbrauch
- Verbrauchskennwert insgesamt: ca. 81 kWh/(m²a)
- Verbrauch inkl. Warmwasser: nein
- Heizungsart: Zentralheizung
- Befeuerung: Gas
- Baujahr: 1993

---------------

****
WICHTIG: Bei telefonischen Anfragen bitte die Objektnummer
**** IP 3 MD 90 1.OGL angeben!

Weitere Bilder, 3D virtuelle Rundgänge sowie Angebote finden Sie auf
*** www.immopoint.info ***


** OBJEKTINFORMATIONEN:

*FAKTEN:
Für eine unverbindliche Besichtigung benötigen Sie vorab keine Unterlagen. Jedoch können Sie die Entscheidung der Verwaltung/Vermieter mit einer MIETERSELBSTAUSKUNFT (siehe PDF Anhang) und Ihrer SCHUFA-Auskunft sowie den letzten 3 Lohnabrechnungen beschleunigen

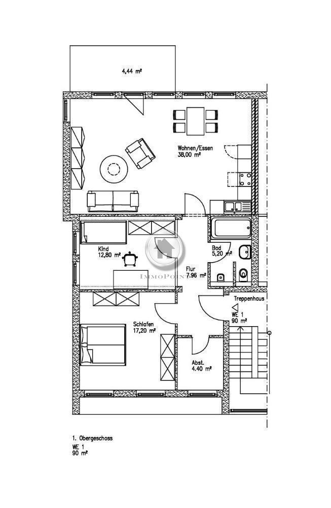
ca. 90 m²
3 Zimmer, offene Küche, Diele, Ankleidezimmer/Abstellkammer, Bad, gr. Balkon, Waschkeller, Garage

645,- € Kaltmiete
250,- € Nebenkosten inkl. Heizung (verbrauchorientiert), Winterdienst & Treppenhausreinigung
40,- € Garage
=
935,- € Warmmiete

2.055,- € Kaution
Courtage = KEINE!!!

* DAS HAUS:
Das moderne Mehrfamilienhaus von 1993 steht zentrumsnahe zwischen der Fußgängerzone und dem Seilersee. Durch die Bauweise mit ISO-Fenstern inkl. Rollläden erreichen Sie hier sehr gute Heizwerte von sich in den Nebenkosten von geringen 250,- €/Mon. inkl. der Heizung widerspiegelt

* DIE WOHNUNG:
Dieses helle und extravagant geschnittene Objekt befindet sich im 1. OG und bietet Ihnen eine zentrumsnahe gelegene Terrassenwohnung mit hohem Erholungsfaktor. Sie wurde von Grund auf saniert. Sie ziehen in einem 2. BEZUG. Der Vormieter hat die Wohnung als 1. Bezug nach Sanierung bezogen. Derzeit wird die Wohnung für Sie neu gestrichen und es wird ein neuer Vinyl-Boden gelegt. Sie ziehen also ein, ohne renovieren zu müssen. Nur noch Möbel aufstellen und FERTIG!

Das modern geschnittene und Licht durchflutete Wohnzimmer mit bodentiefen Fenstern und direktem Zugang zum großem Balkon (9 m² ),der Essbereich sowie die offener Küche bieten Ihnen mit ca. 40 m² viele Möglichkeiten Ihre Wohnträume zu erfüllen.

Neben Ihrem neuem Schlafzimmer befindet sich eine große Abstellkammer mit Fenster, die Sie gern zu Ihrem Ankleidezimmer umfunktionieren können.

Das innen liegende Bad mit Badewanne, Waschbecken, WC und sogar Pissoir, ist weis gefliest.

Für Ihre Wäsche steht ein großer Wasch- und Trockenkeller zur Verfügung.

* DER BALKON:
Die große Sonnenloggia (SÜD Ausrichtung) bietet genügend Raum zum Sonnenbaden und Entspannen.

* DER MIETER:
Einzelpersonen mit viel Platzbedarf, ein Paar aber auch kleine Familien mit Kind werden sich hier ein perfektes Heim aufbauen können.
Leider dürfen Hunde oder Katzen nur nach Absprache einziehen.

* PARKEN:
Öffentliche Stellplätze stehen Ihnen am Haus, an der Straße kostenlos zu Verfügung.
Die Garage kostet 40,- €/Monat extra.

Dateien


Ausstattungsmerkmale

KücheOffene Küche
Bad1
Bad (Ausstattung)Wanne, Pissoir
BodenFliesen, Laminat
Balkone1
Garage/Stellplätze1
- 1. BEZUG NACH RENOVIERUNG 2026 + SANIERUNG
- NEUE Bodenbeläge
- NEUE Tapeten
- NEU gestrichen
- NEUE Türen
- NEUE TÜRZARGEN
- NEUE SCHALTER und STECKDOSEN
- etc.
- große Süd-Loggia
- Iso-Verglasung
- Rollläden an allen Fenstern
- offene Küche
- Warmwasseraufbereitung über Hauptheizung (keine teuren Durchlauferhitzer)
- Treppenhausreinigung bereits in den Nebenkosten inkl.
- Winterdienst bereits in den Nebenkosten inkl.
- eigene Wasserzähler mit jährlicher, verbrauchsorientierter Abrechnung
- eigene Heizungszähler mit jährlicher, verbrauchsorientierter Abrechnung
- Badewanne mit Duschmöglichkeit
- Pisoir

* RAUMAUFTEILUNG
1 ca. 9 m² große SÜD Terrasse / Loggia
1 ca. 40 m² großes Wohnzimmer
1 ca. 17 m ² Schlafzimmer
1 ca. 13 m² Kinderzimmer
1 ca. 4,5 m ² begehbare Ankleide / Abstellraum mit großem Fenster
1 offene Küche (modern im Wohnzimmer integriert)
1 ca. 8 m² Diele
1 ca. 5 m² Bad (innen liegend) mit Wanne und Pissoir
1 Wasch- und Trockenkeller
1 Garage (zzgl. 40,- €/Monat)

Energie

EnergieausweistypVerbrauch
Ausstellungsdatum04. 03. 2014
Gültig bis03-2024
Baujahr (laut Energieausweis)1993
Energieverbrauchkennwert81 kWh/(m²*a)
Heizungsart Zentralheizung
Energieträger/Befeuerung Gas

Karte wird geladen...
58636 Iserlohn

Lage & Infrastruktur

Das gepflegte Mehrfamilienhaus steht zentrumsnahe in der Mendener Str. zwischen dem Seilersee und der Fußgängerzone. Das Wohnzimmer liegen samt der Sonnenloggia nach hinten zum Innenhof in den Süden gerichtet. Hier genießen Sie bereits von morgens bis in die Abendstunden einen unverbaubaren Weitblick über die Dächer bis in den Wermingser-Stadtwald.

Einkaufsmöglichkeiten (EDEKA, ALDI, Kaufland, die Fußgängerzone…) Ärzte, Apotheken, Schulen und Kindergärten erreichen Sie in wenigen, fußläufigen Minuten.

Ein Spaziergang am Seilersee, ein Besuch in der Seilerseebad-Sauna oder der nächste Kinoabend, finden von hier den direkten Start ohne lästiges Autofahren und Parkplatzsuchen.

Sonstige Informationen

11.23
SONSTIGES:
Gerne vereinbaren wir mit Ihnen einen für Sie kostenfreien und unverbindlichen Besichtigungstermin.

Senden Sie uns Ihre Anfrage direkt aus dem Börsen-Expose heraus und vergessen Sie nicht uns Ihre Kontakt- und Adressdaten mitzuschicken. Der/die Vertriebsbeauftragte wird sich dann mit Ihnen zeitnahe zwecks Terminvereinbarung in Verbindung setzen.

Bitte beachten Sie, dass gegebenenfalls einige Bilder zur besseren Darstellung mit einer Panorama- oder Weitwinkel-Funktion aufgenommen wurden und deshalb teilweise verzerrt wirken können. Eventuell entstehen hierdurch an rechtwinkligen Wänden und am Mobiliar Rundungen.
Des Weiteren ist es möglich dass Muster- oder Archivbilder verwendet wurden. Eine möglicherweise dargestellte Möblierung, Boden- und Farbgestaltung obliegt dem neuen Mieter/Inhaber und kann von den Fotos abweichen.

Die Angebotsdaten stammen vom Verkäufer/Vermieter. Für ihre inhaltliche Richtigkeit steht - ImmoPoint - Immobilien & Service - nicht ein.

Dies ist ein Beispiel aus unserem Immobilienpool. Sollte das Objekt oder Grundstück nicht Ihren Vorstellungen entsprechen, können wir bei Nachfrage eventuell auch weitere, zum Teil nicht im Netz veröffentlichte Immobilien/Grundstücke anbieten.

Alle Angaben nach bestem Wissen. Irrtum und Zwischenverkauf oder Vermietung vorbehalten.

WICHTIG:
Mit diesem Exposé bieten wir Ihnen unsere Maklerdienste an. Das Exposé selbst ist eine Vorabinformation. Als Rechtsgrundlage gilt allein der Kauf- oder Mietvertrag.

Die Vermieter/Verkäufer möchten vorerst mit Name und Adresse anonym bleiben, können aber auf schriftlichen Wunsch und bei ernsthaftem Interesse mitgeteilt werden.

Durch Zusendung, Empfang oder Verwendung unseres Angebotes und/oder des durch die Anfrage von Ihnen erteilten Auftrages zur Suche und/oder gewünschter Terminabsprache, werden unsere Allgemeinen Geschäftsbedingungen (AGB) Bestandteil und Gegenstand der beidseitigen Geschäftsbeziehungen.

Personenbezogene und sonstige Daten werden zur Bearbeitung dieser Angelegenheit in unserer EDV gespeichert (Hinweis gem. § 32 und 33 BDSG)
Siehe: □ Datenschutzerklärung


ONLINE-STREITBEILEGUNG:
Verbraucherinformation zur Online-Streitbeilegung gemäß Verordnung (EU) Nr. 524/2013:
Im Rahmen der Verordnung über Online-Streitbeilegung zu Verbraucherangelegenheiten steht Ihnen unter http://ec.europa.eu/consumers/odr/ eine Online-Streitbeilegungsplattform der EU-Kommission zur Verfügung.
Kontakt per Mail: immopoint@email.de
Ansprechpartner/in: Herr Peter Podworski
ImmoPoint
Bertholdstr. 24, 58644 Iserlohn

Weitere Angebote in Iserlohn