Provisionsfreier neuer Bungalow in Nordseenähe - Energieeffizienzklasse A

21763 Neuenkirchen, Niedersachsen
Frei ab: nach Absprache
499.000 € Kaufpreis
Wohnfläche
124 m²
Zimmer
4
Einbauküche
Balkon
Terrasse
Garten
Barrierefrei
Stellplatz

Kaufpreis

Kaufpreis 499.000 €
Maklerprovisionkeine Provision, courtagefrei

Wohnfläche, Grundstück & Bausubstanz

Wohnfläche124 m²
Grundstücksfläche1.028 m²
Zimmer4
Etagen1
Baujahr2025
Verfügbar ab nach Absprache
ZustandNeuwertig

Beschreibung der Immobilie

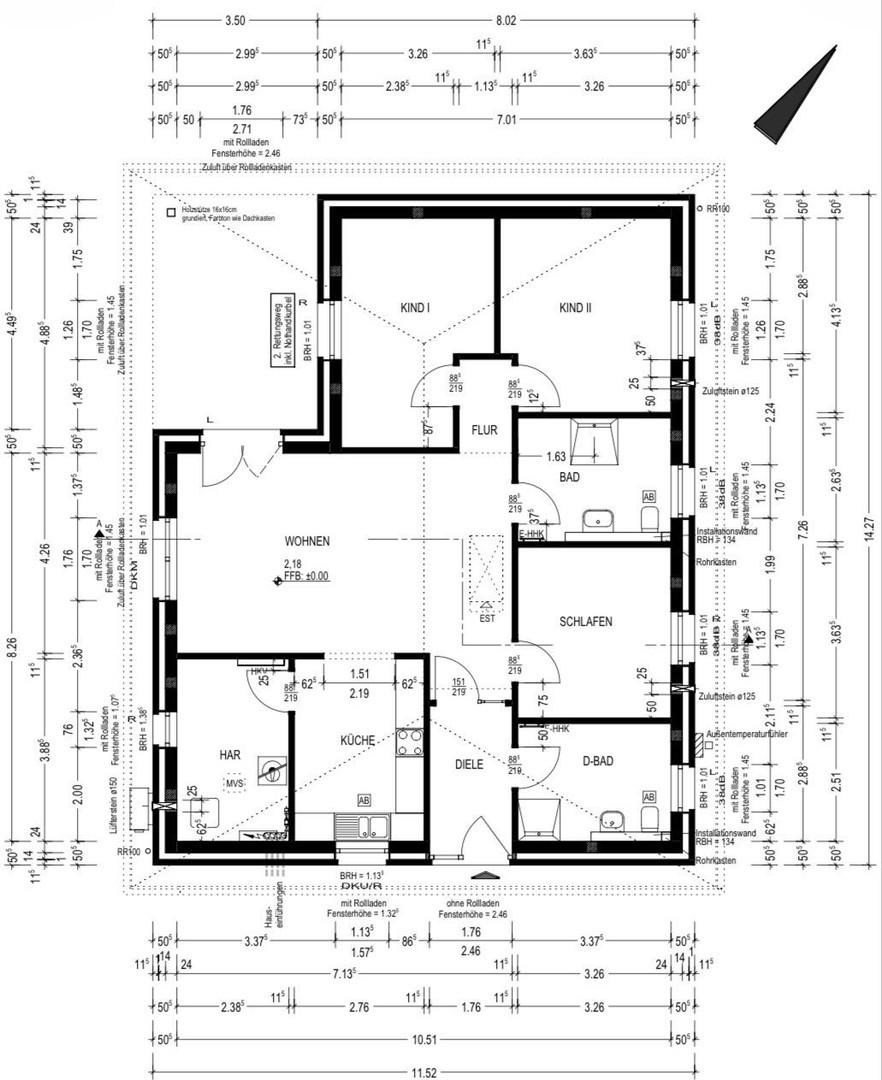
Dieser lichtdurchflutete Bungalow wurde im Februar 2025 fertiggestellt und bietet auf seinen 124 m² ausreichend Platz auch für ältere Paare bzw. Familien mit Kindern.
Die Diele, in der der Zugang zum Gästebad mit WC/DU/WT ist, wird durch eine Schallschutztür vom Flur getrennt.
Der großzügige Wohn-/Essbereich hat ein großes Fenster mit 2 Flügeln und bietet direkten Zugang zur Terrasse, dem Garten mit Salzwasserpool, zur Garage und der Blockhütte.
Neben der Küche befindet sich der separate Hauswirtschaftsraum mit der Heizungsanlage, Platz für Waschmaschine/Trockner, Regale und für eine große Kühlschrank-/Gefrierschrankkombination.
Momentane Zimmernutzung:
Schlafen: Schlafen
Kind II: Gästezimmer
Kind I: Schlafen
Wohnen: Wohn-/Essbereich
D-Bad: Gästebad
Bad: Masterbad
Beide Bäder sind mit bodengleichen Duschen (Linienentwässerung) ausgestattet. Zusätzlich hat das Masterbad ein höhergesetztes Dusch-WC, welches dadurch behindertengerecht ist.
Durch die Trockenboden-Binderkonstruktion entstand im Dachboden eine 30m² große Lagerfläche/Ausbaureserve, die bereits mit einem Fußboden belegt ist.

Wohnfläche: 124 m²
Außenmaße: 11,52 m x 14,27 m
Walmdach 35°

Räume im Erdgeschoss
(Wohnflächenangaben gem. WoFlV)
Wohnzimmer: 32,10 m²
Schlafzimmer: 11,64 m²
Kinderzimmer I: 13,93 m²
Kinderzimmer II: 14,33 m²
Küche: 10,52 m²
Bad: 8,41 m²
D-Bad: 8,01 m²
Diele: 4,95 m²
Flur: 2,19 m²
Hausanschlussraum: 9,08 m²
Überdachte Terrasse: 8,97 m²

Die Bauunterlagen liegen komplett vor.

Ausstattungsmerkmale

KücheEinbauküche
Bad2
Bad (Ausstattung)Dusche
BodenTeppich, Kunststoff
Balkone0
Terrassen1
GartenJa
BarrierefreiJa
Garage/Stellplätze1
Terrasse, Garten, Duschbad, Pool · Schwimmbad, Einbauküche, Gäste-WC, Barrierefrei, Teppichboden

Bemerkungen:
Das Haus ist mit einem Verblendmauerwerk versehen.
An allen Fenstern sind motorenbetriebene Rolläden, die Raumhöhen betragen im gesamten Gebäude 2,72 m. Zur individuellen Regelung der Raumtemperatur verfügt jeder abgeschlossene Wohnraum über ein eigenes Thermostat.
Bäder, Küche und HWR sind mit einer Lüftungsanlage ausgestattet.
Die beiden Bäder sind im Boden komplett, sowie umlaufend 1,20 m und im Duschbereich 2,10 m gefliest sowie mit Duscharmaturen von Grohe (Thermostate) ausgestattet.
Zwei der Zimmer ( Schlafen/Kind 2) sind mit hochwertigem Kugelgarn-Teppichboden und die anderen Räume mit Vinyl ausgelegt.
Deckenspots in den Bädern, Flur, Wohn- und Essbereich.
In allen Zimmern ist neben der Dreifachsteckdose ein Datenleitungsanschluss vorhanden.
Auf dem Dach befinden sich neben der Satellitenschüssel 4 Solarplatten mit 2 kWp Gesamtleistung und auf dem Dachboden ein Speicher mit einer Speicherkapazität von 2,24 kWh. Der Zugang zum Dachboden befindet sich in der Diele, nicht im Bereich des Flures. Durch zusätzliche Fenster hat der Dachboden Tageslicht.
Der Internetanschluss ist über die am Haus montierte 5G-Antenne gegeben.
Eine Betonfertiggarage von 3 x 6 m mit einem motorbetriebenem Schwingtor und zwei weitere Stellplätze sind vorhanden.
Die Blockbohlenhütte (45 mm) mit 3 x 3 m geschlossen und 3 x 3 m Vorderseitig offen befindet sich im hinteren Gartenbereich.
Der einen Meter eingelassene mit Salzwasser gefüllte Achtformpool 7,25 x 4,60 x 1,50 m mit Sandfilteranlage, sowie einer Salzelektrolyseanlage wird durch ein stabiles 8 x 5 m großes Zelt von der Firma „Stabile Zelte“ gegen Witterungseinflüsse geschützt.

Energie

A
Energieeffizienzklasse A · 36 kWh/(m²*a)
EnergieausweistypBedarfsausweis
EnergieeffizienzklasseA
Endenergiebedarf36
Heizungsart Fußbodenheizung
Energieträger/Befeuerung Luft-Wärme-Pumpe

Karte wird geladen...
21763 Neuenkirchen – Niedersachsen

Lage & Infrastruktur

Neuenkirchen ist eine Gemeinde in Niedersachsen mit 7 Ortsteilen und gehört zur Samtgemeinde Land Hadeln im Landkreis Cuxhaven und liegt in der Nähe von Otterndorf, einer Küstenstadt mit guter Infrastruktur und maritimem Flair inmitten der malerischen Landschaft der Norddeutschen Tiefebene.
Der Ort überzeugt durch die Nähe zur Nordsee und bietet eine charmante ländliche Atmosphäre mit gewachsener Dorfinfrastruktur und ist ein idealer Ausgangspunkt für Erholungssuchende und Naturfreunde.
Trotz des ländlichen Charakters sind größere Städte - Cuxhaven, Bremerhaven, Stade …- durch die verkehrsgünstige Lage mit Anbindung an die B73 und die A27 gut erreichbar und macht die Gemeinde zusätzlich reizvoll, was den Wohnort besonders attraktiv macht.

Die Immobilie liegt im Innenbereich des Hauptortes von Neuenkirchen am Rande eines abgeschlossenen Neubaugebietes auf 1028 m².
Einkaufsmöglichkeiten für den täglichen Bedarf hat man fußläufig im „Dein Dorfladen“.
Arzt, Zahnarzt, Gaststätte, Fleischer, Friseur und das Dorfgemeinschaftshaus erreichen Sie in nur 400 Metern, die Kindertagesstätte liegt 900 Meter entfernt.
Die nächste Bushaltestelle liegt ebenfalls 400 Meter entfernt und bietet Anschluss an das öffentliche Verkehrsnetz, unter anderem in Richtung Otterndorf und Cuxhaven.
Infrastruktur (im Umkreis von 5 km):
Apotheke, Lebensmittel-Discount, Allgemeinmediziner, Kindergarten, Grundschule, Realschule, Öffentliche Verkehrsmittel

Sonstige Informationen

Heizungsart: Fußbodenheizung
Energieträger: Luft-/Wasserwärme

Weitere Bilder vom Inneren des Haues gerne nach Rücksprache erhältlich.

Makleranfragen nicht erwünscht. Nach § 7 UWG sind unaufgeforderte Kontaktaufnahmen durch Makler ohne ausdrückliche Einwilligung des Empfängers verboten!

ohne-makler (OM) ist weder Anbieter noch Vermittler der Immobilie. OM betreibt eine Plattform für Immobilieneigentümer, die unter anderem die gleichzeitige Veröffentlichung einzelner Inserate auf mehreren Immobilienportalen ermöglicht. Die Inhalte dieser Inserate werden ausschließlich von Dritten verantwortet. Für die Richtigkeit, Vollständigkeit oder Rechtmäßigkeit der Angaben übernimmt OM keine Haftung. Hinweise auf mögliche Rechtsverstöße können jederzeit gemeldet werden und werden nach Prüfung umgehend bearbeitet.
Ansprechpartner/in: Privat vom Eigentümer
OM PropTech GmbH
Humboldtstraße 25a, 21509 Glinde

Weitere Angebote in Neuenkirchen