Wie Neubau! Kernsanierte Eigentumswohnungen in Detmold - provisionsfrei ab

32760 Detmold, Nordrhein-Westfalen
Frei ab: sofort
260.000 € Kaufpreis
Wohnfläche
56 m²
Zimmer
3
Balkon
Terrasse
Garten
Keller
Barrierefrei

Kaufpreis

Kaufpreis 260.000 €
Maklerprovisionkeine Provision, courtagefrei
Stellplatz Freiplatz Kaufpreis15.000 €

Wohnfläche, Grundstück & Bausubstanz

Wohnfläche56 m²
Zimmer3
Etagen4
Baujahr1905
Verfügbar ab sofort
ZustandTeil Vollsaniert

Beschreibung der Immobilie

Willkommen in dieser kernsanierten Villa in Detmold im Villenviertel Friedrichshöhe im Ortsteil Heiligenkirchen. Hier sind vier komplett kernsanierte Eigentumswohnungen entstanden, die provisionsfrei von Privat zu verkaufen sind. Alle Einheiten bieten modernen Neubaukomfort und sind sofort bezugsfertig!

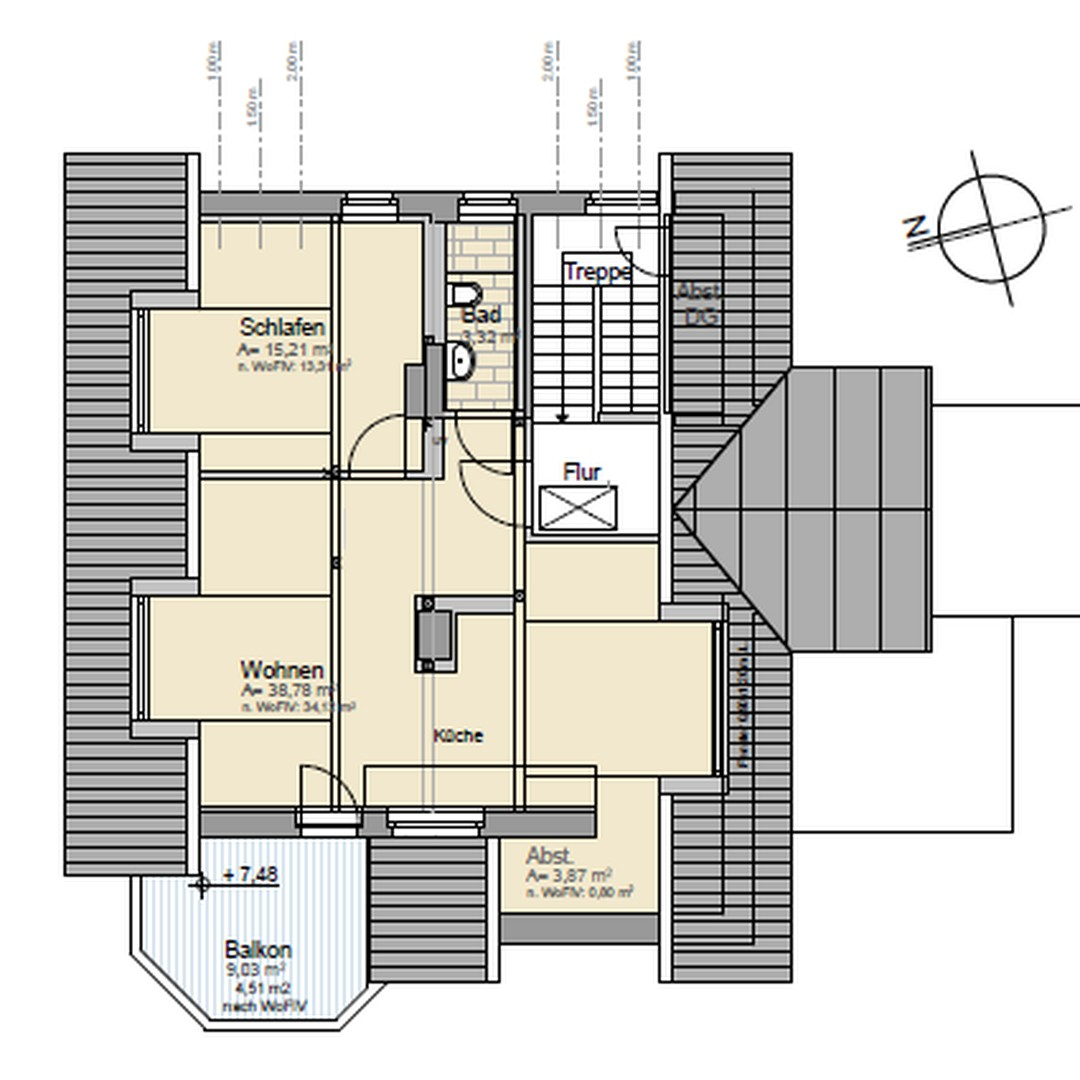
Die Dachgeschosswohnung mit großem Balkon von 8,5 qm und drei Gauben hat eine Fläche von 70 qm (nach Wohnflächenverordnung 56 qm) und wird für 260.000 € angeboten.

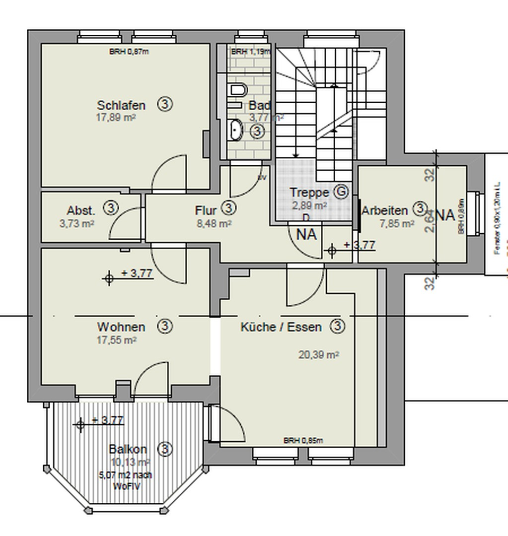
Die Obergeschosswohnung mit 85 qm Wohnfläche hat einen überdachtem Balkon von 10 qm. Preis auf Anfrage.

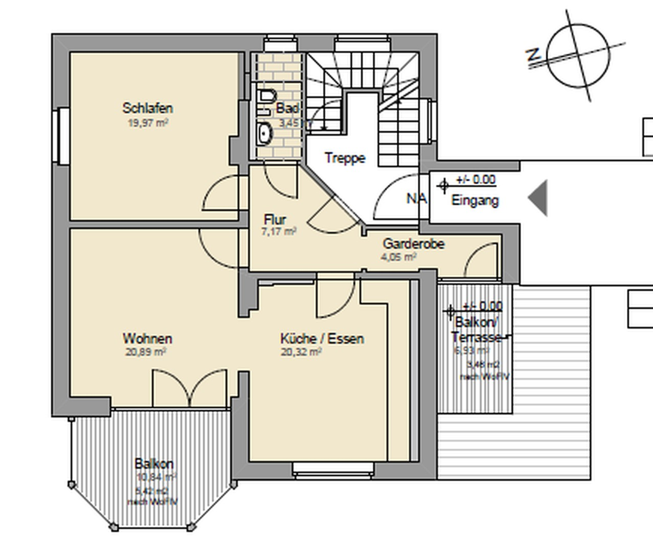
Die Erdgeschosswohnung mit 88,5 qm Wohnfläche hat einen überdachten Balkon von 10 qm und eine Terrasse von 15 qm. Preis auf Anfrage.

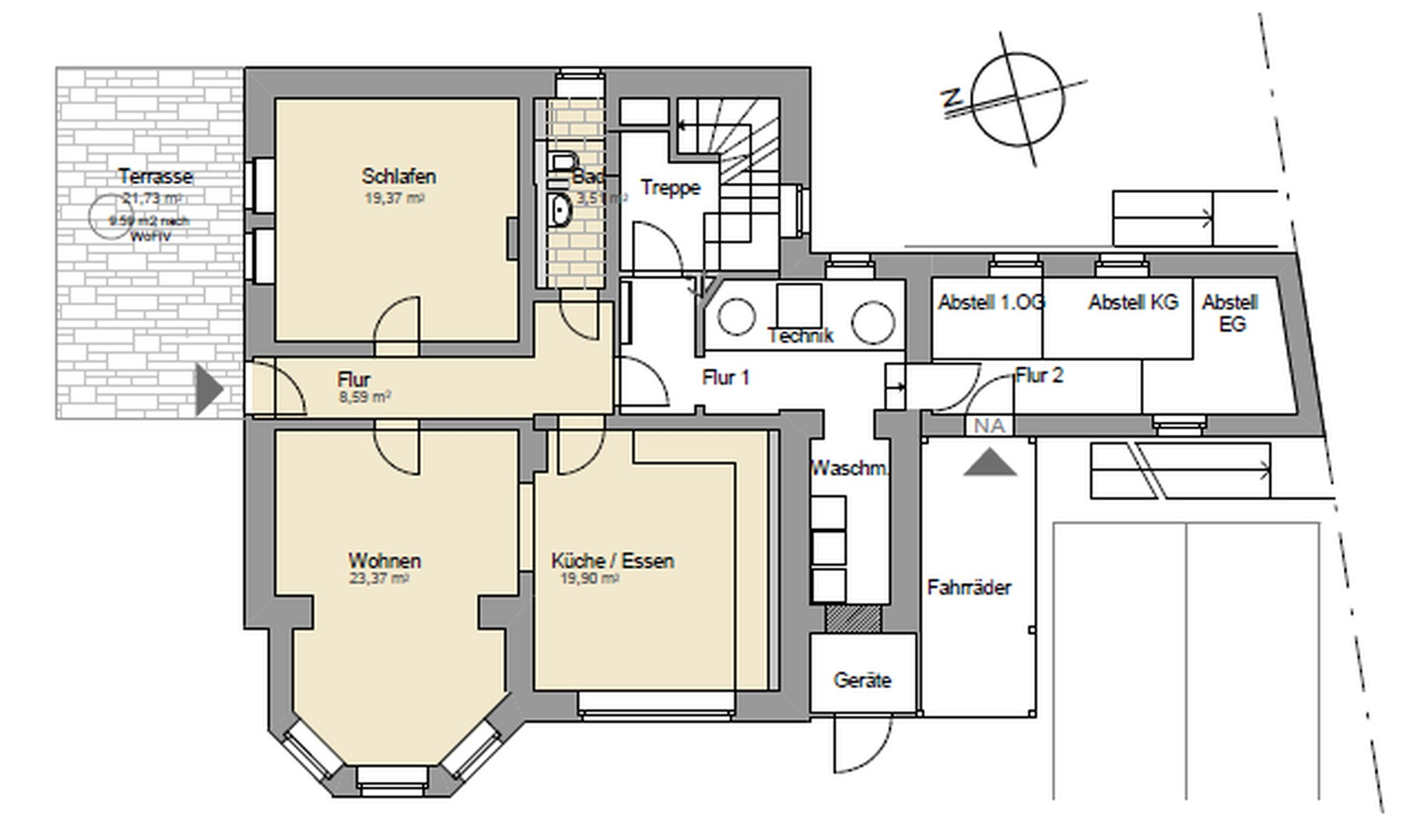
Die Terrassenwohnung mit 84,3 qm hat einen separaten Zugang und eine zugeordnete eigene Terrasse von 24 qm. Preis auf Anfrage.

Der bauliche Zustand des Hauses entspricht einem Neubau, da sämtliche Leitungen, Böden, Türen, Balkone, Wände und Decken einschließlich Dach neu erstellt wurden. Das gesamte Baugrundstück umfasst attraktive Freiflächen und zeichnet sich durch eine hervorragende Lage in Detmold aus.

Zu jeder Wohnung gehört ein eigener Stellplatz.

Im Zuge der erstklassigen Kernsanierung der Villa "Sonnenblick" hat das Haus eine Energieeffizienklasse B erreicht. Installiert ist eine Luft-/Wärmepumpe, die die Fußbodenheizungen und das Warmwasser versorgt und nicht nur für modernen Wohnkomfort, sondern auch ein nachhaltiges Wohnerlebnis gewährleistet.

Jede Wohnung ist sowohl funktional als auch stilvoll gestaltet und bietet großzügige Freiflächen zur individuellen Nutzung. Die hervorragende Anbindung an die Infrastruktur von Detmold rundet das Angebot ab und macht die Immobilie zu einem idealen Wohnort für Familien und Singles gleichermaßen. Nutzen Sie die Chance, Teil dieser einzigartigen Wohnanlage zu werden.

Das Gemeinschaftsgrundstück hat eine Fläche von 802 qm.

Objektzustand: Erstbezug nach Sanierung

Ausstattungsmerkmale

Bad1
Bad (Ausstattung)Dusche
BodenFliesen
Balkone1
Terrassen0
GartenJa
BarrierefreiJa
KellerJa
Balkon, Garten, Keller, Duschbad, Barrierefrei, Fliesen

Bemerkungen:
Alle Wohnungen haben eine Fußbodenheizung und Multimediaanschlüsse in allen Räumen.

Energie

B
Energieeffizienzklasse B · 58 kWh/(m²*a)
EnergieausweistypBedarfsausweis
EnergieeffizienzklasseB
Endenergiebedarf58
Heizungsart Fußbodenheizung
Energieträger/Befeuerung Luft-Wärme-Pumpe

Karte wird geladen...
32760 Detmold – Nordrhein-Westfalen

Lage & Infrastruktur

Die Wohnungen zeichnen sich durch eine naturnahe, ruhige Wohnlage mit exklusiven Villen und Blick auf das Hermannsdenkmal aus. Auch das LWL Freilichtmuseum ist nur wenige Minuten entfernt.

Ganz besonders ist das familienfreundliche Wohnumfeld und die sehr gute Infrastruktur zu erwähnen. Die Buslinie 701 ist ca. 200 m entfernt, die schöne Innenstadt von Detmold erreicht man mit dem Fahrrad in 10 Minuten.

In Heiligenkirchen befinden sich alle Geschäfte/Einrichtungen für den täglichen Bedarf (Rewe, Apotheke, Ärzte, Post, Tankstelle, Kindergarten, Schulen usw.).
Infrastruktur (im Umkreis von 5 km):
Apotheke, Lebensmittel-Discount, Allgemeinmediziner, Kindergarten, Grundschule, Hauptschule, Realschule, Gymnasium, Gesamtschule, Öffentliche Verkehrsmittel

Sonstige Informationen

Heizungsart: Fußbodenheizung
Energieträger: Luft-/Wasserwärme

Privatverkauf - keine Makler!

Makleranfragen nicht erwünscht. Nach § 7 UWG sind unaufgeforderte Kontaktaufnahmen durch Makler ohne ausdrückliche Einwilligung des Empfängers verboten!

ohne-makler (OM) ist weder Anbieter noch Vermittler der Immobilie. OM betreibt eine Plattform für Immobilieneigentümer, die unter anderem die gleichzeitige Veröffentlichung einzelner Inserate auf mehreren Immobilienportalen ermöglicht. Die Inhalte dieser Inserate werden ausschließlich von Dritten verantwortet. Für die Richtigkeit, Vollständigkeit oder Rechtmäßigkeit der Angaben übernimmt OM keine Haftung. Hinweise auf mögliche Rechtsverstöße können jederzeit gemeldet werden und werden nach Prüfung umgehend bearbeitet.
Ansprechpartner/in: Privat von Ingolf Hertlin
OM PropTech GmbH
Humboldtstraße 25a, 21509 Glinde

Weitere Angebote in Detmold