Familienfreundliche Wohnlage im grünen Südosten Nürnbergs

90475 Nürnberg
678.553 € Kaufpreis
Wohnfläche
143 m²
Zimmer
6
Offene Küche
Keller

Kaufpreis

Kaufpreis 678.553 €

Wohnfläche, Grundstück & Bausubstanz

Wohnfläche143 m²
Grundstücksfläche800 m²
Zimmer6
Etagen2
Baujahr2027
Verfügbar ab Keine Angabe
ZustandProjektiert

Beschreibung der Immobilie

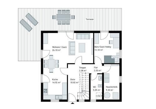
Ihr neues Familienkapitel auf 143 m²

Vergessen Sie Kompromisse - hier erwartet Sie ein Zuhause, das mit Ihrer Familie mitwächst. Modern, lichtdurchflutet und durchdacht bis ins kleinste Detail.

Das Herzstück Ihres Alltags: Auf großzügigen 34 m² verschmelzen Kochen, Essen und Wohnen zu einem lichterfüllten Zentrum, in dem alle zusammenkommen.

Rückzugsorte mit Wohlfühlgarantie: Im Obergeschoss punktet die Planung mit zwei Kinderzimmern für kleine Entdecker sowie einem Elternbereich inklusive eigener Ankleide und Familienbad.

Flexibilität für Ihre Pläne: Der Zusatzraum im Erdgeschoss ist Ihr Joker - ob als ruhiges Homeoffice oder Gästezimmer.

Zukunftssicher und komfortabel: Dank eines optionalen Duschbads im Erdgeschoss ist sogar barrierefreies Wohnen auf einer einzigen Etage möglich.

Ein Grundriss, der Ihnen heute den Freiraum bietet, den Sie brauchen, und auch morgen noch alle Möglichkeiten offen lässt.

Sie möchten größer oder kleiner bauen? Oder in einer anderen Dachform? Sehr gerne! Rufen Sie mich an und wir besprechen die Anforderungen an Ihr individuelles STREIF Haus.

Ausstattungsmerkmale

KücheOffene Küche
Bad (Ausstattung)Dusche, Wanne, Fenster
KellerJa
STREIF-Häuser sind Energiesparhäuser mit Außenwänden im Passivhausstandard und einer effizienten Heiztechnik, die eine integrierte Wohnraumlüftung und Wärmerückgewinnung bietet. Dies gewährleistet nicht nur einen geringen Energieverbrauch, sondern auch ein fantastisches Raumklima.

Die Leistungen von STREIF sind umfangreich und bereits im Grundpreis enthalten:
- 20-monatige Festpreisgarantie
- Energieeffizienzhaus KfW 40 EE im Standard
- Individuelle Grundrissgestaltung und Raumaufteilung inklusive
- Fundamentplatte inklusive
- Luft-Luft-Wärmepumpe mit integrierter Lüftungsanlage und Wärmerückgewinnung
- Haustür von KERA und Fenster von Porta/Kömmerling
- Massivholz-Geschosstreppe aus eigener Produktion
- uvm.

Einzigartige Services, umfangreiche Inklusiv-Leistungen und komplette Gestaltungsfreiheit; eine Kombination, die Sie nur bei STREIF Haus finden.

Energie

Energietyp KfW-40
Heizungsart Zentralheizung
Energieträger/Befeuerung Luft-Wärme-Pumpe

Karte wird geladen...
90475 Nürnberg

Lage & Infrastruktur

Nürnberg‑Brunn liegt im Südosten der Stadt und bietet eine attraktive Kombination aus naturnahem Wohnen und guter Stadtnähe. Die überwiegend ruhige Wohnbebauung mit Ein‑ und Zweifamilienhäusern sowie die Nähe zu Wäldern und Spazierwegen prägen den hohen Wohn‑ und Freizeitwert. Kindergärten, Schulen und Einkaufsmöglichkeiten sind gut erreichbar, ebenso die Nürnberger Innenstadt und die Metropolregion - ideal für familienfreundliches Wohnen mit hoher Lebensqualität.

Ich bitte zu berücksichtigen:
Ich bin kein Makler und trete auch nicht als ein solcher auf. Details zu Grundstücken teile ich exklusiv mit STREIF Haus Bauherren.

Meine Angebote erfolgen freibleibend und unverbindlich. Irrtum und Zwischenverkauf bleiben vorbehalten. Den auf die einzelnen Grundstücke bezogenen Angaben liegen die mir gegenüber erteilten Auskünften und Informationen zugrunde. Trotz sorgfältiger Prüfung kann ich daher eine Haftung für deren Richtigkeit und Vollständigkeit nicht übernehmen.

Sonstige Informationen

Das angegebene Grundstück (Grundstückspreis ist im Gesamtpreis enthalten) wird von Dritten angeboten und separat erworben. Zusätzliche Erwerbs- und Baunebenkosten müssen noch hinzugerechnet werden, hierüber beraten wir gerne.

Die Hausabbildungen und die Bilder der Inneneinrichtung zeigen Extras, die nicht im angegebenen Kaufpreis inbegriffen sind.

Interessiert? Kontaktieren Sie mich und vereinbaren ein erstes Gespräch unter 0173/3678139.
Ansprechpartner/in: Herr Frank Bohnert
06551-12 0
STREIF Haus GmbH
Josef-Streif-Straße 1, 54595 Weinsheim

Weitere Angebote in Nürnberg