Nürnberg‑Buch - Ländlicher Charme im Norden der Stadt

90427 Nürnberg
750.726 € Kaufpreis
Wohnfläche
143 m²
Zimmer
5
Offene Küche

Kaufpreis

Kaufpreis 750.726 €

Wohnfläche, Grundstück & Bausubstanz

Wohnfläche143 m²
Grundstücksfläche670 m²
Zimmer5
Baujahr2027
Verfügbar ab Keine Angabe
ZustandProjektiert

Beschreibung der Immobilie

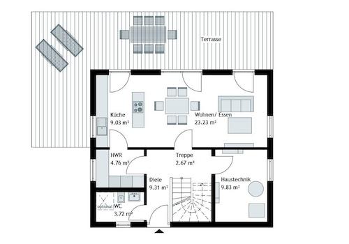
Ihr neuer Lieblingsort auf 143 m²
Vergessen Sie sterile Kataloghäuser - hier erwartet Sie ein Zuhause, das mit Ihnen mitatmet. Modern, gemütlich und durchdacht bis in den letzten Winkel.

Das Herzstück für alle: Auf großzügigen 40 m² verschmelzen Kochen, Essen und Wohnen zu einer lichterfüllten Wohlfühlzone. Hier wird gemeinsam gelacht, gekocht und der Alltag gefeiert.

Privatsphäre mit System: Das Obergeschoss gehört ganz der Familie. Zwei große Kinderzimmer bieten Platz für jedes Abenteuer, während das Schlafzimmer mit eigener Ankleide und das Familienbad Ihre persönliche Wellness-Oase bilden.

Flexibilität ohne Kompromisse: Der Zusatzraum im Erdgeschoss ist der Joker in Ihrer Planung. Ob ruhiges Homeoffice, Gästezimmer oder - dank optionalem Duschbad - die perfekte Lösung für komfortables Wohnen auf einer Ebene.

Ein Grundriss, der heute passt und Ihnen auch morgen noch alle Möglichkeiten offen lässt.

Einzigartige Services, umfangreiche Inklusiv-Leistungen und komplette Gestaltungsfreiheit; eine Kombination, die Sie nur bei STREIF Haus finden.
Sie möchten größer oder kleiner bauen? Oder in einer anderen Dachform? Sehr gerne! Rufen Sie mich an und wir besprechen die Anforderungen an Ihr individuelles STREIF Haus.

Ausstattungsmerkmale

KücheOffene Küche
Bad (Ausstattung)Dusche, Wanne, Fenster
STREIF-Häuser sind Energiesparhäuser mit Außenwänden im Passivhausstandard und einer effizienten Heiztechnik, die eine integrierte Wohnraumlüftung und Wärmerückgewinnung bietet. Dies gewährleistet nicht nur einen geringen Energieverbrauch, sondern auch ein fantastisches Raumklima.

Die Leistungen von STREIF sind umfangreich und bereits im Grundpreis enthalten:
- 20-monatige Festpreisgarantie
- Energieeffizienzhaus KfW 40 EE im Standard
- Individuelle Grundrissgestaltung und Raumaufteilung inklusive
- Fundamentplatte inklusive
- Luft-Luft-Wärmepumpe mit integrierter Lüftungsanlage und Wärmerückgewinnung
- Haustür von KERA und Fenster von Porta/Kömmerling
- Massivholz-Geschosstreppe aus eigener Produktion
- uvm.

Energie

Energietyp KfW-40
Heizungsart Zentralheizung
Energieträger/Befeuerung Luft-Wärme-Pumpe

Karte wird geladen...
90427 Nürnberg

Lage & Infrastruktur

Nürnberg‑Buch liegt im Norden der Stadt im Knoblauchsland und zeichnet sich durch einen dörflich‑ländlichen Charakter mit viel Grün aus. Prägend sind Sandstein‑ und Bauernhäuser sowie überwiegend Ein‑ und Zweifamilienhausbebauung, die dem Stadtteil eine ruhige und gewachsene Atmosphäre verleihen. Trotz der naturnahen Lage besteht über die nahegelegene Bundesstraße B4 sowie den öffentlichen Nahverkehr eine gute Anbindung an die Nürnberger Innenstadt sowie an Fürth und Erlangen, was Buch zu einer attraktiven Wohnlage für alle macht, die Ruhe, Natur und regionale Vernetzung schätzen.

Ich bitte zu berücksichtigen:
Ich bin kein Makler und trete auch nicht als ein solcher auf. Details zu Grundstücken teile ich exklusiv mit STREIF Haus Bauherren.
Meine Angebote erfolgen freibleibend und unverbindlich. Irrtum und Zwischenverkauf bleiben vorbehalten. Den auf die einzelnen Grundstücke bezogenen Angaben liegen die mir gegenüber erteilten Auskünften und Informationen zugrunde. Trotz sorgfältiger Prüfung kann ich daher eine Haftung für deren Richtigkeit und Vollständigkeit nicht übernehmen.

Sonstige Informationen

Das angegebene Grundstück (Grundstückspreis ist im Gesamtpreis enthalten) wird von Dritten angeboten und separat erworben. Zusätzliche Erwerbs- und Baunebenkosten müssen noch hinzugerechnet werden, hierüber beraten wir gerne.

Die Hausabbildungen und die Bilder der Inneneinrichtung zeigen Extras, die nicht im angegebenen Kaufpreis inbegriffen sind.

Interessiert? Kontaktieren Sie mich und vereinbaren ein erstes Gespräch unter 0173/3678139.
Ansprechpartner/in: Herr Frank Bohnert
06551-12 0
STREIF Haus GmbH
Josef-Streif-Straße 1, 54595 Weinsheim

Weitere Angebote in Nürnberg