Kapitalanlage mit WG-Konzept in Lübeck (Moisling)

Moislinger Mühlenweg 21 23560 Lübeck, Schleswig-Holstein
Frei ab: nach Absprache
140.000 € Kaufpreis
Wohnfläche
56 m²
Zimmer
3
Etage
0
Einbauküche
Balkon
Terrasse
Fahrstuhl
Keller

Kaufpreis

Kaufpreis 140.000 €
Hausgeld331 €
Maklerprovisionkeine Provision, courtagefrei

Wohnfläche, Grundstück & Bausubstanz

Wohnfläche56 m²
Zimmer3
Etagen15
Stockwerk0
Baujahr1965
Verfügbar ab nach Absprache
ZustandModernisiert

Beschreibung der Immobilie

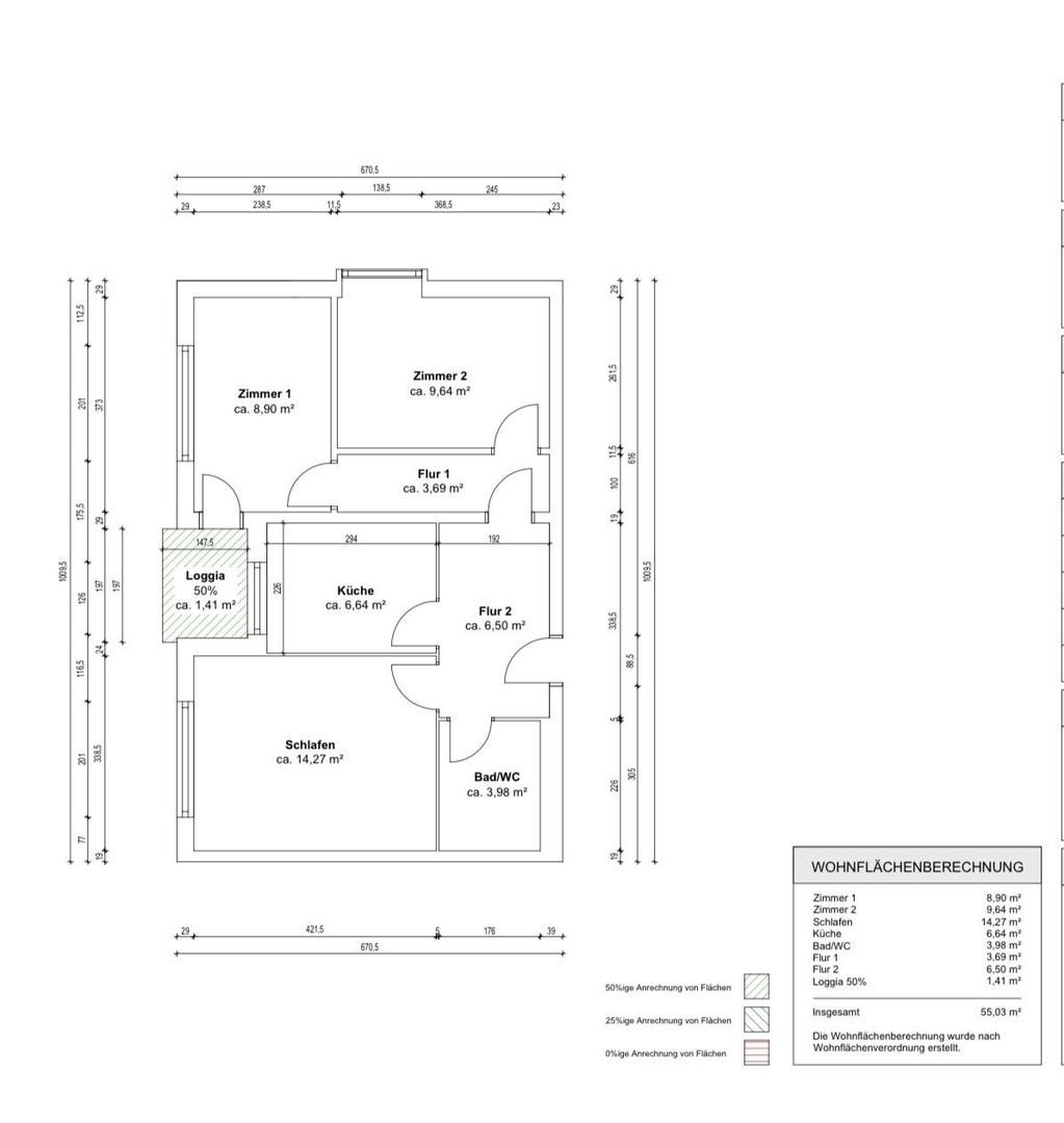
Zum Verkauf steht eine gepflegte und kürzlich modernisierte möbilierte Eigentumswohnung im Lübecker Stadtteil Moisling auf Eigenland. Die Wohnung verfügt über eine Wohnfläche von ca. 55,03 m² und wurde gezielt für ein möbilierted WG-Konzept mit drei Bewohnern und den jeweiligen drei Mietverträgen optimiert.

Die durchdachte Grundrissaufteilung umfasst drei separat nutzbare Zimmer (ca. 8,90 m², 9,64 m² und 14,27 m²), eine funktionale Küche (ca. 6,64 m²), ein Badezimmer (ca. 3,98 m²), zwei Flurbereiche sowie eine Loggia.

Vor dem Einzug der aktuellen Mieter (April) wurde die Wohnung umfassend renoviert und entsprechend den Anforderungen einer Wohngemeinschaft neu strukturiert. Dadurch ergibt sich eine sofort nutzbare und bereits etablierte Vermietungssituation.

Ausstattung & Highlights
•Optimierter Grundriss für 3-Zimmer-WG
•Frisch renoviert vor Erstbezug durch aktuelle Mieter
•Helle Räume mit effizienter Flächenaufteilung
•Loggia als zusätzlicher Aufenthaltsbereich
•Funktionale Küche und kompaktes Bad
•Kellerabteil zur Wohnung gehörig
•Gemeinschaftliche Waschküche im Haus (Nutzung gegen Entgelt)
•Sofortige Einnahmen durch bestehende Vermietung

Mietkonzept & Rendite
Die Wohnung wird aktuell als WG mit drei Zimmern vermietet:
•Pauschalmiete: 500 € pro Zimmer
•Gesamtmiete (warm): 1.500 € monatlich
•Netto-Kaltmiete: ca. 1.200 € monatlich

Attraktive Renditekennzahlen:
•Jahresnettokaltmiete: 14.400 €
•Kaufpreis: 140.000 €
•Netto-Mietrendite: ca. 12,86 % p.a.

Hausgeld:
•Monatlich: 330,69 €
•Davon Erhaltungsrücklage: 47,88 €

Damit bietet die Immobilie eine überdurchschnittlich hohe Rendite im aktuellen Marktumfeld und eignet sich ideal für renditeorientierte Kapitalanleger.

Das vorliegende WG-Konzept bietet eine krisensichere Vermietungsstrategie:
•Sehr hohe Nachfrage nach studentischem Wohnraum
•Bewährtes WG-Konzept mit optimaler Zimmeraufteilung
•Stabile und nachhaltige Vermietbarkeit
•Attraktive Zielgruppe mit kontinuierlichem Nachfragedruck
•Flexibilität bei Mieterwechseln durch Einzelzimmervermietung

Fazit
Diese Immobilie bietet eine hervorragende Gelegenheit für Kapitalanleger, die auf sofortige Einnahmen, ein erprobtes Vermietungskonzept und eine langfristig stabile Nachfrage setzen.

Die Wohnung ist ideal geeignet als pflegeleichte und renditestarke Kapitalanlage mit klarer Positionierung im Markt.

Ausstattungsmerkmale

KücheEinbauküche
Bad1
Bad (Ausstattung)Wanne
BodenTeppich, Kunststoff
Balkone1
Terrassen0
Fahrstuhl
KellerJa
Balkon, Keller, Fahrstuhl, Vollbad, Einbauküche, Teppichboden

Bemerkungen:
Zusätzlich befindet sich im Flurbereich ein großer Einbauschrank, der großen Stauraum bietet.

Die Möbel gehen auf den Köufer kostenfrei über.

Energie

D
Energieeffizienzklasse D · 105 kWh/(m²*a)
EnergieausweistypVerbrauch
EnergieeffizienzklasseD
Energieverbrauchkennwert105 kWh/(m²*a)
Heizungsart Zentralheizung
Energieträger/Befeuerung Öl

Karte wird geladen...
Moislinger Mühlenweg 21
23560 Lübeck – Schleswig-Holstein

Lage & Infrastruktur

Die Immobilie befindet sich im Stadtteil Moisling in Lübeck. Die Lage zeichnet sich durch eine gute Infrastruktur und eine schnelle Anbindung an die Lübecker Innenstadt aus. Einkaufsmöglichkeiten, öffentliche Verkehrsmittel sowie Einrichtungen des täglichen Bedarfs sind in unmittelbarer Nähe vorhanden.

Lübeck gilt als klassischer Studentenstandort mit enormem Potenzial. Die Kombination aus Hochschulen, wachsender Nachfrage und begrenztem Wohnraumangebot sorgt für eine stets sehr gute bis ausgezeichnete Vermietbarkeit – insbesondere bei durchdachten WG-Konzepten im bezahlbaren Segment.
Infrastruktur (im Umkreis von 5 km):
Apotheke, Lebensmittel-Discount, Allgemeinmediziner, Kindergarten, Grundschule, Hauptschule, Realschule, Gymnasium, Gesamtschule, Öffentliche Verkehrsmittel

Sonstige Informationen

Heizungsart: Zentralheizung
Energieträger: Öl

Dieses Exposé wurde mit größtmöglicher Sorgfalt erstellt. Bei der textlichen Ausarbeitung kam unterstützend künstliche Intelligenz (KI) zum Einsatz, um die Inhalte sprachlich ansprechend aufzubereiten. Die inhaltlichen Angaben basieren auf den vom Eigentümer bereitgestellten Informationen und wurden nach bestem Wissen geprüft.

Alle Angaben erfolgen jedoch ohne Gewähr. Irrtümer, Auslassungen, Zwischenverkauf sowie Änderungen bleiben ausdrücklich vorbehalten. Eine Haftung für die Richtigkeit oder Vollständigkeit der Angaben wird nicht übernommen.

Makleranfragen nicht erwünscht. Nach § 7 UWG sind unaufgeforderte Kontaktaufnahmen durch Makler ohne ausdrückliche Einwilligung des Empfängers verboten!

ohne-makler (OM) ist weder Anbieter noch Vermittler der Immobilie. OM betreibt eine Plattform für Immobilieneigentümer, die unter anderem die gleichzeitige Veröffentlichung einzelner Inserate auf mehreren Immobilienportalen ermöglicht. Die Inhalte dieser Inserate werden ausschließlich von Dritten verantwortet. Für die Richtigkeit, Vollständigkeit oder Rechtmäßigkeit der Angaben übernimmt OM keine Haftung. Hinweise auf mögliche Rechtsverstöße können jederzeit gemeldet werden und werden nach Prüfung umgehend bearbeitet.
Ansprechpartner/in: Privat vom Eigentümer
OM PropTech GmbH
Humboldtstraße 25a, 21509 Glinde

Weitere Angebote in Lübeck