Erstbezug mit Fußbodenheizung // Altbau trifft Neubau // Begehrte Lage

Dorotheenstraße 23 24939 Flensburg, Schleswig-Holstein
Frei ab: sofort
680 € Kaltmiete
14,78 € Preis/m² ca.
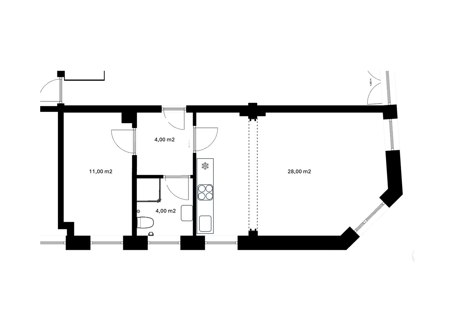
Wohnfläche
46 m²
Zimmer
2
Etage
0

Mietpreis & Nebenkosten

Kaltmiete (netto)680 €
Nebenkosten 150 €
Heizkosten150 €

Wohnfläche, Grundstück & Bausubstanz

Wohnfläche46 m²
Zimmer2
Stockwerk0
Baujahr1905
Verfügbar ab sofort
ZustandTeil Vollsaniert

Beschreibung der Immobilie

Erstbezug nach Wiederaufbau: Historischer Charme trifft modernen Neuaufbau in der Westlichen Höhe

Objektbeschreibung
Erleben Sie modernes Wohnen in einer der begehrtesten Lagen Flensburgs. In einem gepflegten, denkmalgeschützten Altbau von 1905 im Herzen der Westlichen Höhe bieten wir Ihnen eine außergewöhnliche 2-Zimmer-Wohnung an.

Nach einem umfassenden Wiederaufbau handelt es sich hierbei um einen Erstbezug. Die Wohnung verbindet die historische Seele des Gebäudes mit dem technischen Standard eines Neubaus. Auf ca. 45 m² erwartet Sie ein perfekt durchdachtes Raumkonzept, das durch Helligkeit und Hochwertigkeit besticht.

Hinweis: Die hier gezeigten Bilder sind exemplarisch generiert, da die finalen Arbeiten noch nicht vollumfänglich abgeschlossen sind. Bei baldiger Fertigstellung werden die Bilder aktualisiert. Küche und Boden realitätsnah.

Objektzustand: Erstbezug nach Sanierung

Ausstattungsmerkmale

Bad1
Bad (Ausstattung)Dusche
BodenLaminat
Duschbad, Laminat

Bemerkungen:
Modernster Komfort: Die gesamte Wohnung ist mit einer komfortablen Fußbodenheizung ausgestattet – ein seltener Luxus im Altbau.

Nachhaltigkeit: Es wurde hochwertiges Laminat verlegt, zertifiziert mit dem Blauen Engel, für ein gesundes Raumklima.

Wohnküche: Das Herzstück der Wohnung ist die offene Wohnküche mit einer neuen, modernen Einbauküche (EBK). Sie ist mit neuen Geräten ausgestattet (Kühlschrank, Herd mit Ceranfeld, Spüle).

Alles neu: Von der Elektrik über die Leitungen bis hin zu den glatt verputzten weißen Wänden – hier ist alles auf dem neuesten Stand.

Badezimmer: Modernes Bad mit hochwertigen Armaturen und bodentiefer Dusche. Verkleidet mit hochwertigen Aquapanelen ohne Fugen.

Energie

Heizungsart Zentralheizung
Energieträger/Befeuerung Fernwärme

Karte wird geladen...
Dorotheenstraße 23
24939 Flensburg – Schleswig-Holstein

Lage & Infrastruktur

Die Wohnung befindet sich in der Dorotheenstraße 23, einer der attraktivsten Wohnadressen Flensburgs. Die Westliche Höhe zeichnet sich durch ihre ruhige, grüne Atmosphäre und die wunderschöne historische Architektur aus.

Exzellente Anbindung: Komfortabler geht es kaum – eine Bushaltestelle befindet sich direkt vor der Haustür. Damit erreichen Sie den ZOB, den Bahnhof oder andere Stadtteile in kürzester Zeit, auch ohne eigenes Auto.

Zentrumsnah & Lebenswert: Die Flensburger Innenstadt mit der Holmpassage und der Hafen sind nur einen kurzen Spaziergang entfernt. Sämtliche Einrichtungen des täglichen Bedarfs – Supermärkte, gemütliche Cafés, Ärzte und Apotheken – befinden sich in der unmittelbaren Nachbarschaft.

Freizeit & Natur: Der nahegelegene Stadtpark und die grünen Alleen des Viertels laden zu entspannten Spaziergängen ein.

Hier wohnen Sie ruhig und stilvoll, ohne auf die Vorzüge des urbanen Lebens verzichten zu müssen.
Infrastruktur (im Umkreis von 5 km):
Apotheke, Lebensmittel-Discount, Allgemeinmediziner, Kindergarten, Grundschule, Hauptschule, Realschule, Gymnasium, Gesamtschule, Öffentliche Verkehrsmittel

Sonstige Informationen

Heizungsart: Zentralheizung
Energieträger: Fernwärme
Energieausweis nicht vorhanden


Makleranfragen nicht erwünscht. Nach § 7 UWG sind unaufgeforderte Kontaktaufnahmen durch Makler ohne ausdrückliche Einwilligung des Empfängers verboten!

ohne-makler (OM) ist weder Anbieter noch Vermittler der Immobilie. OM betreibt eine Plattform für Immobilieneigentümer, die unter anderem die gleichzeitige Veröffentlichung einzelner Inserate auf mehreren Immobilienportalen ermöglicht. Die Inhalte dieser Inserate werden ausschließlich von Dritten verantwortet. Für die Richtigkeit, Vollständigkeit oder Rechtmäßigkeit der Angaben übernimmt OM keine Haftung. Hinweise auf mögliche Rechtsverstöße können jederzeit gemeldet werden und werden nach Prüfung umgehend bearbeitet.
Ansprechpartner/in: Privat von Nordhouse
OM PropTech GmbH
Humboldtstraße 25a, 21509 Glinde

Weitere Angebote in Flensburg