Charmante 2,5-Zimmer Wohnung mit Balkon in Berlin-Tempelhof

Alarichstaße 3A 12105 Berlin, Berlin
Frei ab: sofort
1.750 € Kaltmiete
25,36 € Preis/m² ca.
Wohnfläche
69 m²
Zimmer
2,5
Etage
1
Einbauküche
Balkon
Terrasse
Keller

Mietpreis & Nebenkosten

Kaltmiete (netto)1.750 €
Nebenkosten 150 €

Wohnfläche, Grundstück & Bausubstanz

Wohnfläche69 m²
Zimmer2,5
Stockwerk1
Baujahr1935
Verfügbar ab sofort
ZustandTeil Vollsaniert

Beschreibung der Immobilie

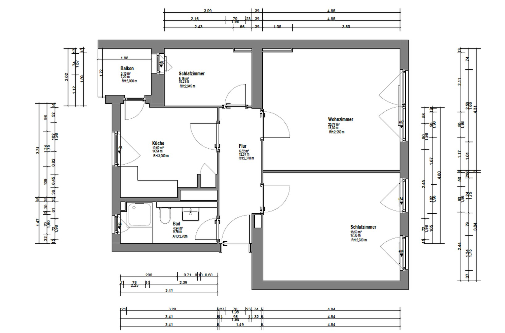
Diese charmante und gut geschnittene 2,5-Zimmer-Wohnung mit ca. 69 m² Wohnfläche befindet sich im 1. Obergeschoss eines gepflegten Mehrfamilienhauses in ruhiger Lage von Berlin-Tempelhof.

Der durchdachte Grundriss bietet eine ideale Raumaufteilung: Vom zentral gelegenen Flur aus sind alle Räume bequem erreichbar. Das großzügige Wohnzimmer überzeugt durch viel Tageslicht und bietet ausreichend Platz für einen Wohn- und Essbereich. Das Schlafzimmer ist ruhig gelegen und ermöglicht erholsamen Schlaf.

Die separate Küche verfügt über ausreichend Platz und Funktionalität für den Alltag. Das Badezimmer ist kompakt und praktisch gestaltet.

Ein besonderes Highlight ist der Balkon, der zusätzlichen Wohnkomfort bietet und zum Entspannen im Freien einlädt. Ergänzt wird das Angebot durch einen eigenen Kellerraum, der zusätzlichen Stauraum schafft.

Die Wohnung eignet sich ideal für Singles oder Paare, die eine gut angebundene und gleichzeitig ruhige Wohnlage in Berlin suchen.

Ausstattungsmerkmale

KücheEinbauküche
Bad1
Balkone1
Terrassen0
KellerJa
Balkon, Keller, Einbauküche

Bemerkungen:
Modernisierte Wohnung mit hochwertigem Vinylboden in allen Wohnräumen und glatt gespachtelten Wänden.

Großzügiges Wohnzimmer sowie zwei gut geschnittene Schlafzimmer – ideal auch für eine 2er-WG oder Homeoffice.

Separate Küche mit Einbauküche und Zugang zum Balkon.

Modern gefliestes Bad mit Dusche und Handtuchheizkörper.

Große Fenster sorgen für viel Tageslicht und eine angenehme Wohnatmosphäre.

Energie

EnergieausweistypBedarfsausweis
Endenergiebedarf82
Energieträger/Befeuerung Gas

Karte wird geladen...
Alarichstaße 3A
12105 Berlin – Berlin

Lage & Infrastruktur

Die Wohnung befindet sich in der Alarichstraße in Berlin-Tempelhof mit sehr guter Infrastruktur. Einkaufsmöglichkeiten (REWE, Edeka, Lidl) sind in ca. 5–10 Minuten, Bäckereien und Cafés in ca. 3–5 Minuten fußläufig erreichbar. Restaurants sowie Ärzte und Apotheken liegen ebenfalls in ca. 5–10 Minuten Entfernung. Das Tempelhofer Feld erreichen Sie in ca. 10–15 Minuten zu Fuß.

Die Anbindung an den öffentlichen Nahverkehr ist optimal: Buslinien sind in ca. 2–3 Minuten erreichbar, die U-Bahn-Station Alt-Tempelhof (U6) in ca. 8–10 Minuten und die S-Bahn-Station Tempelhof (Ringbahn) in ca. 10–12 Minuten fußläufig.

Die Kombination aus ruhigem Wohnumfeld und hervorragender Anbindung macht diese Lage besonders attraktiv.
Infrastruktur (im Umkreis von 5 km):
Apotheke, Lebensmittel-Discount, Allgemeinmediziner, Öffentliche Verkehrsmittel

Sonstige Informationen

Energieträger: Gas

Sonstiges

Die Kaltmiete beträgt 1.750 € zzgl. 150 € Nebenkosten.
Die Kaution beträgt 5.250 €.

Voraussetzung für die Anmietung ist ein monatliches Nettoeinkommen von mindestens 4.500 € (bei Paaren mindestens 5.500 €) sowie eine positive Schufa-Auskunft.

Besichtigungen finden am Samstag 18.04. zwischen 16:00 – 19:00 Uhr sowie am Sonntag zwischen 09:00 – 12:00 Uhr statt.

Bitte senden Sie vorab eine kurze Anfrage mit Angaben zu Ihrer finanziellen Situation. Im Anschluss werden passende Besichtigungstermine innerhalb der genannten Zeitfenster vergeben.

Makleranfragen nicht erwünscht. Nach § 7 UWG sind unaufgeforderte Kontaktaufnahmen durch Makler ohne ausdrückliche Einwilligung des Empfängers verboten!

ohne-makler (OM) ist weder Anbieter noch Vermittler der Immobilie. OM betreibt eine Plattform für Immobilieneigentümer, die unter anderem die gleichzeitige Veröffentlichung einzelner Inserate auf mehreren Immobilienportalen ermöglicht. Die Inhalte dieser Inserate werden ausschließlich von Dritten verantwortet. Für die Richtigkeit, Vollständigkeit oder Rechtmäßigkeit der Angaben übernimmt OM keine Haftung. Hinweise auf mögliche Rechtsverstöße können jederzeit gemeldet werden und werden nach Prüfung umgehend bearbeitet.
Ansprechpartner/in: Privat von VermietungsserviceWecking
OM PropTech GmbH
Humboldtstraße 25a, 21509 Glinde

Weitere Angebote in Berlin