Historischer Bauernhof mit 4 Wohneinheiten & Stall – Leben, Arbeiten, Vermieten nahe Köln & Bonn

53804 Much, Nordrhein-Westfalen
Frei ab: nach Absprache
980.000 € Kaufpreis
Wohnfläche
474 m²
Zimmer
17
Einbauküche
Balkon
Terrasse
Garten
Keller

Kaufpreis

Kaufpreis 980.000 €
Maklerprovisionkeine Provision, courtagefrei

Wohnfläche, Grundstück & Bausubstanz

Wohnfläche474 m²
Grundstücksfläche1.880 m²
Zimmer17
Etagen3
Baujahr1703
Verfügbar ab nach Absprache
ZustandGepflegt

Beschreibung der Immobilie

Der besonders schöne Hof ist in ruhiger Lage nahe Köln und Bonn!
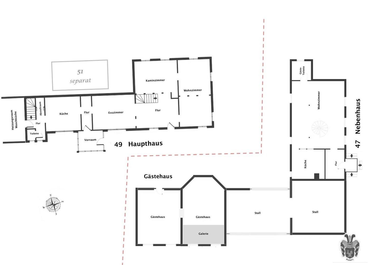
Wohnen, Arbeiten und Hobby, vereint auf einem idyllischen Bauernhof, dessen Ursprung um 1700 liegt. Diese wunderschöne und romantische Wohlfühloase wurde laufend zeit- und zweckmäßig aus- und umgebaut. Er besteht aus 3 Parzellen, deshalb ist auch der Kauf nur des Haupthauses mit Option auf mehr möglich.

Der Hof besteht aus dem Haupthaus, sowie aus dem L-förmigen Nebengebäude. Diese umrahmen den idyllischen Innenhof.
Der angrenzende, uneinsehbare sonnige Garten befindet sich in absoluter Südlage mit einem freien Blick über Wiesen und Felder. Eine majestätische Birke spendet Schatten und lädt zum Verweilen ein.

Das Haupthaus (49) besteht aus 222 Quadratmeter Wohnfläche, die Küche sowie, Diele, Haushaltsraum, Vorratskammer, Gästetoilette, Esszimmer, Wohnzimmer, Kaminzimmer, befinden sich im Erdgeschoss. Vier Zimmer mit Holzböden und zwei Bäder sind auf der ersten Etage und ein Duschbad mit Ankleideraum und Schlafzimmer im Dachgeschoss.

Das vermietete Nebenhaus (47a) hat 100 Quadratmeter auf zwei Etagen. Im Erdgeschoss Wohnzimmer mit Gäste-WC und eingebauter Küche, sowie schmuckvoller repräsentativer Kunstschmiedetreppe, die nach oben führt. Im Obergeschoss sind Schlafzimmer, sowie ein schmuckvolles Badezimmer mit Wanne. Das Haus wurde erst 2021 vollkommen neugestaltet und renoviert. Dazu gehört ein kleiner Garten und ein Stellplatz.

Daneben ein Stall mit Lagerfläche, Heuboden und Boxen für bis zu 2-4 Pferde, mit Unterstand und kleinen Reitplatz (14x18m).

Rechts davon das Gästehaus mit einer Größe von 72 Quadratmeter. Bestehend aus Küche, kleinem Flur, Duschbad und einem hellen Wohn-Esszimmer mit einer wunderschönen Aussicht nach Süden plus einer Empore. Vom Flur geht eine Treppe hoch zu einem weiteren Raum mit einer großen Glasfront.

Das idyllisch über 1.880 Quadratmeter (49 - 605qm, 47a+b 1.067qm, 51 - 208qm) große Grundstück befindet sich in absoluter Südlage mit altem Baumbestand. Sie finden dort eine romantische Lebensqualität in einem gewachsenem nachbarschaftlichen guten Umfeld.

Das Nebenhaus (51) wurde 2015 vollkommen saniert und verfügt über 80 qm², die sich über vier Zimmer Küche, Diele, Gäste-WC und Wannenbad verteilen und das über drei Etagen. Auch dieses Haus ist sehr gut vermietet.
Vor dem Haus liegt ein Garten von 120qm plus zwei Stellplätzen.

Ausstattungsmerkmale

KücheEinbauküche
Bad6
Bad (Ausstattung)Dusche, Wanne
BodenFliesen, Teppich, Laminat
Balkone0
Terrassen1
GartenJa
KellerJa
Terrasse, Garten, Keller, Vollbad, Duschbad, Einbauküche, Gäste-WC, Kamin, Laminat, Teppichboden, Fliesen, Sonstiges (s. Text)

Bemerkungen:
Der selten schöne Bauernhof verfügt über 4 Wohnhäuser, die alle zentral beheizt werden. Außer dem Gästehaus haben alle Häuser auch einen Kaminofen, der jeweils mit Holz befeuert wird.

Die beiden Nebenhäuser sind gut vermietet. Das Haupthaus wird zur Zeit von uns selbst bewohnt. Das 72qm große Gästehaus wurde gerade fertiggestellt und ist noch frei.

Energie

F
Energieeffizienzklasse F · 197 kWh/(m²*a)
EnergieausweistypBedarfsausweis
EnergieeffizienzklasseF
Endenergiebedarf197
Heizungsart Zentralheizung
Energieträger/Befeuerung Öl

Karte wird geladen...
53804 Much – Nordrhein-Westfalen

Lage & Infrastruktur

Die Immobilie befindet sich in ruhiger Lage eines kleinen Ortsteils der Gemeinde Much – eingebettet in eine naturnahe Landschaft aus Wiesen, Feldern und Wäldern. Hier genießen Sie die Ruhe des Landlebens und gleichzeitig die Sicherheit und Verlässlichkeit einer gewachsenen Dorfgemeinschaft.
Leben, wo die Welt noch in Ordnung ist.

Hier finden zahlreiche gemeinschaftliche Aktivitäten statt, wie zum Beispiel ein monatliches Dorftreffen und das jährliche Erntefest und vieles mehr. Neubürger werden herzlich aufgenommen.

Im 4 Kilometer naheliegende Much befindet sich ein schönes Waldfreibad, ein Sportplatz, Tennisplätze und ein Golfklub mit einer 18-Loch Meisterschaftsanlage.

Die Gemeinde verfügt über Grundschulen, Hauptschule, Realschule und Gesamtschule sowie über eine Zweigstelle der Volkshochschule und eine private Musikschule.
Die Schulen werden mit dem Schulbus angefahren.

Darüber hinaus ist Much mit allen notwendigen Ärzten und sogar ein Notarztstützpunkt versorgt. Krankenhäuser befinden sich in direkter Nähe - Siegburg, Engelskirchen und Gummersbach.

Darüber hinaus verfügt Much über ausreichend Geschäfte und viele Märkte (Supermarkt, Discounter, Drogeriemarkt, Modegeschäft, Optiker, Bank, Restaurants, Grill, Pizzeria, China-Imbiss uvm.)

Autobahnanbindung zur A4 finden Sie in ca. 8 Minuten.
Das nahegelegen Overath bietet Ihnen mit dem komfortablen P&R-Bahnhof eine schnelle und komfortable Anbindung an Köln.
Ebenso findet man alles zum Einkaufen in dem nur ungefähr 3 Kilometer entfernten Drabenderhöhe.
Infrastruktur (im Umkreis von 5 km):
Apotheke, Lebensmittel-Discount, Allgemeinmediziner, Kindergarten, Grundschule, Hauptschule, Realschule, Gesamtschule, Öffentliche Verkehrsmittel

Sonstige Informationen

Heizungsart: Zentralheizung
Energieträger: Öl

Der Hof besteht aus 3 separaten Parzellen (47, 49 und 51). Diese können jeweils auch separat erworben werden.

Makleranfragen nicht erwünscht. Nach § 7 UWG sind unaufgeforderte Kontaktaufnahmen durch Makler ohne ausdrückliche Einwilligung des Empfängers verboten!

ohne-makler (OM) ist weder Anbieter noch Vermittler der Immobilie. OM betreibt eine Plattform für Immobilieneigentümer, die unter anderem die gleichzeitige Veröffentlichung einzelner Inserate auf mehreren Immobilienportalen ermöglicht. Die Inhalte dieser Inserate werden ausschließlich von Dritten verantwortet. Für die Richtigkeit, Vollständigkeit oder Rechtmäßigkeit der Angaben übernimmt OM keine Haftung. Hinweise auf mögliche Rechtsverstöße können jederzeit gemeldet werden und werden nach Prüfung umgehend bearbeitet.
Ansprechpartner/in: Privat von Karl Werner Schmitz
OM PropTech GmbH
Humboldtstraße 25a, 21509 Glinde

Weitere Angebote in Much