Vermietete 3 Zimmer Dachgeschosswohnung im Essener Südviertel

45128 Essen, Nordrhein-Westfalen
Frei ab: nach Absprache
115.000 € Kaufpreis
Wohnfläche
41 m²
Zimmer
3
Etage
3
Keller

Kaufpreis

Kaufpreis 115.000 €
Hausgeld246 €
Maklerprovisionkeine Provision, courtagefrei

Wohnfläche, Grundstück & Bausubstanz

Wohnfläche41 m²
Zimmer3
Stockwerk3
Baujahr1954
Verfügbar ab nach Absprache
ZustandGepflegt

Beschreibung der Immobilie

Zum Verkauf steht eine vermietete Dachgeschosswohnung im beliebten Essener Südviertel an
der Grenze zu Rüttenscheid. Die Wohnung befindet sich in einem Mehrfamilienhaus (Baujahr
1954) mit 11 Wohnungen und verfügt laut Grundbuch über ca. 41 m² Wohnfläche. De facto
seien es laut eines Architekten ca. 46-49 qm, wenn man die Gauben richtig berücksichtigt
würde.
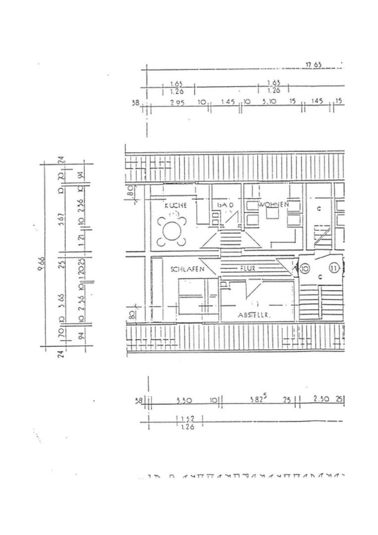
Die Raumaufteilung ist funktional: Wohnzimmer, Schlafzimmer, separate Küche,
Tageslichtbad mit Badewanne sowie ein weiterer Raum, der derzeit als kleines Kinderzimmer
genutzt wird. Alle Räume sind über die Diele erreichbar. Die Wohnräume sind mit
Laminatboden ausgestattet. Die Beheizung erfolgt über eine Gasetagenheizung.
Zur Wohnung gehört ein eigener Kellerraum. Im Haus stehen außerdem eine
gemeinschaftliche Waschküche und ein Trockenraum zur Verfügung.
Nette Eigentümergemeinschaft, viele Kapitalanleger.
Miet- und Ertragssituation
Die Wohnung ist unbefristet vermietet.
• Kaltmiete: 500 € / Monat
• Betriebskostenvorauszahlung: 80 € / Monat
(nicht kostendeckend, es kommt regelmäßig zu Nebenkostennachzahlungen)
• Hausgeld: 248 € / Monat
Die Mieterin ist eine geflüchtete Person mit Kind.
Die laufende Miete sowie die Nebenkostennachzahlungen werden durch die Stadt Essen
übernommen, was zu einer stabilen und planbaren Einnahmesituation führt.
Eckdaten für Investoren
• Wohnfläche: ca. 41 m² (+)
• 2 Zimmer
• Dachgeschoss
• Baujahr Gebäude: 1954
• Gasetagenheizung (neu in 2023)
• Vermietet
• Öffentliche Mietzahlung (Stadt Essen)
Energieausweis (Pflichtangaben)
• Energieausweistyp: Bedarfsausweis
• Endenergiebedarf: 218,4 kWh/(m²·a)
• Energieträger: Erdgas
• Energieausweis gültig bis: 25.07.2030

Dateien


Ausstattungsmerkmale

BodenLaminat
KellerJa
Keller, Laminat

Energie

G
Energieeffizienzklasse G · 218 kWh/(m²*a)
EnergieausweistypBedarfsausweis
EnergieeffizienzklasseG
Endenergiebedarf218
Heizungsart Etagenheizung
Energieträger/Befeuerung Gas

Karte wird geladen...
45128 Essen – Nordrhein-Westfalen

Lage & Infrastruktur

Die Wohnung liegt im Essener Südviertel, einem etablierten und nachgefragten Stadtteil mit
sehr guter Infrastruktur. Einkaufsmöglichkeiten, Dienstleistungen und Gastronomie sind
fußläufig erreichbar. Die Wohnung liegt an der Grenze zu Rüttenscheid. Die Rüttenscheider
Straße ist in ca. 500m, also wenigen Minuten zu Fuß erreichbar.
Sehr gute Anbindung an den öffentlichen Nahverkehr sowie an die Autobahnen A40 und A52.
Die Lage ist dauerhaft sehr gut vermietbar.
Infrastruktur (im Umkreis von 5 km):
Apotheke, Lebensmittel-Discount, Allgemeinmediziner, Kindergarten, Grundschule, Hauptschule, Realschule, Gymnasium, Gesamtschule, Öffentliche Verkehrsmittel

Sonstige Informationen

Heizungsart: Etagenheizung
Energieträger: Gas

Eine Besichtigung ist nach Absprache möglich. Bei Interesse bitte mitteilen, ob man sich für
die Wohnung als Eigennutzer / Kapitalanleger interessiert und wie die Finanzierung
sichergestellt wird.
Dieses Angebot ist provisionsfrei, bitte keine Makleranfragen.

Makleranfragen nicht erwünscht. Nach § 7 UWG sind unaufgeforderte Kontaktaufnahmen durch Makler ohne ausdrückliche Einwilligung des Empfängers verboten!

ohne-makler (OM) ist weder Anbieter noch Vermittler der Immobilie. OM betreibt eine Plattform für Immobilieneigentümer, die unter anderem die gleichzeitige Veröffentlichung einzelner Inserate auf mehreren Immobilienportalen ermöglicht. Die Inhalte dieser Inserate werden ausschließlich von Dritten verantwortet. Für die Richtigkeit, Vollständigkeit oder Rechtmäßigkeit der Angaben übernimmt OM keine Haftung. Hinweise auf mögliche Rechtsverstöße können jederzeit gemeldet werden und werden nach Prüfung umgehend bearbeitet.
Ansprechpartner/in: Privat von Max Raschke
OM PropTech GmbH
Humboldtstraße 25a, 21509 Glinde

Weitere Angebote in Essen