Attraktives Mehrfamilienhaus in Münster Mauritz gute Kapitalanlage provisionsfrei zu verkaufen!

48145 Münster, Nordrhein-Westfalen
Frei ab: nach Absprache
1.299.900 € Kaufpreis
Wohnfläche
300 m²
Zimmer
12
Balkon
Terrasse
Keller

Kaufpreis

Kaufpreis 1.299.900 €
Maklerprovisionkeine Provision, courtagefrei

Wohnfläche, Grundstück & Bausubstanz

Wohnfläche300 m²
Grundstücksfläche270 m²
Zimmer12
Etagen4
Baujahr1948
Verfügbar ab nach Absprache
ZustandGepflegt

Beschreibung der Immobilie

FREIESLEBEN-IMMOBILIEN präsentiert Ihnen dieses attraktive Mehrfamilienhaus mit vier Wohnungen in zentraler Lage des beliebten Münster-Mauritz - gut geeignet auch für die Vermietung an Studenten!

Das gepflegte Haus wurde im Jahr 1948 in massiver Bauweise und teilweise unterkellert auf einem eigenen Grundstück errichtet.

Im Jahr 2015 wurde es komplett renoviert, Fenster, Elektrik und Bäder wurden erneuert.

Im Jahr 2017 wurde dann das Dachgeschoss mit Balkonen ausgebaut und das Dach komplett erneuert.

Aufgeteilt ist das Haus in vier Wohnungen mit insgesamt ca. 300m² Wohnfläche.

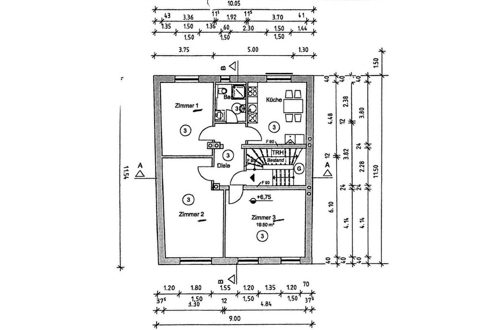
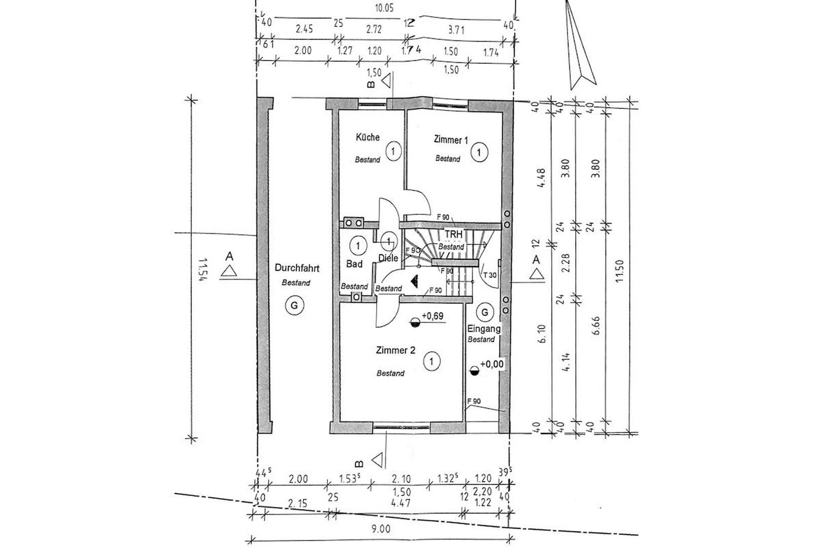
Die Wohnung im Erdgeschoss bietet zwei Zimmer, eine Küche, ein Duschbad und eine Diele.

Die Wohnung im 1. Obergeschoss bietet 3 Zimmer, eine große Küche, ein Tageslicht-Duschbad und eine Diele.

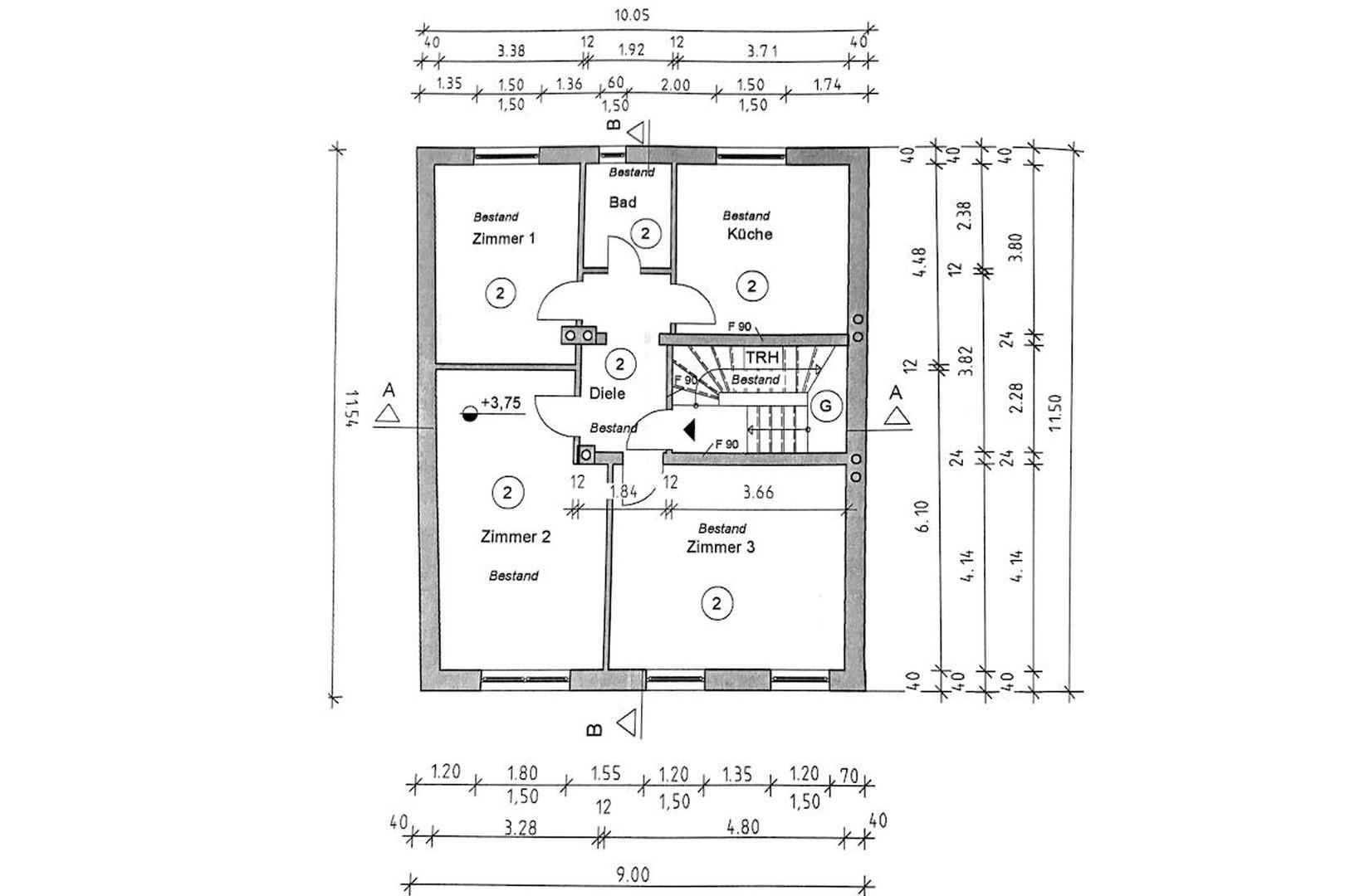
Die Wohnung im 2. Obergeschoss bietet ebenfalls 3 Zimmer, eine große Küche, ein Tageslicht-Duschbad und eine Diele.

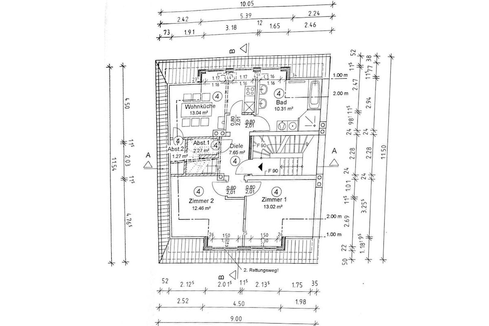
Die Wohnung im Dachgeschoss ist doppelstöckig. Im unteren Teil des Dachgeschosses bietet die Wohnung 2 Zimmer, eine Wohnküche, ein Tageslicht-Badezimmer, eine Diele und zwei Abstellräume. Im oberen Teil des Dachgeschosses bietet die Wohnung 2 Zimmer jeweils mit eigenem Balkon.

Alle Wohnungen sind derzeit vermietet. Zum Teil sind Zimmer in den Wohnungen mit gemeinsamer Nutzung der Küche und des Bads an Studenten vermietet, wodurch eine gute Rendite erzielbar ist.

Im Kellergeschoss des Hauses befinden sich 4 Abstellräume, jeweils einer pro Wohnung, ein Gemeinschafts-Waschraum und ein Flur.

Im Erdgeschoss des Hauses ist neben der Erdgeschosswohnung eine Durchfahrt zur Nutzung des dahinter liegenden Hauses durch dessen Besitzer.

Die monatliche IST-Miete beträgt: 3.700,-€ monatlich kalt.


Sie möchten sofort besichtigen?
Dann senden Sie uns bitte eine Anfrage über das Kontaktformular oder per eMail, wir kontaktieren Sie umgehend.

Schriftliche Anfragen werden deutlich schneller bearbeitet als telefonische Anfragen!

PROVISIONSFREI FÜR DEN KÄUFER

Ausstattungsmerkmale

Bad4
Bad (Ausstattung)Dusche, Wanne
BodenFliesen, Teppich
Balkone1
Terrassen0
KellerJa
Balkon, Keller, Vollbad, Duschbad, Teppichboden, Fliesen

Bemerkungen:
- Attraktives Mehrfamilienhaus
- 4 Wohnungen
- Gut geeignet auch für die Vermietung an Studenten
- Ca. 300m² Wohnfläche
- Baujahr 1948
- Massive Bauweise
- Teilweise unterkellert
- Komplette Renovierung im Jahr 2015 (Fenster, Elektrik und Bäder)
- Erweiterung des Dachgeschosses mit Balkonen Erneuerung des Daches im Jahr 2017

Karte wird geladen...
48145 Münster – Nordrhein-Westfalen

Lage & Infrastruktur

Das schicke Mehrfamilienhaus befindet sich in einem beliebten Wohngebiet in zentraler Lage von Münster Mauritz.

Sämtliche Einrichtungen wie Geschäfte für den täglichen Bedarf, Ärzte, Schulen und der Hafen mit Restaurants und Kinocenter liegen in fußläufiger Entfernung.

Nahe gelegene Wege am Dortmund-Ems-Kanal laden zu Spaziergängen ein.

Mit dem PKW ist man schnell auf der B51, welche mit dem Anschluss an die A43 einen zügigen Zugang zum Autobahnnetz bietet.
Infrastruktur (im Umkreis von 5 km):
Apotheke, Lebensmittel-Discount, Allgemeinmediziner, Kindergarten, Grundschule, Hauptschule, Realschule, Gymnasium, Gesamtschule, Öffentliche Verkehrsmittel

Sonstige Informationen

Energieausweis nicht vorhanden

Dies ist ein freibleibendes Angebot der
FREIESLEBEN GmbH,
Domplatz 40
48143 Münster
Tel.: 0251 - 39 444 998


Sie können uns MONTAG bis SONNTAG
von 7:00 Uhr bis 22:00 Uhr telefonisch erreichen. Am Wochenende bieten wir Ihnen zusätzlich unseren Service für Immobilienbewertungen, Objektbesichtigungen und das Persönliche-Kennenlernen.


Hinsichtlich des Objektes sind wir auf die Auskünfte der Eigentümer und Behörden angewiesen. Für die Richtigkeit und Vollständigkeit der Angaben kann keine Haftung übernommen werden. Darüber hinaus kann für das Objekt keine Gewähr übernommen und für die Liquidität der Vertragspartner nicht gehaftet werden.


Sie möchten Ihre Immobilie auch professionell vermarkten lassen?
- Nutzen Sie unseren kostenfreien Service und lassen den aktuellen Wert Ihrer Immobilie durch einen unserer Immobilienspezialisten schätzen.
- Optimieren Sie die Verkaufschancen Ihrer Immobilie, indem wir einen speziell auf Ihr Objekt abgestimmten Vermarktungsplan erstellen.
- Nutzen Sie unser hervorragendes, bundesweites Netzwerk um Ihnen Kaufinteressenten zeitnah zuzuführen. 100te Interessenten warten auf Sie!

Rufen Sie uns an, wir freuen uns auf Sie!

Zentrale Münsterland: Tel.: 0251 - 39 444 998
Zentrale Ruhrgebiet: Tel.: 0234 - 92 56 98 00

Makleranfragen nicht erwünscht. Nach § 7 UWG sind unaufgeforderte Kontaktaufnahmen durch Makler ohne ausdrückliche Einwilligung des Empfängers verboten!

ohne-makler (OM) ist weder Anbieter noch Vermittler der Immobilie. OM betreibt eine Plattform für Immobilieneigentümer, die unter anderem die gleichzeitige Veröffentlichung einzelner Inserate auf mehreren Immobilienportalen ermöglicht. Die Inhalte dieser Inserate werden ausschließlich von Dritten verantwortet. Für die Richtigkeit, Vollständigkeit oder Rechtmäßigkeit der Angaben übernimmt OM keine Haftung. Hinweise auf mögliche Rechtsverstöße können jederzeit gemeldet werden und werden nach Prüfung umgehend bearbeitet.
Ansprechpartner/in: Angebot von Joachim Freiesleben - Gerfried Gogolin
OM PropTech GmbH
Humboldtstraße 25a, 21509 Glinde

Weitere Angebote in Münster