Moderne 3 Zimmerwohnung im Zentrum

28857 Syke, Niedersachsen
Frei ab: 01.09.2026
880 € Kaltmiete
11,58 € Preis/m² ca.
Wohnfläche
76 m²
Zimmer
3
Etage
2
Einbauküche
Balkon
Terrasse
Keller

Mietpreis & Nebenkosten

Kaltmiete (netto)880 €
Nebenkosten 200 €
Heizkosten enthaltenJa
Kaution 1.760 €

Wohnfläche, Grundstück & Bausubstanz

Wohnfläche76 m²
Zimmer3
Etagen3
Stockwerk2
Baujahr1991
Verfügbar ab 01.09.2026
ZustandTeil Vollsaniert

Beschreibung der Immobilie

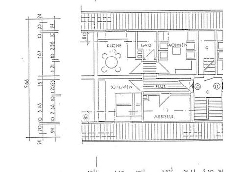
Die sanierte Wohnung umfasst 3 Zimmer auf 76m² und befindet sich im 2. Obergeschoss . Die räumliche Aufteilung der Zimmer erlaubt eine flexible Raumplanung und ist somit für diverse Lebenssituationen anpassbar.

Die Wohnung inkludiert eine neuwertige Einbauküche samt Elektrogeräten (incl. Spülmaschine). Das geflieste Badezimmer bietet eine barrierefreie Dusche und gut erhalten Schränke.
Die Fenster der gesamten Wohnung wurden erneuert und durch eine 3x verglaste Variante ersetzt. Die Wände sind frisch gestrichen. Zusätzlich hat die Wohnung einen Balkon, einen Tiefgaragenplatz und ein Kellerzimmer.

Dateien


Ausstattungsmerkmale

KücheEinbauküche
Bad (Ausstattung)Wanne
BodenFliesen, Laminat
Balkone1
Terrassen0
KellerJa
Balkon, Keller, Vollbad, Einbauküche, Laminat, Fliesen

Bemerkungen:
2. Obergeschoss
76 m² Wohnfläche
2 Schlafräume oder 1 Schlafzimmer je nach Bedarf
Küche neu gefliest
Neuwertige Einbauküche samt Elektrogeräten (incl. Spülmaschine)
Balkon
Neue 3-fach verglaste Fenster
Tiefgaragenplatz
Saniertes Badezimmer mit barrierefreier Dusche
Saniertes Kellerzimmer

Energie

C
Energieeffizienzklasse C · 82 kWh/(m²*a)
EnergieausweistypVerbrauch
EnergieeffizienzklasseC
Energieverbrauchkennwert82 kWh/(m²*a)
Heizungsart Zentralheizung

Karte wird geladen...
28857 Syke – Niedersachsen

Lage & Infrastruktur

Das Gebäude befindet sich in zentraler Lage. Der Bahnhof und die Schulen der Stadt sind fußläufig zu erreichen. Die Wohnung ist somit hervorragend angebunden.

Syke ist die größte Stadt und drittgrößte Kommune im niedersächsischen Landkreis Diepholz. Die Stadt liegt etwa 19 Kilometer südlich von Bremen und ist hierbei günstig angeschlossen. So gelangt man einfach über die B6 mit Auto oder über den Syker Bahnhof nach Bremen und Umland. Syke wird von der Hache durchflossen und als „Stadt im Grünen“ bezeichnet. Die Stadt wird von den etwa 900 Hektar großen Staatsforsten Friedeholz und Westermark geprägt, die bei einem schönen Wetter zu einem Besuch einladen.

Kindergärten in Syke: Kunterbunt; Städtischer Kindergarten; Deutsches Rotes Kreuz; Sonnenstrahl eV luth. Kindergarten und St. Paulus Kindergarten

Schulen in Syke: Grundschule Syke; Gymnasium Syke; Realschule Syke; Berufsbildende Schule (BBS) Syke inkl. Fachoberschule und Fachgymnasium

Vereine: Diverse Angebote an Turn- und Sportvereinen in Syke und anliegenden Ortschaften

Verkehrsanbindungen: Bahnhof Syke (Bremen-Osnabrück) und gut ausgebautes Straßennetz mit schneller Anbindung an die B6 und BAB 1
Infrastruktur (im Umkreis von 5 km):
Apotheke, Lebensmittel-Discount, Allgemeinmediziner, Kindergarten, Grundschule, Hauptschule, Realschule, Gymnasium, Gesamtschule, Öffentliche Verkehrsmittel

Sonstige Informationen

Heizungsart: Zentralheizung


Makleranfragen nicht erwünscht. Nach § 7 UWG sind unaufgeforderte Kontaktaufnahmen durch Makler ohne ausdrückliche Einwilligung des Empfängers verboten!

ohne-makler (OM) ist weder Anbieter noch Vermittler der Immobilie. OM betreibt eine Plattform für Immobilieneigentümer, die unter anderem die gleichzeitige Veröffentlichung einzelner Inserate auf mehreren Immobilienportalen ermöglicht. Die Inhalte dieser Inserate werden ausschließlich von Dritten verantwortet. Für die Richtigkeit, Vollständigkeit oder Rechtmäßigkeit der Angaben übernimmt OM keine Haftung. Hinweise auf mögliche Rechtsverstöße können jederzeit gemeldet werden und werden nach Prüfung umgehend bearbeitet.
Ansprechpartner/in: Privat vom Eigentümer
OM PropTech GmbH
Humboldtstraße 25a, 21509 Glinde

Weitere Angebote in Syke