**Familiennest in Kirchrode: Wo Liebe und Lachen wohnen in begehrter Lage mit Klinkeraktion!!*

30625 Hannover
Frei ab: 2026
1.344.250 € Kaufpreis
Wohnfläche
117,65 m²
Zimmer
4
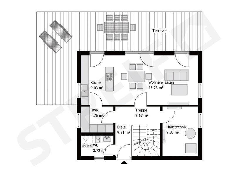
Offene Küche
Terrasse

Kaufpreis

Kaufpreis 1.344.250 €

Wohnfläche, Grundstück & Bausubstanz

Wohnfläche117,65 m²
Nutzfläche25 m²
Grundstücksfläche970 m²
Zimmer4
Etagen2
Baujahr2026
Verfügbar ab 2026
ZustandProjektiert

Beschreibung der Immobilie

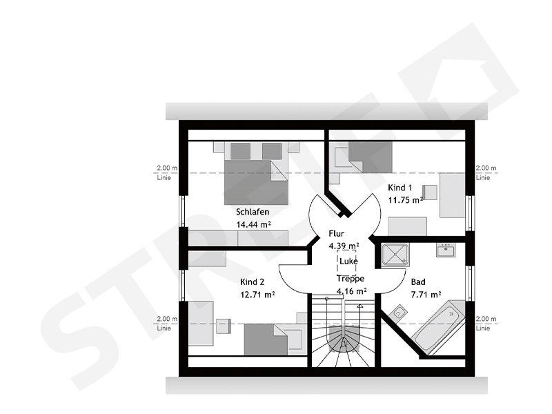
Willkommen in Ihrem zukünftigen Traumhaus in Hannover/Kleefeld! Dieses individuell projektierte Einfamilienhaus, das ganz nach Ihren Wünschen gestaltet wird, bietet Ihnen mit 4 Zimmern und einer großzügigen Wohnfläche von 117,65 m² ausreichend Platz für die ganze Familie. Auf einem weitläufigen Grundstück von 970 m² erstreckt sich das Haus über zwei Etagen und verfügt über vier Schlafzimmer, zwei Badezimmer sowie ein zusätzliches Gäste-WC. Das highlight ist das Badezimmer, das mit einer Dusche, einer Wanne und einem Fenster ausgestattet ist und somit für eine angenehme Licht- und Luftdurchlässigkeit sorgt. Die Umsetzung Ihres Bauvorhabens erfolgt schnell und effizient, damit Sie bereits bald in Ihr neues Zuhause einziehen können.

Ausstattungsmerkmale

KücheOffene Küche
Bad2
Bad (Ausstattung)Dusche, Wanne, Fenster
BodenFliesen
Terrassen1
Das Haus bietet eine gehobene Ausstattung, die höchsten Ansprüchen gerecht wird. Die Bodenbeläge können flexibel gestaltet werden, wobei Fliesen sowie individuelle Anpassungen nach Wunsch möglich sind. Fliesen sind nicht nur pflegeleicht und langlebig, sondern bieten auch eine moderne und elegante Optik. Die Beheizung erfolgt durch eine energiesparende Wärmepumpe, die nicht nur umweltfreundlich ist, sondern auch Ihre Energiekosten im Vergleich zu herkömmlichen Heizmethoden erheblich senken kann. Zudem entspricht der Energietyp dem KFW40 Standard, was Ihnen eine hohe Energieeffizienz garantiert.

Energie

Energietyp KfW-40
Heizungsart Zentralheizung
Energieträger/Befeuerung Luft-Wärme-Pumpe

Karte wird geladen...
30625 Hannover

Lage & Infrastruktur

Das Einfamilienhaus befindet sich in einem ruhigen Wohngebiet in Hannover/Kleefeld. Die Umgebung bietet eine ausgezeichnete Infrastruktur mit zahlreichen Annehmlichkeiten für alle Lebenslagen. In unmittelbarer Nähe finden Sie eine Apotheke, Busverbindungen, Einkaufsmöglichkeiten sowie eine Grundschule, einen Kindergarten und eine weiterführende Schule. Ein Spielplatz und die grüne Wohngegend laden zu entspannten Spaziergängen und Freizeitaktivitäten ein. Hier genießen Sie die perfekte Mischung aus urbanem Leben und naturnahen Rückzugsmöglichkeiten.

Sonstige Informationen

Achtung: Klinkeraktion ist verlängert!

STREIF Haus - der Pionier der deutschen Fertighausbranche
Die langjährige Firmentradition des Unternehmens reicht bis in das Jahr 1929 zurück. In den 50er und 60er Jahren wurde in Deutschland schnell und viel Wohnraum für Familien benötigt, seitdem konzentrierte sich das Unternehmen auf die Entwicklung und Produktion von Fertighaustypen, die im Werk in großen Stückzahlen hergestellt werden konnten. So kann das Unternehmen auf 90.000 gebaute Hausobjekte zurückblicken und sich zu Recht als Pionier der deutschen Fertighausbranche bezeichnen.

Die neuen Energiesparhäuser - So baut man heute.
Unser Anspruch ist es, in enger Partnerschaft mit unseren Kunden langlebige Häuser zu bauen, mit einer hohen architektonischen Qualität, individuell geplant und dabei energieeffizient und ressourcenschonend. Jedes STREIF-Haus ist einzigartig und wird speziell für jeden Kunden "maßgeschneidert" und gebaut. Passend zu den persönlichen Wünschen, dem vorgegebenen Budget und dem vorhandenen Grundstück planen und bauen wir jedes Haus mit viel Liebe zum Detail.
Ansprechpartner/in: Herr Andreas Maurer
06551 12 00
STREIF Haus GmbH
Josef-Streif-Straße 1, 54595 Weinsheim
06551 12 00

Weitere Angebote in Hannover