schöne 3 Zimmer Wohnung in Unterdietfurt

Hauptstr. 39a 84339 Unterdietfurt, Bayern
Frei ab: 01.07.2026
890 € Kaltmiete
10,00 € Preis/m² ca.
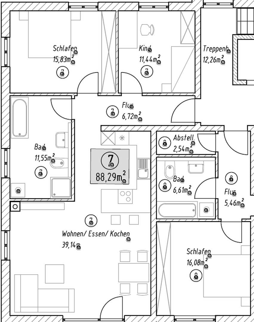
Wohnfläche
89 m²
Zimmer
3
Etage
0
Einbauküche
Balkon
Terrasse
Garten
Fahrstuhl

Mietpreis & Nebenkosten

Kaltmiete (netto)890 €
Nebenkosten 175 €
Stellplatz Tiefgarage Miete50 €

Wohnfläche, Grundstück & Bausubstanz

Wohnfläche89 m²
Zimmer3
Etagen3
Stockwerk0
Baujahr2023
Verfügbar ab 01.07.2026
ZustandNeuwertig

Beschreibung der Immobilie

bei dieser ansprechenden Immobilie handelt es sich um eine neuwertige Wohnung, die durch eine gehobene Innenausstattung besticht und ab sofort oder nach Absprache bezogen werden kann. Das Apartment verfügt über drei einladende Zimmer. Der Energieausweis der Immobilie ist aktuell und liegt vor. Zur Innenausstattung gehört auch eine Einbauküche.

Ausstattungsmerkmale

KücheEinbauküche
Bad1
Bad (Ausstattung)Dusche, Wanne
BodenFliesen, Parkett
Balkone0
Terrassen1
GartenJa
Fahrstuhl
Terrasse, Garten, Fahrstuhl, Vollbad, Duschbad, Einbauküche, Parkett, Fliesen

Energie

Heizungsart Zentralheizung
Energieträger/Befeuerung Pellet

Karte wird geladen...
Hauptstr. 39a
84339 Unterdietfurt – Bayern

Lage & Infrastruktur

Das Objekt liegt in Unterdietfurt. In der Nähe befindet sich Eggenfelden. Der öffentliche Personennahverkehr ist über die Buslinie 6220 angebunden. Weiter entfernt gibt es mehrere Einkaufsmöglichkeiten, Schulen und einen Kindergarten. Einige Museen, eine gute medizinische Versorgung, verschiedene Erholungs- und Sportangebote (u. a. einige Fitnessstudios) und interessante Ausgehmöglichkeiten erreichen Sie schließlich ebenfalls im größeren Umkreis. Die Gemeinde Unterdietfurt mit über 2000 Einwohnern befindet sich im niederbayerischen Landkreis Rottal-Inn. Getreu nach dem Motto "Schöner Leben
entlang der Rott" zeichnet sich der Ort durch seinen ländlichen Charme aus und bietet eine Vielzahl an Freizeitmöglichkeiten. Durch die zentrale Lage sind viele größere Städte wie etwa Burghausen, Landshut oder Mühldorf leicht mit dem Auto zu erreichen. Weiterhin bietet Unterdietfurt ein breites Spektrum an Vereinen zu Kultur, Sport und Sozialwesen. Bildung überzeugen der ortsansässige Kindergarten sowie die
Grundschule (bis zur 4. Klasse).
Infrastruktur (im Umkreis von 5 km):
Lebensmittel-Discount, Kindergarten, Grundschule, Öffentliche Verkehrsmittel
Infrastruktur (im Umkreis von 5 km):
Apotheke, Lebensmittel-Discount, Allgemeinmediziner, Kindergarten, Grundschule, Hauptschule, Realschule, Gymnasium, Gesamtschule, Öffentliche Verkehrsmittel

Sonstige Informationen

Heizungsart: Zentralheizung
Energieträger: Holzpellets
Energieausweis nicht vorhanden


Makleranfragen nicht erwünscht. Nach § 7 UWG sind unaufgeforderte Kontaktaufnahmen durch Makler ohne ausdrückliche Einwilligung des Empfängers verboten!

ohne-makler (OM) ist weder Anbieter noch Vermittler der Immobilie. OM betreibt eine Plattform für Immobilieneigentümer, die unter anderem die gleichzeitige Veröffentlichung einzelner Inserate auf mehreren Immobilienportalen ermöglicht. Die Inhalte dieser Inserate werden ausschließlich von Dritten verantwortet. Für die Richtigkeit, Vollständigkeit oder Rechtmäßigkeit der Angaben übernimmt OM keine Haftung. Hinweise auf mögliche Rechtsverstöße können jederzeit gemeldet werden und werden nach Prüfung umgehend bearbeitet.
Ansprechpartner/in: Privat vom Eigentümer
OM PropTech GmbH
Humboldtstraße 25a, 21509 Glinde

Weitere Angebote in Unterdietfurt