Baugrundstück mit Baugenehmigung für EFH (2 WE möglich) in Luckau OT Uckro
56.500 €
Kaufpreis
immobilien.de Nr.: 9534703
Objektnummer: 431534
Kaufpreis
| Kaufpreis | 56.500 € |
| Maklerprovision | keine Provision, courtagefrei |
Wohnfläche, Grundstück & Bausubstanz
| Grundstücksfläche | 879 m² |
| Verfügbar ab | sofort |
Beschreibung der Immobilie
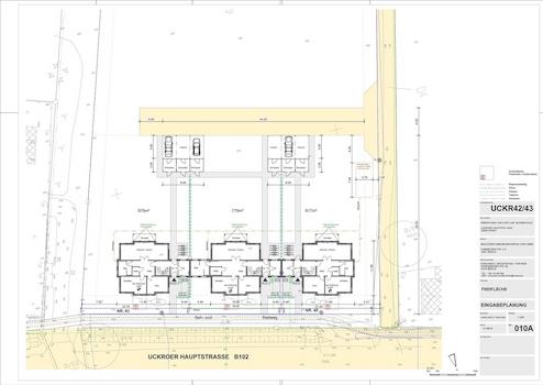
Zum Verkauf steht ein zusammenhängendes Entwicklungsareal mit einer Gesamtfläche von 8.261 m² in der Uckroer Hauptstraße 42–43 in Luckau OT Uckro.
Für das Grundstück liegt eine rechtskräftige Baugenehmigung zur Errichtung von:
3 Einfamilienhäusern
Jeweils mit 2 Wohneinheiten
Insgesamt 6 Wohneinheiten
vor.
Die genehmigte Planung umfasst folgende Wohnflächen:
Erdgeschoss: ca. 117–118 m²
Dachgeschoss / Einliegerwohnung: ca. 94–95 m²
Ca. 212–213 m² je Haus
Gesamtwohnfläche: ca. 636–639 m²
Sämtliche projektbezogenen Unterlagen sind vollständig vorhanden, darunter:
Baugenehmigung
Vollständige Genehmigungsplanung
Bodengutachten
Entwässerungsnachweise
Versicherungsnachweise
Das Projekt ist somit unmittelbar realisierbar.
Zusätzliches Entwicklungspotenzial
Neben der genehmigten Bebauung verfügt das Grundstück über eine erhebliche Baureserve.
Für diese Fläche kann ein Bebauungsplanverfahren eingeleitet werden. Nach aktuellem Stand wird ein entsprechendes Vorhaben von der Gemeinde unterstützt.
Im Falle einer erfolgreichen Aufstellung eines Bebauungsplans wäre zusätzlich möglich:
6 weitere Einfamilienhäuser
Jeweils mit bis zu 2 Wohneinheiten
Alternativ als klassische Einfamilienhäuser nutzbar
Somit ergibt sich perspektivisch die Möglichkeit von insgesamt:
Bis zu 9 Einfamilienhäusern
Oder bis zu 18 Wohneinheiten (vorbehaltlich behördlicher Genehmigungen)
Bereits durch ein Planungsbüro erstellte Unterlagen für einen möglichen Zum Verkauf steht ein Baugrundstück aus einem größeren Entwicklungsareal in der Uckroer Hauptstraße 42–43 in 15926 Luckau OT Uckro.
Es stehen aktuell drei Grundstücke mit folgenden Größen zur Verfügung:
779 m²
817 m²
879 m²
Für jedes dieser Grundstücke liegt bereits eine Baugenehmigung zur Errichtung von:
1 Einfamilienhaus mit bis zu 2 Wohneinheiten
vor.
Die Nutzung ist flexibel möglich:
als Zweifamilienhaus mit zwei separaten Einheiten
oder als klassisches Einfamilienhaus
Die genehmigte Planung sieht folgende Wohnflächen vor:
Wohneinheit Erdgeschoss: ca. 117–118 m²
Wohneinheit Dachgeschoss / Einliegerwohnung: ca. 94–95 m²
Gesamtwohnfläche: ca. 212–213 m² je Haus
Im Gesamtprojekt sind drei Häuser mit insgesamt sechs Wohneinheiten vorgesehen.
Die Planung umfasst zudem:
Carports
Schuppen
geordnete Zuwegungen
Regenentwässerung über Rigolen und Freiflächen
Ein wesentlicher Vorteil ist, dass das Bauvorhaben bereits vollständig vorbereitet ist. Folgende Unterlagen liegen vor:
rechtskräftige Baugenehmigung
vollständige Genehmigungsplanung
Bodengutachten
Entwässerungsnachweise
Versicherungsnachweise
Der Kaufpreis beträgt:
56.500,00 € pro Baugrundstück
Für das Grundstück liegt eine rechtskräftige Baugenehmigung zur Errichtung von:
3 Einfamilienhäusern
Jeweils mit 2 Wohneinheiten
Insgesamt 6 Wohneinheiten
vor.
Die genehmigte Planung umfasst folgende Wohnflächen:
Erdgeschoss: ca. 117–118 m²
Dachgeschoss / Einliegerwohnung: ca. 94–95 m²
Ca. 212–213 m² je Haus
Gesamtwohnfläche: ca. 636–639 m²
Sämtliche projektbezogenen Unterlagen sind vollständig vorhanden, darunter:
Baugenehmigung
Vollständige Genehmigungsplanung
Bodengutachten
Entwässerungsnachweise
Versicherungsnachweise
Das Projekt ist somit unmittelbar realisierbar.
Zusätzliches Entwicklungspotenzial
Neben der genehmigten Bebauung verfügt das Grundstück über eine erhebliche Baureserve.
Für diese Fläche kann ein Bebauungsplanverfahren eingeleitet werden. Nach aktuellem Stand wird ein entsprechendes Vorhaben von der Gemeinde unterstützt.
Im Falle einer erfolgreichen Aufstellung eines Bebauungsplans wäre zusätzlich möglich:
6 weitere Einfamilienhäuser
Jeweils mit bis zu 2 Wohneinheiten
Alternativ als klassische Einfamilienhäuser nutzbar
Somit ergibt sich perspektivisch die Möglichkeit von insgesamt:
Bis zu 9 Einfamilienhäusern
Oder bis zu 18 Wohneinheiten (vorbehaltlich behördlicher Genehmigungen)
Bereits durch ein Planungsbüro erstellte Unterlagen für einen möglichen Zum Verkauf steht ein Baugrundstück aus einem größeren Entwicklungsareal in der Uckroer Hauptstraße 42–43 in 15926 Luckau OT Uckro.
Es stehen aktuell drei Grundstücke mit folgenden Größen zur Verfügung:
779 m²
817 m²
879 m²
Für jedes dieser Grundstücke liegt bereits eine Baugenehmigung zur Errichtung von:
1 Einfamilienhaus mit bis zu 2 Wohneinheiten
vor.
Die Nutzung ist flexibel möglich:
als Zweifamilienhaus mit zwei separaten Einheiten
oder als klassisches Einfamilienhaus
Die genehmigte Planung sieht folgende Wohnflächen vor:
Wohneinheit Erdgeschoss: ca. 117–118 m²
Wohneinheit Dachgeschoss / Einliegerwohnung: ca. 94–95 m²
Gesamtwohnfläche: ca. 212–213 m² je Haus
Im Gesamtprojekt sind drei Häuser mit insgesamt sechs Wohneinheiten vorgesehen.
Die Planung umfasst zudem:
Carports
Schuppen
geordnete Zuwegungen
Regenentwässerung über Rigolen und Freiflächen
Ein wesentlicher Vorteil ist, dass das Bauvorhaben bereits vollständig vorbereitet ist. Folgende Unterlagen liegen vor:
rechtskräftige Baugenehmigung
vollständige Genehmigungsplanung
Bodengutachten
Entwässerungsnachweise
Versicherungsnachweise
Der Kaufpreis beträgt:
56.500,00 € pro Baugrundstück
Sonstige Informationen
Zusätzlich zu den Baugrundstücken steht eine Reserve- bzw. Gartenfläche von ca. 5.741 m² zur Verfügung.
Diese Fläche kann:
vollständig erworben werden
oder anteilig den einzelnen Grundstücken zugeordnet werden
Sie eignet sich ideal als:
zusätzliche Gartenfläche
Erweiterung der Grundstücke
Freizeit- oder Nebenflächen
Darüber hinaus besteht weiteres Entwicklungspotenzial:
Für die vorhandene Baureserve kann ein Bebauungsplanverfahren angestoßen werden. Nach aktuellem Stand wird dieses Vorhaben von der Gemeinde unterstützt.
Im Rahmen eines solchen Verfahrens könnte perspektivisch die Möglichkeit bestehen,:
bis zu 6 weitere Einfamilienhäuser zu realisieren
(vorbehaltlich behördlicher Genehmigungen).
Hierfür wurden bereits Planungsunterlagen durch ein Planungsbüro erstellt, sodass eine Grundlage für die weitere Entwicklung vorhanden ist.
Das Angebot richtet sich an:
private Bauherren
Kapitalanleger
Mehrgenerationenprojekte
Besonders hervorzuheben ist die Kombination aus:
sofort nutzbarer Baugenehmigung
flexibler Nutzung (1 oder 2 Wohneinheiten)
optionaler zusätzlicher Grundstücksfläche
langfristigem Entwicklungspotenzial
Weitere Unterlagen werden bei ernsthaftem Interesse gerne zur Verfügung gestellt.
Makleranfragen nicht erwünscht. Nach § 7 UWG sind unaufgeforderte Kontaktaufnahmen durch Makler ohne ausdrückliche Einwilligung des Empfängers verboten!
ohne-makler (OM) ist weder Anbieter noch Vermittler der Immobilie. OM betreibt eine Plattform für Immobilieneigentümer, die unter anderem die gleichzeitige Veröffentlichung einzelner Inserate auf mehreren Immobilienportalen ermöglicht. Die Inhalte dieser Inserate werden ausschließlich von Dritten verantwortet. Für die Richtigkeit, Vollständigkeit oder Rechtmäßigkeit der Angaben übernimmt OM keine Haftung. Hinweise auf mögliche Rechtsverstöße können jederzeit gemeldet werden und werden nach Prüfung umgehend bearbeitet.
Diese Fläche kann:
vollständig erworben werden
oder anteilig den einzelnen Grundstücken zugeordnet werden
Sie eignet sich ideal als:
zusätzliche Gartenfläche
Erweiterung der Grundstücke
Freizeit- oder Nebenflächen
Darüber hinaus besteht weiteres Entwicklungspotenzial:
Für die vorhandene Baureserve kann ein Bebauungsplanverfahren angestoßen werden. Nach aktuellem Stand wird dieses Vorhaben von der Gemeinde unterstützt.
Im Rahmen eines solchen Verfahrens könnte perspektivisch die Möglichkeit bestehen,:
bis zu 6 weitere Einfamilienhäuser zu realisieren
(vorbehaltlich behördlicher Genehmigungen).
Hierfür wurden bereits Planungsunterlagen durch ein Planungsbüro erstellt, sodass eine Grundlage für die weitere Entwicklung vorhanden ist.
Das Angebot richtet sich an:
private Bauherren
Kapitalanleger
Mehrgenerationenprojekte
Besonders hervorzuheben ist die Kombination aus:
sofort nutzbarer Baugenehmigung
flexibler Nutzung (1 oder 2 Wohneinheiten)
optionaler zusätzlicher Grundstücksfläche
langfristigem Entwicklungspotenzial
Weitere Unterlagen werden bei ernsthaftem Interesse gerne zur Verfügung gestellt.
Makleranfragen nicht erwünscht. Nach § 7 UWG sind unaufgeforderte Kontaktaufnahmen durch Makler ohne ausdrückliche Einwilligung des Empfängers verboten!
ohne-makler (OM) ist weder Anbieter noch Vermittler der Immobilie. OM betreibt eine Plattform für Immobilieneigentümer, die unter anderem die gleichzeitige Veröffentlichung einzelner Inserate auf mehreren Immobilienportalen ermöglicht. Die Inhalte dieser Inserate werden ausschließlich von Dritten verantwortet. Für die Richtigkeit, Vollständigkeit oder Rechtmäßigkeit der Angaben übernimmt OM keine Haftung. Hinweise auf mögliche Rechtsverstöße können jederzeit gemeldet werden und werden nach Prüfung umgehend bearbeitet.
Karte wird geladen...
Objektstandort
Uckroer Hauptstraße 42–43
15926 Luckau - Uckro
- Brandenburg
Lage & Infrastruktur
Objektstandort
Uckroer Hauptstraße 42–43
15926 Luckau - Uckro
- Brandenburg
Das Grundstück befindet sich in der Uckroer Hauptstraße im Ortsteil Uckro der Stadt Luckau im Landkreis Dahme-Spreewald.
Die Lage bietet eine attraktive Kombination aus ruhigem Wohnen im ländlichen Umfeld und guter Verkehrsanbindung:
direkte Anbindung an die B102
Bahnhof Uckro mit regionaler Verbindung
kurze Wege nach Luckau mit vollständiger Infrastruktur
Das Umfeld ist geprägt von großzügigen Grundstücken, gewachsener Wohnbebauung und hoher Wohnqualität.
Ein zusätzlicher Standortvorteil ergibt sich durch die Nähe zu Luckau, wo sich mehrere Hausbaufirmen und Handwerksbetriebe befinden. Dies ermöglicht kurze Wege und eine wirtschaftlich effiziente Umsetzung des Bauvorhabens.
Die Lage eignet sich sowohl für Eigennutzer als auch für Kapitalanleger.
Die Lage bietet eine attraktive Kombination aus ruhigem Wohnen im ländlichen Umfeld und guter Verkehrsanbindung:
direkte Anbindung an die B102
Bahnhof Uckro mit regionaler Verbindung
kurze Wege nach Luckau mit vollständiger Infrastruktur
Das Umfeld ist geprägt von großzügigen Grundstücken, gewachsener Wohnbebauung und hoher Wohnqualität.
Ein zusätzlicher Standortvorteil ergibt sich durch die Nähe zu Luckau, wo sich mehrere Hausbaufirmen und Handwerksbetriebe befinden. Dies ermöglicht kurze Wege und eine wirtschaftlich effiziente Umsetzung des Bauvorhabens.
Die Lage eignet sich sowohl für Eigennutzer als auch für Kapitalanleger.
Kontaktanfrage senden
Über den Anbieter
OM PropTech GmbH
Humboldtstraße 25a
21509 Glinde
Kontakt
| Telefon | 0177 5257974 |
| Fax | - |
| Website | www.ohne-makler.net |
Ansprechpartner/in
Angebot von Ben Klug
Weitere Angebote des Anbieters
19
Urbanes Wohnerlebnis auf Stralau: 3-Zimmer-Wohnung in ...
Wohnung
10245 Berlin
Urbanes Wohnerlebnis auf Stralau: 3-Zimmer-Wohnung in absoluter Ruhelage – Provisionsfrei Erleben Sie Lebensqualität zwischen Spree und See. Auf der begehrten Halbinsel Stralau erwartet Sie diese helle 84 m² ...
439.000 €
Kaufpreis
84 m²
Wohnfläche
3
Zimmer
15
Nachmieter gesucht - Moderne 2-Zimmer-Wohnung nahe ...
Wohnung
13359 Berlin
Wir suchen einen Nachmieter für unsere moderne und vollständig möblierte Wohnung in ruhiger Lage. Eckdaten: Wohnfläche: 45,34 m² Neubau (Baujahr 2020) Unbefristeter Mietvertrag Mindestmietdauer: 2 Jahre Balkon & Keller ...
1.390 €
Kaltmiete (netto)
46 m²
Wohnfläche
2
Zimmer
16
Wohnen & Arbeiten perfekt kombiniert – Modern ...
Wohnung
89275 Thalfingen
Diese hochwertig renovierte 4-Zimmer-Wohnung in Thalfingen überzeugt durch eine gelungene Kombination aus modernem Wohnkomfort, durchdachter Raumaufteilung und vielseitigen Nutzungsmöglichkeiten. Ob als neues Zuhause ...
329.000 €
Kaufpreis
89,11 m²
Wohnfläche
4
Zimmer
6
3 ZKBB plus Balkon renoviert zentral Pirmasens
Wohnung
66953 Pirmasens
3 Zimmer Küche Duschbad und Gäste WC Bad Wohnung mit Balkon, Kellerabteil und Hausmeister. Frisch gestrichen/renoviert.
550 €
Kaltmiete (netto)
83 m²
Wohnfläche
3
Zimmer
15
Frisch renovierte 2-Zimmer-Wohnung in Auerbach
Wohnung
64625 Bensheim
Urban Living an der Bergstraße: Deine frisch renovierte 2-Zimmer-Wohnung in Bensheim-Auerbach! Du suchst eine Wohnung, die nicht nur schick ist, sondern dir auch den Alltag maximal erleichtert? Dann ist diese ...
783 €
Kaltmiete (netto)
58 m²
Wohnfläche
2
Zimmer